| ||||||||||||||||||||||||||
Скачать Серия 1.262-1 Выпуск 0. Указания по обеспечению пространственной жесткости покрытий по двускатным балкам пролетом 9, 12, 15 и 18 м с шагом 3 мДата актуализации: 10.08.2017
|
| Обозначение: | Серия 1.262-1 |
| Обозначение англ: | Series 1.262-1 |
| Статус: | не определен законодательством |
| Название рус.: | Выпуск 0. Указания по обеспечению пространственной жесткости покрытий по двускатным балкам пролетом 9, 12, 15 и 18 м с шагом 3 м |
| Дата добавления в базу: | 01.09.2013 |
| Дата актуализации: | 05.05.2017 |
| Дата введения: | 01.01.1980 |
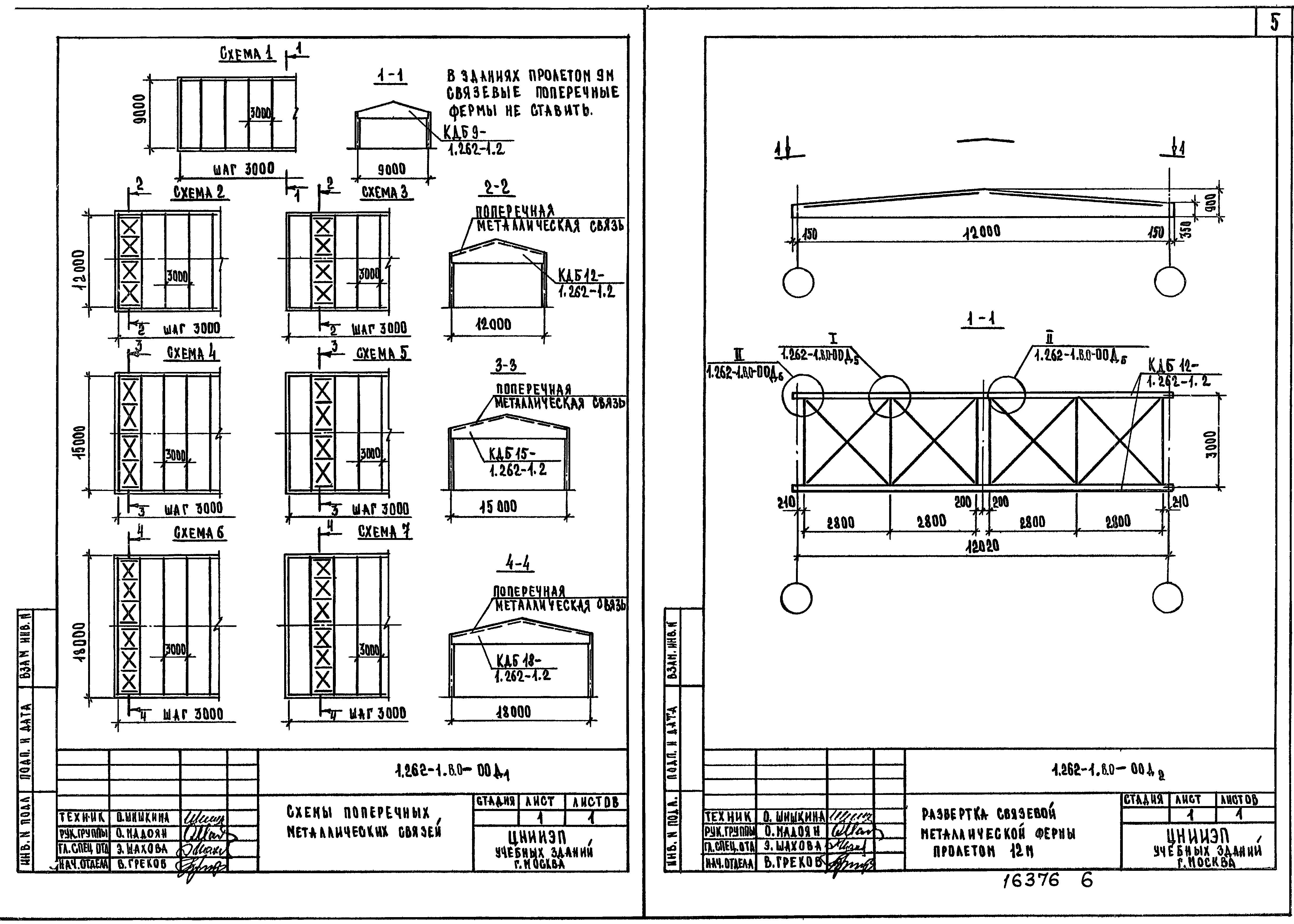
| Оглавление: | 1.260-1.В.О-0 Содержание 1.260-1.В.О-00ТУ Техническое условие 1.260-1.В.О-00ВД Ведомость ссылочных документов 1.260-1.В.О-00Д1 Схемы поперечных металлических связей 1.260-1.В.О-00Д2 Развертка связевой металлической фермы пролетом 12 м 1.260-1.В.О-00Д3 Развертка связевой металлической фермы пролетом 15 м 1.260-1.В.О-00Д4 Развертка связевой металлической фермы пролетом 18 м 1.260-1.В.О-00Д5 Пример узла крепления металлических связей в пролете. Узел 1 1.260-1.В.О-00Д6 Пример узла крепления металлических связей на опоре и в коньке. Узел 2 1.260-1.В.О-00Д7 Схемы поперечных деревянных связей 1.260-1.В.О-00Д8 Развертка связевой деревянной формы пролетом 12 м 1.260-1.В.О-00Д9 Развертка связевой деревянной фермы пролетом 15 м 1.260-1.В.О-00Д10 Развертка связевой деревянной фермы пролетом 18 м 1.260-1.В.О-00Д11 Пример узла крепления деревянных связей в пролете. Узел 3 1.260-1.В.О-00Д12 Пример узла крепления деревянных связей на опоре. Узел 4 1.260-1.В.О-00Д13 Пример узла крепления деревянной стойки на опоре. Узел 5 1.260-1.В.О-00Д14 Пример узла крепления панелей покрытий к деревянным клееным балкам 1.260-1.В.О-00Д15 Пример узла крепления деревянных клееных балок к несущим конструкциям каркасно-панельных зданий 1.260-1.В.О-00Д16 Пример узла крепления деревянных клееных балок к стенам кирпичных зданий |
| Разработан: | ЦНИИЭП зрелищных зданий и спортивных сооружений Госгражданстроя ЦНИИЭП учебных зданий Госгражданстроя |
| Утверждён: | 30.11.1979 Государственный комитет по гражданскому строительству и архитектуре при Госстрое СССР (255) |
| Расположен в: |












