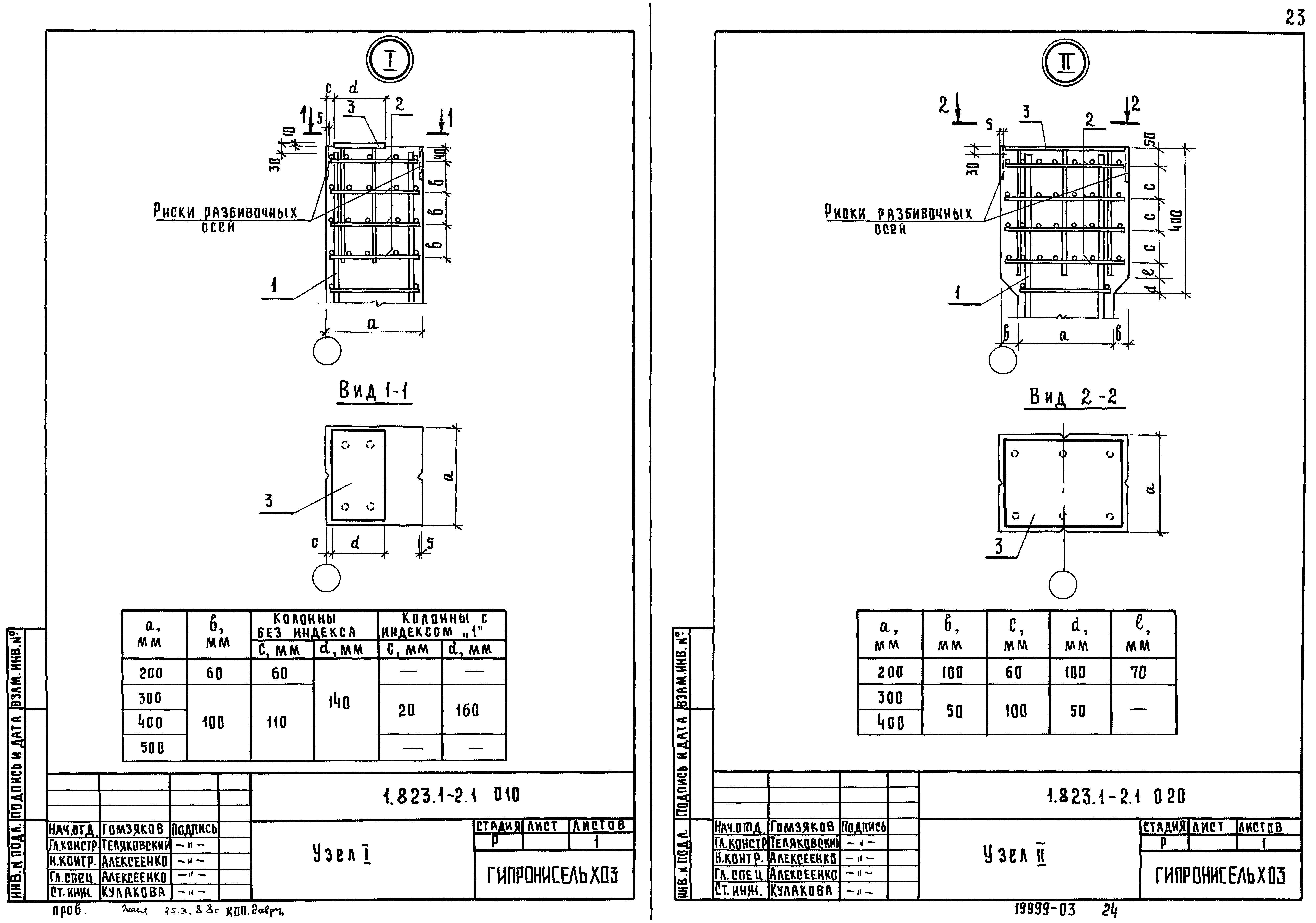
Скачать Серия 1.823.1-2 Выпуск 1. Колонны. Рабочие чертежиДата актуализации: 10.08.2017 Серия 1.823.1-2
Выпуск 1. Колонны. Рабочие чертежиОбозначение: | Серия 1.823.1-2 | Обозначение англ: | Series 1.823.1-2 | Статус: | действует | Название рус.: | Выпуск 1. Колонны. Рабочие чертежи | Дата добавления в базу: | 01.09.2013 | Дата актуализации: | 05.05.2017 | Дата введения: | 01.01.1985 | Разработан: | Гипронисельпром Главсельстройпроекта Минсельхоза СССР НИИЖБ ГипроНИсельхоз (Институт Гипронисельхоз )
| Утверждён: | 31.08.1984 Госстрой СССР (Государственный комитет Совета Министров СССР по делам строительства) (USSR Gosstroy 151)
| Расположен в: |
|
                             
|