Информационная система
«Ёшкин Кот»

Скачать базу одним архивом
Скачать обновления
История создания базы
Карта сайта

Скачать Серия 1.424.1-10 Выпуск 5с. Колонны для зданий с расчетной сейсмичностью 8 баллов. Рабочие чертежи

Дата актуализации: 10.08.2017

Серия 1.424.1-10

Выпуск 5с. Колонны для зданий с расчетной сейсмичностью 8 баллов. Рабочие чертежи

Обозначение: Серия 1.424.1-10
Обозначение англ: Series 1.424.1-10
Статус:не определен законодательством
Название рус.:Выпуск 5с. Колонны для зданий с расчетной сейсмичностью 8 баллов. Рабочие чертежи
Дата добавления в базу:01.09.2013
Дата актуализации:05.05.2017
Дата введения:01.02.1990
Оглавление:1.424.1-10.5С-ТТ Технические требования
1.424.1-10.5С-1 Колонна крайняя 1КДП 156-1-С...1КДП 156-3-С; 2КДП 156-1-С…2КДП 156-7-С
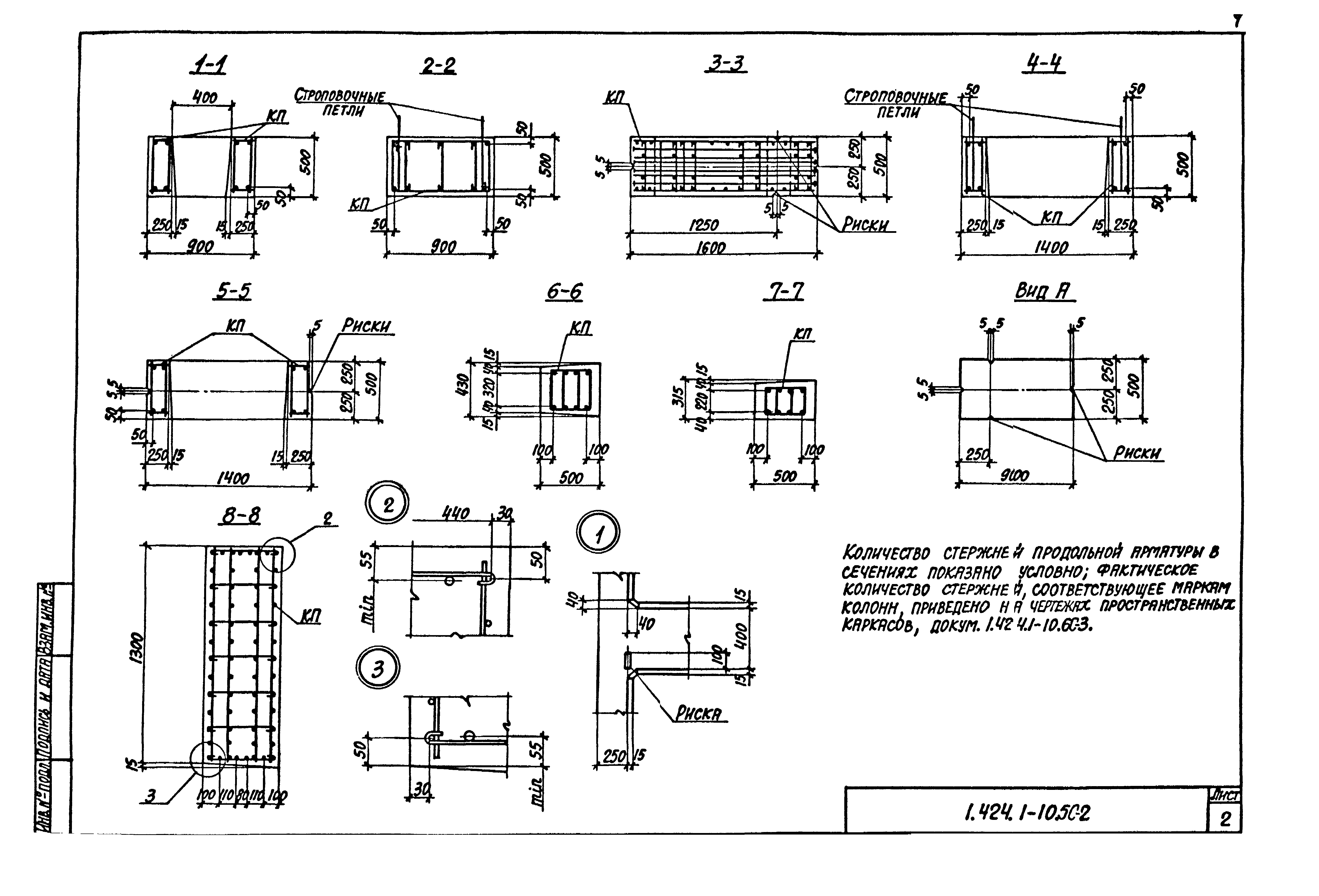
1.424.1-10.5С-2 Колонна крайняя 3КДП 156-1-С…3КДП 156-4-С
1.424.1-10.5С-3 Колонна крайняя 4КДП 156-1-С…4КДП 156-5-С
1.424.1-10.5С-4 Колонна крайняя 1КДП 168-1-С…1КДП 168-5-С
1.424.1-10.5С-5 Колонна крайняя 2КДП 168-1-С…2КДП 168-7-С
1.424.1-10.5С-6 Колонна крайняя 3КДП 168-1-С…3КДП 168-3-С
1.424.1-10.5С-7 Колонна крайняя 4КДП 168-1-С…4КДП 168-5-С
1.424.1-10.5С-8 Колонна крайняя 1КДП 180-1-С…1КДП 180-4-С
1.424.1-10.5С-9 Колонна крайняя 2КДП 180-1-С…2КДП 180-8-С
1.424.1-10.5С-10 Колонна крайняя 3КДП 180-1-С…3КДП 180-5-С
1.424.1-10.5С-11 Колонна крайняя 4КДП 180-1-С…4КДП 180-8-С
1.424.1-10.5С-12 Колонна средняя 5КДП 156-1-С…5КДП 156-7-С; 7КДП 156-1-С; 7КДП 156-2-С
1.424.1-10.5С-13 Колонна средняя 6КДП 156-1-С…6КДП 156-9-С
1.424.1-10.5С-14 Колонна средняя 8КДП 156-1-С; 8КДП 156-2-С
1.424.1-10.5С-15 Колонна средняя 5КДП 168-1-С…5КДП 168-7-С; 7КДП 168-1-С; 7КДП 168-2-С
1.424.1-10.5С-16 Колонна средняя 6КДП 168-1-С…6КДП 168-8-С; 8КДП 168-1-С; 8КДП 168-2-С
1.424.1-10.5С-17 Колонна средняя 5КДП 180-1-С…5КДП 180-6-С; 7КДП 180-1-С…7КДП 180-3-С
1.424.1-10.5С-18 Колонна средняя 6КДП 180-1-С…6КДП 180-8-С
1.424.1-10.5С-19 Колонна средняя 8КДП 180-1-С; 8КДП 180-2-С
1.424.1-10.5С-20 Узел 23, 26
1.424.1-10.5С-21 Узел 24, 25
1.424.1-10.5С-22 Узел 27
1.424.1-10.5С-23 Узел 28; 28-1…28-7
1.424.1-10.5С-24 Узел 29; 29-1
1.424.1-10.5С-25 Узел 30; 30-1; 30-2
1.424.1-10.5С-26 Узел 31; 31-1; 31-2; 32
1.424.1-10.5С-27 Узел 33; 33-1
1.424.1-10.5С-28 Узел 34; 34-1
1.424.1-10.5С-29 Деталь устройства шпонок
1.424.1-10.5С-30РС Ведомость расхода стали
1.424.1-10.5С-31 Указания по замене арматуры класса А-III на арматуру класса Ат-IVс
1.424.1-10.5С-32 таблицы подбора марок плоских каркасов при замене арматуры класса А-III на арматуру класса Ат-Ivс
Разработан: Харьковский Промстройниипроект
АО ЦНИИпромзданий
Утверждён:02.08.1989 Госстрой СССР (Государственный комитет Совета Министров СССР по делам строительства) (USSR Gosstroy 4/5-1095)
Издан: ЦИТП Госстроя СССР (CITP, Gosstroy (USSR) 1989 г. )
Расположен в:Техническая документация Строительство Справочные документы Типовые строительные конструкции, изделия и узлы Общероссийский строительный каталог Строительные конструкции, изделия и узлы зданий и сооружений для всех видов строительства Конструкции, изделия и узлы зданий Несущие конструкции одноэтажных зданий Колонны Железобетонные
Серия 1.424.1-10Серия 1.424.1-10Серия 1.424.1-10Серия 1.424.1-10Серия 1.424.1-10Серия 1.424.1-10Серия 1.424.1-10Серия 1.424.1-10Серия 1.424.1-10Серия 1.424.1-10Серия 1.424.1-10Серия 1.424.1-10Серия 1.424.1-10Серия 1.424.1-10Серия 1.424.1-10Серия 1.424.1-10Серия 1.424.1-10Серия 1.424.1-10Серия 1.424.1-10Серия 1.424.1-10Серия 1.424.1-10Серия 1.424.1-10Серия 1.424.1-10Серия 1.424.1-10Серия 1.424.1-10Серия 1.424.1-10Серия 1.424.1-10Серия 1.424.1-10Серия 1.424.1-10Серия 1.424.1-10Серия 1.424.1-10Серия 1.424.1-10Серия 1.424.1-10Серия 1.424.1-10Серия 1.424.1-10Серия 1.424.1-10Серия 1.424.1-10Серия 1.424.1-10Серия 1.424.1-10Серия 1.424.1-10Серия 1.424.1-10Серия 1.424.1-10Серия 1.424.1-10Серия 1.424.1-10Серия 1.424.1-10Серия 1.424.1-10Серия 1.424.1-10Серия 1.424.1-10Серия 1.424.1-10Серия 1.424.1-10Серия 1.424.1-10Серия 1.424.1-10Серия 1.424.1-10Серия 1.424.1-10Серия 1.424.1-10Серия 1.424.1-10Серия 1.424.1-10Серия 1.424.1-10Серия 1.424.1-10Серия 1.424.1-10Серия 1.424.1-10Серия 1.424.1-10Серия 1.424.1-10Серия 1.424.1-10Серия 1.424.1-10Серия 1.424.1-10Серия 1.424.1-10

© 2013 Ёшкин Кот :-) Карта сайта