Информационная система
«Ёшкин Кот»

Скачать базу одним архивом
Скачать обновления
История создания базы
Карта сайта

Скачать Серия 1.424.1-6/89 Выпуск 7с. Стальные связи по колоннам для зданий с расчетной сейсмичностью 7 и 8 баллов. Рабочие чертежи

Дата актуализации: 10.08.2017

Серия 1.424.1-6/89

Выпуск 7с. Стальные связи по колоннам для зданий с расчетной сейсмичностью 7 и 8 баллов. Рабочие чертежи

Обозначение: Серия 1.424.1-6/89
Обозначение англ: Series 1.424.1-6/89
Статус:не определен законодательством
Название рус.:Выпуск 7с. Стальные связи по колоннам для зданий с расчетной сейсмичностью 7 и 8 баллов. Рабочие чертежи
Дата добавления в базу:01.09.2013
Дата актуализации:05.05.2017
Дата введения:01.10.1990
Оглавление:1.424.1-6/89.7С-ТТ Технические требования
1.424.1-6/89.7С-1СМ Расчетная схема и геометрические размеры связей ВС 70...ВС82
1.424.1-6/89.7С-2СМ Расчетная схема и геометрические размеры связей ВС 83...ВС89
1.424.1-6/89.7С-3СМ Расчетная схема и геометрические размеры связей ВС 90...ВС101
1.424.1-6/89.7С-4СМ Расчетная схема и геометрические размеры связей ВС 102...ВС107
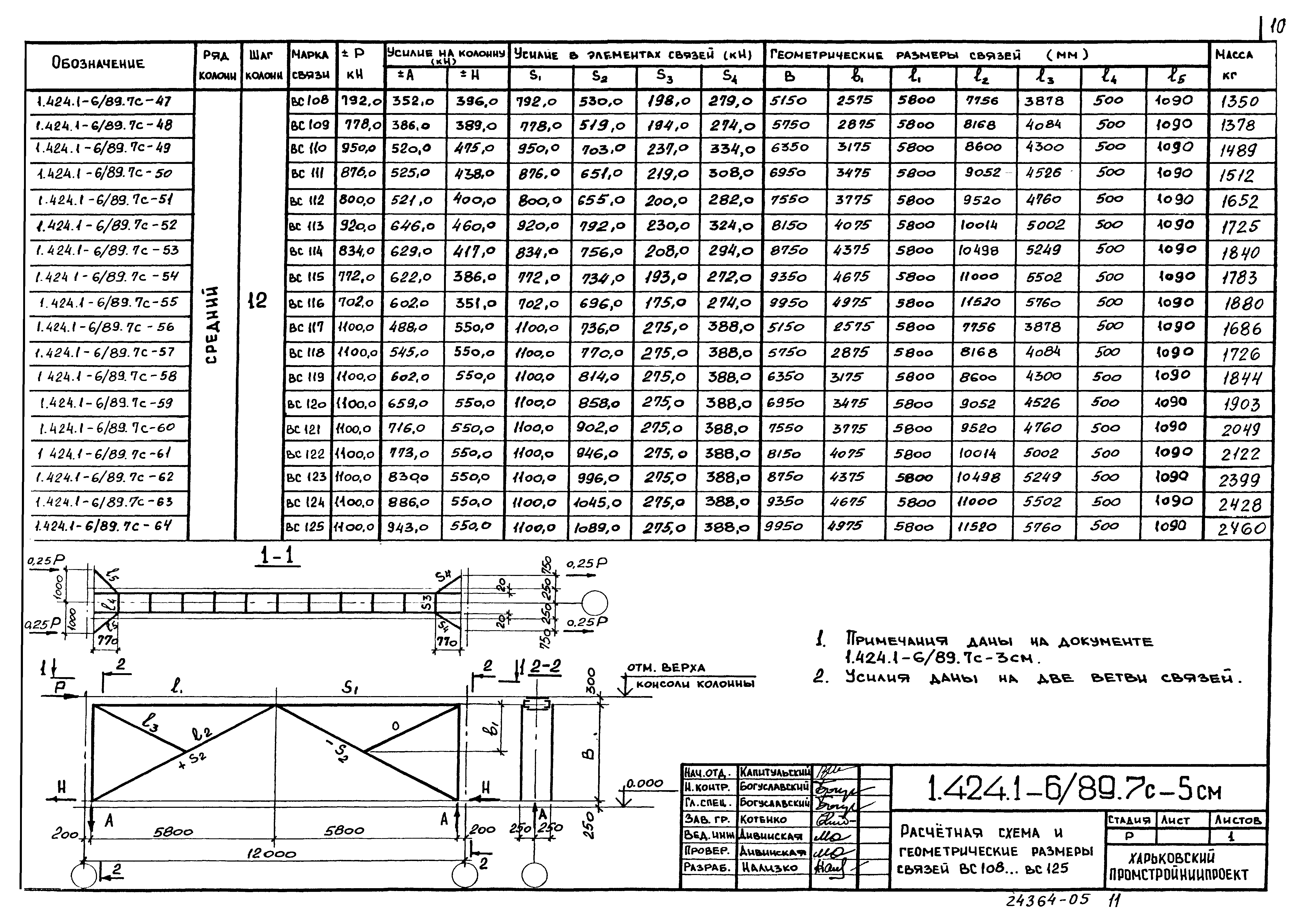
1.424.1-6/89.7С-5СМ Расчетная схема и геометрические размеры связей ВС 108...ВС125
1.424.1-6/89.7С-6СМ Расчетная схема и геометрические размеры связей ВС 126...ВС133
1.424.1-6/89.7С-7СМ Расчетная схема и геометрические размеры связей ВС 134...ВС146
1.424.1-6/89.7С-8СМ Расчетная схема и геометрические размеры связей ВС 147...ВС155
1.424.1-6/89.7С-9 Связь ВС 70
1.424.1-6/89.7С-10 Связь ВС 71
1.424.1-6/89.7С-11 Связь ВС 72
1.424.1-6/89.7С-12 Связь ВС 73
1.424.1-6/89.7С-13 Связь ВС 74
1.424.1-6/89.7С-14 Связь ВС 75
1.424.1-6/89.7С-15 Связь ВС 76
1.424.1-6/89.7С-16 Связь ВС 77
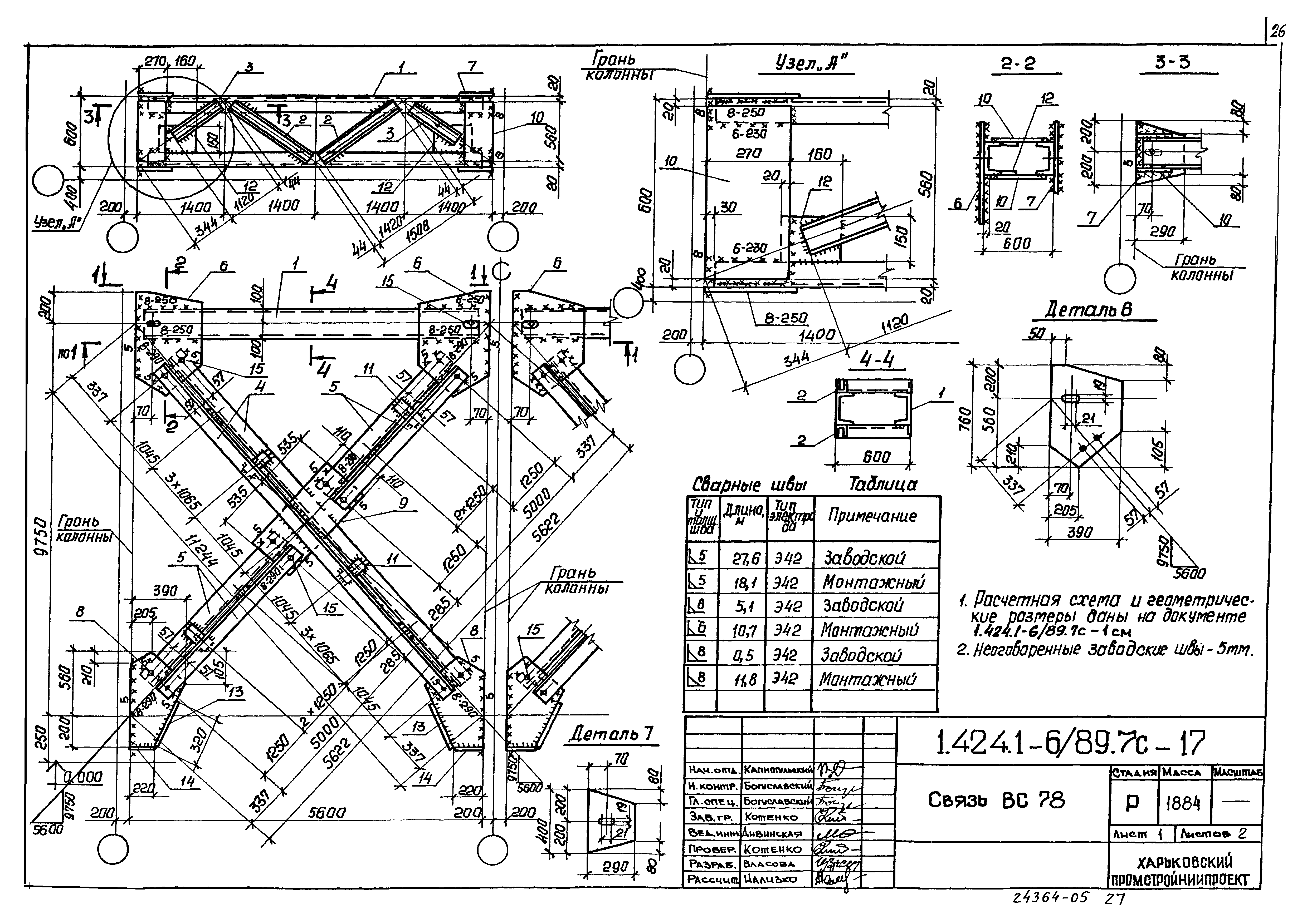
1.424.1-6/89.7С-17 Связь ВС 78
1.424.1-6/89.7С-18 Связь ВС 79
1.424.1-6/89.7С-19 Связь ВС 80
1.424.1-6/89.7С-20 Связь ВС 81
1.424.1-6/89.7С-21 Связь ВС 82
1.424.1-6/89.7С-22 Связь ВС 83
1.424.1-6/89.7С-23 Связь ВС 84
1.424.1-6/89.7С-24 Связь ВС 85
1.424.1-6/89.7С-25 Связь ВС 86
1.424.1-6/89.7С-26 Связь ВС 87
1.424.1-6/89.7С-27 Связь ВС 88
1.424.1-6/89.7С-28 Связь ВС 89
1.424.1-6/89.7С-29 Связь ВС 90
1.424.1-6/89.7С-30 Связь ВС 91
1.424.1-6/89.7С-31 Связь ВС 92
1.424.1-6/89.7С-32 Связь ВС 93
1.424.1-6/89.7С-33 Связь ВС 94
1.424.1-6/89.7С-34 Связь ВС 95
1.424.1-6/89.7С-35 Связь ВС 96
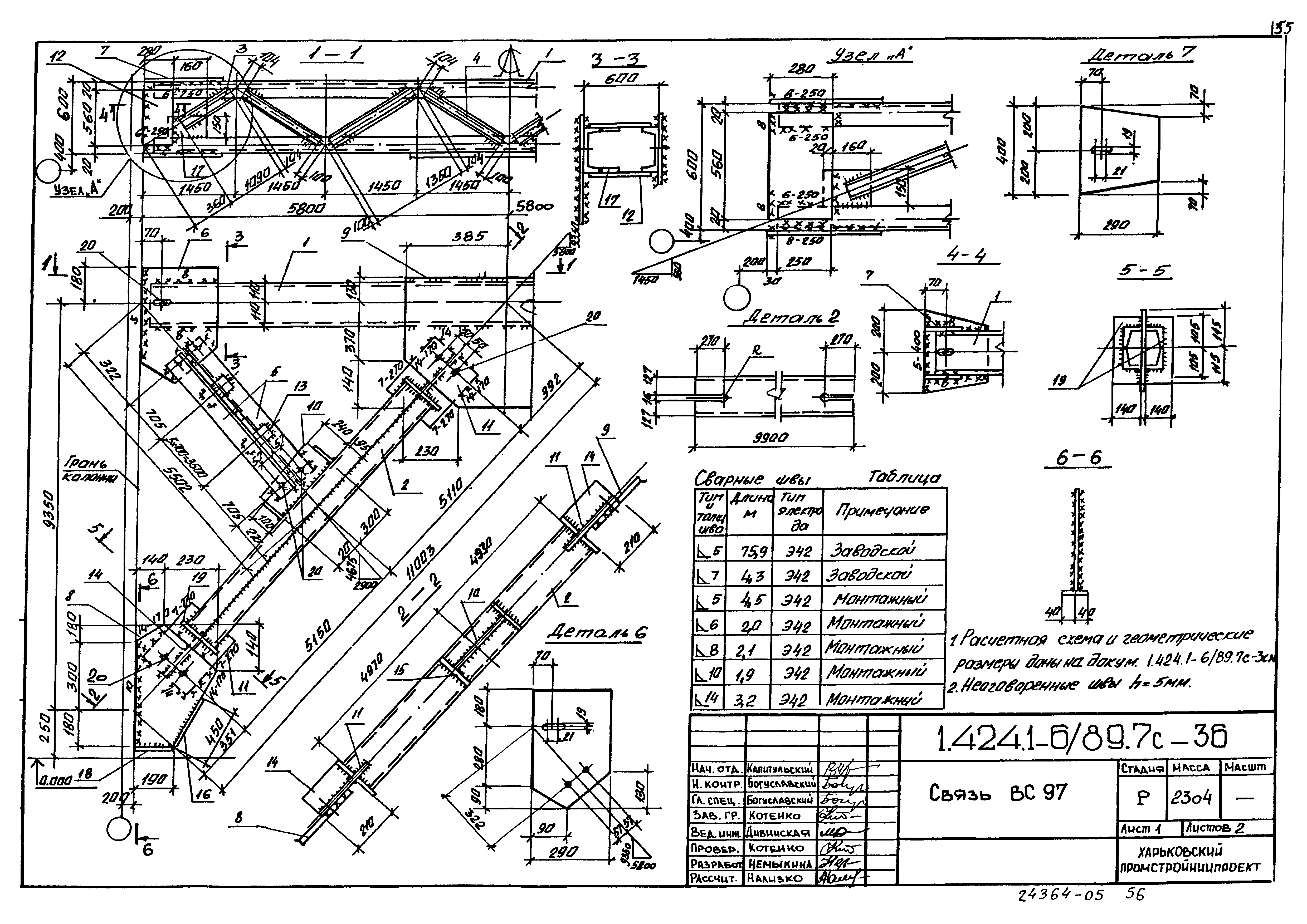
1.424.1-6/89.7С-36 Связь ВС 97
1.424.1-6/89.7С-37 Связь ВС 98
1.424.1-6/89.7С-38 Связь ВС 99
1.424.1-6/89.7С-39 Связь ВС 100
1.424.1-6/89.7С-40 Связь ВС 101
1.424.1-6/89.7С-41 Связь ВС 102
1.424.1-6/89.7С-42 Связь ВС 103
1.424.1-6/89.7С-43 Связь ВС 104
1.424.1-6/89.7С-44 Связь ВС 105
1.424.1-6/89.7С-45 Связь ВС 106
1.424.1-6/89.7С-46 Связь ВС 107
1.424.1-6/89.7С-47 Связь ВС 108
1.424.1-6/89.7С-48 Связь ВС 109
1.424.1-6/89.7С-49 Связь ВС 110
1.424.1-6/89.7С-50 Связь ВС 111
1.424.1-6/89.7С-51 Связь ВС 112
1.424.1-6/89.7С-52 Связь ВС 113
1.424.1-6/89.7С-53 Связь ВС 114
1.424.1-6/89.7С-54 Связь ВС 115
1.424.1-6/89.7С-55 Связь ВС 116
1.424.1-6/89.7С-56 Связь ВС 117
1.424.1-6/89.7С-57 Связь ВС 118
1.424.1-6/89.7С-58 Связь ВС 119
1.424.1-6/89.7С-59 Связь ВС 120
1.424.1-6/89.7С-60 Связь ВС 121
1.424.1-6/89.7С-61 Связь ВС 122
1.424.1-6/89.7С-62 Связь ВС 123
1.424.1-6/89.7С-63 Связь ВС 124
1.424.1-6/89.7С-64 Связь ВС 125
1.424.1-6/89.7С-65 Связь ВС 126
1.424.1-6/89.7С-66 Связь ВС 127
1.424.1-6/89.7С-67 Связь ВС 128
1.424.1-6/89.7С-68 Связь ВС 129
1.424.1-6/89.7С-69 Связь ВС 130
1.424.1-6/89.7С-70 Связь ВС 131
1.424.1-6/89.7С-71 Связь ВС 132
1.424.1-6/89.7С-72 Связь ВС 133
1.424.1-6/89.7С-73 Связь ВС 134
1.424.1-6/89.7С-74 Связь ВС 135
1.424.1-6/89.7С-75 Связь ВС 136
1.424.1-6/89.7С-76 Связь ВС 137
1.424.1-6/89.7С-77 Связь ВС 138
1.424.1-6/89.7С-78 Связь ВС 139
1.424.1-6/89.7С-79 Связь ВС 140
1.424.1-6/89.7С-80 Связь ВС 141
1.424.1-6/89.7С-81 Связь ВС 142
1.424.1-6/89.7С-82 Связь ВС 143
1.424.1-6/89.7С-83 Связь ВС 144
1.424.1-6/89.7С-84 Связь ВС 145
1.424.1-6/89.7С-85 Связь ВС 146
1.424.1-6/89.7С-86 Связь ВС 147-1
1.424.1-6/89.7С-87 Связь ВС 147-2
1.424.1-6/89.7С-88 Связь ВС 148-1
1.424.1-6/89.7С-89 Связь ВС 148-2
1.424.1-6/89.7С-90 Связь ВС 149-1
1.424.1-6/89.7С-91 Связь ВС 149-2
1.424.1-6/89.7С-92 Связь ВС 150-1
1.424.1-6/89.7С-93 Связь ВС 150-2
1.424.1-6/89.7С-94 Связь ВС 151-1
1.424.1-6/89.7С-95 Связь ВС 151-2
1.424.1-6/89.7С-96 Связь ВС 152-1
1.424.1-6/89.7С-97 Связь ВС 152-2
1.424.1-6/89.7С-98 Связь ВС 153-1
1.424.1-6/89.7С-99 Связь ВС 153-2
1.424.1-6/89.7С-100 Связь ВС 154-1
1.424.1-6/89.7С-101 Связь ВС 154-2
1.424.1-6/89.7С-102 Связь ВС 155-1
1.424.1-6/89.7С-103 Связь ВС 155-2
Разработан: Харьковский Промстройниипроект
Утверждён:02.08.1989 Госстрой СССР (Государственный комитет Совета Министров СССР по делам строительства) (USSR Gosstroy 4/5-1094)
Издан: ЦИТП Госстроя СССР (CITP, Gosstroy (USSR) 1990 г. )
Расположен в:Техническая документация Строительство Справочные документы Типовые строительные конструкции, изделия и узлы Общероссийский строительный каталог Строительные конструкции, изделия и узлы зданий и сооружений для всех видов строительства Конструкции, изделия и узлы зданий Несущие конструкции одноэтажных зданий Колонны Железобетонные
Серия 1.424.1-6/89Серия 1.424.1-6/89Серия 1.424.1-6/89Серия 1.424.1-6/89Серия 1.424.1-6/89Серия 1.424.1-6/89Серия 1.424.1-6/89Серия 1.424.1-6/89Серия 1.424.1-6/89Серия 1.424.1-6/89Серия 1.424.1-6/89Серия 1.424.1-6/89Серия 1.424.1-6/89Серия 1.424.1-6/89Серия 1.424.1-6/89Серия 1.424.1-6/89Серия 1.424.1-6/89Серия 1.424.1-6/89Серия 1.424.1-6/89Серия 1.424.1-6/89Серия 1.424.1-6/89Серия 1.424.1-6/89Серия 1.424.1-6/89Серия 1.424.1-6/89Серия 1.424.1-6/89Серия 1.424.1-6/89Серия 1.424.1-6/89Серия 1.424.1-6/89Серия 1.424.1-6/89Серия 1.424.1-6/89Серия 1.424.1-6/89Серия 1.424.1-6/89Серия 1.424.1-6/89Серия 1.424.1-6/89Серия 1.424.1-6/89Серия 1.424.1-6/89Серия 1.424.1-6/89Серия 1.424.1-6/89Серия 1.424.1-6/89Серия 1.424.1-6/89Серия 1.424.1-6/89Серия 1.424.1-6/89Серия 1.424.1-6/89Серия 1.424.1-6/89Серия 1.424.1-6/89Серия 1.424.1-6/89Серия 1.424.1-6/89Серия 1.424.1-6/89Серия 1.424.1-6/89Серия 1.424.1-6/89Серия 1.424.1-6/89Серия 1.424.1-6/89Серия 1.424.1-6/89Серия 1.424.1-6/89Серия 1.424.1-6/89Серия 1.424.1-6/89Серия 1.424.1-6/89Серия 1.424.1-6/89Серия 1.424.1-6/89Серия 1.424.1-6/89Серия 1.424.1-6/89Серия 1.424.1-6/89Серия 1.424.1-6/89Серия 1.424.1-6/89Серия 1.424.1-6/89Серия 1.424.1-6/89Серия 1.424.1-6/89Серия 1.424.1-6/89Серия 1.424.1-6/89Серия 1.424.1-6/89Серия 1.424.1-6/89Серия 1.424.1-6/89Серия 1.424.1-6/89Серия 1.424.1-6/89Серия 1.424.1-6/89Серия 1.424.1-6/89Серия 1.424.1-6/89Серия 1.424.1-6/89Серия 1.424.1-6/89Серия 1.424.1-6/89Серия 1.424.1-6/89Серия 1.424.1-6/89Серия 1.424.1-6/89Серия 1.424.1-6/89Серия 1.424.1-6/89Серия 1.424.1-6/89Серия 1.424.1-6/89Серия 1.424.1-6/89Серия 1.424.1-6/89Серия 1.424.1-6/89Серия 1.424.1-6/89Серия 1.424.1-6/89Серия 1.424.1-6/89Серия 1.424.1-6/89Серия 1.424.1-6/89Серия 1.424.1-6/89Серия 1.424.1-6/89Серия 1.424.1-6/89Серия 1.424.1-6/89Серия 1.424.1-6/89Серия 1.424.1-6/89Серия 1.424.1-6/89Серия 1.424.1-6/89Серия 1.424.1-6/89Серия 1.424.1-6/89Серия 1.424.1-6/89Серия 1.424.1-6/89Серия 1.424.1-6/89Серия 1.424.1-6/89Серия 1.424.1-6/89Серия 1.424.1-6/89Серия 1.424.1-6/89Серия 1.424.1-6/89Серия 1.424.1-6/89Серия 1.424.1-6/89Серия 1.424.1-6/89Серия 1.424.1-6/89Серия 1.424.1-6/89Серия 1.424.1-6/89Серия 1.424.1-6/89Серия 1.424.1-6/89Серия 1.424.1-6/89Серия 1.424.1-6/89Серия 1.424.1-6/89Серия 1.424.1-6/89Серия 1.424.1-6/89Серия 1.424.1-6/89Серия 1.424.1-6/89Серия 1.424.1-6/89Серия 1.424.1-6/89Серия 1.424.1-6/89Серия 1.424.1-6/89Серия 1.424.1-6/89Серия 1.424.1-6/89Серия 1.424.1-6/89Серия 1.424.1-6/89Серия 1.424.1-6/89

© 2013 Ёшкин Кот :-) Карта сайта