Информационная система
«Ёшкин Кот»

Скачать базу одним архивом
Скачать обновления
История создания базы
Карта сайта

Скачать Серия 1.424.1-6/89 Выпуск 3. Стальные связи по колоннам. Рабочие чертежи

Дата актуализации: 10.08.2017

Серия 1.424.1-6/89

Выпуск 3. Стальные связи по колоннам. Рабочие чертежи

Обозначение: Серия 1.424.1-6/89
Обозначение англ: Series 1.424.1-6/89
Статус:не определен законодательством
Название рус.:Выпуск 3. Стальные связи по колоннам. Рабочие чертежи
Дата добавления в базу:01.09.2013
Дата актуализации:05.05.2017
Дата введения:01.10.1989
Оглавление:1.424.1-6/89.3-ТТ Технические требования
1.424.1-6/89.3-1СМ Расчетная схема и геометрические размеры. Связь ВС1…ВС6
1.424.1-6/89.3-2СМ Расчетная схема и геометрические размеры. Связь ВС7…ВС14
1.424.1-6/89.3-3СМ Расчетная схема и геометрические размеры. Связь ВС15…ВС34
1.424.1-6/89.3-4СМ Расчетная схема и геометрические размеры. Связь ВС35…ВС44
1.424.1-6/89.3-5СМ Расчетная схема и геометрические размеры. Связь ВС45…ВС61
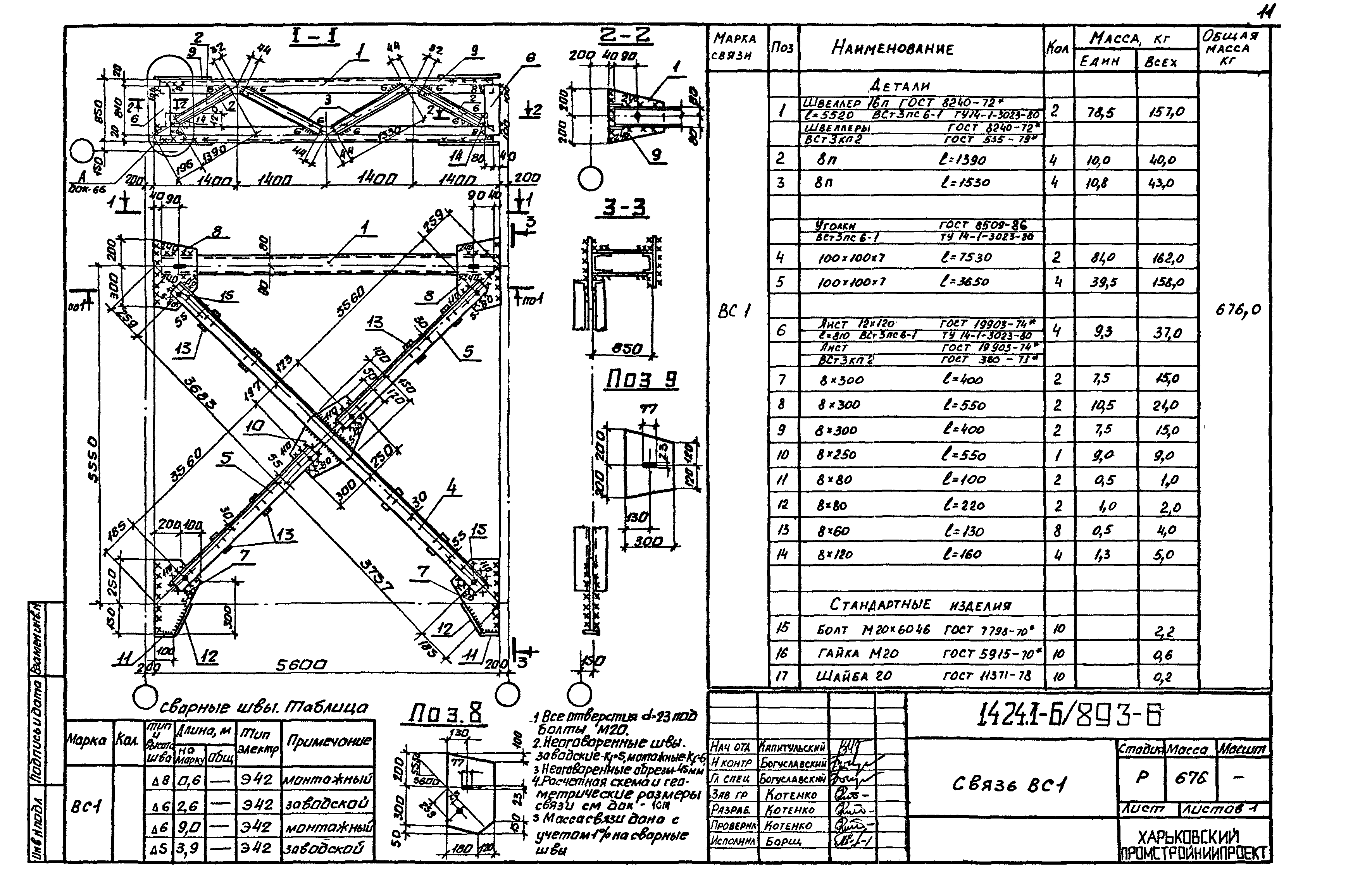
1.424.1-6/89.3-6 Связь ВС1
1.424.1-6/89.3-7 Связь ВС2
1.424.1-6/89.3-8 Связь ВС3
1.424.1-6/89.3-9 Связь ВС4
1.424.1-6/89.3-10 Связь ВС5
1.424.1-6/89.3-11 Связь ВС6
1.424.1-6/89.3-12 Связь ВС7
1.424.1-6/89.3-13 Связь ВС8
1.424.1-6/89.3-14 Связь ВС9
1.424.1-6/89.3-15 Связь ВС10
1.424.1-6/89.3-16 Связь ВС11
1.424.1-6/89.3-17 Связь ВС12
1.424.1-6/89.3-18 Связь ВС13
1.424.1-6/89.3-19 Связь ВС14
1.424.1-6/89.3-20 Связь ВС15
1.424.1-6/89.3-21 Связь ВС16
1.424.1-6/89.3-22 Связь ВС17
1.424.1-6/89.3-23 Связь ВС18
1.424.1-6/89.3-24 Связь ВС19
1.424.1-6/89.3-25 Связь ВС20
1.424.1-6/89.3-26 Связь ВС21
1.424.1-6/89.3-27 Связь ВС22
1.424.1-6/89.3-28 Связь ВС23
1.424.1-6/89.3-29 Связь ВС24
1.424.1-6/89.3-30 Связь ВС25
1.424.1-6/89.3-31 Связь ВС26
1.424.1-6/89.3-32 Связь ВС27
1.424.1-6/89.3-33 Связь ВС28
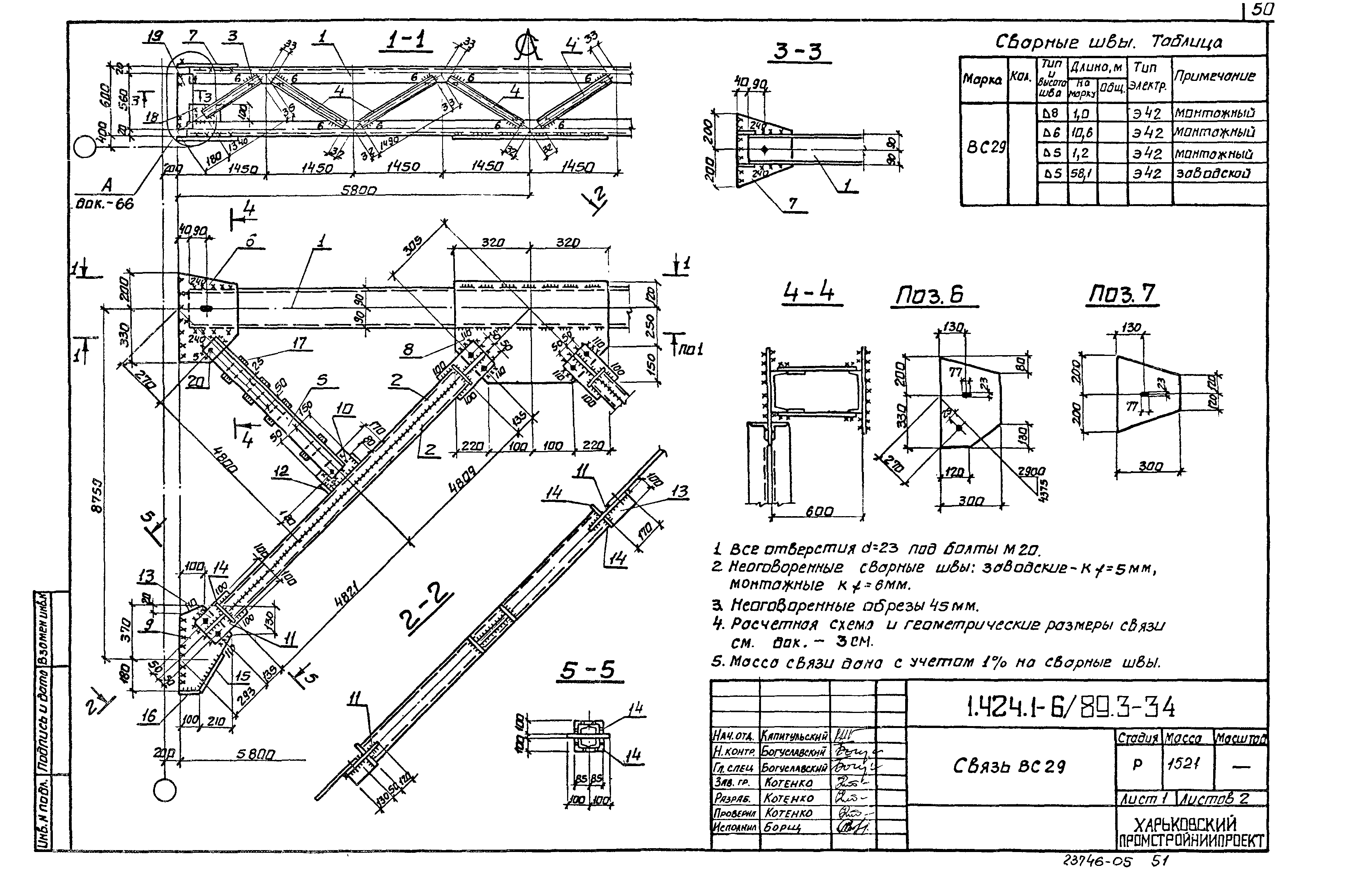
1.424.1-6/89.3-34 Связь ВС29
1.424.1-6/89.3-35 Связь ВС30
1.424.1-6/89.3-36 Связь ВС31
1.424.1-6/89.3-37 Связь ВС32
1.424.1-6/89.3-38 Связь ВС33
1.424.1-6/89.3-39 Связь ВС34
1.424.1-6/89.3-40 Связь ВС35
1.424.1-6/89.3-41 Связь ВС36
1.424.1-6/89.3-42 Связь ВС37
1.424.1-6/89.3-43 Связь ВС38
1.424.1-6/89.3-44 Связь ВС39
1.424.1-6/89.3-45 Связь ВС40
1.424.1-6/89.3-46 Связь ВС41
1.424.1-6/89.3-47 Связь ВС42
1.424.1-6/89.3-48 Связь ВС43
1.424.1-6/89.3-49 Связь ВС44
1.424.1-6/89.3-50 Связь ВС45
1.424.1-6/89.3-51 Связь ВС46
1.424.1-6/89.3-52 Связь ВС47
1.424.1-6/89.3-53 Связь ВС48
1.424.1-6/89.3-54 Связь ВС49
1.424.1-6/89.3-55 Связь ВС50
1.424.1-6/89.3-56 Связь ВС51
1.424.1-6/89.3-57 Связь ВС52
1.424.1-6/89.3-58 Связь ВС53
1.424.1-6/89.3-59 Связь ВС54
1.424.1-6/89.3-60 Связь ВС55
1.424.1-6/89.3-61 Связь ВС56
1.424.1-6/89.3-62 Связь ВС57
1.424.1-6/89.3-63 Связь ВС58
1.424.1-6/89.3-64 Связь ВС59
1.424.1-6/89.3-65 Связь ВС60
1.424.1-6/89.3-66 Связь ВС61
1.424.1-6/89.3-67СМ Расчетная схема и геометрические размеры. Связь ВС62…ВС67
1.424.1-6/89.3-68 Связь ВС62
1.424.1-6/89.3-69 Связь ВС63
1.424.1-6/89.3-70 Связь ВС64
1.424.1-6/89.3-71 Связь ВС65
1.424.1-6/89.3-72 Связь ВС66
1.424.1-6/89.3-73 Связь ВС67
1.424.1-6/89.3-74 Техническая спецификация стали
Разработан: Харьковский Промстройниипроект
Утверждён:10.02.1989 Госстрой СССР (Государственный комитет Совета Министров СССР по делам строительства) (USSR Gosstroy 4/6-193)
Издан: ЦИТП Госстроя СССР (CITP, Gosstroy (USSR) 1989 г. )
Расположен в:Техническая документация Строительство Справочные документы Типовые строительные конструкции, изделия и узлы Общероссийский строительный каталог Строительные конструкции, изделия и узлы зданий и сооружений для всех видов строительства Конструкции, изделия и узлы зданий Несущие конструкции одноэтажных зданий Колонны Железобетонные
Серия 1.424.1-6/89Серия 1.424.1-6/89Серия 1.424.1-6/89Серия 1.424.1-6/89Серия 1.424.1-6/89Серия 1.424.1-6/89Серия 1.424.1-6/89Серия 1.424.1-6/89Серия 1.424.1-6/89Серия 1.424.1-6/89Серия 1.424.1-6/89Серия 1.424.1-6/89Серия 1.424.1-6/89Серия 1.424.1-6/89Серия 1.424.1-6/89Серия 1.424.1-6/89Серия 1.424.1-6/89Серия 1.424.1-6/89Серия 1.424.1-6/89Серия 1.424.1-6/89Серия 1.424.1-6/89Серия 1.424.1-6/89Серия 1.424.1-6/89Серия 1.424.1-6/89Серия 1.424.1-6/89Серия 1.424.1-6/89Серия 1.424.1-6/89Серия 1.424.1-6/89Серия 1.424.1-6/89Серия 1.424.1-6/89Серия 1.424.1-6/89Серия 1.424.1-6/89Серия 1.424.1-6/89Серия 1.424.1-6/89Серия 1.424.1-6/89Серия 1.424.1-6/89Серия 1.424.1-6/89Серия 1.424.1-6/89Серия 1.424.1-6/89Серия 1.424.1-6/89Серия 1.424.1-6/89Серия 1.424.1-6/89Серия 1.424.1-6/89Серия 1.424.1-6/89Серия 1.424.1-6/89Серия 1.424.1-6/89Серия 1.424.1-6/89Серия 1.424.1-6/89Серия 1.424.1-6/89Серия 1.424.1-6/89Серия 1.424.1-6/89Серия 1.424.1-6/89Серия 1.424.1-6/89Серия 1.424.1-6/89Серия 1.424.1-6/89Серия 1.424.1-6/89Серия 1.424.1-6/89Серия 1.424.1-6/89Серия 1.424.1-6/89Серия 1.424.1-6/89Серия 1.424.1-6/89Серия 1.424.1-6/89Серия 1.424.1-6/89Серия 1.424.1-6/89Серия 1.424.1-6/89Серия 1.424.1-6/89Серия 1.424.1-6/89Серия 1.424.1-6/89Серия 1.424.1-6/89Серия 1.424.1-6/89Серия 1.424.1-6/89Серия 1.424.1-6/89Серия 1.424.1-6/89Серия 1.424.1-6/89Серия 1.424.1-6/89Серия 1.424.1-6/89Серия 1.424.1-6/89Серия 1.424.1-6/89Серия 1.424.1-6/89Серия 1.424.1-6/89Серия 1.424.1-6/89Серия 1.424.1-6/89Серия 1.424.1-6/89Серия 1.424.1-6/89Серия 1.424.1-6/89Серия 1.424.1-6/89Серия 1.424.1-6/89Серия 1.424.1-6/89Серия 1.424.1-6/89Серия 1.424.1-6/89Серия 1.424.1-6/89Серия 1.424.1-6/89Серия 1.424.1-6/89Серия 1.424.1-6/89Серия 1.424.1-6/89Серия 1.424.1-6/89Серия 1.424.1-6/89Серия 1.424.1-6/89Серия 1.424.1-6/89Серия 1.424.1-6/89Серия 1.424.1-6/89Серия 1.424.1-6/89Серия 1.424.1-6/89Серия 1.424.1-6/89Серия 1.424.1-6/89Серия 1.424.1-6/89Серия 1.424.1-6/89Серия 1.424.1-6/89Серия 1.424.1-6/89Серия 1.424.1-6/89Серия 1.424.1-6/89Серия 1.424.1-6/89Серия 1.424.1-6/89Серия 1.424.1-6/89Серия 1.424.1-6/89Серия 1.424.1-6/89Серия 1.424.1-6/89Серия 1.424.1-6/89

© 2013 Ёшкин Кот :-) Карта сайта