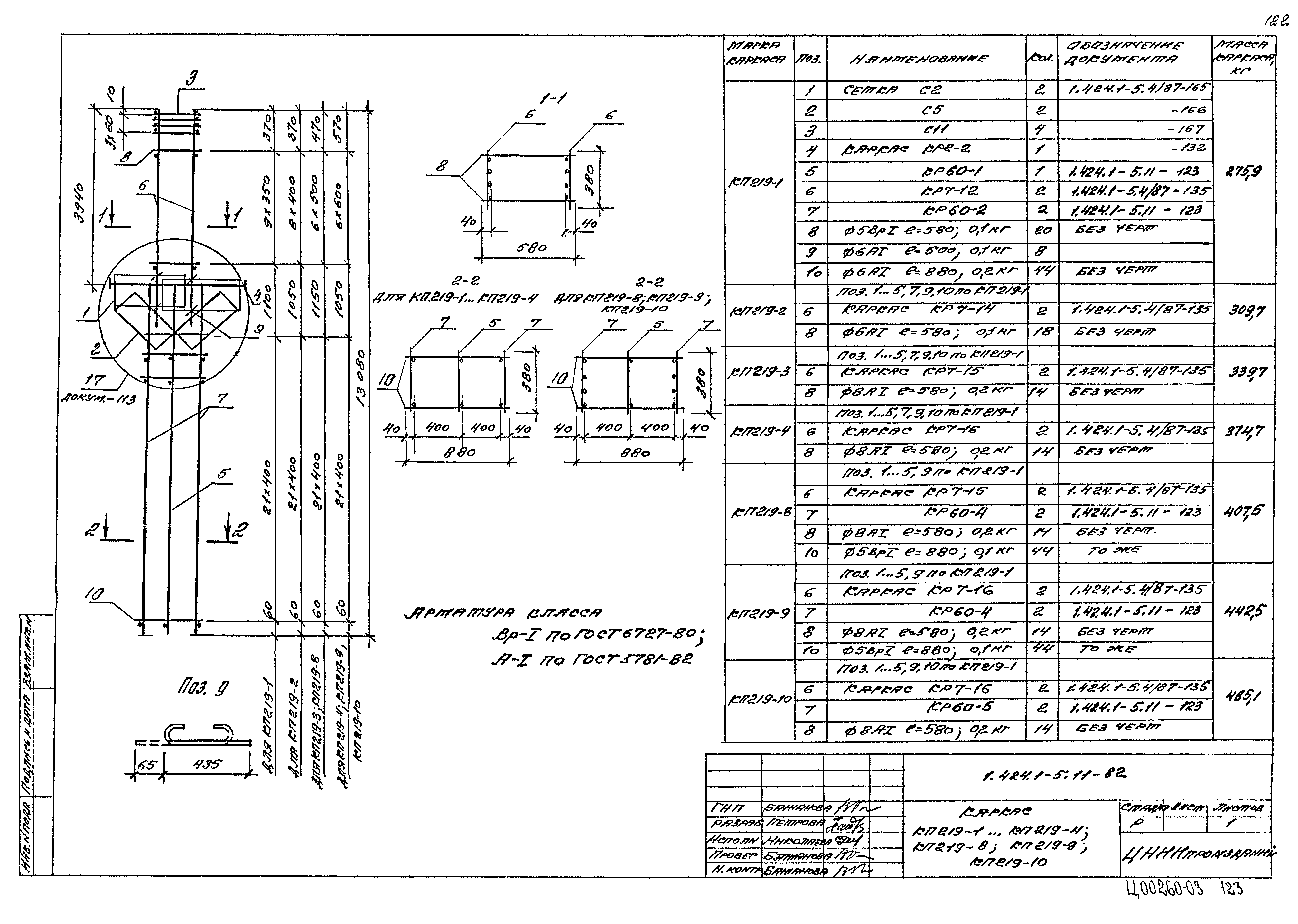
Скачать Серия 1.424.1-5 Выпуск 11. Колонны для зданий высотой 9,0; 10,2; 11,4; 12,6 и 13,8 м. Изделия арматурные. Рабочие чертежиДата актуализации: 10.08.2017 Серия 1.424.1-5
Выпуск 11. Колонны для зданий высотой 9,0; 10,2; 11,4; 12,6 и 13,8 м. Изделия арматурные. Рабочие чертежиОбозначение: | Серия 1.424.1-5 | Обозначение англ: | Series 1.424.1-5 | Статус: | не определен законодательством | Название рус.: | Выпуск 11. Колонны для зданий высотой 9,0; 10,2; 11,4; 12,6 и 13,8 м. Изделия арматурные. Рабочие чертежи | Дата добавления в базу: | 01.09.2013 | Дата актуализации: | 05.05.2017 | Дата введения: | 01.01.1995 | Разработан: | АО ЦНИИпромзданий
| Утверждён: | 19.03.1994 Главпроект Госстроя России (9-3-1/87)
| Расположен в: |
|
                                                                                                                                                                                   
|