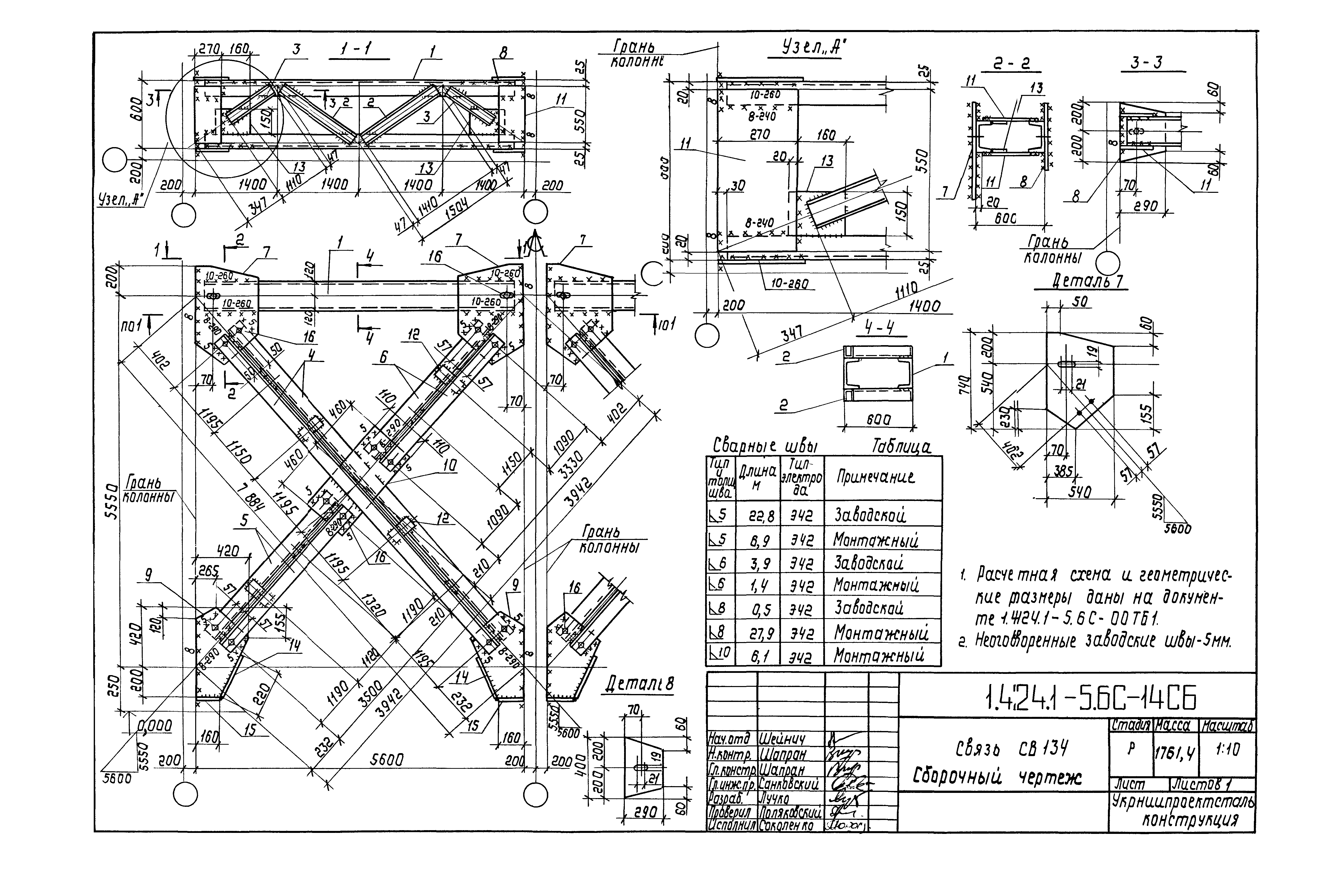
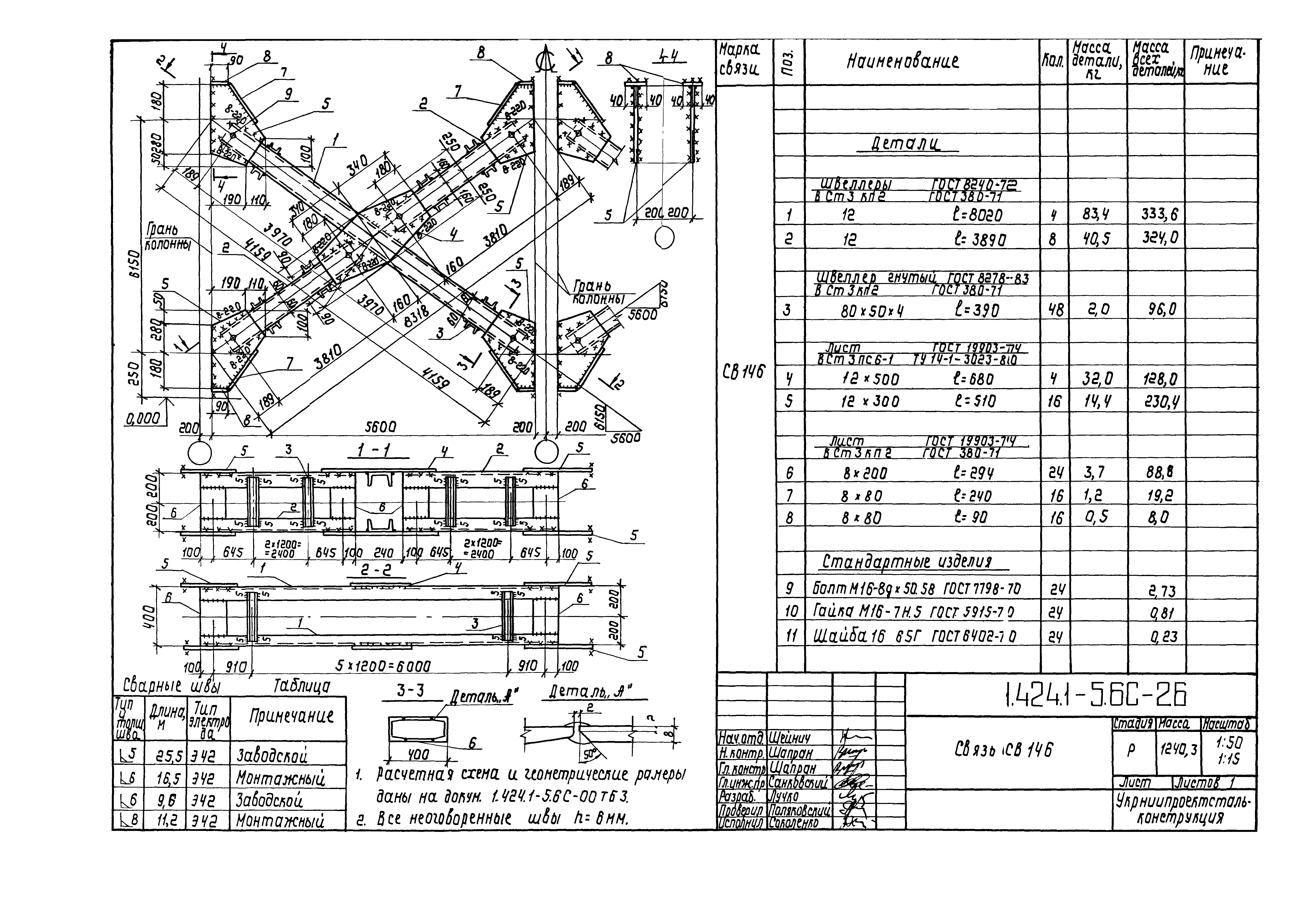
Скачать Серия 1.424.1-5 Выпуск 6с. Книга 1. Стальные связи по колоннам для зданий с расчетной сейсмичностью 7, 8, 9 баллов. Рабочие чертежиДата актуализации: 10.08.2017 Серия 1.424.1-5
Выпуск 6с. Книга 1. Стальные связи по колоннам для зданий с расчетной сейсмичностью 7, 8, 9 баллов. Рабочие чертежиОбозначение: | Серия 1.424.1-5 | Обозначение англ: | Series 1.424.1-5 | Статус: | не определен законодательством | Название рус.: | Выпуск 6с. Книга 1. Стальные связи по колоннам для зданий с расчетной сейсмичностью 7, 8, 9 баллов. Рабочие чертежи | Дата добавления в базу: | 01.09.2013 | Дата актуализации: | 05.05.2017 | Дата введения: | 01.04.1989 | Разработан: | АО ЦНИИпромзданий Укрниипроектстальконструкция
| Утверждён: | 23.12.1988 Госстрой СССР (Государственный комитет Совета Министров СССР по делам строительства) (USSR Gosstroy АЧ-47)
| Издан: | ЦИТП Госстроя СССР (CITP, Gosstroy (USSR) 1989 г. )
| Расположен в: |
| Заменяет собой: | |
                                                                                 
|