Скачать Серия 1.424.1-5 Выпуск 2/87. Колонны для зданий высотой 12,0; 13,2 и 14,4 м. Рабочие чертежиДата актуализации: 10.08.2017 Серия 1.424.1-5
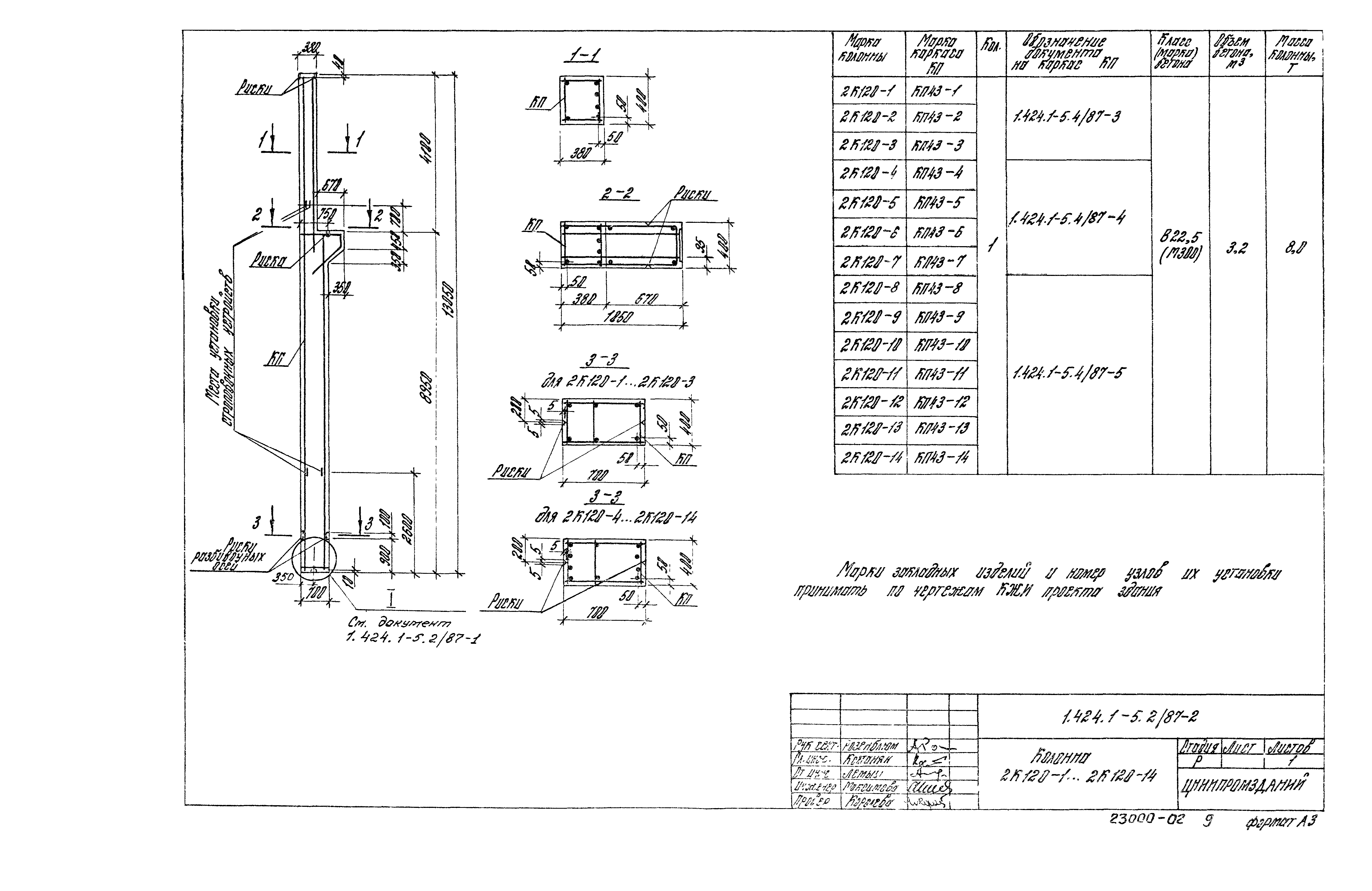
Выпуск 2/87. Колонны для зданий высотой 12,0; 13,2 и 14,4 м. Рабочие чертежиОбозначение: | Серия 1.424.1-5 | Обозначение англ: | Series 1.424.1-5 | Статус: | не определен законодательством | Название рус.: | Выпуск 2/87. Колонны для зданий высотой 12,0; 13,2 и 14,4 м. Рабочие чертежи | Дата добавления в базу: | 01.09.2013 | Дата актуализации: | 05.05.2017 | Дата введения: | 01.04.1988 | Разработан: | Промстройпроект Госстроя СССР АО ЦНИИпромзданий НИИЖБ Укрниипроектстальконструкция
| Утверждён: | 03.12.1987 Госстрой СССР (Государственный комитет Совета Министров СССР по делам строительства) (USSR Gosstroy АЧ-99)
| Издан: | ЦИТП Госстроя СССР (CITP, Gosstroy (USSR) 1988 г. )
| Расположен в: |
| Заменяет собой: | |
                                                                                         
|