| ||||||||||||||||||||||||||
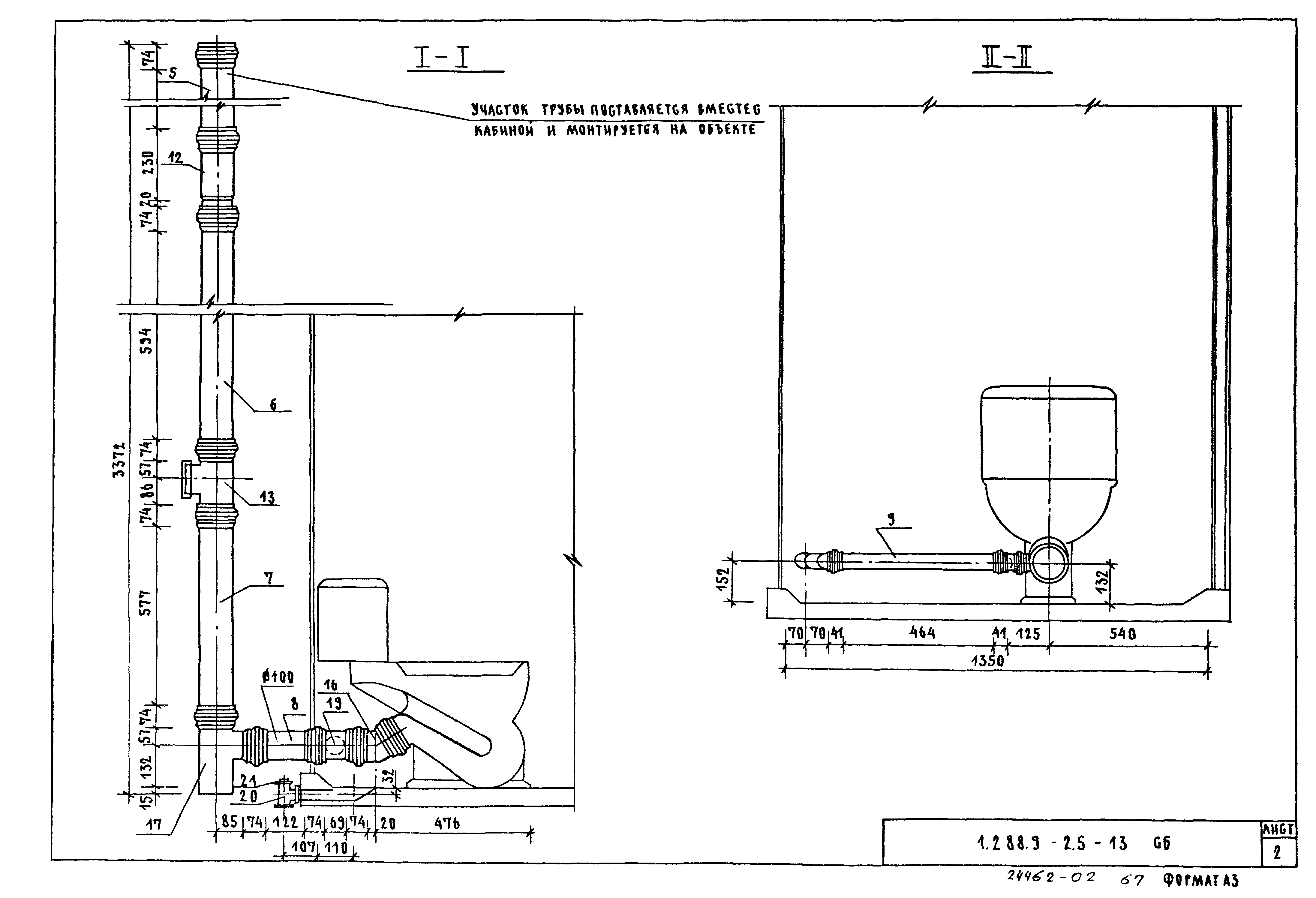
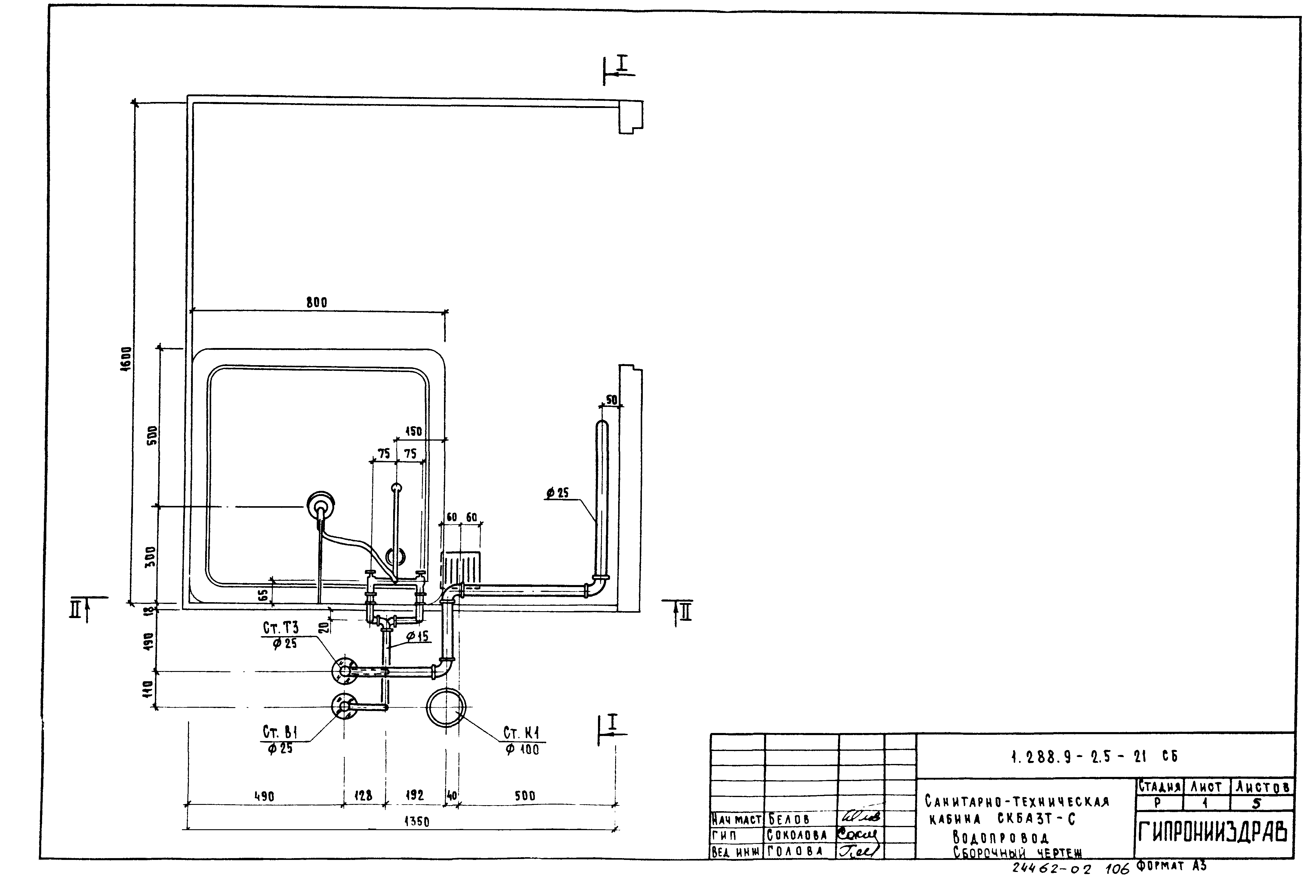
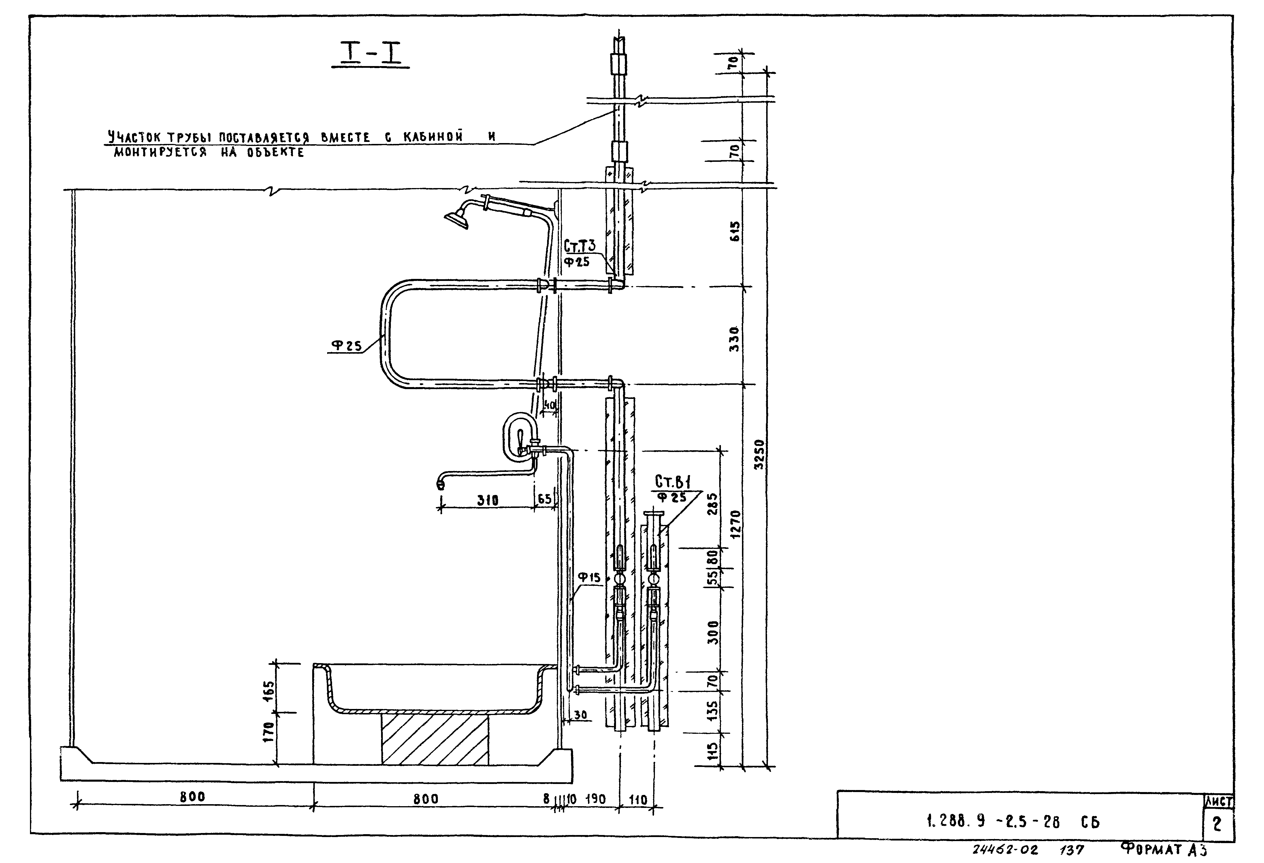
Скачать Серия 1.288.9-2 Выпуск 5. Кабины со стенами из асбестоцементных листов. Тип 2. Санитарно-техническая часть. Рабочие чертежиДата актуализации: 10.08.2017
|
| Обозначение: | Серия 1.288.9-2 |
| Обозначение англ: | Series 1.288.9-2 |
| Статус: | не определен законодательством |
| Название рус.: | Выпуск 5. Кабины со стенами из асбестоцементных листов. Тип 2. Санитарно-техническая часть. Рабочие чертежи |
| Дата добавления в базу: | 01.09.2013 |
| Дата актуализации: | 05.05.2017 |
| Дата введения: | 01.01.1991 |
| Разработан: | ГипроНИИздрав Минздрава СССР |
| Утверждён: | 07.02.1986 Госгражданстрой (Gosgrazhdanstroy 4-86) |
| Издан: | ЦИТП Госстроя СССР (CITP, Gosstroy (USSR) 1990 г. ) |
| Расположен в: |

























































































































































