| ||||||||||||||||||||||||
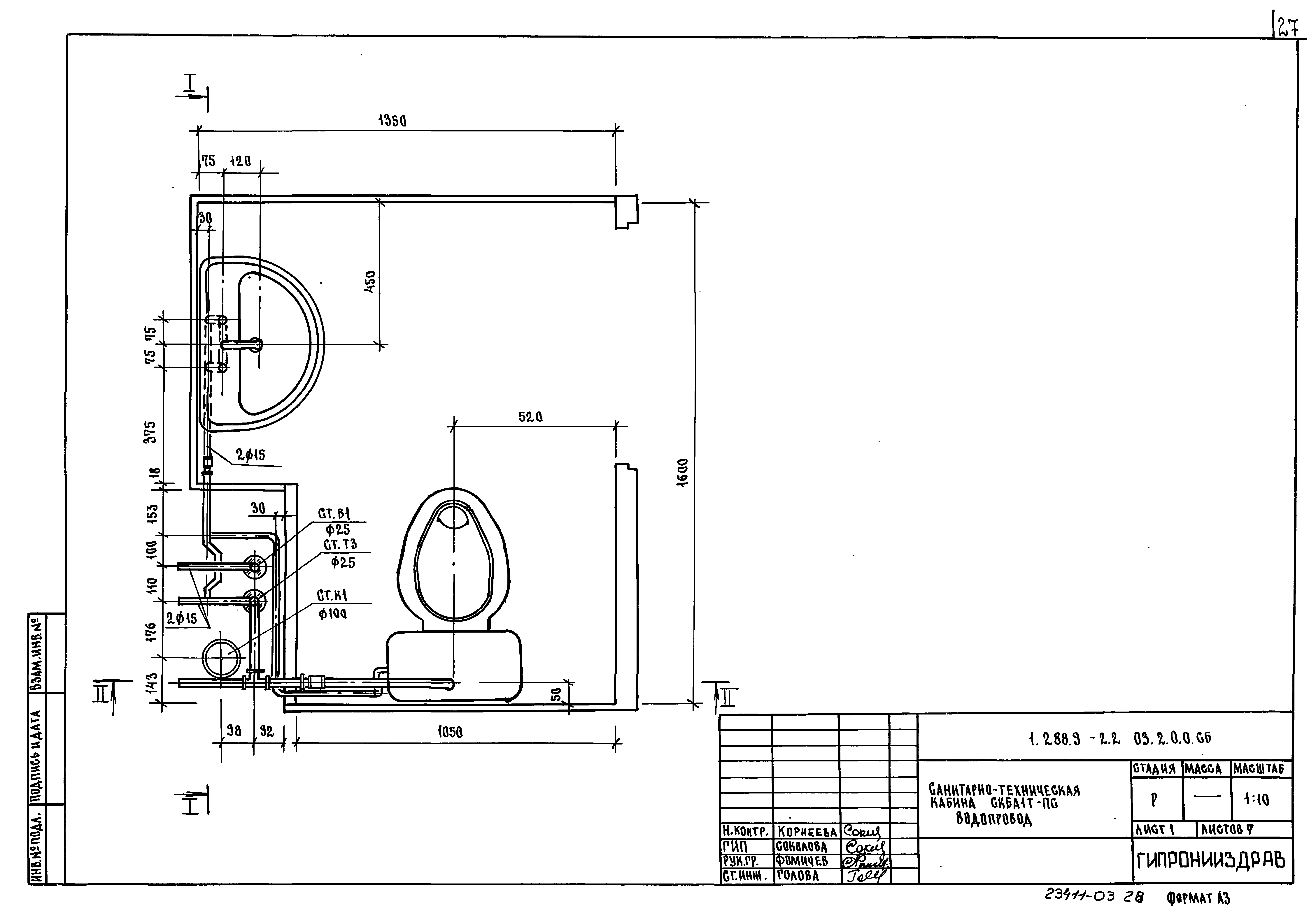
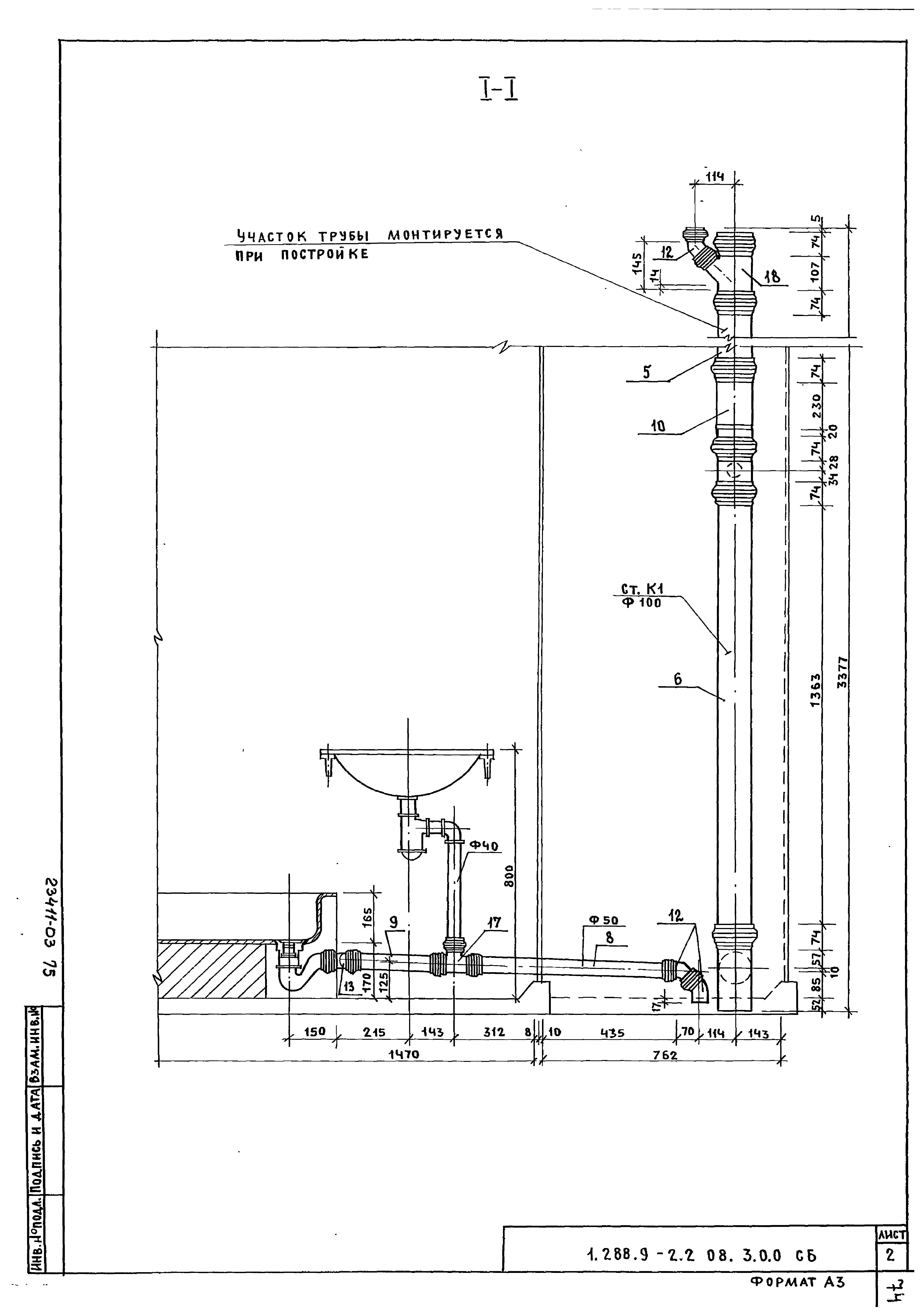
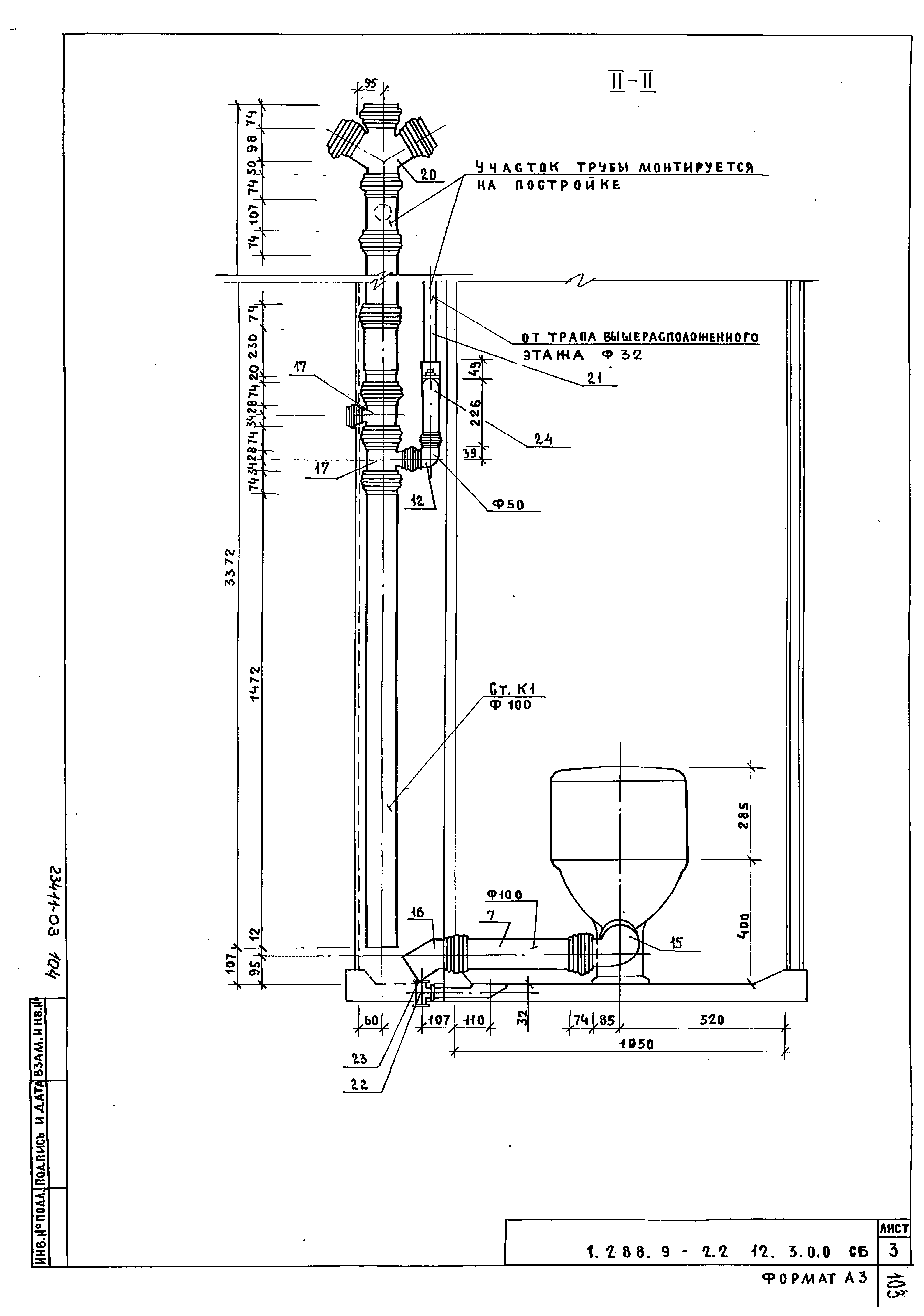
Скачать Серия 1.288.9-2 Выпуск 2. Часть 1. Санитарно-техническая часть. Рабочие чертежиДата актуализации: 10.08.2017
|
| Обозначение: | Серия 1.288.9-2 |
| Обозначение англ: | Series 1.288.9-2 |
| Статус: | не определен законодательством |
| Название рус.: | Выпуск 2. Часть 1. Санитарно-техническая часть. Рабочие чертежи |
| Дата добавления в базу: | 01.09.2013 |
| Дата актуализации: | 05.05.2017 |
| Дата введения: | 01.11.1988 |
| Разработан: | ГипроНИИздрав Минздрава СССР |
| Утверждён: | 21.09.1988 Госкомархитектура (267) |
| Расположен в: |

















































































































































