| ||||||||||||||||||||||||||
Скачать Серия 1.236-5 Выпуск 2. Противопожарные двери деревянные облицованные тонколистовой стальюДата актуализации: 10.08.2017
|
| Обозначение: | Серия 1.236-5 |
| Обозначение англ: | Series 1.236-5 |
| Статус: | не определен законодательством |
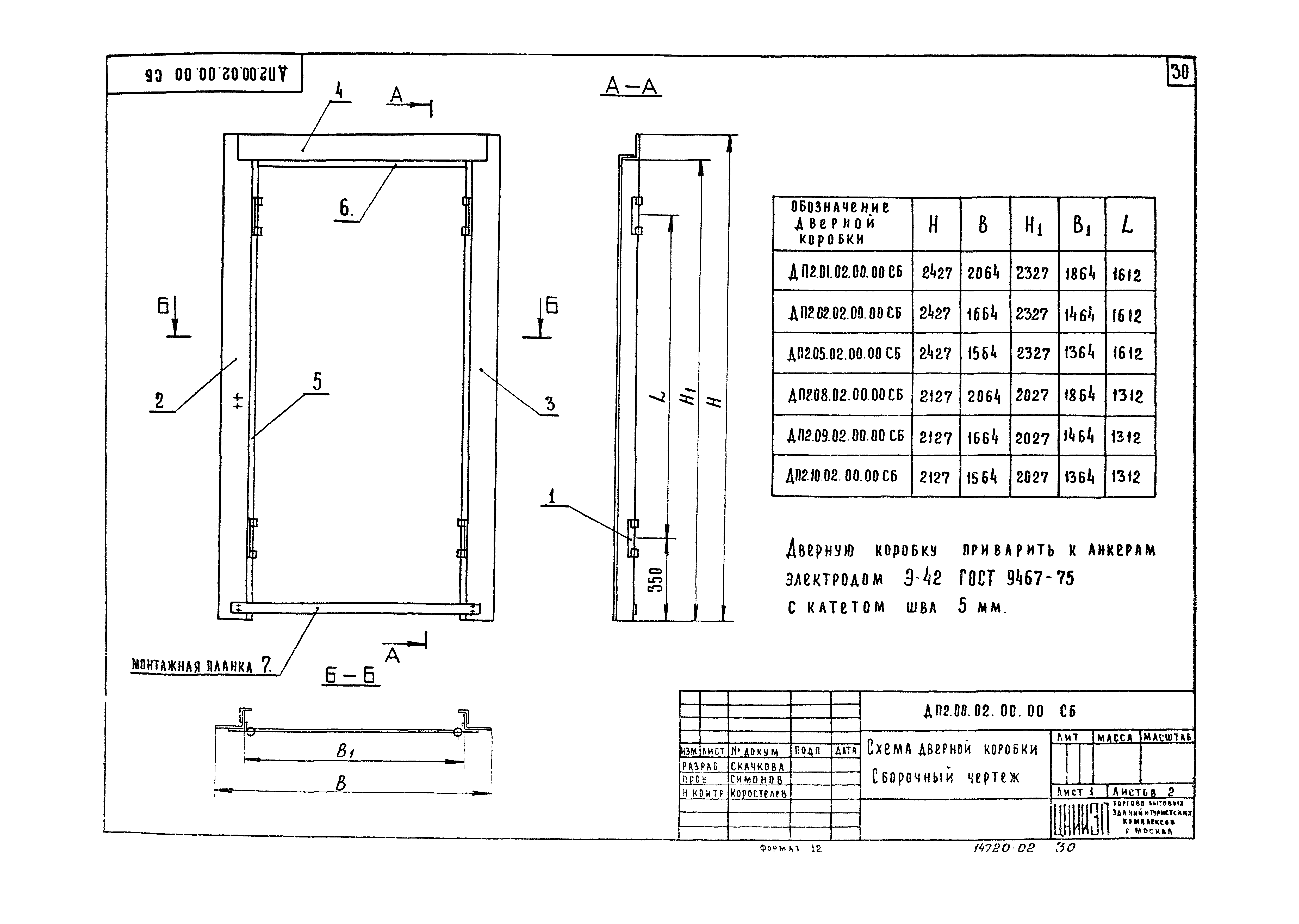
| Название рус.: | Выпуск 2. Противопожарные двери деревянные облицованные тонколистовой сталью |
| Дата добавления в базу: | 01.09.2013 |
| Дата актуализации: | 05.05.2017 |
| Дата введения: | 01.07.1977 |
| Разработан: | ЦНИИЭП торгово-бытовых зданий и туристских комплексов |
| Утверждён: | 18.04.1977 Госгражданстрой (Gosgrazhdanstroy 71) |
| Издан: | ЦИТП Госстроя СССР (CITP, Gosstroy (USSR) 1986 г. ) |
| Расположен в: |









































































































