| ||||||||||||||||||||||||
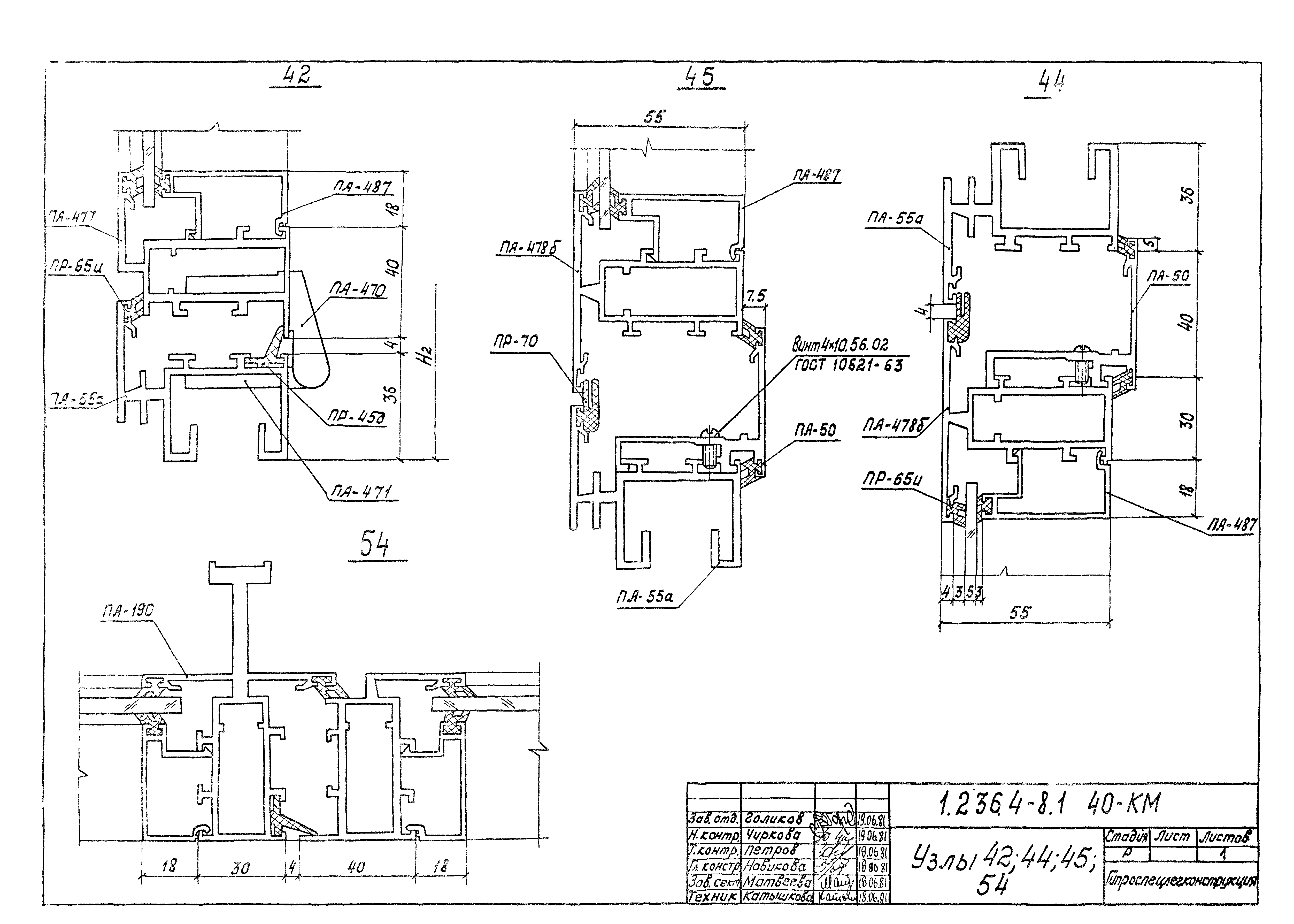
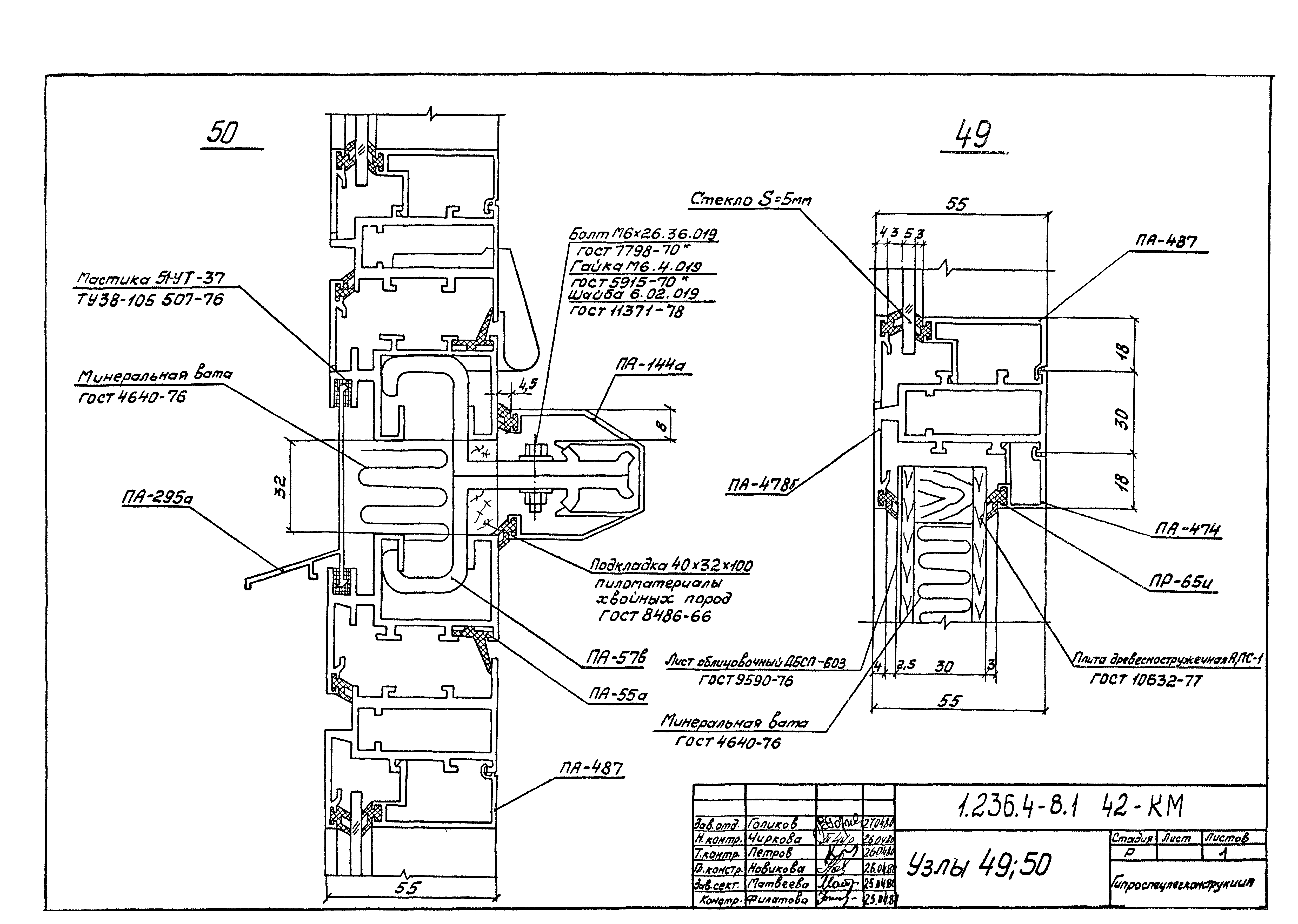
Скачать Серия 1.236.4-8 Выпуск 1. Окна и балконные двери с одинарным и двойным остеклением (стеклопакет) в одинарном переплете. Чертежи КМДата актуализации: 10.08.2017
|
| Обозначение: | Серия 1.236.4-8 |
| Обозначение англ: | Series 1.236.4-8 |
| Статус: | не определен законодательством |
| Название рус.: | Выпуск 1. Окна и балконные двери с одинарным и двойным остеклением (стеклопакет) в одинарном переплете. Чертежи КМ |
| Дата добавления в базу: | 01.09.2013 |
| Дата актуализации: | 05.05.2017 |
| Дата введения: | 01.10.1981 |
| Разработан: | КиевЗНИИЭП Гипроспецлегконструкция |
| Утверждён: | 28.09.1981 Госстрой СССР (Государственный комитет Совета Министров СССР по делам строительства) (USSR Gosstroy 277) |
| Расположен в: |



















































































































































