Информационная система
«Ёшкин Кот»

Скачать базу одним архивом
Скачать обновления
История создания базы
Карта сайта

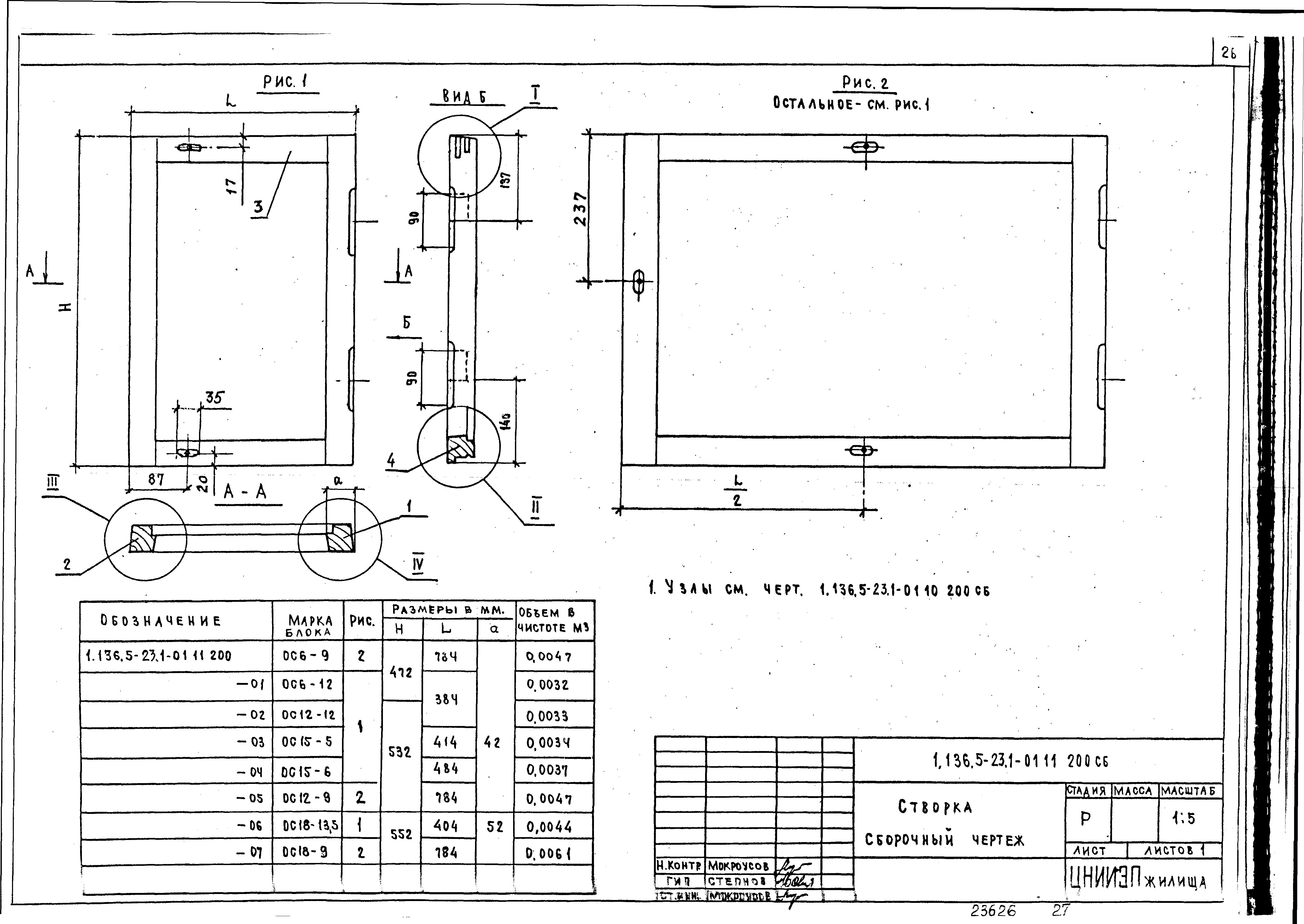
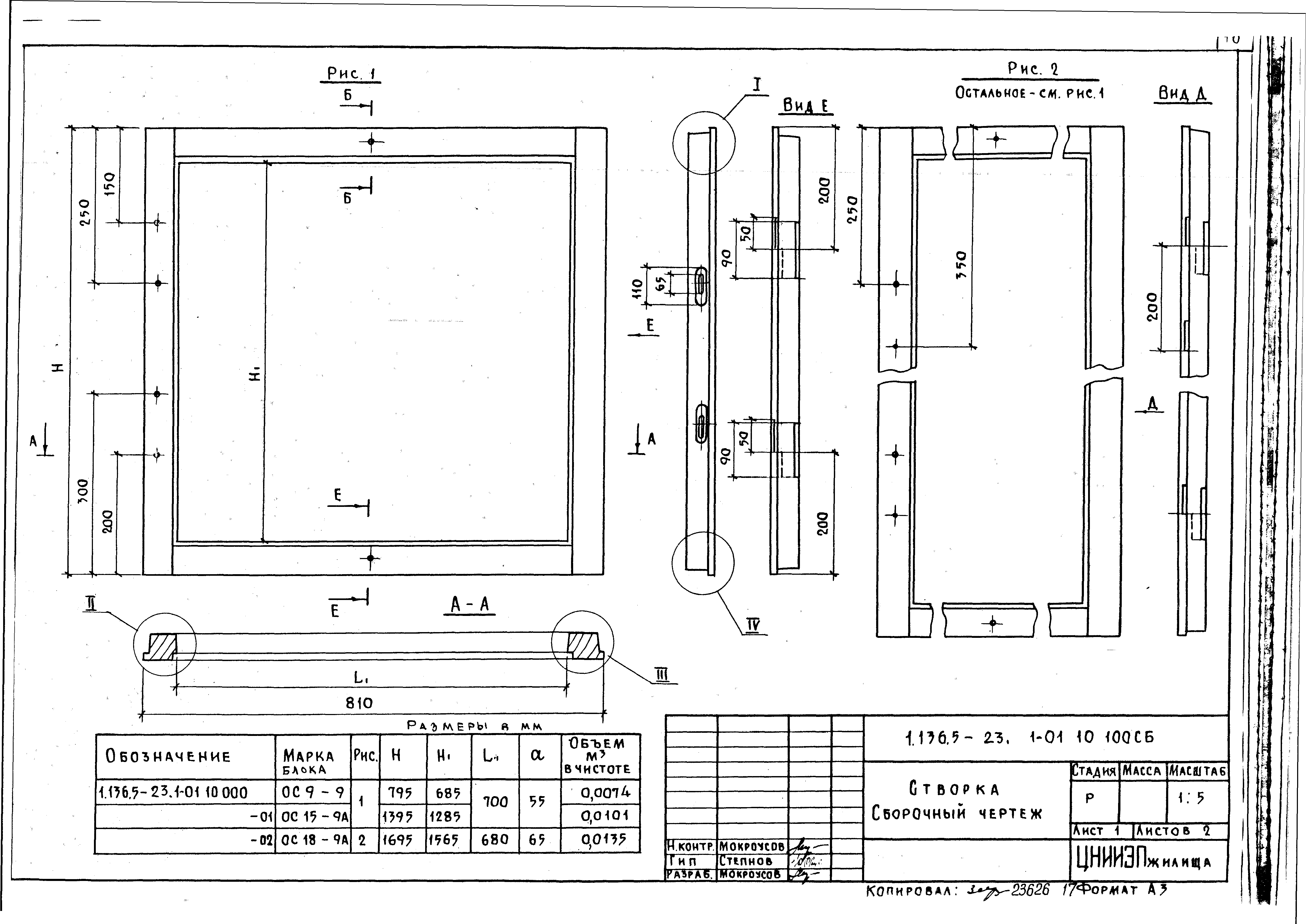
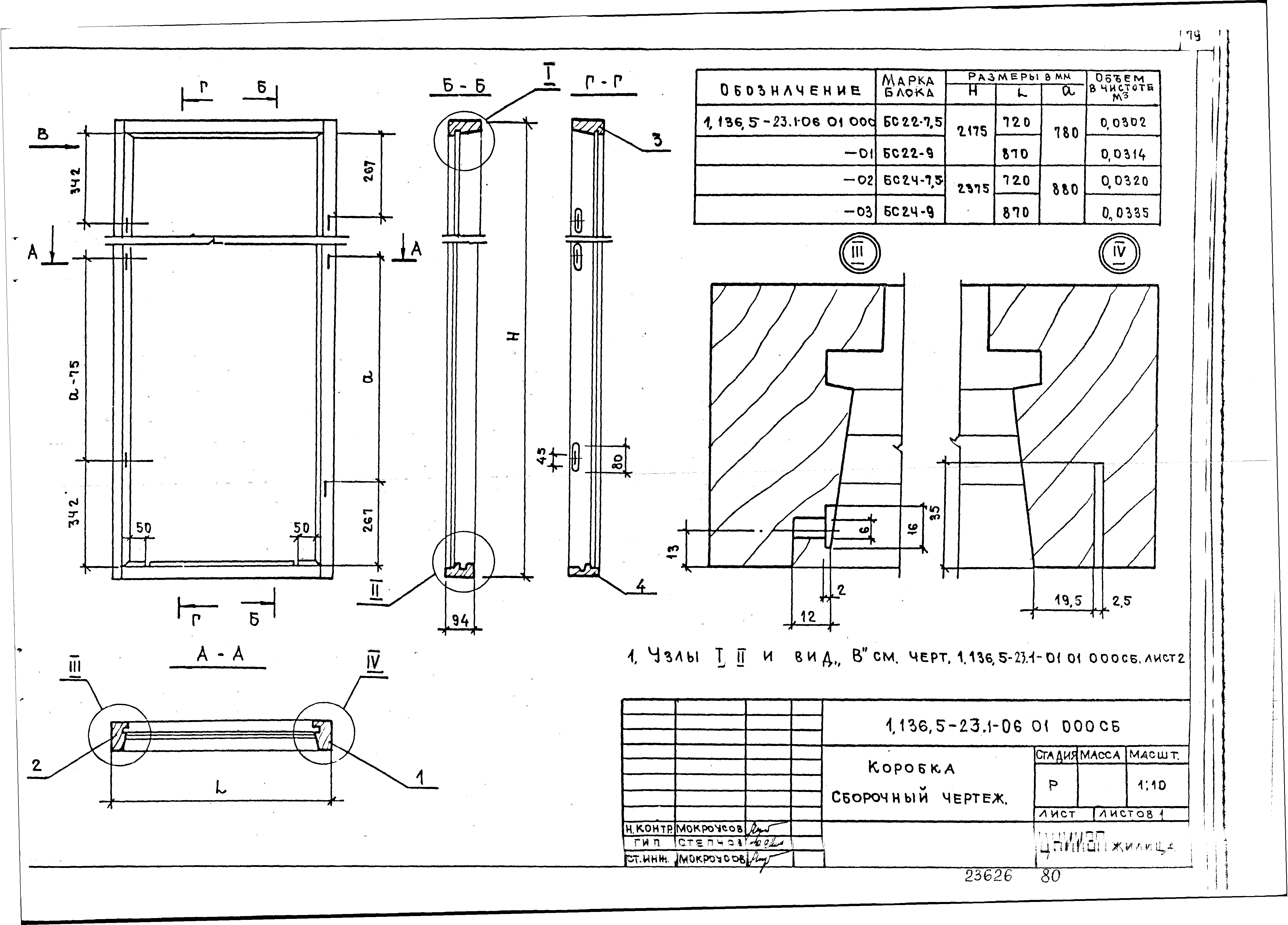
Скачать Серия 1.136.5-23 Выпуск 1. Окна и балконные двери с двойным остеклением со спаренными створками и дверными полотнами по ГОСТ 11214-86. Рабочие чертежи

Дата актуализации: 10.08.2017

Серия 1.136.5-23

Выпуск 1. Окна и балконные двери с двойным остеклением со спаренными створками и дверными полотнами по ГОСТ 11214-86. Рабочие чертежи

Обозначение: Серия 1.136.5-23
Обозначение англ: Series 1.136.5-23
Статус:не определен законодательством
Название рус.:Выпуск 1. Окна и балконные двери с двойным остеклением со спаренными створками и дверными полотнами по ГОСТ 11214-86. Рабочие чертежи
Дата добавления в базу:01.09.2013
Дата актуализации:05.05.2017
Дата введения:25.02.1989
Разработан: ЦНИИЭП жилища
Утверждён:01.02.1989 Госкомархитектура (21)
Издан: ЦИТП Госстроя СССР (CITP, Gosstroy (USSR) 1989 г. )
Расположен в:Техническая документация Строительство Справочные документы Типовые строительные конструкции, изделия и узлы Общероссийский строительный каталог Строительные конструкции, изделия и узлы зданий и сооружений для всех видов строительства Конструкции, изделия и узлы зданий Ограждающие конструкции Окна и балконные двери
Заменяет собой:
Нормативные ссылки:
Серия 1.136.5-23Серия 1.136.5-23Серия 1.136.5-23Серия 1.136.5-23Серия 1.136.5-23Серия 1.136.5-23Серия 1.136.5-23Серия 1.136.5-23Серия 1.136.5-23Серия 1.136.5-23Серия 1.136.5-23Серия 1.136.5-23Серия 1.136.5-23Серия 1.136.5-23Серия 1.136.5-23Серия 1.136.5-23Серия 1.136.5-23Серия 1.136.5-23Серия 1.136.5-23Серия 1.136.5-23Серия 1.136.5-23Серия 1.136.5-23Серия 1.136.5-23Серия 1.136.5-23Серия 1.136.5-23Серия 1.136.5-23Серия 1.136.5-23Серия 1.136.5-23Серия 1.136.5-23Серия 1.136.5-23Серия 1.136.5-23Серия 1.136.5-23Серия 1.136.5-23Серия 1.136.5-23Серия 1.136.5-23Серия 1.136.5-23Серия 1.136.5-23Серия 1.136.5-23Серия 1.136.5-23Серия 1.136.5-23Серия 1.136.5-23Серия 1.136.5-23Серия 1.136.5-23Серия 1.136.5-23Серия 1.136.5-23Серия 1.136.5-23Серия 1.136.5-23Серия 1.136.5-23Серия 1.136.5-23Серия 1.136.5-23Серия 1.136.5-23Серия 1.136.5-23Серия 1.136.5-23Серия 1.136.5-23Серия 1.136.5-23Серия 1.136.5-23Серия 1.136.5-23Серия 1.136.5-23Серия 1.136.5-23Серия 1.136.5-23Серия 1.136.5-23Серия 1.136.5-23Серия 1.136.5-23Серия 1.136.5-23Серия 1.136.5-23Серия 1.136.5-23Серия 1.136.5-23Серия 1.136.5-23Серия 1.136.5-23Серия 1.136.5-23Серия 1.136.5-23Серия 1.136.5-23Серия 1.136.5-23Серия 1.136.5-23Серия 1.136.5-23Серия 1.136.5-23Серия 1.136.5-23Серия 1.136.5-23Серия 1.136.5-23Серия 1.136.5-23Серия 1.136.5-23Серия 1.136.5-23Серия 1.136.5-23Серия 1.136.5-23Серия 1.136.5-23Серия 1.136.5-23Серия 1.136.5-23Серия 1.136.5-23Серия 1.136.5-23Серия 1.136.5-23Серия 1.136.5-23Серия 1.136.5-23

© 2013 Ёшкин Кот :-) Карта сайта