Информационная система
«Ёшкин Кот»

Скачать базу одним архивом
Скачать обновления
История создания базы
Карта сайта

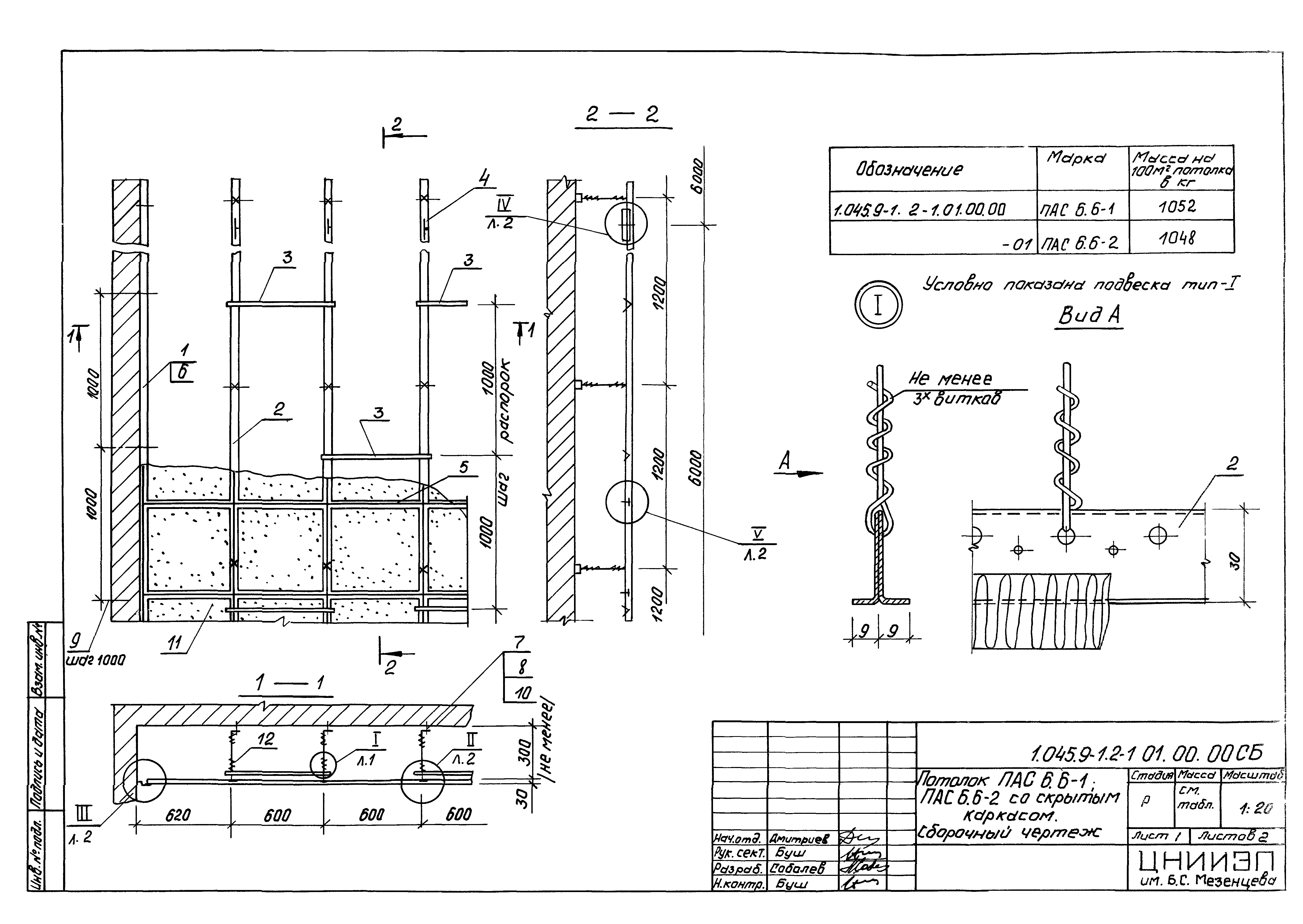
Скачать Серия 1.045.9-1 Выпуск 2-1. Потолки из минераловатных плит. Конструкции и узлы. Рабочие чертежи

Дата актуализации: 10.08.2017

Серия 1.045.9-1

Выпуск 2-1. Потолки из минераловатных плит. Конструкции и узлы. Рабочие чертежи

Обозначение: Серия 1.045.9-1
Обозначение англ: Series 1.045.9-1
Статус:не определен законодательством
Название рус.:Выпуск 2-1. Потолки из минераловатных плит. Конструкции и узлы. Рабочие чертежи
Дата добавления в базу:01.09.2013
Дата актуализации:05.05.2017
Дата введения:01.11.1987
Разработан: ЦНИИЭП им. Б.С. Мезенцева Госгражданстроя
Утверждён:14.08.1987 Госстрой СССР (Государственный комитет Совета Министров СССР по делам строительства) (USSR Gosstroy АЧ-75)
Принят: Промстройпроект (Promstroyproject )
Расположен в:Техническая документация Экология СТРОИТЕЛЬНЫЕ МАТЕРИАЛЫ И СТРОИТЕЛЬСТВО Строительство Общественные здания Строительство Справочные документы Типовые строительные конструкции, изделия и узлы Общероссийский строительный каталог Строительные конструкции, изделия и узлы зданий и сооружений для всех видов строительства Конструкции, изделия и узлы зданий Разные конструктивные элементы, изделия и узлы
Серия 1.045.9-1Серия 1.045.9-1Серия 1.045.9-1Серия 1.045.9-1Серия 1.045.9-1Серия 1.045.9-1Серия 1.045.9-1Серия 1.045.9-1Серия 1.045.9-1Серия 1.045.9-1Серия 1.045.9-1Серия 1.045.9-1Серия 1.045.9-1Серия 1.045.9-1Серия 1.045.9-1Серия 1.045.9-1Серия 1.045.9-1Серия 1.045.9-1Серия 1.045.9-1Серия 1.045.9-1Серия 1.045.9-1Серия 1.045.9-1Серия 1.045.9-1Серия 1.045.9-1Серия 1.045.9-1Серия 1.045.9-1Серия 1.045.9-1Серия 1.045.9-1

© 2013 Ёшкин Кот :-) Карта сайта