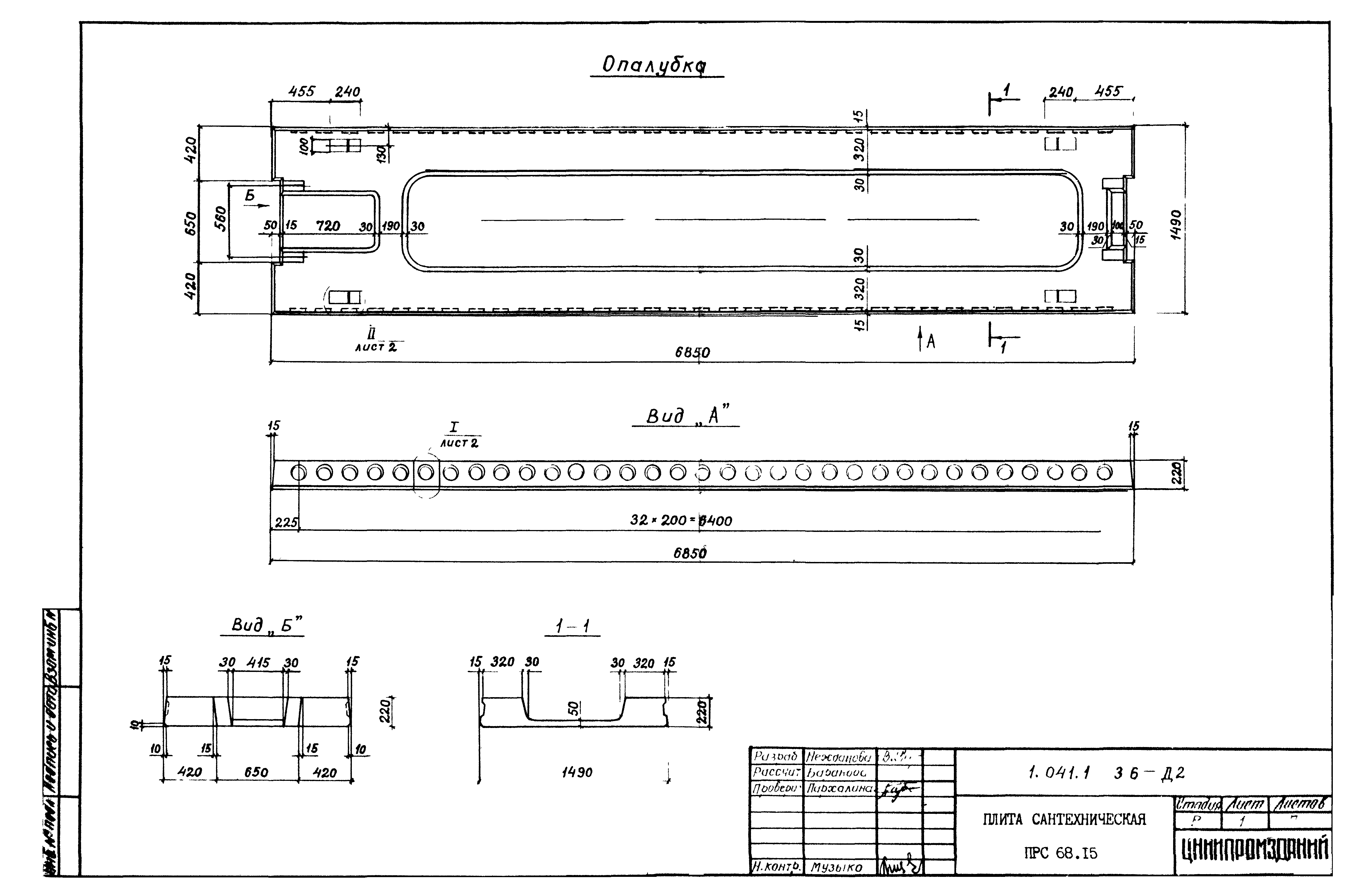
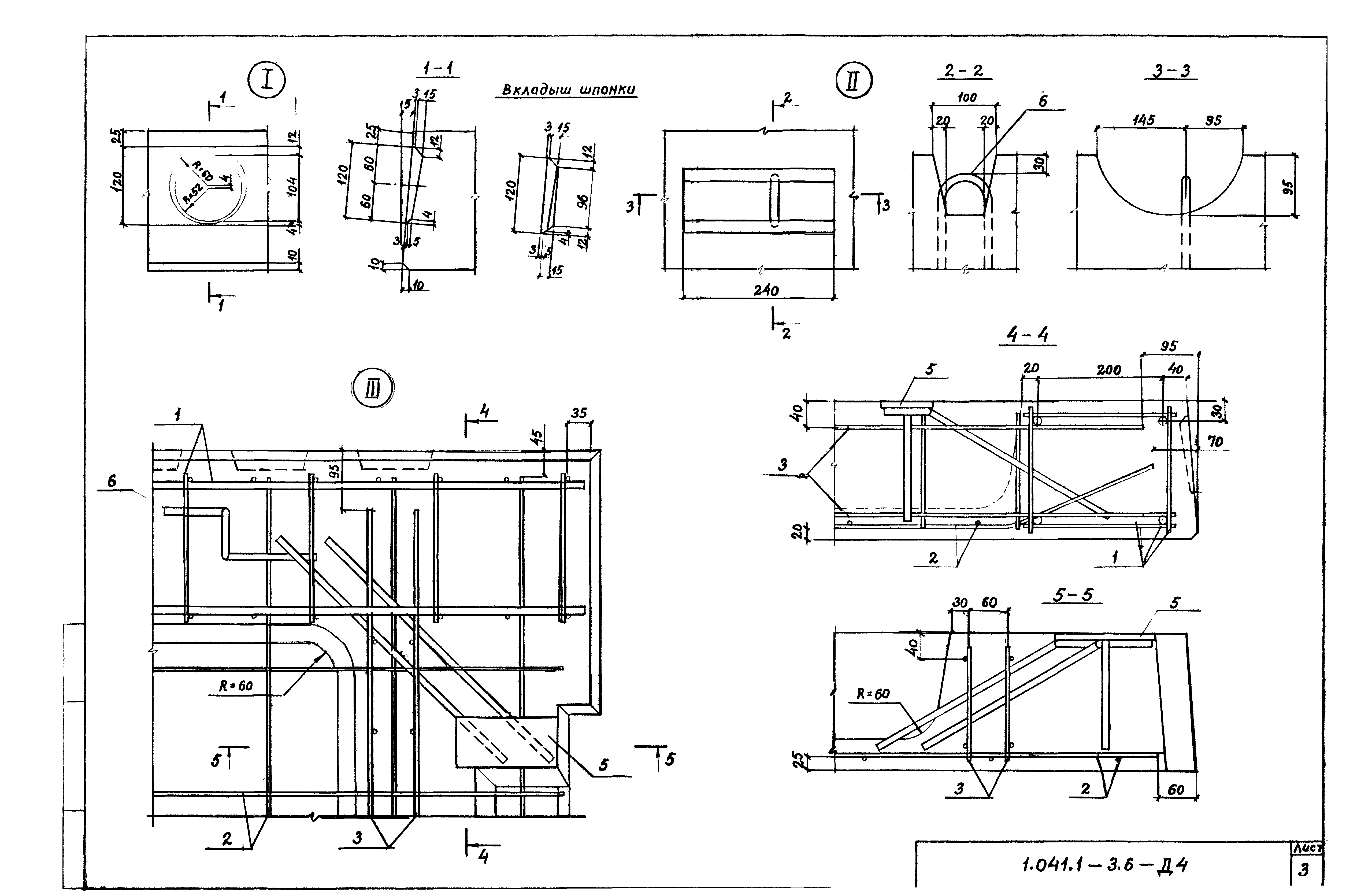
Скачать Серия 1.041.1-3 Выпуск 6. Сантехнические плиты длиной 5650, 6850 и 8650 мм, армированные напрягаемой арматурой из стали классов Ат-IVC и АТ-V, и длиной 2650 мм, армированные арматурой из стали класса А-III, из тяжелого и легкого бетонов. Рабочие чертежиДата актуализации: 10.08.2017 Серия 1.041.1-3
Выпуск 6. Сантехнические плиты длиной 5650, 6850 и 8650 мм, армированные напрягаемой арматурой из стали классов Ат-IVC и АТ-V, и длиной 2650 мм, армированные арматурой из стали класса А-III, из тяжелого и легкого бетонов. Рабочие чертежи| Обозначение: | Серия 1.041.1-3 | | Обозначение англ: | Series 1.041.1-3 | | Статус: | не определен законодательством | | Название рус.: | Выпуск 6. Сантехнические плиты длиной 5650, 6850 и 8650 мм, армированные напрягаемой арматурой из стали классов Ат-IVC и АТ-V, и длиной 2650 мм, армированные арматурой из стали класса А-III, из тяжелого и легкого бетонов. Рабочие чертежи | | Дата добавления в базу: | 01.09.2013 | | Дата актуализации: | 05.05.2017 | | Дата введения: | 01.10.1989 | | Разработан: | НИИЖБ Госстроя СССР ЦНИИпромзданий
| | Утверждён: | 10.05.1989 Госстрой СССР (Государственный комитет Совета Министров СССР по делам строительства) (USSR Gosstroy 4/5-674)
| | Расположен в: |
| | Заменяет собой: | |
                                                       
|