| ||||||||||||||||||||||||||||
Скачать НП 6.2.3-72 Санатории. Лечебно-диагностические отделения и климатолечебные устройстваДата актуализации: 10.08.2017
|
| Обозначение: | НП 6.2.3-72 |
| Обозначение англ: | NP 6.2.3-72 |
| Статус: | не действует |
| Название рус.: | Санатории. Лечебно-диагностические отделения и климатолечебные устройства |
| Дата добавления в базу: | 01.09.2013 |
| Дата актуализации: | 05.05.2017 |
| Дата введения: | 01.01.2003 |
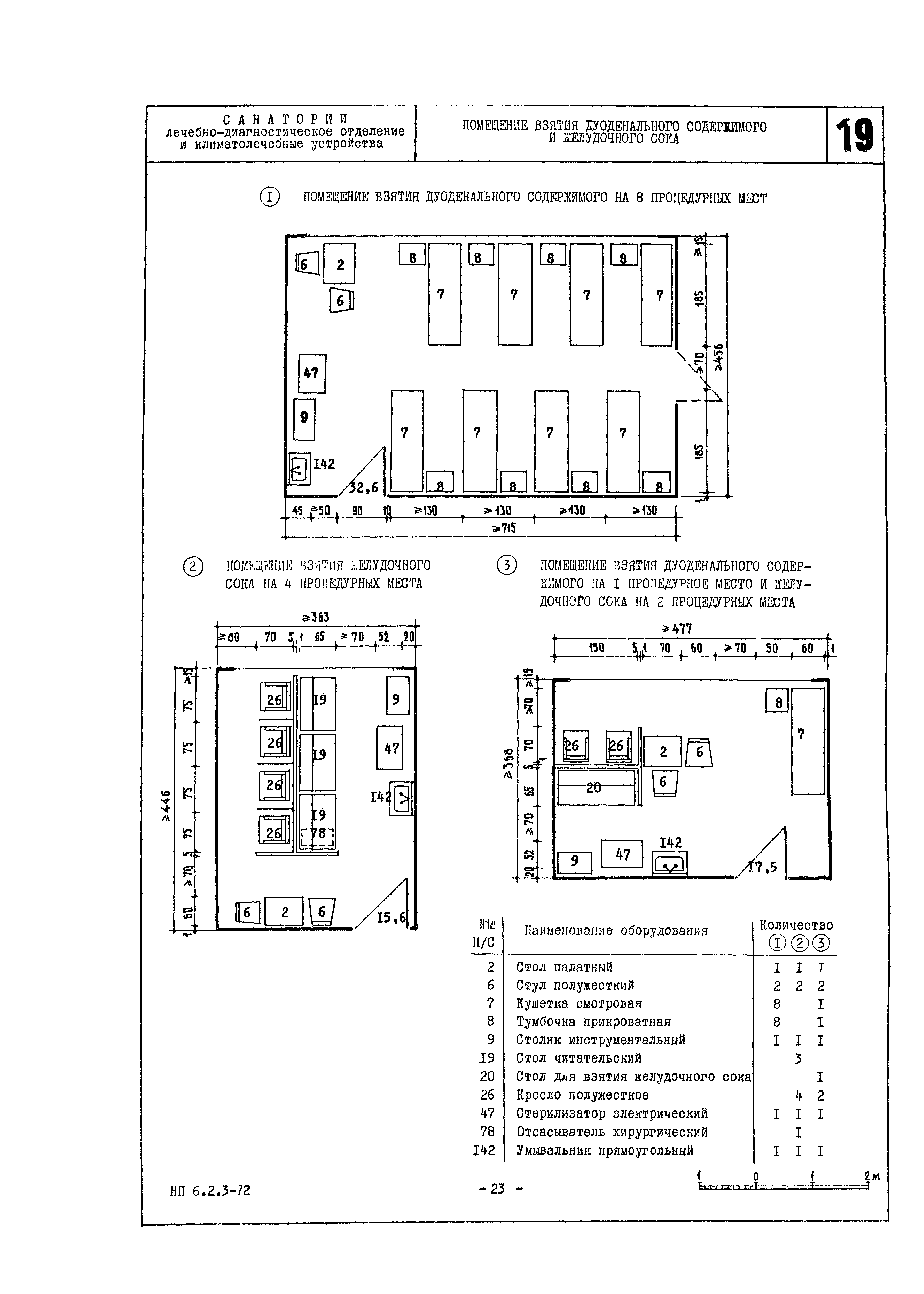
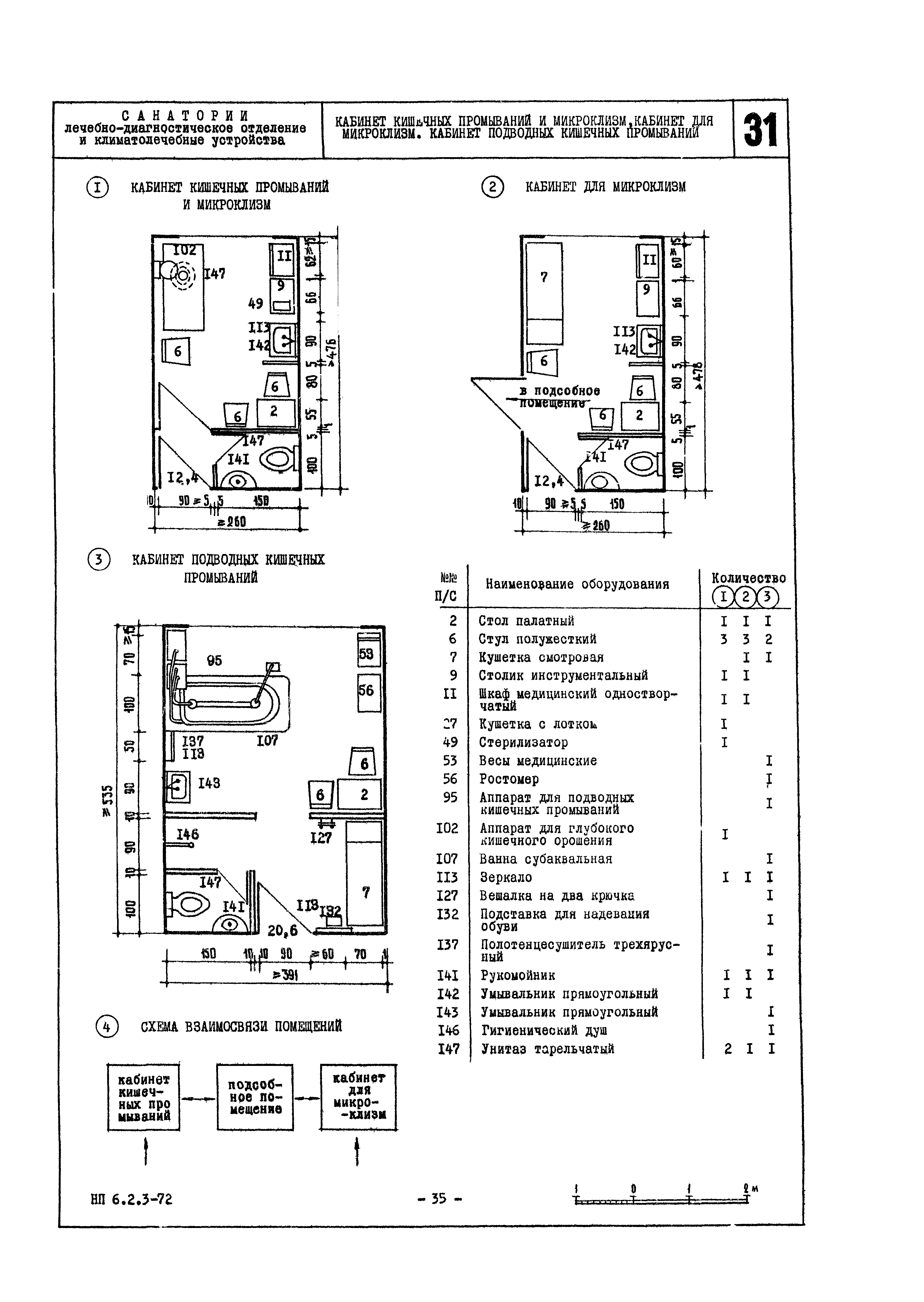
| Оглавление: | Раздел I. Исходные данные Лист 1. Принципиальная схема взаимосвязи основных групп помещений лечебно-диагностического отделения санаториев Лист 2-3. Исходные данные Лист 4-9. Сводный перечень технологического оборудования Лист 10-11. Типы и габариты нестандартного оборудования и мебели Лист 12-14. Основные функциональные зоны Раздел II. Функционально-технологические габаритные схемы. Лист 15. Лаборатория. Помещения для клинических исследований Лист 16. Лаборатория. Помещения для биохимических исследований Лист 17. Лаборатория. Помещения для бактотермологических исследований Лист 18. Лаборатория. Помещения взятия проб крови Лист 19-20. Лаборатория. Помещения взятия дуоденального содержимого и желудочного сока. Помещение приема анализов Лист 21. Кабинет ЭКГ. Фотокомната. Кабинет ректороманоскопии Лист 22. Кабинет врача. Инъекционная. Процедурная Лист 23. Кабинет гинеколога (уролога), совмещенный с процедурной. Кабинет гинеколога (уролога). Процедурная гинеколога Лист 24. Кабинет отоларинголога и офтальмолога с темной комнатой Лист 25. Кабинет стоматологии Лист 26. Кабины для ванных процедур. Кабинет контрастных ванн Лист 27. Душевой зал с раздевальной. Кабины для грязевых процедур Лист 28. Кабинет подводного вытяжения. Кабинет подводного душ-массажа. Кабинет промывания желудка. Лист 29. Кабинет электролечения и теплолечения. Подсобные помещения электролечения и теплолечения Лист 30. Кабинет кишечных промываний. Подсобное помещение кабинетов кишечных промываний и микроклизм Лист 31. Кабинет кишечных промываний и микроклизм. Кабинет для микроклизм. Кабинет промываний и микроклизм Лист 32. Кабинеты кислородотерапии Лист 33. Кабинеты аэромонотерапии Лист 34. Кабинеты ингаляции. Стерилизационная Лист 35. Фотарий Лист 36. Кабинеты сухого вытяжения Лист 37. Кабинеты ортопедической профилактики с кабиной для подготовки повязок и кладовой. Кабинет массажа Лист 38. Зал ЛФК. Кабинет индивидуальных занятий ЛФК Лист 39-40. Лечебный бассейн. План. Разрез. Схема взаимосвязи Лист 41. Климатолечебные устройства. Схемы взаимосвязи Лист 42. Группировка оборудования раздевален для лечебных бассейнов и залов ЛФК Лист 43. Климатолечебные устройства сезонного типа. Группировка мебели и оборудования Лист 44. Помещения для сна на воздухе. Группировка мебели, оборудования и раздевален Лист 45. Зимний аэросолярий. Группировка мебели Раздел III. Примеры планировки Лист 46. Примеры планировки. Помещения для клинических исследований. Помещения для биохимических исследований Лист 47. Примеры планировки. Кабинет отоларинголога и офтальмолога с темной комнатой Лист 48. Рентгеновский кабинет Лист 49. Аптечная комната с дополнительным помещением. Центральная стерилизационная Приложение: Лист 50-51. Рекомендации по применению материалов для отделки стен и потолков Лист 52-53. Рекомендации по применению материалов для отделки полов Раздел I. Исходные данные Лист 1. Принципиальная схема взаимосвязи основных групп помещений лечебно-диагностического отделения санаториев Лист 2-3. Исходные данные Лист 4-9. Сводный перечень технологического оборудования Лист 10-11. Типы и габариты нестандартного оборудования и мебели Лист 12-14. Основные функциональные зоны Раздел II. Функционально-технологические габаритные схемы. Лист 15. Лаборатория. Помещения для клинических исследований Лист 16. Лаборатория. Помещения для биохимических исследований Лист 17. Лаборатория. Помещения для бактотермологических исследований Лист 18. Лаборатория. Помещения взятия проб крови Лист 19-20. Лаборатория. Помещения взятия дуоденального содержимого и желудочного сока. Помещение приема анализов Лист 21. Кабинет ЭКГ. Фотокомната. Кабинет ректороманоскопии Лист 22. Кабинет врача. Инъекционная. Процедурная Лист 23. Кабинет гинеколога (уролога), совмещенный с процедурной. Кабинет гинеколога (уролога). Процедурная гинеколога Лист 24. Кабинет отоларинголога и офтальмолога с темной комнатой Лист 25. Кабинет стоматологии Лист 26. Кабины для ванных процедур. Кабинет контрастных ванн Лист 27. Душевой зал с раздевальной. Кабины для грязевых процедур Лист 28. Кабинет подводного вытяжения. Кабинет подводного душ-массажа. Кабинет промывания желудка. Лист 29. Кабинет электролечения и теплолечения. Подсобные помещения электролечения и теплолечения Лист 30. Кабинет кишечных промываний. Подсобное помещение кабинетов кишечных промываний и микроклизм Лист 31. Кабинет кишечных промываний и микроклизм. Кабинет для микроклизм. Кабинет промываний и микроклизм Лист 32. Кабинеты кислородотерапии Лист 33. Кабинеты аэромонотерапии Лист 34. Кабинеты ингаляции. Стерилизационная Лист 35. Фотарий Лист 36. Кабинеты сухого вытяжения Лист 37. Кабинеты ортопедической профилактики с кабиной для подготовки повязок и кладовой. Кабинет массажа Лист 38. Зал ЛФК. Кабинет индивидуальных занятий ЛФК Лист 39-40. Лечебный бассейн. План. Разрез. Схема взаимосвязи Лист 41. Климатолечебные устройства. Схемы взаимосвязи Лист 42. Группировка оборудования раздевален для лечебных бассейнов и залов ЛФК Лист 43. Климатолечебные устройства сезонного типа. Группировка мебели и оборудования Лист 44. Помещения для сна на воздухе. Группировка мебели, оборудования и раздевален Лист 45. Зимний аэросолярий. Группировка мебели Раздел III. Примеры планировки Лист 46. Примеры планировки. Помещения для клинических исследований. Помещения для биохимических исследований Лист 47. Примеры планировки. Кабинет отоларинголога и офтальмолога с темной комнатой Лист 48. Рентгеновский кабинет Лист 49. Аптечная комната с дополнительным помещением. Центральная стерилизационная Приложение: Лист 50-51. Рекомендации по применению материалов для отделки стен и потолков Лист 52-53. Рекомендации по применению материалов для отделки полов |
| Разработан: | ЦНИИЭП учебных зданий Госгражданстроя ЦНИИЭП лечебно-курортных зданий Госгражданстроя ЦНИИЭП жилища |
| Утверждён: | 25.12.1972 Госгражданстрой (Gosgrazhdanstroy 245) |
| Издан: | ЦИТП Госстроя СССР (CITP, Gosstroy (USSR) 1972 г. ) |
| Расположен в: |






























































