| ||||||||||||||||||||||||||||||
Скачать НП 7.2.3-72 Основные помещения зданий научно-исследовательских институтов, проектных организаций и административных зданий. Административные здания. Помещения банков и сберкассДата актуализации: 10.08.2017
|
| Обозначение: | НП 7.2.3-72 |
| Обозначение англ: | NP 7.2.3-72 |
| Статус: | заменен |
| Название рус.: | Основные помещения зданий научно-исследовательских институтов, проектных организаций и административных зданий. Административные здания. Помещения банков и сберкасс |
| Дата добавления в базу: | 01.09.2013 |
| Дата актуализации: | 05.05.2017 |
| Дата введения: | 01.01.1977 |
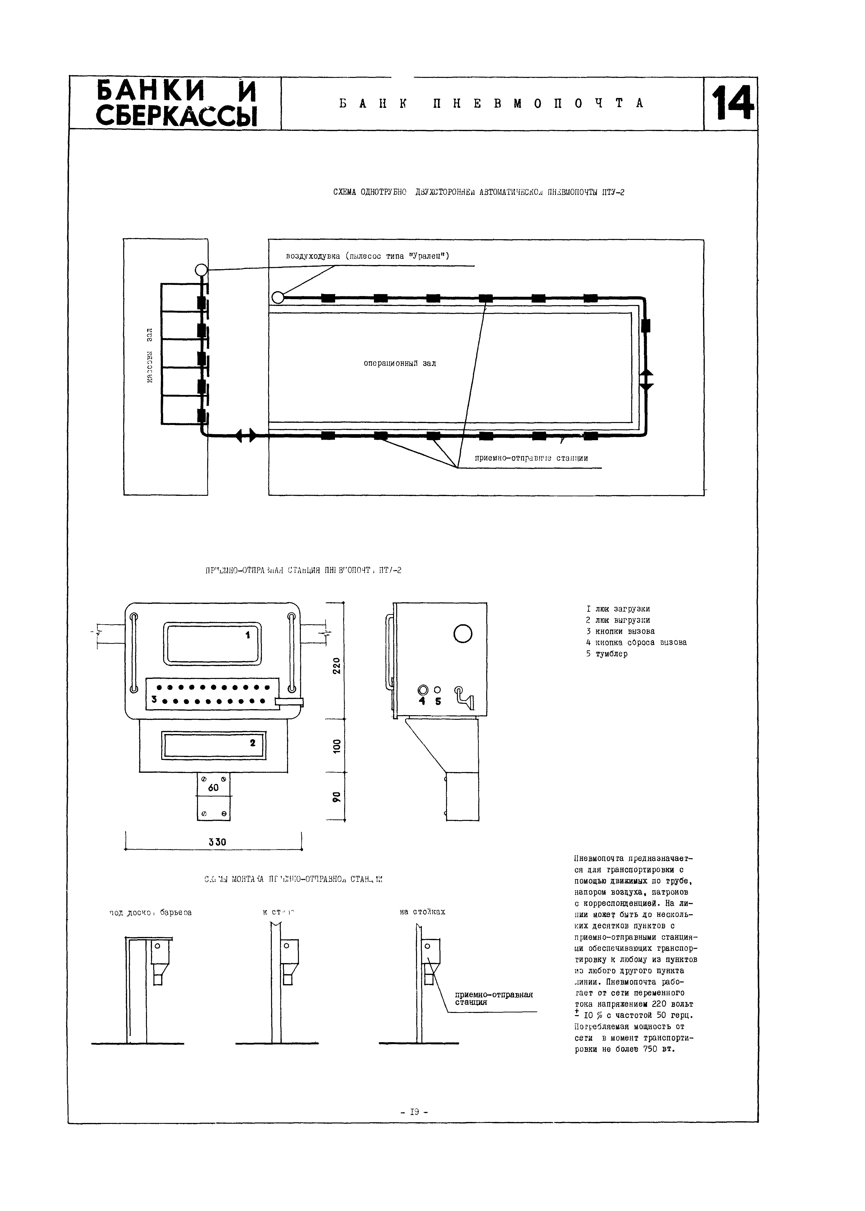
| Оглавление: | Предисловие Организационная структура и схема взаимосвязи помещений Исходные габариты в зависимости от функциональных поз человека Номенклатура мебели Мебель для банков. Габариты Типы рабочих мест банка Типы рабочих место сберкассы Банк. Габаритные схемы и исходные данные Банк. Операционный зал. Примеры планировок Банк. Операционный зал. Пример планировки Банк. Операционные кассы и кассы пересчёта. Примеры планировок Сберкасса. Операционный зал. Примеры планировок Банк. Пневмопочта Банк. Оборудование машиносчетного бюро Конференцзал |
| Разработан: | ЦНИИЭП зрелищных зданий и спортивных сооружений Госгражданстроя ЦНИИЭП учебных зданий Госгражданстроя ЦНИИЭП жилища |
| Утверждён: | 18.10.1972 Госгражданстрой (Gosgrazhdanstroy 192) |
| Издан: | ЦИТП Госстроя СССР (CITP, Gosstroy (USSR) 1972 г. ) |
| Расположен в: | |
| Чем заменён: |



















