| ||||||||||||||||||||||||||
Скачать Серия 1.843.5-1 Выпуск 2. Составные части плит. Рабочие чертежиДата актуализации: 10.08.2017
|
| Обозначение: | Серия 1.843.5-1 |
| Обозначение англ: | Series 1.843.5-1 |
| Статус: | не определен законодательством |
| Название рус.: | Выпуск 2. Составные части плит. Рабочие чертежи |
| Дата добавления в базу: | 01.09.2013 |
| Дата актуализации: | 05.05.2017 |
| Дата введения: | 01.01.1988 |
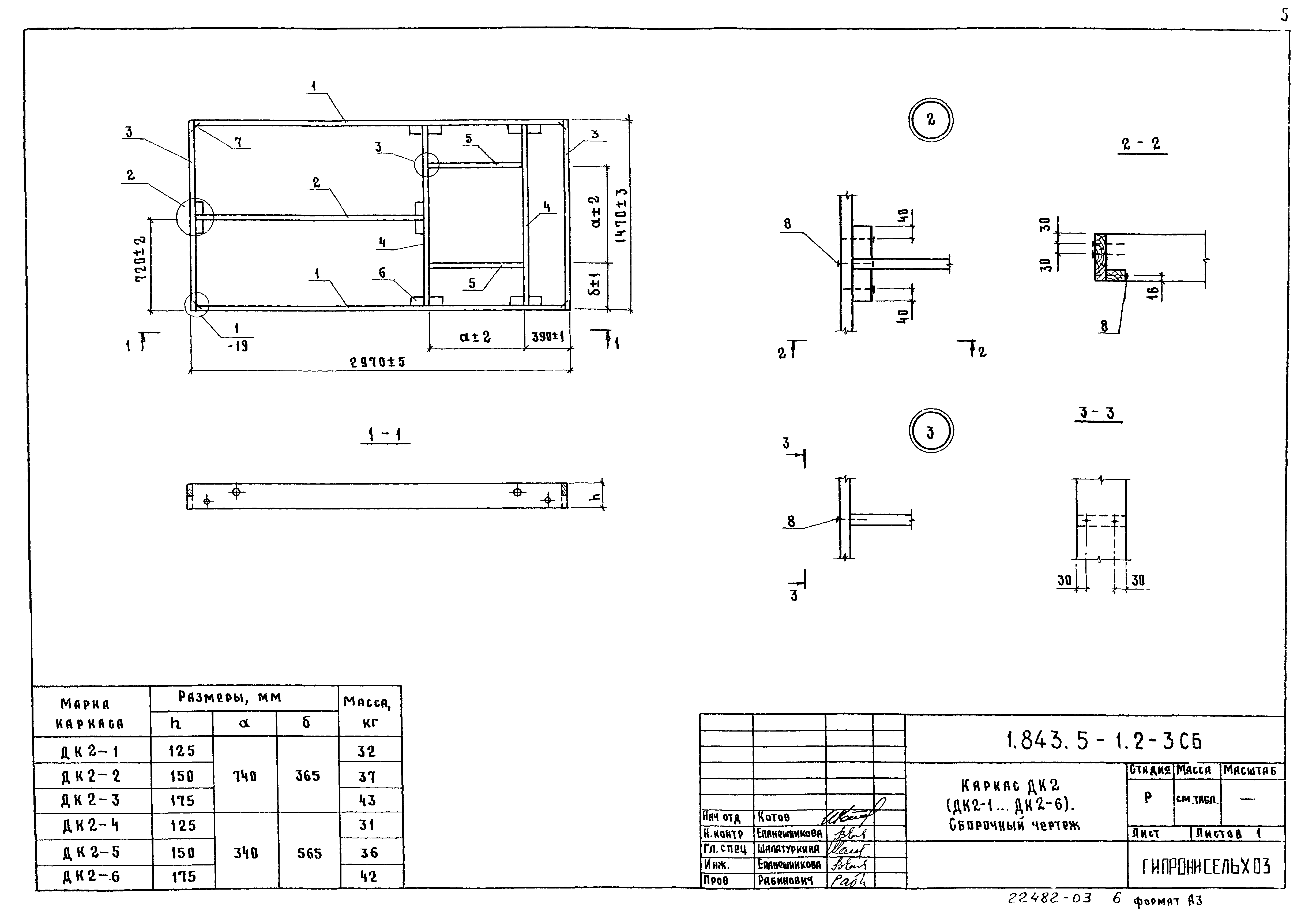
| Оглавление: | 1.843.5-1.2-1ТТ Технические требования 1.843.5-1.2-2 Каркас ДК1 (ДК1-1…ДК1-6) 1.843.5-1.2-3 Каркас ДК2 (ДК2-1…ДК2-6) 1.843.5-1.2-3 СБ Каркас ДК2 (ДК2-1…ДК2-6). Сборочный чертеж 1.843.5-1.2-4 Каркас ДК3 (ДК3-1…ДК3-6) 1.843.5-1.2-5 Каркас ДК4 (ДК4-1…ДК4-6) 1.843.5-1.2-6 Каркас ДК5 (ДК5-1…ДК5-6) 1.843.5-1.2-7 Каркас ДК6 (ДК6-1…ДК6-3) 1.843.5-1.2-8 Каркас ДК7 (ДК7-1…ДК7-6) 1.843.5-1.2-9 Каркас ДК8 (ДК8-1…ДК8-6) 1.843.5-1.2-9 СБ Каркас ДК8 (ДК8-1…ДК8-6). Сборочный чертеж 1.843.5-1.2-10 Ребро Р1 (Р1…Р1-5) 1.843.5-1.2-11 Ребро Р2 (Р2…Р2-11) 1.843.5-1.2-12 Ребро Р3 (Р3…Р3-14) 1.843.5-1.2-13 Ребро Р4 (Р4…Р4-8) 1.843.5-1.2-14 Ребро Р5 (Р5…Р5-8) 1.843.5-1.2-15 Ребро Р6 (Р6…Р6-11) 1.843.5-1.2-16 Ребро Р7 (Р7…Р7-14) 1.843.5-1.2-17 Ребро Р8 (Р8…Р8-8) 1.843.5-1.2-18 Ребро Р9 (Р9…Р9-5) 1.843.5-1.2-19 Узел 1 1.843.5-1.2-20 Подвеска П1 1.843.5-1.2-21 Скоба С1 1.843.5-1.2-22 Обшивка Л1 (Л1…Л1-16) 1.843.5-1.2-23 Обшивка Л2 (Л2…Л2-5) |
| Разработан: | ЦНИИСК им. В.А. Кучеренко Гипрониисельхоз ЦНИИЭПсельстрой |
| Утверждён: | 26.08.1987 Госстрой СССР (Государственный комитет Совета Министров СССР по делам строительства) (USSR Gosstroy 55) |
| Расположен в: |





















