| ||||||||||||||||||||||||
Скачать Серия 1.465.1-18 Выпуск 2. Плиты комплексные типа КПГ и КПВ длиной 12 м. Рабочие чертежиДата актуализации: 10.08.2017
|
| Обозначение: | Серия 1.465.1-18 |
| Обозначение англ: | Series 1.465.1-18 |
| Статус: | действует |
| Название рус.: | Выпуск 2. Плиты комплексные типа КПГ и КПВ длиной 12 м. Рабочие чертежи |
| Дата добавления в базу: | 01.09.2013 |
| Дата актуализации: | 05.05.2017 |
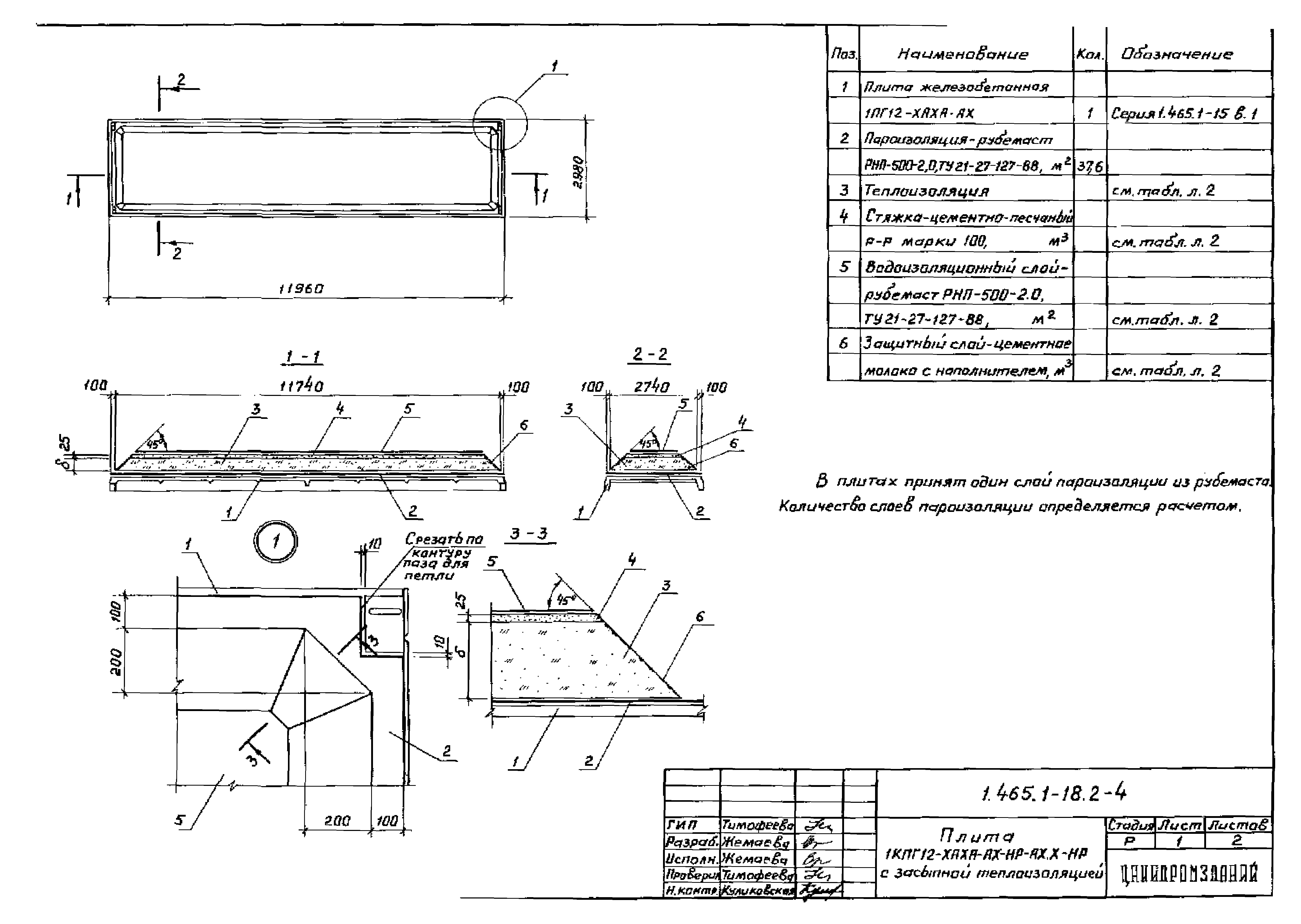
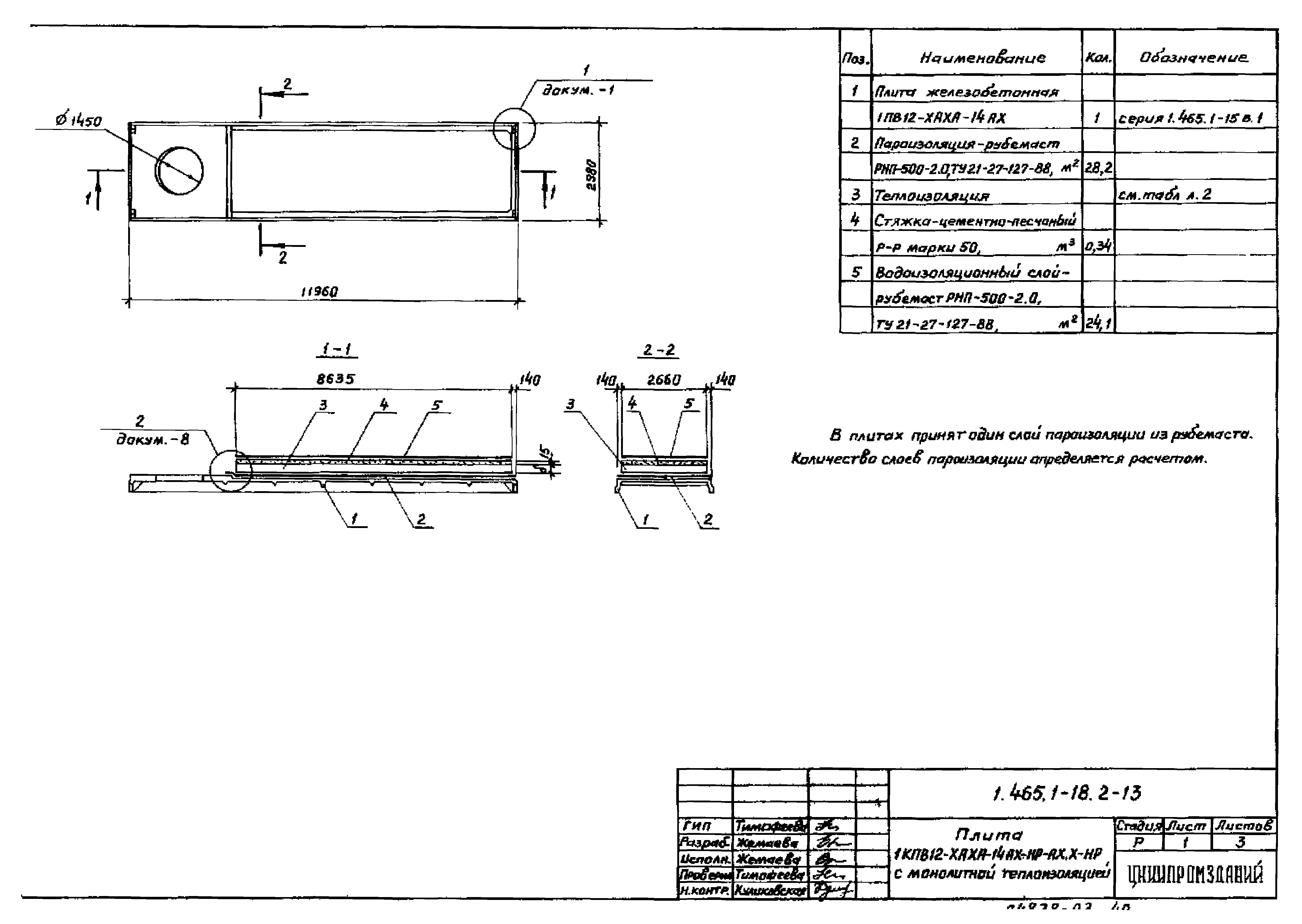
| Оглавление: | 1.465.1-18.2-ТУ Технические условия 1.465.1-18.2-1 Плита 1КПГ12-ХАХА-АХ-НР-АХ.Х-НР с плитной теплоизоляцией 1.465.1-18.2-2 Плита 1КПГ12-ХАХА-АХ-НР-АХ.Х-БНР с теплоизоляцией из плит пенополистирольных 1.465.1-18.2-3 Плита 1КПГ12-ХАХА-АХ-НР-АХ.Х-НР с монолитной теплоизоляцией 1.465.1-18.2-4 Плита 1КПГ12-ХАХА-АХ-НР-АХ.Х-НР с засыпной теплоизоляцией 1.465.1-18.2-5 Плита 1КПГ12-ХАХА-АХ-НР-АХ.Х-НР с засыпной теплоизоляцией и ограждающими бортиками 1.465.1-18.2-6 Плиты 1КПВ12-ХАХА-4АХ-НР-АХ.Х-НР, 1КПВ12-ХАХА-7АХ-НР-АХ.Х-НР, 1КПВ12-ХАХА-10АХ-НР-АХ.Х-НР с плитной теплоизоляцией 1.465.1-18.2-7 Плиты 1КПВ12-ХАХА-4АХ-НР-АХ.Х-БНР, 1КПВ12-ХАХА-7АХ-НР-АХ.Х-БНР, 1КПВ12-ХАХА-10АХ-НР-АХ.Х-БНР с теплоизоляцией из плит пенополистирольных 1.465.1-18.2-8 Плиты 1КПВ12-ХАХА-4АХ-НР-АХ.Х-НР, 1КПВ12-ХАХА-7АХ-НР-АХ.Х-НР, 1КПВ12-ХАХА-10АХ-НР-АХ.Х-НР с монолитной теплоизоляцией 1.465.1-18.2-9 Плиты 1КПВ12-ХАХА-4АХ-НР-АХ.Х-НР, 1КПВ12-ХАХА-7АХ-НР-АХ.Х-НР, 1КПВ12-ХАХА-10АХ-НР-АХ.Х-НР с засыпной теплоизоляцией 1.465.1-18.2-10 Плиты 1КПВ12-ХАХА-4АХ-НР-АХ.Х-НР, 1КПВ12-ХАХА-7АХ-НР-АХ.Х-НР, 1КПВ12-ХАХА-10АХ-НР-АХ.Х-НР с засыпной теплоизоляцией и ограждающими бортиками 1.465.1-18.2-11 Плита 1КПВ12-ХАХА-14АХ-НР-АХ.Х-НР с плитной теплоизоляцией 1.465.1-18.2-12 Плита 1КПВ12-ХАХА-14АХ-НР-АХ.Х-БНР с теплоизоляцией из плит пенополистирольных 1.465.1-18.2-13 Плита 1КПВ12-ХАХА-14АХ-НР-АХ.Х-НР с монолитной теплоизоляцией 1.465.1-18.2-14 Плита 1КПВ12-ХАХА-14АХ-НР-АХ.Х-НР с засыпной теплоизоляцией 1.465.1-18.2-15 Плита 1КПВ12-ХАХА-14АХ-НР-АХ.Х-НР с засыпной теплоизоляцией и ограждающими бортиками 1.465.1-18.2-16 Плита 2КПГ12-ХАХА-АХ-НР-АХ.Х-НР с плитной теплоизоляцией 1.465.1-18.2-17 Плита 2КПГ12-ХАХА-АХ-НР-АХ.Х-БНР с теплоизоляцией из плит пенополистирольных 1.465.1-18.2-18 Плита 2КПГ12-ХАХА-АХ-НР-АХ.Х-НР с монолитной теплоизоляцией 1.465.1-18.2-19 Плита 2КПГ12-ХАХА-АХ-НР-АХ.Х-НР с засыпной теплоизоляцией 1.465.1-18.2-20 Плита 2КПГ12-ХАХА-АХ-НР-АХ.Х-НР с засыпной теплоизоляцией и ограждающими бортиками 1.465.1-18.2-21 Плиты 2КПВ12-ХАХА-4АХ-НР-АХ.Х-НР, 2КПВ12-ХАХА-7АХ-НР-АХ.Х-НР с плитной теплоизоляцией 1.465.1-18.2-22 Плиты 2КПВ12-ХАХА-4АХ-НР-АХ.Х-БНР, 2КПВ12-ХАХА-7АХ-НР-АХ.Х-БНР с теплоизоляцией из плит пенополистирольных 1.465.1-18.2-23 Плиты 2КПВ12-ХАХА-4АХ-НР-АХ.Х-НР, 2КПВ12-ХАХА-7АХ-НР-АХ.Х-НР с монолитной теплоизоляцией 1.465.1-18.2-24 Плиты 2КПВ12-ХАХА-4АХ-НР-АХ.Х-НР, 2КПВ12-ХАХА-7АХ-НР-АХ.Х-НР с засыпной теплоизоляцией 1.465.1-18.2-25 Плиты 2КПВ12-ХАХА-4АХ-НР-АХ.Х-НР, 2КПВ12-ХАХА-7АХ-НР-АХ.Х-НР с засыпной теплоизоляцией и ограждающими бортиками 1.465.1-18.2-26 Плиты 2КПВ12-ХАХА-10АХ-НР-АХ.Х-НР, 2КПВ12-ХАХА-14АХ-НР-АХ.Х-НР с плитной теплоизоляцией 1.465.1-18.2-27 Плиты 2КПВ12-ХАХА-10АХ-НР-АХ.Х-БНР, 2КПВ12-ХАХА-14АХ-НР-АХ.Х-БНР с теплоизоляцией из плит пенополистирольных 1.465.1-18.2-28 Плиты 2КПВ12-ХАХА-10АХ-НР-АХ.Х-НР, 2КПВ12-ХАХА-14АХ-НР-АХ.Х-НР с монолитной теплоизоляцией 1.465.1-18.2-29 Плиты 2КПВ12-ХАХА-10АХ-НР-АХ.Х-НР, 2КПВ12-ХАХА-14АХ-НР-АХ.Х-НР с засыпной теплоизоляцией 1.465.1-18.2-30 Плиты 2КПВ12-ХАХА-10АХ-НР-АХ.Х-НР, 2КПВ12-ХАХА-14АХ-НР-АХ.Х-НР с засыпной теплоизоляцией и ограждающими бортиками 1.465.1-18.2-31 Плита 3КПГ12-ХАХА-АХ-НР-АХ.Х-НР с плитной теплоизоляцией 1.465.1-18.2-32 Плита 3КПГ12-ХАХА-АХ-НР-АХ.Х-БНР с теплоизоляцией из плит пенополистирольных 1.465.1-18.2-33 Плита 3КПГ12-ХАХА-АХ-НР-АХ.Х-НР с монолитной теплоизоляцией 1.465.1-18.2-34 Плита 3КПГ12-ХАХА-АХ-НР-АХ.Х-НР с засыпной теплоизоляцией 1.465.1-18.2-35 Плита 3КПГ12-ХАХА-АХ-НР-АХ.Х-НР с засыпной теплоизоляцией и ограждающими бортиками 1.465.1-18.2-36 Плиты 3КПВ12-ХАХА-4АХ-НР-АХ.Х-НР, 3КПВ12-ХАХА-7АХ-НР-АХ.Х-НР, 3КПВ12-ХАХА-10АХ-НР-АХ.Х-НР с плитной теплоизоляцией 1.465.1-18.2-37 Плиты 3КПВ12-ХАХА-4АХ-НР-АХ.Х-БНР, 3КПВ12-ХАХА-7АХ-НР-АХ.Х-БНР, 3КПВ12-ХАХА-10АХ-НР-АХ.Х-БНР с теплоизоляцией из плит пенополистирольных 1.465.1-18.2-38 Плиты 3КПВ12-ХАХА-4АХ-НР-АХ.Х-НР, 3КПВ12-ХАХА-7АХ-НР-АХ.Х-НР, 3КПВ12-ХАХА-10АХ-НР-АХ.Х-НР с монолитной теплоизоляцией 1.465.1-18.2-39 Плиты 3КПВ12-ХАХА-4АХ-НР-АХ.Х-НР, 3КПВ12-ХАХА-7АХ-НР-АХ.Х-НР, 3КПВ12-ХАХА-10АХ-НР-АХ.Х-НР с засыпной теплоизоляцией 1.465.1-18.2-40 Плиты 3КПВ12-ХАХА-4АХ-НР-АХ.Х-НР, 3КПВ12-ХАХА-7АХ-НР-АХ.Х-НР, 3КПВ12-ХАХА-10АХ-НР-АХ.Х-НР с засыпной теплоизоляцией и ограждающими бортиками 1.465.1-18.2-ТУ Технические условия 1.465.1-18.2-1 Плита 1КПГ12-ХАХА-АХ-НР-АХ.Х-НР с плитной теплоизоляцией 1.465.1-18.2-2 Плита 1КПГ12-ХАХА-АХ-НР-АХ.Х-БНР с теплоизоляцией из плит пенополистирольных 1.465.1-18.2-3 Плита 1КПГ12-ХАХА-АХ-НР-АХ.Х-НР с монолитной теплоизоляцией 1.465.1-18.2-4 Плита 1КПГ12-ХАХА-АХ-НР-АХ.Х-НР с засыпной теплоизоляцией 1.465.1-18.2-5 Плита 1КПГ12-ХАХА-АХ-НР-АХ.Х-НР с засыпной теплоизоляцией и ограждающими бортиками 1.465.1-18.2-6 Плиты 1КПВ12-ХАХА-4АХ-НР-АХ.Х-НР, 1КПВ12-ХАХА-7АХ-НР-АХ.Х-НР, 1КПВ12-ХАХА-10АХ-НР-АХ.Х-НР с плитной теплоизоляцией 1.465.1-18.2-7 Плиты 1КПВ12-ХАХА-4АХ-НР-АХ.Х-БНР, 1КПВ12-ХАХА-7АХ-НР-АХ.Х-БНР, 1КПВ12-ХАХА-10АХ-НР-АХ.Х-БНР с теплоизоляцией из плит пенополистирольных 1.465.1-18.2-8 Плиты 1КПВ12-ХАХА-4АХ-НР-АХ.Х-НР, 1КПВ12-ХАХА-7АХ-НР-АХ.Х-НР, 1КПВ12-ХАХА-10АХ-НР-АХ.Х-НР с монолитной теплоизоляцией 1.465.1-18.2-9 Плиты 1КПВ12-ХАХА-4АХ-НР-АХ.Х-НР, 1КПВ12-ХАХА-7АХ-НР-АХ.Х-НР, 1КПВ12-ХАХА-10АХ-НР-АХ.Х-НР с засыпной теплоизоляцией 1.465.1-18.2-10 Плиты 1КПВ12-ХАХА-4АХ-НР-АХ.Х-НР, 1КПВ12-ХАХА-7АХ-НР-АХ.Х-НР, 1КПВ12-ХАХА-10АХ-НР-АХ.Х-НР с засыпной теплоизоляцией и ограждающими бортиками 1.465.1-18.2-11 Плита 1КПВ12-ХАХА-14АХ-НР-АХ.Х-НР с плитной теплоизоляцией 1.465.1-18.2-12 Плита 1КПВ12-ХАХА-14АХ-НР-АХ.Х-БНР с теплоизоляцией из плит пенополистирольных 1.465.1-18.2-13 Плита 1КПВ12-ХАХА-14АХ-НР-АХ.Х-НР с монолитной теплоизоляцией 1.465.1-18.2-14 Плита 1КПВ12-ХАХА-14АХ-НР-АХ.Х-НР с засыпной теплоизоляцией 1.465.1-18.2-15 Плита 1КПВ12-ХАХА-14АХ-НР-АХ.Х-НР с засыпной теплоизоляцией и ограждающими бортиками 1.465.1-18.2-16 Плита 2КПГ12-ХАХА-АХ-НР-АХ.Х-НР с плитной теплоизоляцией 1.465.1-18.2-17 Плита 2КПГ12-ХАХА-АХ-НР-АХ.Х-БНР с теплоизоляцией из плит пенополистирольных 1.465.1-18.2-18 Плита 2КПГ12-ХАХА-АХ-НР-АХ.Х-НР с монолитной теплоизоляцией 1.465.1-18.2-19 Плита 2КПГ12-ХАХА-АХ-НР-АХ.Х-НР с засыпной теплоизоляцией 1.465.1-18.2-20 Плита 2КПГ12-ХАХА-АХ-НР-АХ.Х-НР с засыпной теплоизоляцией и ограждающими бортиками 1.465.1-18.2-21 Плиты 2КПВ12-ХАХА-4АХ-НР-АХ.Х-НР, 2КПВ12-ХАХА-7АХ-НР-АХ.Х-НР с плитной теплоизоляцией 1.465.1-18.2-22 Плиты 2КПВ12-ХАХА-4АХ-НР-АХ.Х-БНР, 2КПВ12-ХАХА-7АХ-НР-АХ.Х-БНР с теплоизоляцией из плит пенополистирольных 1.465.1-18.2-23 Плиты 2КПВ12-ХАХА-4АХ-НР-АХ.Х-НР, 2КПВ12-ХАХА-7АХ-НР-АХ.Х-НР с монолитной теплоизоляцией 1.465.1-18.2-24 Плиты 2КПВ12-ХАХА-4АХ-НР-АХ.Х-НР, 2КПВ12-ХАХА-7АХ-НР-АХ.Х-НР с засыпной теплоизоляцией 1.465.1-18.2-25 Плиты 2КПВ12-ХАХА-4АХ-НР-АХ.Х-НР, 2КПВ12-ХАХА-7АХ-НР-АХ.Х-НР с засыпной теплоизоляцией и ограждающими бортиками 1.465.1-18.2-26 Плиты 2КПВ12-ХАХА-10АХ-НР-АХ.Х-НР, 2КПВ12-ХАХА-14АХ-НР-АХ.Х-НР с плитной теплоизоляцией 1.465.1-18.2-27 Плиты 2КПВ12-ХАХА-10АХ-НР-АХ.Х-БНР, 2КПВ12-ХАХА-14АХ-НР-АХ.Х-БНР с теплоизоляцией из плит пенополистирольных 1.465.1-18.2-28 Плиты 2КПВ12-ХАХА-10АХ-НР-АХ.Х-НР, 2КПВ12-ХАХА-14АХ-НР-АХ.Х-НР с монолитной теплоизоляцией 1.465.1-18.2-29 Плиты 2КПВ12-ХАХА-10АХ-НР-АХ.Х-НР, 2КПВ12-ХАХА-14АХ-НР-АХ.Х-НР с засыпной теплоизоляцией 1.465.1-18.2-30 Плиты 2КПВ12-ХАХА-10АХ-НР-АХ.Х-НР, 2КПВ12-ХАХА-14АХ-НР-АХ.Х-НР с засыпной теплоизоляцией и ограждающими бортиками 1.465.1-18.2-31 Плита 3КПГ12-ХАХА-АХ-НР-АХ.Х-НР с плитной теплоизоляцией 1.465.1-18.2-32 Плита 3КПГ12-ХАХА-АХ-НР-АХ.Х-БНР с теплоизоляцией из плит пенополистирольных 1.465.1-18.2-33 Плита 3КПГ12-ХАХА-АХ-НР-АХ.Х-НР с монолитной теплоизоляцией 1.465.1-18.2-34 Плита 3КПГ12-ХАХА-АХ-НР-АХ.Х-НР с засыпной теплоизоляцией 1.465.1-18.2-35 Плита 3КПГ12-ХАХА-АХ-НР-АХ.Х-НР с засыпной теплоизоляцией и ограждающими бортиками 1.465.1-18.2-36 Плиты 3КПВ12-ХАХА-4АХ-НР-АХ.Х-НР, 3КПВ12-ХАХА-7АХ-НР-АХ.Х-НР, 3КПВ12-ХАХА-10АХ-НР-АХ.Х-НР с плитной теплоизоляцией 1.465.1-18.2-37 Плиты 3КПВ12-ХАХА-4АХ-НР-АХ.Х-БНР, 3КПВ12-ХАХА-7АХ-НР-АХ.Х-БНР, 3КПВ12-ХАХА-10АХ-НР-АХ.Х-БНР с теплоизоляцией из плит пенополистирольных 1.465.1-18.2-38 Плиты 3КПВ12-ХАХА-4АХ-НР-АХ.Х-НР, 3КПВ12-ХАХА-7АХ-НР-АХ.Х-НР, 3КПВ12-ХАХА-10АХ-НР-АХ.Х-НР с монолитной теплоизоляцией 1.465.1-18.2-39 Плиты 3КПВ12-ХАХА-4АХ-НР-АХ.Х-НР, 3КПВ12-ХАХА-7АХ-НР-АХ.Х-НР, 3КПВ12-ХАХА-10АХ-НР-АХ.Х-НР с засыпной теплоизоляцией 1.465.1-18.2-40 Плиты 3КПВ12-ХАХА-4АХ-НР-АХ.Х-НР, 3КПВ12-ХАХА-7АХ-НР-АХ.Х-НР, 3КПВ12-ХАХА-10АХ-НР-АХ.Х-НР с засыпной теплоизоляцией и ограждающими бортиками |
| Разработан: | АО ЦНИИпромзданий НИИЖБ НИИСФ |
| Утверждён: | 11.06.1990 Главпроект Госстроя России |
| Расположен в: |



































































































