Скачать Серия 5.905-25.05 Выпуск 1. Часть 2. Оборудование, узлы, детали. Рабочие чертежиДата актуализации: 10.08.2017 Серия 5.905-25.05
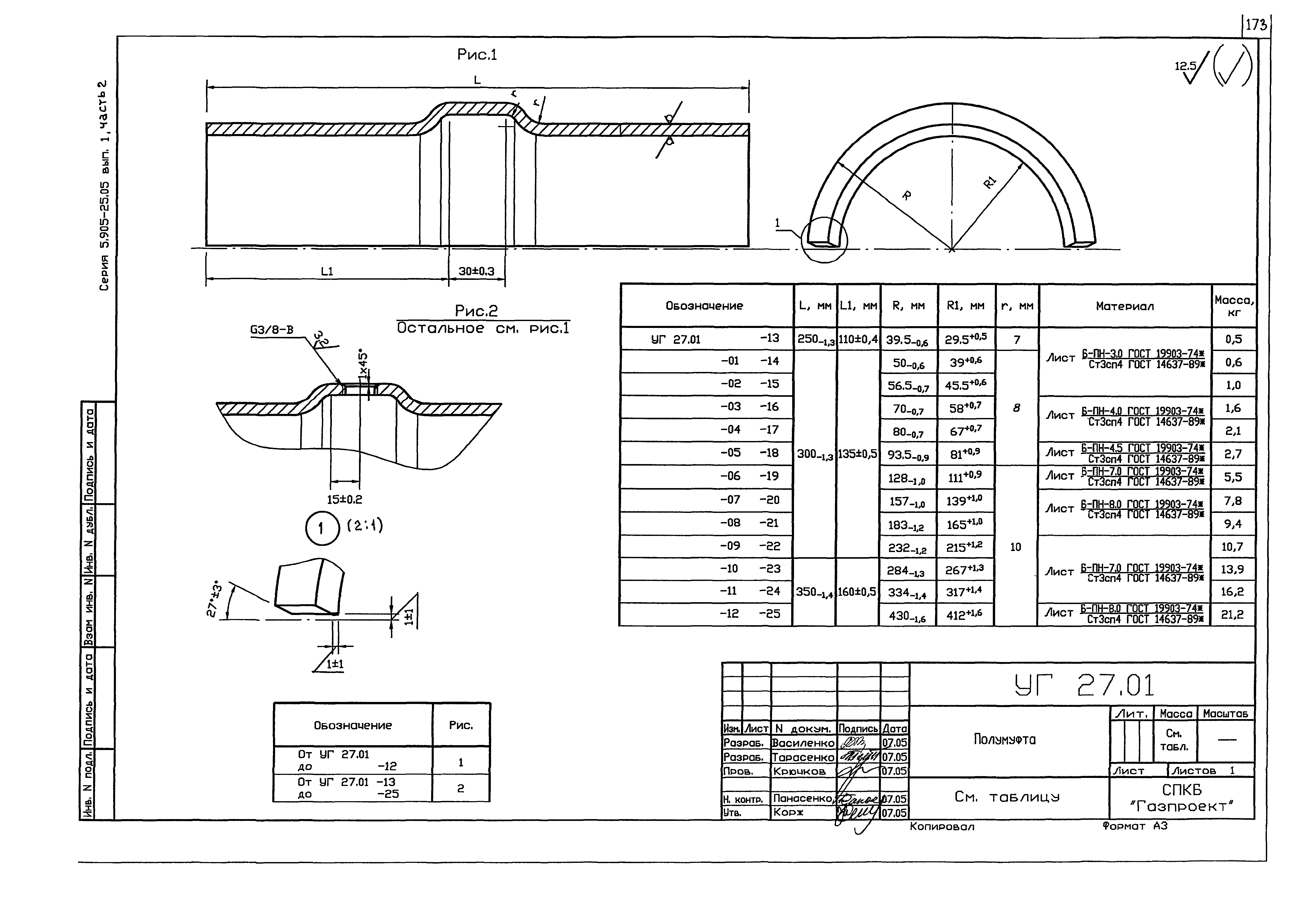
Выпуск 1. Часть 2. Оборудование, узлы, детали. Рабочие чертежиОбозначение: | Серия 5.905-25.05 | Обозначение англ: | Series 5.905-25.05 | Статус: | не определен законодательством | Название рус.: | Выпуск 1. Часть 2. Оборудование, узлы, детали. Рабочие чертежи | Дата добавления в базу: | 01.09.2013 | Дата актуализации: | 05.05.2017 | Дата введения: | 07.11.2005 | Разработан: | ОАО СПКБ Газпроект -БТЦ
| Утверждён: | 03.11.2005 АО Росгазификация (Rosgazifikatsiya AO 51)
| Расположен в: |
| Заменяет собой: | |
                                                                                                                                      
|