| ||||||||||||||||||||||||||||
Скачать Серия 2.432-3 Выпуск 1. Монтажные узлы. Рабочие чертежиДата актуализации: 10.08.2017
|
| Обозначение: | Серия 2.432-3 |
| Обозначение англ: | Series 2.432-3 |
| Статус: | действует |
| Название рус.: | Выпуск 1. Монтажные узлы. Рабочие чертежи |
| Дата добавления в базу: | 01.09.2013 |
| Дата актуализации: | 05.05.2017 |
| Дата введения: | 01.04.1980 |
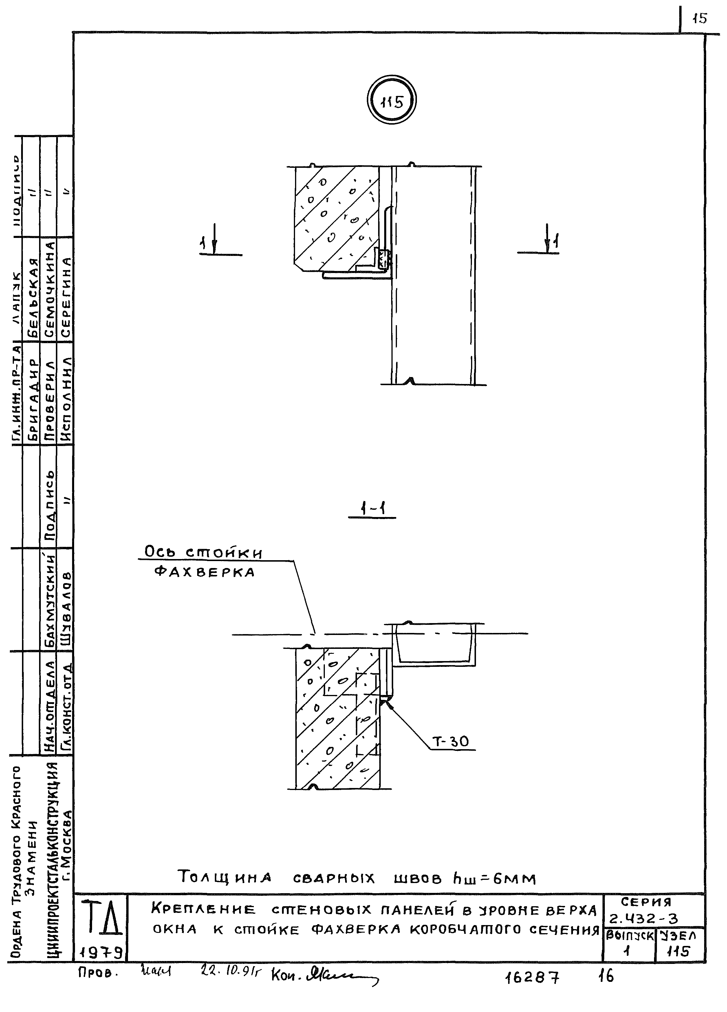
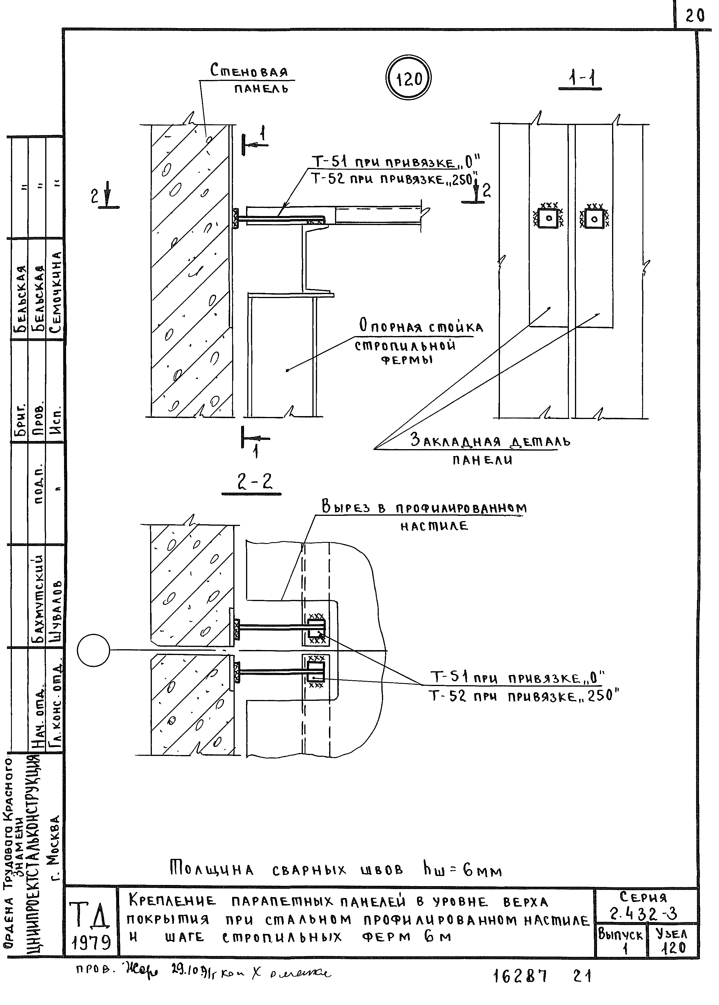
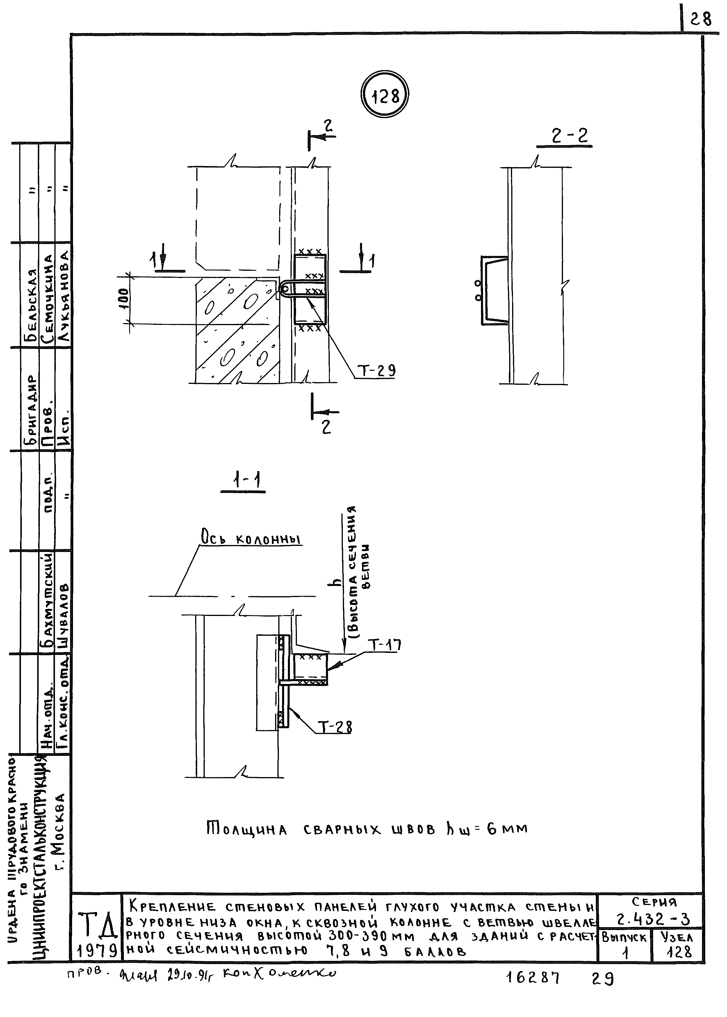
| Оглавление: | Содержание Указания по применению Крепления опорных консолей к колоннам То же Крепление опорных консолей к стойке фахверка Крепление стеновых панелей глухого участка стены в уровне опорной консоли к колонне или стойке фахверка двутаврового сечения То же к сквозной колонне с ветвью швеллерного сечения То же к сквозной колонне с ветвью двутаврового сечения То же к стойке фахверка коробчатого сечения Крепление стеновых панелей глухого участка стены в уровне верха окна к колонне или стойке фахверка двутаврового сечения То же к сквозной колонне с ветвью швеллерного сечения То же к сквозной колонне с ветвью двутаврового сечения То же к стойке фахверка коробчатого сечения Крепление стеновых панелей глухого участка стены в уровне низа окна к колонне или стойке фахверка двутаврового сечения То же к сквозной колонне с ветвью швеллерного сечения То же к сквозной колонне с ветвью двутаврового сечения То же к сквозной колонне с ветвью двутаврового сечения у температурного шва Крепление парапетных панелей в уровне верха покрытия при стальном профилированном настиле и шаге стропильных ферм 6 м То же и шаге стропильных ферм 12 м Крепление стеновых панелей глухого участка стены в уровне опорной консоли к колонне двутаврового сечения для зданий с расчетной сейсмичностью 7, 8 и 9 баллов То же к сквозной колонне с ветвью швеллерного сечения высотой 300 - 390 мм То же к сквозной колонне с ветвью швеллерного сечения высотой 400 - 700 мм То же к сквозной колонне с ветвью швеллерного сечения То же к стойке фахверка коробчатого сечения Крепление стеновых панелей глухого участка стены и в уровне низа окна к колонне или стойке фахверка двутаврового сечения для зданий с расчетной сейсмичностью 7, 8 и 9 баллов То же к сквозной колонне с ветвью швеллерного сечения высотой 300 - 390 мм То же к сквозной колонне с ветвью швеллерного сечения высотой 400 - 700 мм То же к сквозной колонне с ветвью швеллерного сечения То же к стойке фахверка коробчатого сечения |
| Разработан: | ЦНИИпроектстальконструкция Госстроя |
| Утверждён: | 15.01.1980 Госстрой СССР (Государственный комитет Совета Министров СССР по делам строительства) (USSR Gosstroy 1) |
| Принят: | ЦНИИ промзданий (TsNII promzdaniy ) |
| Расположен в: |































