| ||||||||||||||||||||||||||||
Скачать Серия 2.230-2 Выпуск 6. Входы каркасно-панельных зданий в конструкциях серии 1.020-1/83. Рабочие чертежиДата актуализации: 10.08.2017
|
| Обозначение: | Серия 2.230-2 |
| Обозначение англ: | Series 2.230-2 |
| Статус: | действует |
| Название рус.: | Выпуск 6. Входы каркасно-панельных зданий в конструкциях серии 1.020-1/83. Рабочие чертежи |
| Дата добавления в базу: | 01.09.2013 |
| Дата актуализации: | 05.05.2017 |
| Дата введения: | 01.01.1989 |
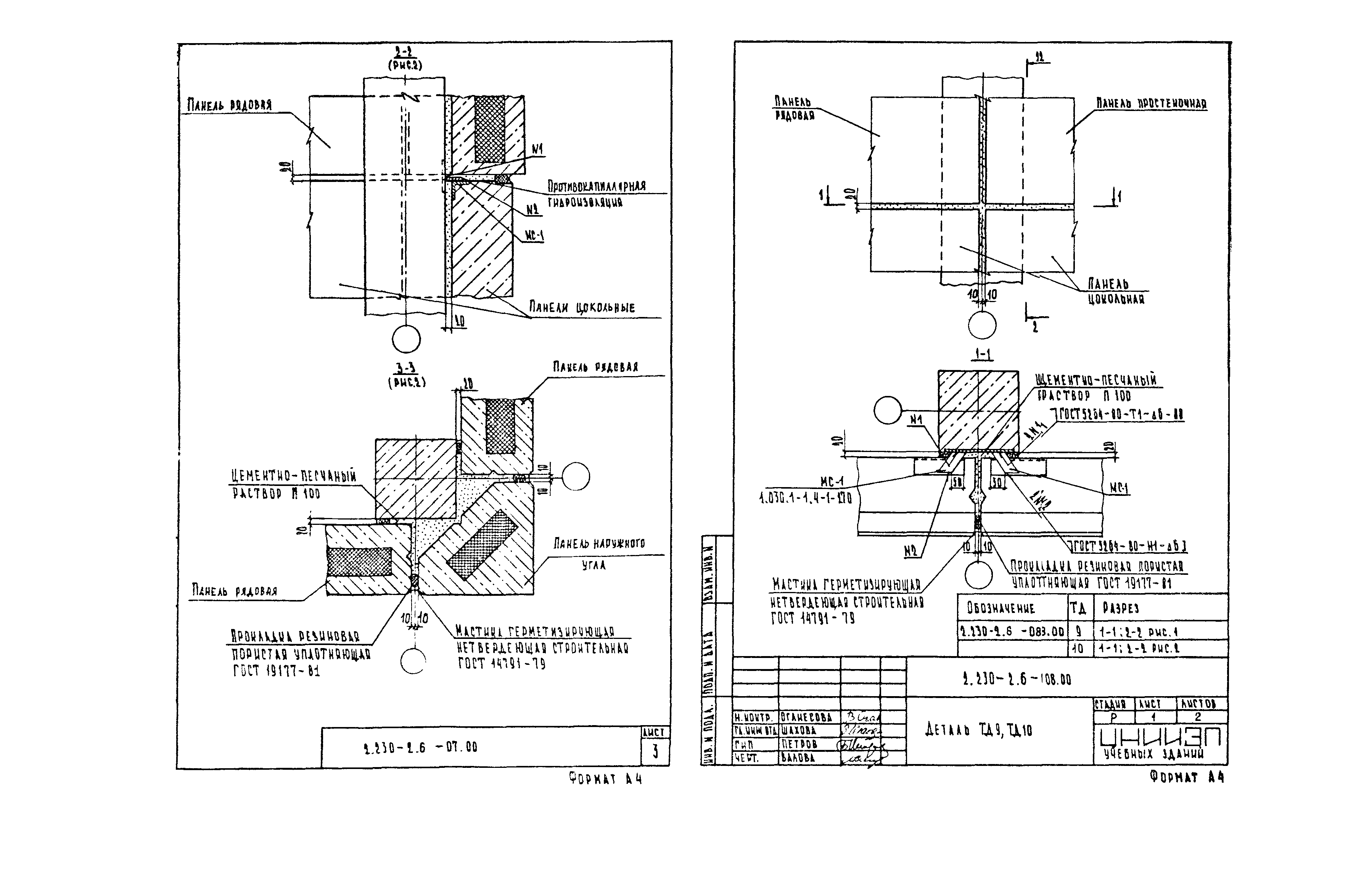
| Оглавление: | 2.230-2.6-00.00 ТО Техническое описание 2.230-2.6-00.00 М1 Маркировочная схема типовых деталей служебного входа на отм. 0,000 2.230-2.6-00.00 М2 Маркировочная схема типовых деталей эвакуационных выходов на отм. 0,000 и входа в лестничную клетку на отм. -1,050 2.230-2.6-00.00 М3 Маркировочная схема типовых деталей входа в лестничную клетку на отм. -0,900 2.230-2.6-00.00 М4 Маркировочная схема типовых деталей входа на отм. 0,000 через встроенный в здание тамбур 2.230-2.6-00.00 М5 Маркировочная схема типовых деталей парадного входа на отм. 0,000 через пристроенный к зданию тамбур 2.230-2.6-00.00 М6 Маркировочная схема типовых деталей парадного входа на отм. 0,000 через встроенный в здание тамбур 2.230-2.6-01.00 Деталь ТД1 2.230-2.6-02.00 Деталь ТД2 2.230-2.6-03.00 Деталь ТД3 2.230-2.6-04.00 Деталь ТД4 2.230-2.6-05.00 Деталь ТД5 2.230-2.6-06.00 Деталь ТД6 2.230-2.6-07.00 Деталь ТД7, ТД8 2.230-2.6-08.00 Деталь ТД9, ТД10 2.230-2.6-09.00 Деталь ТД11, ТД12 2.230-2.6-10.00 Деталь ТД13 2.230-2.6-11.00 Деталь ТД14 2.230-2.6-12.00 Деталь ТД15, ТД16 2.230-2.6-13.00 Деталь ТД17, ТД18 2.230-2.6-14.00 Деталь ТД19 2.230-2.6-15.00 Деталь ТД20 2.230-2.6-16.00 Деталь ТД21, ТД22 2.230-2.6-17.00 Деталь ТД23, ТД24 2.230-2.6-18.00 Деталь ТД25, ТД26 2.230-2.6-19.00 Деталь ТД27, ТД28 2.230-2.6-20.00 Деталь ТД29, ТД30 2.230-2.6-21.00 Деталь ТД31, ТД32 2.230-2.6-22.00 Деталь ТД33, ТД34 2.230-2.6-23.00 Деталь ТД35 2.230-2.6-24.00 Деталь ТД36 2.230-2.6-25.00 Деталь ТД37 2.230-2.6-26.00 Деталь ТД38 2.230-2.6-27.00 Деталь ТД39 2.230-2.6-28.00 Деталь ТД40 2.230-2.6-29.00 Деталь ТД41 2.230-2.6-30.00 Деталь ТД42 2.230-2.6-31.00 Деталь ТД43 2.230-2.6-32.00 Деталь ТД44 2.230-2.6-33.00 Деталь ТД45 2.230-2.6-34.00 Деталь ТД46 2.230-2.6-35.00 Деталь ТД47 2.230-2.6-36.00 Деталь ТД48 2.230-2.6-37.00 Деталь ТД49, ТД50 2.230-2.6-38.00 Деталь ТД51 2.230-2.6-39.00 Деталь ТД52 2.230-2.6-40.00 Деталь ТД53 2.230-2.6-41.00 Деталь ТД54 2.230-2.6-42.00 Деталь ТД55 2.230-2.6-43.00 Деталь ТД56 2.230-2.6-44.00 Деталь ТД57 2.230-2.6-45.00 Деталь ТД58 2.230-2.6-46.00 Деталь ТД59 2.230-2.6-47.00 Деталь ТД60 2.230-2.6-48.00 Деталь ТД61 2.230-2.6-49.01 Консоль опорная РК10… РК13; РК10-01… РК13-01 2.230-2.6-49.02 Решетка РН1 2.230-2.6-49.03 Закладное изделие МН1 2.230-2.6-49.04 Закладное изделие МН2 2.230-2.6-49.05 Закладное изделие МН3 2.230-2.6-49.06 Соединительное изделие МС1, МС2 2.230-2.6-49.07 Соединительное изделие МС3 2.230-2.6-49.08 Соединительное изделие МС4 2.230-2.6-49.09 Соединительное изделие МС5 |
| Разработан: | ЦНИИЭП учебных зданий Госгражданстроя |
| Утверждён: | 20.07.1988 Госкомархитектура (4-351) |
| Издан: | ЦИТП Госстроя СССР (CITP, Gosstroy (USSR) 1988 г. ) |
| Расположен в: |























































