| ||||||||||||||||||||||||||
Скачать Серия 2.130-7 Узлы сопряжения наружных стен из трехслойных панелей с гибкими связями. Рабочие чертежиДата актуализации: 10.08.2017
|
| Обозначение: | Серия 2.130-7 |
| Обозначение англ: | Series 2.130-7 |
| Статус: | не определен законодательством |
| Название рус.: | Узлы сопряжения наружных стен из трехслойных панелей с гибкими связями. Рабочие чертежи |
| Дата добавления в базу: | 01.09.2013 |
| Дата актуализации: | 05.05.2017 |
| Дата введения: | 20.12.1986 |
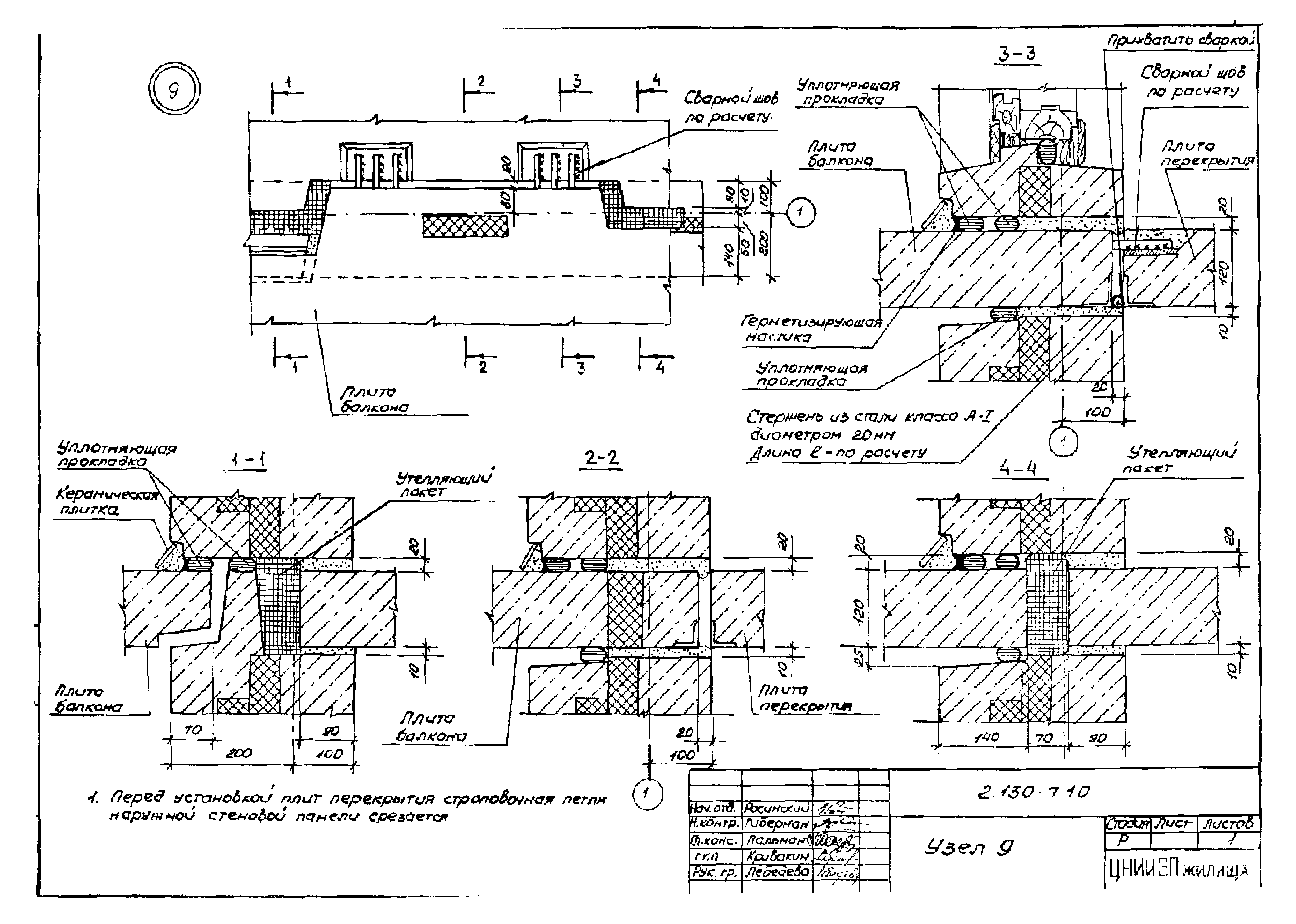
| Оглавление: | 2.130-7.00 ТО Техническое описание 2.130-7.01 Фрагменты схем расположения стеновых панелей и плит перекрытия. Маркировка узлов 2.130-7.02 Узел 1 2.130-7.03 Узел 2 2.130-7.04 Узел 3 2.130-7.05 Узел 4 2.130-7.06 Узел 5 2.130-7.07 Узел 6 2.130-7.08 Узел 7 2.130-7.09 Узел 8 2.130-7.10 Узел 9 2.130-7.11 Узел 10, 11 2.130-7.12 Узел 12… 15 2.130-7.13 Узел 16 2.130-7.14 Изделие металлическое ИМ1… ИМ3 2.130-7.15 Изделие металлическое ИМ4… ИМ7 2.130-7.16 Изделие металлическое ИМ9 2.130-7.17 Изделие металлическое ИМ8, ИМ10, ИМ11 |
| Разработан: | ЦНИИЭП жилища |
| Утверждён: | 11.12.1986 Госгражданстрой (Gosgrazhdanstroy 415) |
| Расположен в: |
































