| ||||||||||||||||||||||||||
Скачать Серия 2.130-1 Выпуск 15. Наружные несущие стены железобетонные трехслойной конструкции для 5 и 9 этажных крупнопанельных зданийДата актуализации: 10.08.2017
|
| Обозначение: | Серия 2.130-1 |
| Обозначение англ: | Series 2.130-1 |
| Статус: | cправочные материалы, мп, тпр |
| Название рус.: | Выпуск 15. Наружные несущие стены железобетонные трехслойной конструкции для 5 и 9 этажных крупнопанельных зданий |
| Дата добавления в базу: | 01.09.2013 |
| Дата актуализации: | 05.05.2017 |
| Дата введения: | 15.09.1975 |
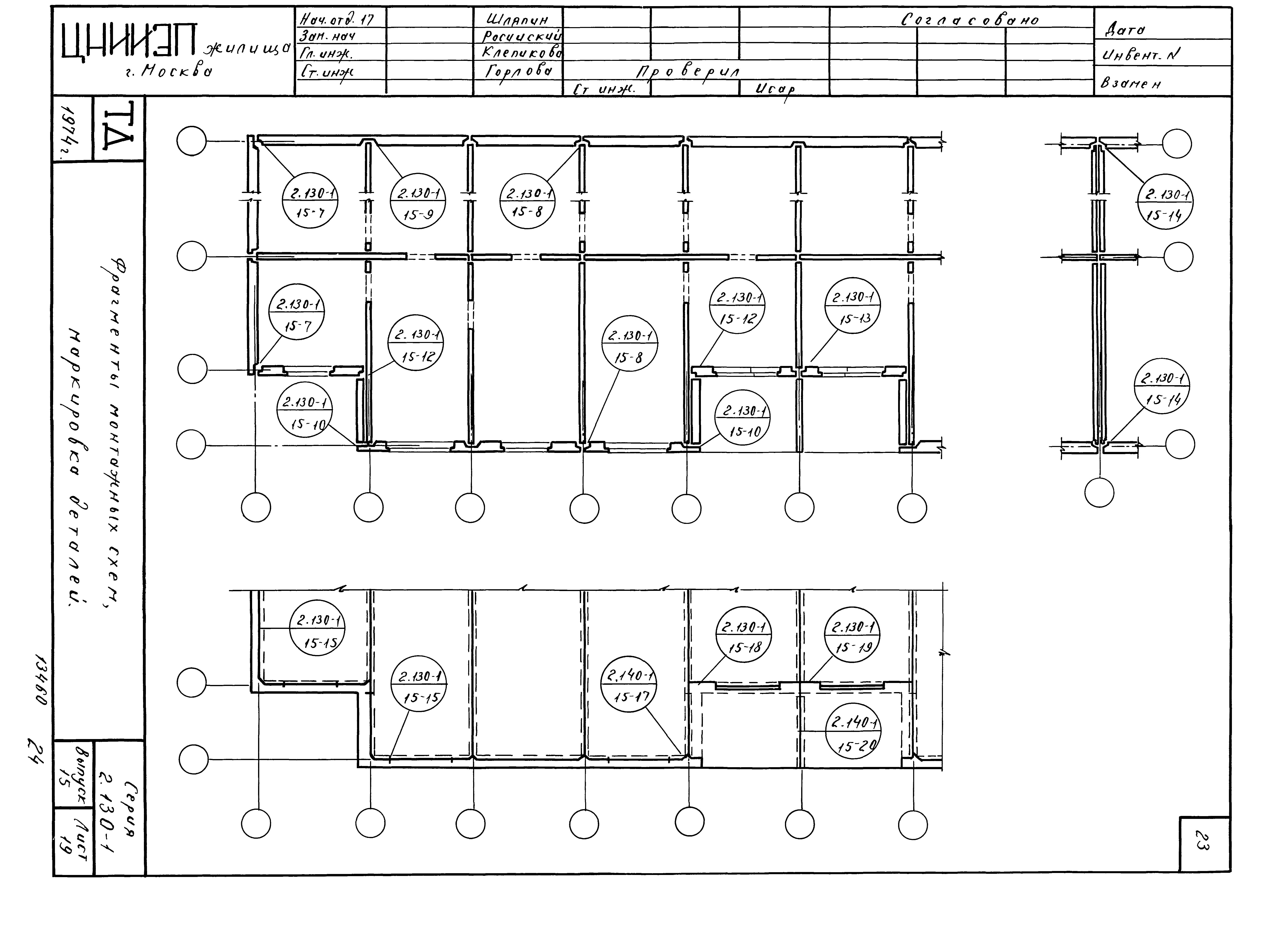
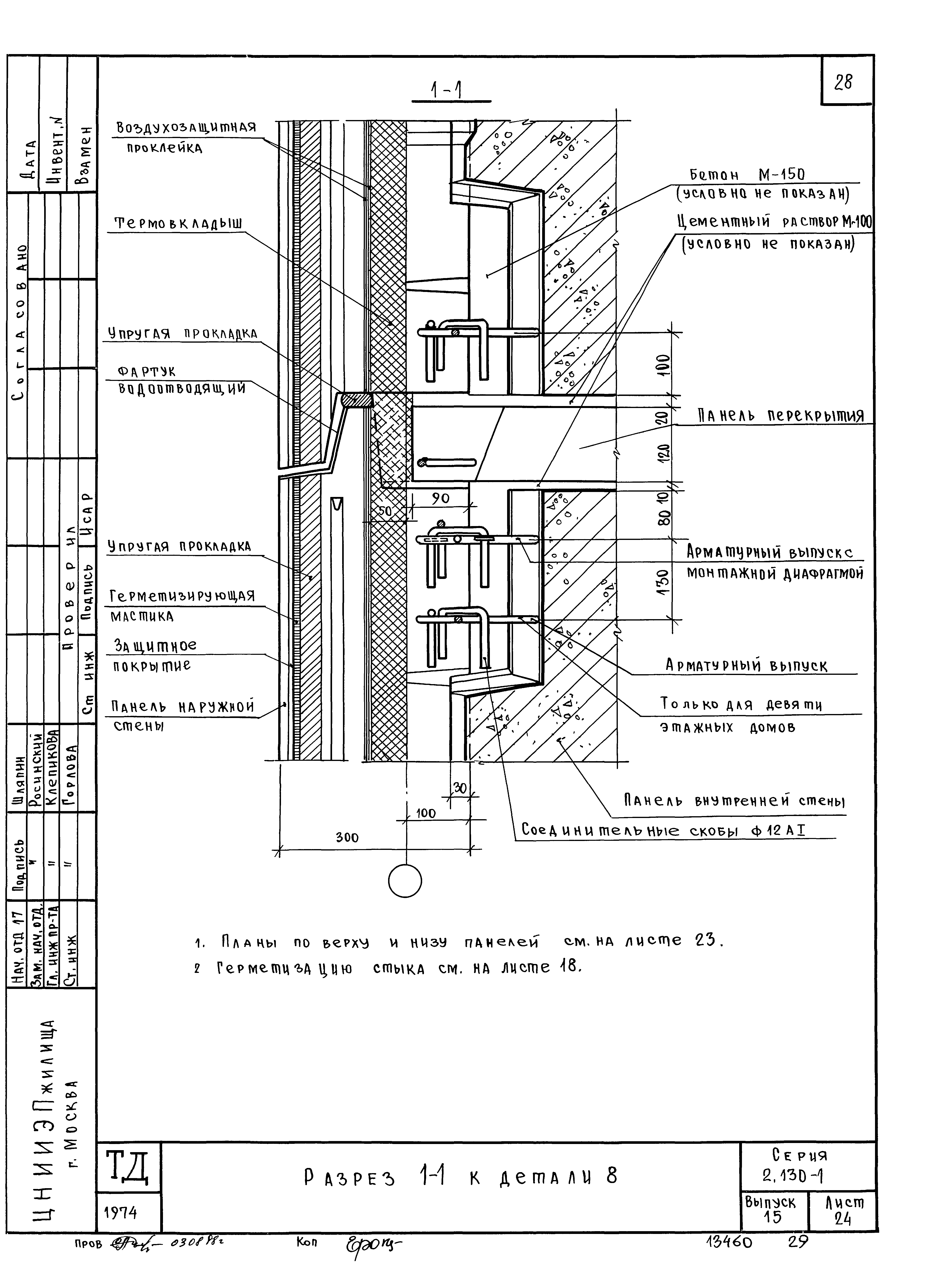
| Оглавление: | Содержание Пояснительная записка Герметизация стыков. Детали 1ц - 4ц Фрагмент монтажных схем цокольного этажа, маркировка деталей Сопряжения цокольных панелей наружных и внутренних стен и панели перекрытия. Вертикальный и горизонтальные стыки, детали 5ц, 6ц Угловой стык цокольных панелей наружных стен, деталь 7ц Разрез 1-1 к детали 7ц Стык цокольных панелей наружных и внутренних стен, деталь 8ц Разрез 1-1 к детали 8ц Стык цокольных панелей наружных и внутренних стен, деталь 9ц Разрез 1-1 к детали 9ц Стык цокольных панелей наружных и у внешнего угла лоджии, деталь 10ц Разрез 1-1 к детали 10ц Стык цокольных панелей наружных и у внутреннего угла лоджии, деталь 12ц Разрез 1-1 к детали 12ц Стык цокольных панелей наружных, внутренних стен и стенки лоджии, деталь 13ц Разрез 1-1 к детали 13ц Стык цокольных панелей наружных и у внутренних стен в месте деформационного шва, деталь 14ц Разрез 1-1 к детали 14ц Герметизация стыков, панелей наружных стен: детали 1-4 Фрагменты монтажных схем, маркировка деталей Сопряжения панелей наружных и внутренних стен и панели перекрытия. Вертикальный и горизонтальный стыки, детали 5, 6 Угловой стык панелей наружных стен, деталь 7 Разрез 1-1 к детали 7 Рядовой стык панелей наружной и внутренней стен, деталь 8 Разрез 1-1 к детали 8 Стык панелей наружных и внутренней стен у внешнего угла ризалита (лоджии), деталь 10 Разрез 2-2 к деталям 10 и 12 Стык панелей наружной и внутренней стен у внутреннего угла ризалита (лоджии), деталь 12 Стык панелей наружной и внутренней стен и стенки лоджии, деталь 13 Разрез 1-1 к детали 13 Стык панелей наружных и внутренней стен в месте деформационного шва, деталь 14 Разрез 1-1 к детали 14 Крепление панели перекрытия к наружной стене, деталь 15 Опирание плиты лоджии, деталь 18 Опирание плиты лоджии, деталь 19 Разрезы 1-1, 2-2, 3-3 к деталям 18, 19 Фрагменты монтажных схем. Маркировка деталей панелей парапета Детали парапетов 5п и 6п Угловой и рядовой стык панелей парапетов. Детали 7п и 8п Разрез 1-1 к детали 8п Стык панелей парапета у внешнего и внутреннего угла ризалита. Детали 10п и 12п Стык панелей парапета в месте деформационного шва. Деталь 14п Разрез 1-1 к детали 14п |
| Разработан: | ЦНИИЭП жилища |
| Утверждён: | 20.08.1975 Государственный комитет по гражданскому строительству и архитектуре при Госстрое СССР (186) |
| Расположен в: |














































