| ||||||||||||||||||||||||||||||
Скачать Серия 2.090-1.97 Выпуск 1. Материалы для проектирования и рабочие чертежи узловДата актуализации: 10.08.2017
|
| Обозначение: | Серия 2.090-1.97 |
| Обозначение англ: | Series 2.090-1.97 |
| Статус: | не определен законодательством |
| Название рус.: | Выпуск 1. Материалы для проектирования и рабочие чертежи узлов |
| Дата добавления в базу: | 01.09.2013 |
| Дата актуализации: | 05.05.2017 |
| Дата введения: | 01.01.1998 |
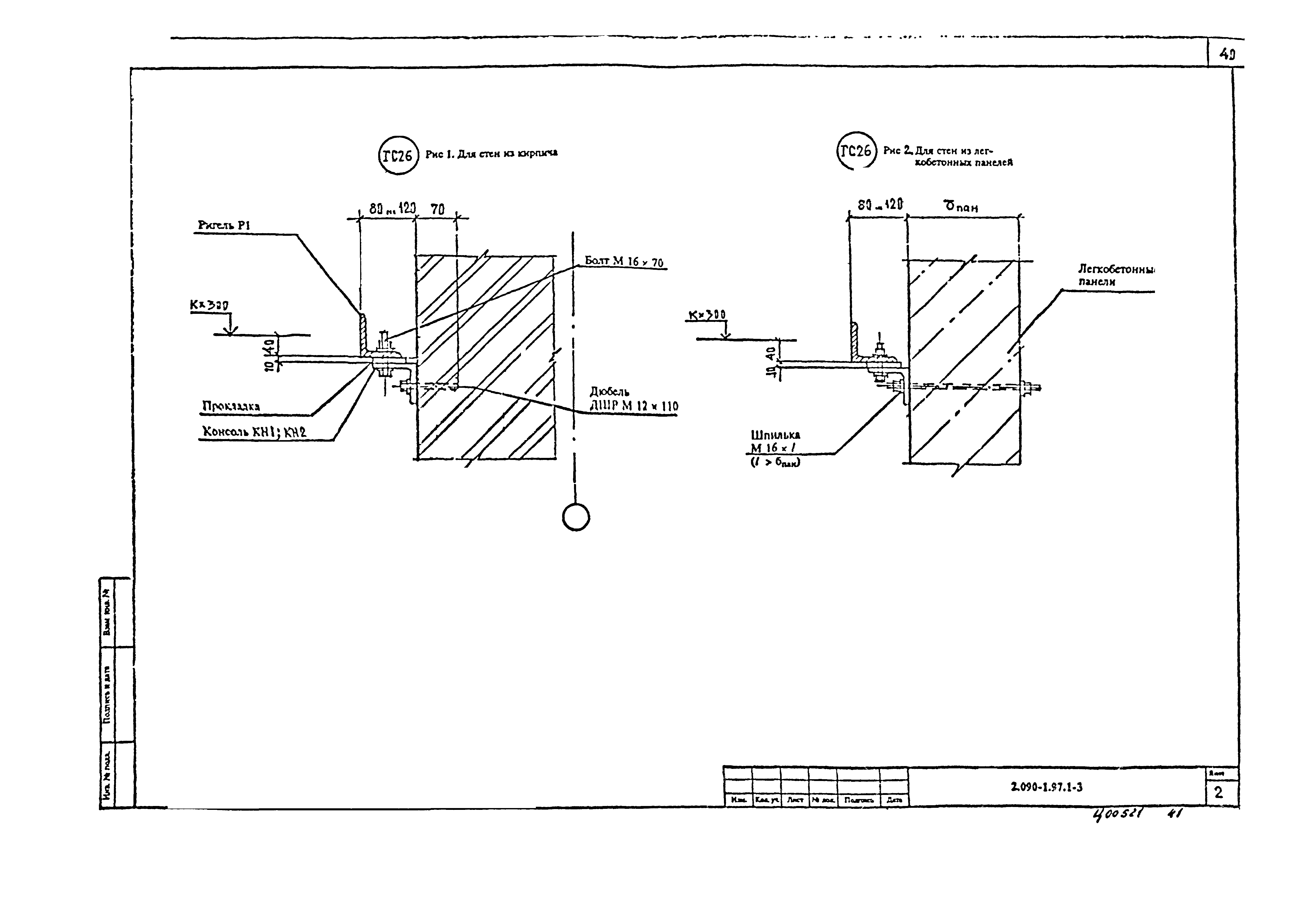
| Оглавление: | 2.090-1.97.1-ПЗ Пояснительная записка 2.090-1.97.1-ПЗ 1. Область применения 2.090-1.97.1-ПЗ 2. Теплоизоляция 2.090-1.97.1-ПЗ 3. Нормы теплозащиты и данные по толщине теплоизоляции 2.090-1.97.1-ПЗ 4. Конструктивное решение стен 2.090-1.97.1-ПЗ 5. Конструктивное решение покрытий 2.090-1.97.1-ПЗ 6. Состав рабочих чертежей 2.090-1.97.1-ПЗ 7. Распорные дюбели 2.090-1.97.1-ПЗ 8. Проверка необходимого устройства пароизоляционного слоя 2.090-1.97.1-1 Фрагменты фасадов №1… №9 2.090-1.97.1-2 Крепление теплоизоляции облицовки их штукатурки и кирпича к стене. Узел ГС1… ГС21 2.090-1.97.1-3 Крепление теплоизоляции, ригелей обрешетки и металлических листов к стене. Узел ГС25… ГС34 2.090-1.97.1-4 Сопряжение стены окон. Узел ОК1… ОК13 2.090-1.97.1-5 Сопряжение стены, дверей и ворот. Узел ВД1… ВД11 2.090-1.97.1-6 План кровли. Узел КР1… КР8 2.090-1.97.1-7 Комплектующие изделия 2.090-1.97.1-8 Спецификация деталей, изделий и материалов |
| Разработан: | ЦНИИпромзданий |
| Утверждён: | 02.12.1997 Госстрой России (Russian Federation Gosstroy 9-2-1/146) |
| Издан: | ГУП ЦПП (CPP GUP 1998 г. ) |
| Расположен в: | |
| Заменяет собой: |










































































