| ||||||||||||||||||||||||||||||
Скачать Серия 1.231.9-10 Выпуск 3. Перегородки поэлементной сборки из цементностружечных плит на деревянном каркасе. Рабочие чертежиДата актуализации: 10.08.2017
|
| Обозначение: | Серия 1.231.9-10 |
| Обозначение англ: | Series 1.231.9-10 |
| Статус: | не определен законодательством |
| Название рус.: | Выпуск 3. Перегородки поэлементной сборки из цементностружечных плит на деревянном каркасе. Рабочие чертежи |
| Дата добавления в базу: | 01.09.2013 |
| Дата актуализации: | 05.05.2017 |
| Дата введения: | 01.05.1986 |
| Область применения: | Перегородки поэлементной сборки предназначены для применения в проектах общественных зданий (предприятия общественного питания, торговли, бытового обслуживания школ, учебных, лечебных и детских учреждений), а также в гостиницах, административно-бытовых зданиях и других, с высотами этажей равными 2,8 м; 3,3 м; 3,6 м; 4,2 м |
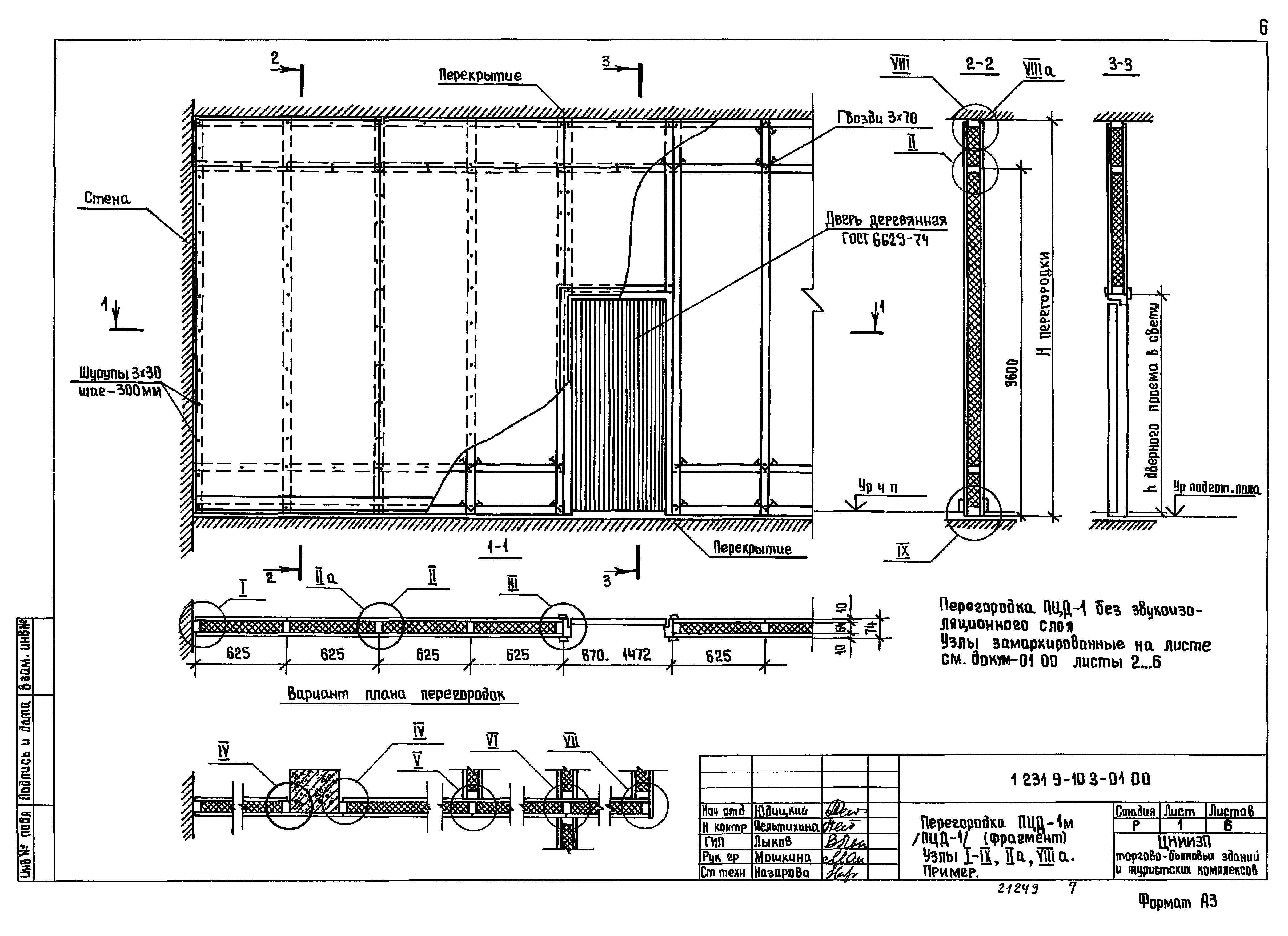
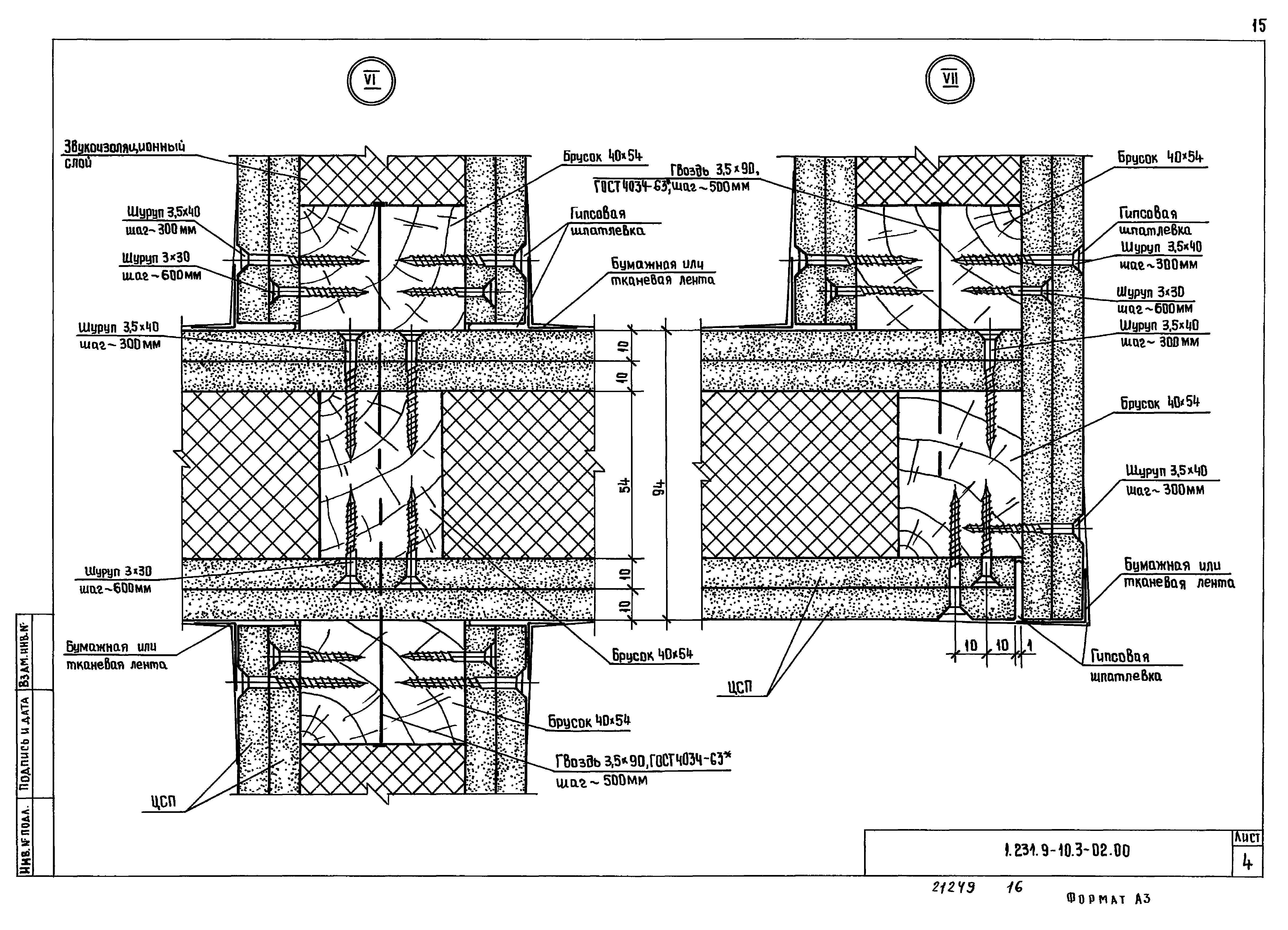
| Оглавление: | 1.231.9-10.3-00.00 ПЗ Пояснительная записка 1.231.9-10.3-00.00 ВД Ведомость ссылочных документов 1.231.9-10.3-01.00 Перегородка ПЦП-1м/ ПЦП-1/ (Фрагмент). Узлы I -IX, IIa, VIIIa. Пример 1.231.9-10.3-02.00 Перегородка ПЦД-2м/ ПЦД-2/ (Фрагмент). Узлы I -IX. Пример 1.231.9-10.3-03.00 Примеры установки анкера падающего, анкера проходного, крючка и дюбеля разжимного 1.231.9-10.3-00.01 Крючок 1.231.9-10.3-00.02 Анкер проходной 1.231.9-10.3-00.03 Анкер падающий 1.231.9-10.3-00.04 Дюбель разжимной |
| Разработан: | ЦНИИЭП торгово-бытовых зданий и туристских комплексов |
| Утверждён: | 28.03.1986 Государственный комитет по гражданскому строительству и архитектуре при Госстрое СССР (114) |
| Расположен в: | |
| Нормативные ссылки: |
|



















