Информационная система
«Ёшкин Кот»

Скачать базу одним архивом
Скачать обновления
История создания базы
Карта сайта

Скачать Типовой проект 801-2-85.12.87 Альбом III. Строительные изделия. Часть 3. Разные изделия

Дата актуализации: 10.08.2017

Типовой проект 801-2-85.12.87

Альбом III. Строительные изделия. Часть 3. Разные изделия

Обозначение: Типовой проект 801-2-85.12.87
Обозначение англ: 801-2-85.12.87
Статус:не определен законодательством
Название рус.:Альбом III. Строительные изделия. Часть 3. Разные изделия
Дата добавления в базу:01.09.2013
Дата актуализации:05.05.2017
Дата введения:30.12.1985
Оглавление:КЖИ 3.1-ТУ Технические условия
КЖИ 3.1-01.0.0 Плита перекрытия тамбура (ППД...12…-Т; 1ППД…12…-Т; 2ППД…12…-Т; 2ППД…12…-Т.Н)
КЖИ 3.1-01.0.0 СБ Плита перекрытия тамбура (ППД...12…-Т; 1ППД…12…-Т; 2ППД…12…-Т; 2ППД…12…-Т.Н) Сборочный чертеж
КЖИ 3.1-02.0.0 Плита пола тамбура (ППТ…25.18-Т; 1ППТ…25.18-Т;1ППТ…25.18-Т.Н)
КЖИ 3.1-02.0.0 СБ Плита пола тамбура (ППТ…25.18-Т; 1ППТ…25.18-Т;1ППТ…25.18-Т.Н). Сборочный чертеж
КЖИ 3.1-03.0.0 Плита перекрытия вентплощадки ППВ…12.16-Т
КЖИ 3.1-03.0.0 СБ Плита перекрытия вентплощадки ППВ…12.16-Т. Сборочный чертеж
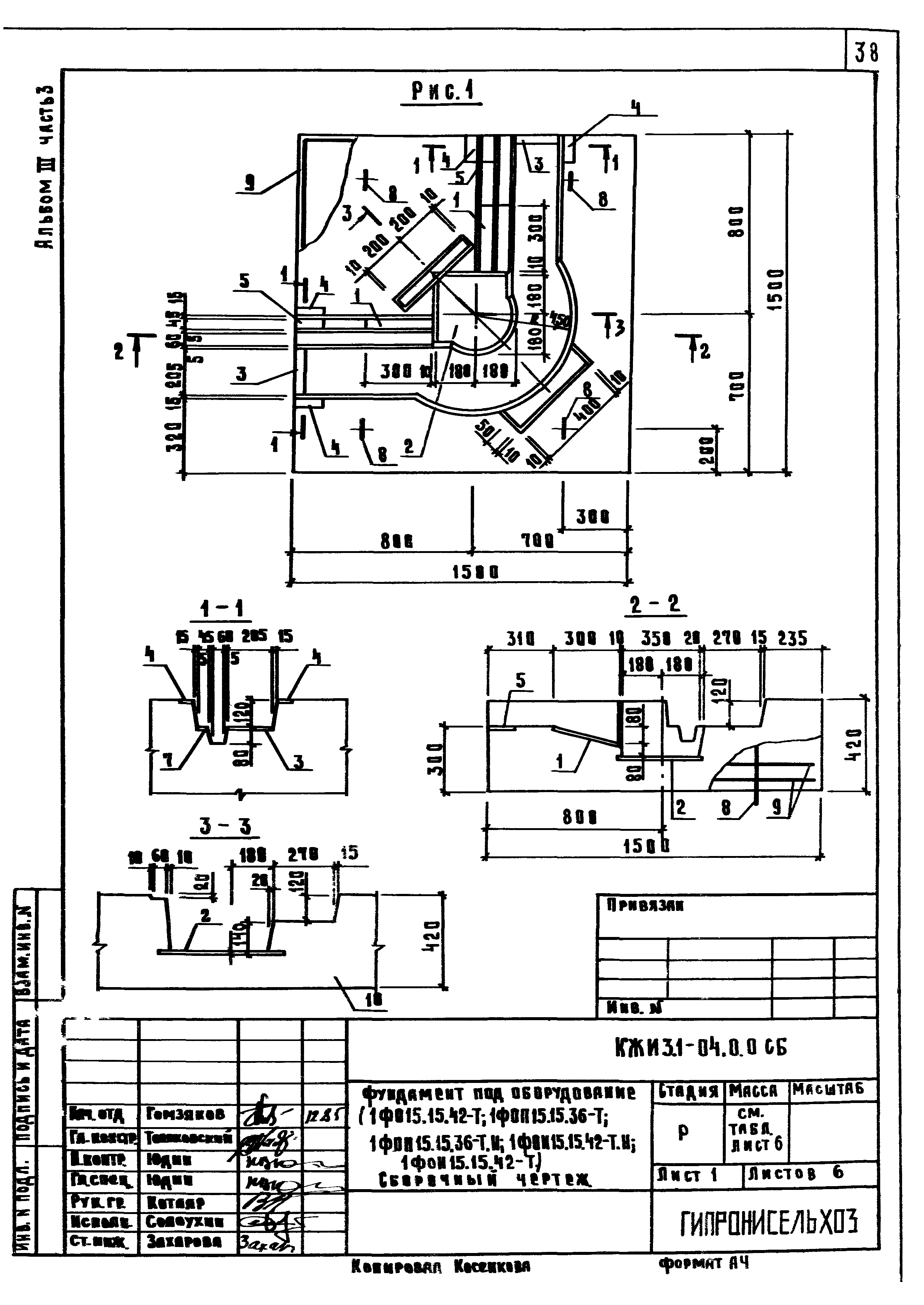
КЖИ 3.1-04.0.0 Фундамент под оборудование (1ФО 15.15.42-Т; 1ФОП 15.15.36-Т; 1ФОП 15.15.36-Т-Н; 1ФОН 15.15.42-Т-Н; 1ФОН 15.15.42-Т)
КЖИ 3.1-04.0.0 СБ Фундамент под оборудование (1ФО 15.15.42-Т; 1ФОП 15.15.36-Т; 1ФОП 15.15.36-Т-Н; 1ФОН 15.15.42-Т-Н; 1ФОН 15.15.42-Т). Сборочный чертеж
КЖИ 3.1-05.0.0 Плита пола стойла ППС18.10.8-П
КЖИ 3.1-06.0.0 Плита пола стойла ППС18.10.8-П-1
КЖИ 3.1-07.0.0 Плита пола стойла ППС18.10.8-П-1Н
КЖИ 3.1-08.0.0 Блок фундаментный БФО20.3.28-Т
КЖИ 3.1-09.0.0 Блок фундаментный БФО12.3.28-Т
КЖИ 3.1-10.0.0 Панель стеновая ( ПСД6.30…-Т-1; ПСД9.30…-Т-1; ПСД12.30…-Т-1; ПСД18.30…-Т-1; ПСД6.30…-Т-1Н; ПСД9.30…-Т-1Н; ПСД12.30…-Т-1Н; ПСД18.10…-Т-1Н)
КЖИ 3.1-10.0.0 СБ Панель стеновая ( ПСД6.30…-Т-1; ПСД9.30…-Т-1; ПСД12.30…-Т-1; ПСД18.30…-Т-1; ПСД6.30…-Т-1Н; ПСД9.30…-Т-1Н; ПСД12.30…-Т-1Н; ПСД18.10…-Т-1Н). Сборочный чертеж
КЖИ 3.1-11.0.0 Панель стеновая ПСД12.30…-Т-2
КЖИ 3.1-11.0.0 СБ Панель стеновая ПСД12.30…-Т-2. Сборочный чертеж
КЖИ 3.1-12.0.0 Панель стеновая (ПСД12.12…-1, ПСД6.12…-1)
КЖИ 3.1-12.0.0 СБ Панель стеновая (ПСД12.12…-1, ПСД6.12…-1). Сборочный чертеж
КЖИ 3.1-13.0.0 Полурама (РПС 21-5-Па, РПС 21-5-Пб, РПС 21-5-Пв)
КЖИ 3.1-13.0.0 СБ Полурама (РПС 21-5-Па, РПС 21-5-Пб, РПС 21-5-Пв). Сборочный чертеж
КЖИ 3.1-14.0.0 Колонна СК2-36-2-1
КЖИ 3.1-14.0.0 СБ Колонна СК2-36-2-1. Сборочный чертеж
КЖИ 3.1-15.0.0 Колонна (СКТ3-54-2-1, СКТ3-54-2-2)
КЖИ 3.1-15.0.0 СБ Колонна (СКТ3-54-2-1, СКТ3-54-2-2). Сборочный чертеж
КЖИ 3.1-16.0.0 Ферма (1ФТ6-6АIIIТ-П.1; 1ФТ6-6АIIIТ-П.2)
КЖИ 3.1-16.0.0 СБ Ферма (1ФТ6-6АIIIТ-П.1; 1ФТ6-6АIIIТ-П.2). Сборочный чертеж
КЖИ 3.1-17.0.0 Балка БС7.5-4-1
КЖИ 3.1-18.0.0 Плита покрытия (1ПГ-3АIVТ-П…, 12ПГ-2АIVТ-П…, 2ПВ10-2АIVТ-П…, 2ПВ7-2АIVТ-П…,2ПВ4-2АIVТ-П…)
КЖИ 3.1-18.0.0 СБ Плита покрытия (1ПГ-3АIVТ-П…, 12ПГ-2АIVТ-П…, 2ПВ10-2АIVТ-П…, 2ПВ7-2АIVТ-П…,2ПВ4-2АIVТ-П…). Сборочный чертеж
КЖИ 3.1-РС Ведомость расхода стали на 1 элемент
КЖИ 3.2-ТУ Технические условия
КЖИ 3.2-0.01.00 Каркас пространственный (КП1; КП2; КП2Н)
КЖИ 3.2-0.01.00 СБ Каркас пространственный (КП1; КП2; КП2Н). Сборочный чертеж
КЖИ 3.2-0.02.00 Каркас пространственный (КП3; КП4; КП4Н)
КЖИ 3.2-0.02.00 СБ Каркас пространственный (КП3; КП4; КП4Н). Сборочный чертеж
КЖИ 3.2-0.03.00 Каркас пространственный КП5
КЖИ 3.2-0.03.00 СБ Каркас пространственный КП5. Сборочный чертеж
КЖИ 3.2-0.04.00 Сетка арматурная (С1; С2; С3)
КЖИ 3.2-0.04.00 СБ Сетка арматурная (С1; С2; С3) Сборочный чертеж
КЖИ 3.2-0.05.00 Сетка арматурная (С4; С5)
КЖИ 3.2-0.05.00 СБ Сетка арматурная (С4; С5). Сборочный чертеж
КЖИ 3.2-0.06.00 Сетка арматурная С6
КЖИ 3.2-0.06.00 СБ Сетка арматурная С6.Сборочный чертеж
КЖИ 3.2-0.07.00 Сетка арматурная (С7; С8)
КЖИ 3.2-0.07.00 СБ Сетка арматурная (С7; С8). Сборочный чертеж
КЖИ 3.2-0.08.00 Петля для подъема (ПМ14-1; ПМ14-2)
КЖИ 3.2-0.09.00 Изделие закладное МН1
КЖИ 3.2-0.10.00 Изделие закладное МН2
КЖИ 3.2-0.11.00 Изделие закладное (МН3-1; МН3-2; МН3-3; МН3-4)
КЖИ 3.2-0.11.00 СБ Изделие закладное (МН3-1; МН3-2; МН3-3; МН3-4). Сборочный чертеж
КЖИ 3.2-0.12.00 Изделие закладное (МН4-1; МН4-2)
КЖИ 3.2-0.12.00 СБ Изделие закладное (МН4-1; МН4-2). Сборочный чертеж
КЖИ 3.2-0.13.00 Изделие закладное МН5
КЖИ 3.2-0.14.00 Изделие закладное МН6
КЖИ 3.2-МС100 Изделие соединительное (МС1, МС1Н)
КЖИ 3.2-МС200 Изделие соединительное МС2
КЖИ 3.2-МИ100 Изделие металлическое (МИ1, МИ1Н)
КЖИ 3.2-МИ200 Изделие металлическое (МИ2-1, МИ2-2, МИ2-3)
КЖИ 3.2-МИ200 СБ Изделие металлическое (МИ2-1, МИ2-2, МИ2-3). Сборочный чертеж
КЖИ 3.2-МИ300 Изделие металлическое МИ3
КЖИ 3.2-МИ400 Изделие металлическое МИ4
КЖИ 3.2-МИ500 Изделие металлическое МИ5
КЖИ 3.2-МИ500 СБ Изделие металлическое МИ5. Сборочный чертеж
КЖИ 3.2-МИ600 Изделие металлическое МИ6
КЖИ 3.2-МИ600 СБ Изделие металлическое МИ6. Сборочный чертеж
КЖИ 3.2-МИ700 Изделие металлическое (МИ7, МИ7-1)
КЖИ 3.1-ТУ Технические условия
КЖИ 3.1-01.0.0 Плита перекрытия тамбура (ППД...12…-Т; 1ППД…12…-Т; 2ППД…12…-Т; 2ППД…12…-Т.Н)
КЖИ 3.1-01.0.0 СБ Плита перекрытия тамбура (ППД...12…-Т; 1ППД…12…-Т; 2ППД…12…-Т; 2ППД…12…-Т.Н) Сборочный чертеж
КЖИ 3.1-02.0.0 Плита пола тамбура (ППТ…25.18-Т; 1ППТ…25.18-Т;1ППТ…25.18-Т.Н)
КЖИ 3.1-02.0.0 СБ Плита пола тамбура (ППТ…25.18-Т; 1ППТ…25.18-Т;1ППТ…25.18-Т.Н). Сборочный чертеж
КЖИ 3.1-03.0.0 Плита перекрытия вентплощадки ППВ…12.16-Т
КЖИ 3.1-03.0.0 СБ Плита перекрытия вентплощадки ППВ…12.16-Т. Сборочный чертеж
КЖИ 3.1-04.0.0 Фундамент под оборудование (1ФО 15.15.42-Т; 1ФОП 15.15.36-Т; 1ФОП 15.15.36-Т-Н; 1ФОН 15.15.42-Т-Н; 1ФОН 15.15.42-Т)
КЖИ 3.1-04.0.0 СБ Фундамент под оборудование (1ФО 15.15.42-Т; 1ФОП 15.15.36-Т; 1ФОП 15.15.36-Т-Н; 1ФОН 15.15.42-Т-Н; 1ФОН 15.15.42-Т). Сборочный чертеж
КЖИ 3.1-05.0.0 Плита пола стойла ППС18.10.8-П
КЖИ 3.1-06.0.0 Плита пола стойла ППС18.10.8-П-1
КЖИ 3.1-07.0.0 Плита пола стойла ППС18.10.8-П-1Н
КЖИ 3.1-08.0.0 Блок фундаментный БФО20.3.28-Т
КЖИ 3.1-09.0.0 Блок фундаментный БФО12.3.28-Т
КЖИ 3.1-10.0.0 Панель стеновая ( ПСД6.30…-Т-1; ПСД9.30…-Т-1; ПСД12.30…-Т-1; ПСД18.30…-Т-1; ПСД6.30…-Т-1Н; ПСД9.30…-Т-1Н; ПСД12.30…-Т-1Н; ПСД18.10…-Т-1Н)
КЖИ 3.1-10.0.0 СБ Панель стеновая ( ПСД6.30…-Т-1; ПСД9.30…-Т-1; ПСД12.30…-Т-1; ПСД18.30…-Т-1; ПСД6.30…-Т-1Н; ПСД9.30…-Т-1Н; ПСД12.30…-Т-1Н; ПСД18.10…-Т-1Н). Сборочный чертеж
КЖИ 3.1-11.0.0 Панель стеновая ПСД12.30…-Т-2
КЖИ 3.1-11.0.0 СБ Панель стеновая ПСД12.30…-Т-2. Сборочный чертеж
КЖИ 3.1-12.0.0 Панель стеновая (ПСД12.12…-1, ПСД6.12…-1)
КЖИ 3.1-12.0.0 СБ Панель стеновая (ПСД12.12…-1, ПСД6.12…-1). Сборочный чертеж
КЖИ 3.1-13.0.0 Полурама (РПС 21-5-Па, РПС 21-5-Пб, РПС 21-5-Пв)
КЖИ 3.1-13.0.0 СБ Полурама (РПС 21-5-Па, РПС 21-5-Пб, РПС 21-5-Пв). Сборочный чертеж
КЖИ 3.1-14.0.0 Колонна СК2-36-2-1
КЖИ 3.1-14.0.0 СБ Колонна СК2-36-2-1. Сборочный чертеж
КЖИ 3.1-15.0.0 Колонна (СКТ3-54-2-1, СКТ3-54-2-2)
КЖИ 3.1-15.0.0 СБ Колонна (СКТ3-54-2-1, СКТ3-54-2-2). Сборочный чертеж
КЖИ 3.1-16.0.0 Ферма (1ФТ6-6АIIIТ-П.1; 1ФТ6-6АIIIТ-П.2)
КЖИ 3.1-16.0.0 СБ Ферма (1ФТ6-6АIIIТ-П.1; 1ФТ6-6АIIIТ-П.2). Сборочный чертеж
КЖИ 3.1-17.0.0 Балка БС7.5-4-1
КЖИ 3.1-18.0.0 Плита покрытия (1ПГ-3АIVТ-П…, 12ПГ-2АIVТ-П…, 2ПВ10-2АIVТ-П…, 2ПВ7-2АIVТ-П…,2ПВ4-2АIVТ-П…)
КЖИ 3.1-18.0.0 СБ Плита покрытия (1ПГ-3АIVТ-П…, 12ПГ-2АIVТ-П…, 2ПВ10-2АIVТ-П…, 2ПВ7-2АIVТ-П…,2ПВ4-2АIVТ-П…). Сборочный чертеж
КЖИ 3.1-РС Ведомость расхода стали на 1 элемент
КЖИ 3.2-ТУ Технические условия
КЖИ 3.2-0.01.00 Каркас пространственный (КП1; КП2; КП2Н)
КЖИ 3.2-0.01.00 СБ Каркас пространственный (КП1; КП2; КП2Н). Сборочный чертеж
КЖИ 3.2-0.02.00 Каркас пространственный (КП3; КП4; КП4Н)
КЖИ 3.2-0.02.00 СБ Каркас пространственный (КП3; КП4; КП4Н). Сборочный чертеж
КЖИ 3.2-0.03.00 Каркас пространственный КП5
КЖИ 3.2-0.03.00 СБ Каркас пространственный КП5. Сборочный чертеж
КЖИ 3.2-0.04.00 Сетка арматурная (С1; С2; С3)
КЖИ 3.2-0.04.00 СБ Сетка арматурная (С1; С2; С3) Сборочный чертеж
КЖИ 3.2-0.05.00 Сетка арматурная (С4; С5)
КЖИ 3.2-0.05.00 СБ Сетка арматурная (С4; С5). Сборочный чертеж
КЖИ 3.2-0.06.00 Сетка арматурная С6
КЖИ 3.2-0.06.00 СБ Сетка арматурная С6.Сборочный чертеж
КЖИ 3.2-0.07.00 Сетка арматурная (С7; С8)
КЖИ 3.2-0.07.00 СБ Сетка арматурная (С7; С8). Сборочный чертеж
КЖИ 3.2-0.08.00 Петля для подъема (ПМ14-1; ПМ14-2)
КЖИ 3.2-0.09.00 Изделие закладное МН1
КЖИ 3.2-0.10.00 Изделие закладное МН2
КЖИ 3.2-0.11.00 Изделие закладное (МН3-1; МН3-2; МН3-3; МН3-4)
КЖИ 3.2-0.11.00 СБ Изделие закладное (МН3-1; МН3-2; МН3-3; МН3-4). Сборочный чертеж
КЖИ 3.2-0.12.00 Изделие закладное (МН4-1; МН4-2)
КЖИ 3.2-0.12.00 СБ Изделие закладное (МН4-1; МН4-2). Сборочный чертеж
КЖИ 3.2-0.13.00 Изделие закладное МН5
КЖИ 3.2-0.14.00 Изделие закладное МН6
КЖИ 3.2-МС100 Изделие соединительное (МС1, МС1Н)
КЖИ 3.2-МС200 Изделие соединительное МС2
КЖИ 3.2-МИ100 Изделие металлическое (МИ1, МИ1Н)
КЖИ 3.2-МИ200 Изделие металлическое (МИ2-1, МИ2-2, МИ2-3)
КЖИ 3.2-МИ200 СБ Изделие металлическое (МИ2-1, МИ2-2, МИ2-3). Сборочный чертеж
КЖИ 3.2-МИ300 Изделие металлическое МИ3
КЖИ 3.2-МИ400 Изделие металлическое МИ4
КЖИ 3.2-МИ500 Изделие металлическое МИ5
КЖИ 3.2-МИ500 СБ Изделие металлическое МИ5. Сборочный чертеж
КЖИ 3.2-МИ600 Изделие металлическое МИ6
КЖИ 3.2-МИ600 СБ Изделие металлическое МИ6. Сборочный чертеж
КЖИ 3.2-МИ700 Изделие металлическое (МИ7, МИ7-1)
Разработан: Гипронисельхоз Минсельхоза СССР
Утверждён:14.11.1984 Минсельхоз СССР (USSR Minselkhoz 102)
Расположен в:Техническая документация Экология СТРОИТЕЛЬНЫЕ МАТЕРИАЛЫ И СТРОИТЕЛЬСТВО Строительство Здания и сооружения прочие Строительство Справочные документы Типовые строительные конструкции, изделия и узлы Общероссийский строительный каталог Сельскохозяйственные предприятия, здания и сооружения Предприятия, здания и сооружения для крупного рогатого скота Комплексы и фермы Производство молока Здания и сооружения Производство молока и выращивание нетелей Коровники
Типовой проект 801-2-85.12.87Типовой проект 801-2-85.12.87Типовой проект 801-2-85.12.87Типовой проект 801-2-85.12.87Типовой проект 801-2-85.12.87Типовой проект 801-2-85.12.87Типовой проект 801-2-85.12.87Типовой проект 801-2-85.12.87Типовой проект 801-2-85.12.87Типовой проект 801-2-85.12.87Типовой проект 801-2-85.12.87Типовой проект 801-2-85.12.87Типовой проект 801-2-85.12.87Типовой проект 801-2-85.12.87Типовой проект 801-2-85.12.87Типовой проект 801-2-85.12.87Типовой проект 801-2-85.12.87Типовой проект 801-2-85.12.87Типовой проект 801-2-85.12.87Типовой проект 801-2-85.12.87Типовой проект 801-2-85.12.87Типовой проект 801-2-85.12.87Типовой проект 801-2-85.12.87Типовой проект 801-2-85.12.87Типовой проект 801-2-85.12.87Типовой проект 801-2-85.12.87Типовой проект 801-2-85.12.87Типовой проект 801-2-85.12.87Типовой проект 801-2-85.12.87Типовой проект 801-2-85.12.87Типовой проект 801-2-85.12.87Типовой проект 801-2-85.12.87Типовой проект 801-2-85.12.87Типовой проект 801-2-85.12.87Типовой проект 801-2-85.12.87Типовой проект 801-2-85.12.87Типовой проект 801-2-85.12.87Типовой проект 801-2-85.12.87Типовой проект 801-2-85.12.87Типовой проект 801-2-85.12.87Типовой проект 801-2-85.12.87Типовой проект 801-2-85.12.87Типовой проект 801-2-85.12.87Типовой проект 801-2-85.12.87Типовой проект 801-2-85.12.87Типовой проект 801-2-85.12.87Типовой проект 801-2-85.12.87Типовой проект 801-2-85.12.87Типовой проект 801-2-85.12.87Типовой проект 801-2-85.12.87Типовой проект 801-2-85.12.87Типовой проект 801-2-85.12.87Типовой проект 801-2-85.12.87Типовой проект 801-2-85.12.87Типовой проект 801-2-85.12.87Типовой проект 801-2-85.12.87Типовой проект 801-2-85.12.87Типовой проект 801-2-85.12.87Типовой проект 801-2-85.12.87Типовой проект 801-2-85.12.87Типовой проект 801-2-85.12.87Типовой проект 801-2-85.12.87Типовой проект 801-2-85.12.87Типовой проект 801-2-85.12.87Типовой проект 801-2-85.12.87Типовой проект 801-2-85.12.87Типовой проект 801-2-85.12.87Типовой проект 801-2-85.12.87Типовой проект 801-2-85.12.87Типовой проект 801-2-85.12.87Типовой проект 801-2-85.12.87Типовой проект 801-2-85.12.87Типовой проект 801-2-85.12.87Типовой проект 801-2-85.12.87Типовой проект 801-2-85.12.87Типовой проект 801-2-85.12.87Типовой проект 801-2-85.12.87Типовой проект 801-2-85.12.87Типовой проект 801-2-85.12.87Типовой проект 801-2-85.12.87Типовой проект 801-2-85.12.87Типовой проект 801-2-85.12.87Типовой проект 801-2-85.12.87Типовой проект 801-2-85.12.87Типовой проект 801-2-85.12.87Типовой проект 801-2-85.12.87Типовой проект 801-2-85.12.87Типовой проект 801-2-85.12.87Типовой проект 801-2-85.12.87Типовой проект 801-2-85.12.87Типовой проект 801-2-85.12.87Типовой проект 801-2-85.12.87Типовой проект 801-2-85.12.87Типовой проект 801-2-85.12.87Типовой проект 801-2-85.12.87Типовой проект 801-2-85.12.87Типовой проект 801-2-85.12.87Типовой проект 801-2-85.12.87Типовой проект 801-2-85.12.87Типовой проект 801-2-85.12.87Типовой проект 801-2-85.12.87Типовой проект 801-2-85.12.87Типовой проект 801-2-85.12.87Типовой проект 801-2-85.12.87Типовой проект 801-2-85.12.87Типовой проект 801-2-85.12.87Типовой проект 801-2-85.12.87Типовой проект 801-2-85.12.87Типовой проект 801-2-85.12.87Типовой проект 801-2-85.12.87Типовой проект 801-2-85.12.87Типовой проект 801-2-85.12.87Типовой проект 801-2-85.12.87Типовой проект 801-2-85.12.87

© 2013 Ёшкин Кот :-) Карта сайта