| ||||||||||||||||||||||||||||||||
Скачать Серия 1.134.1-11 Выпуск 1. Книга 1. Блоки толщиной 20 см. Материалы для проектирования и рабочие чертежиДата актуализации: 10.08.2017
|
| Обозначение: | Серия 1.134.1-11 |
| Обозначение англ: | Series 1.134.1-11 |
| Статус: | не определен законодательством |
| Название рус.: | Выпуск 1. Книга 1. Блоки толщиной 20 см. Материалы для проектирования и рабочие чертежи |
| Дата добавления в базу: | 01.09.2013 |
| Дата актуализации: | 05.05.2017 |
| Дата введения: | 25.06.1989 |
| Область применения: | Рабочие чертежи блоков внутренних стен, представленные в настоящем выпуске, предназначены для изготовления блоков, применяемых во внутренних стенах жилых домов с крупноблочными стенами высотой 5 - 9 этажей, строящихся во II и III климатических районах и в IВ подрайоне в обычных инженерно-геологических условиях |
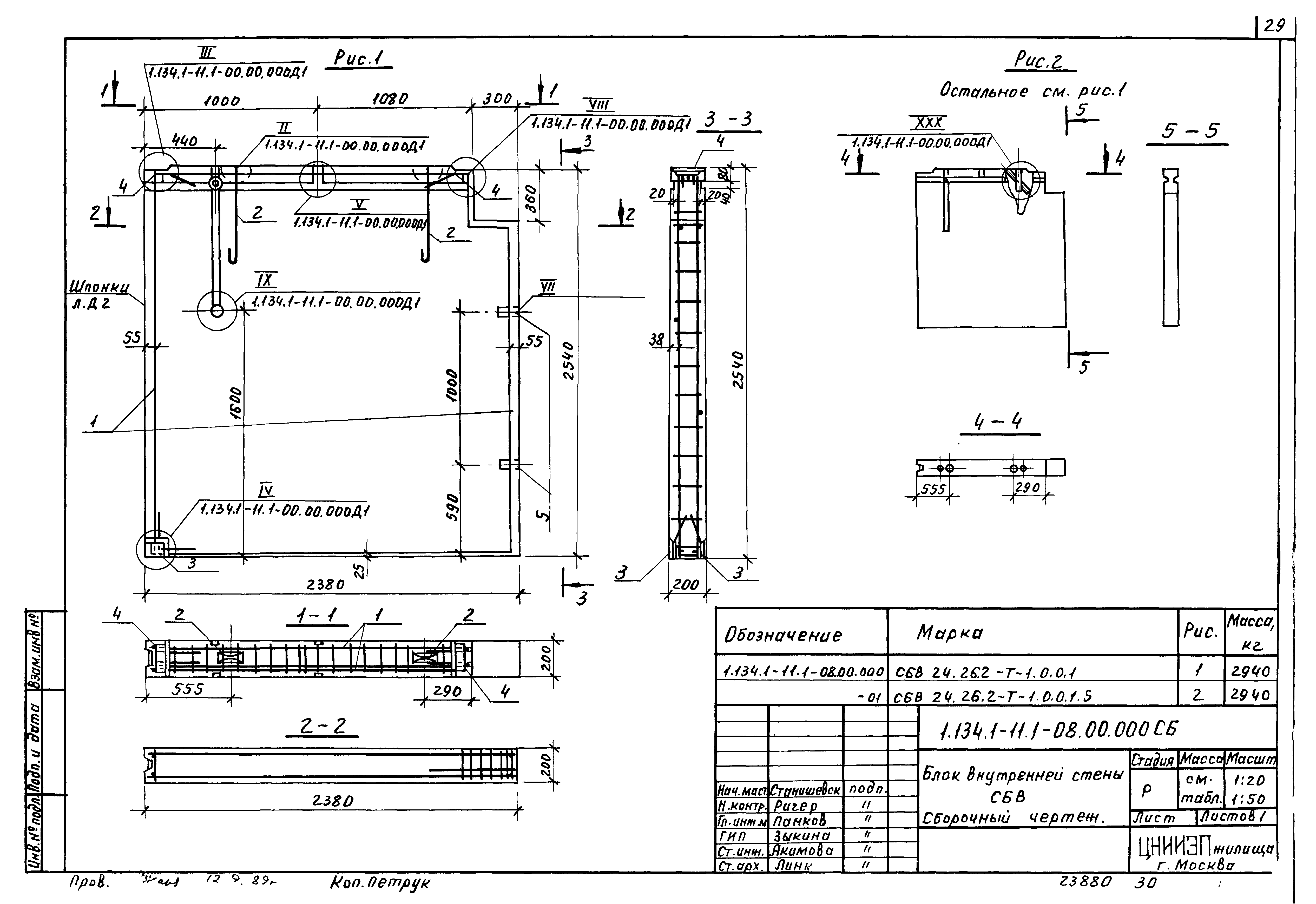
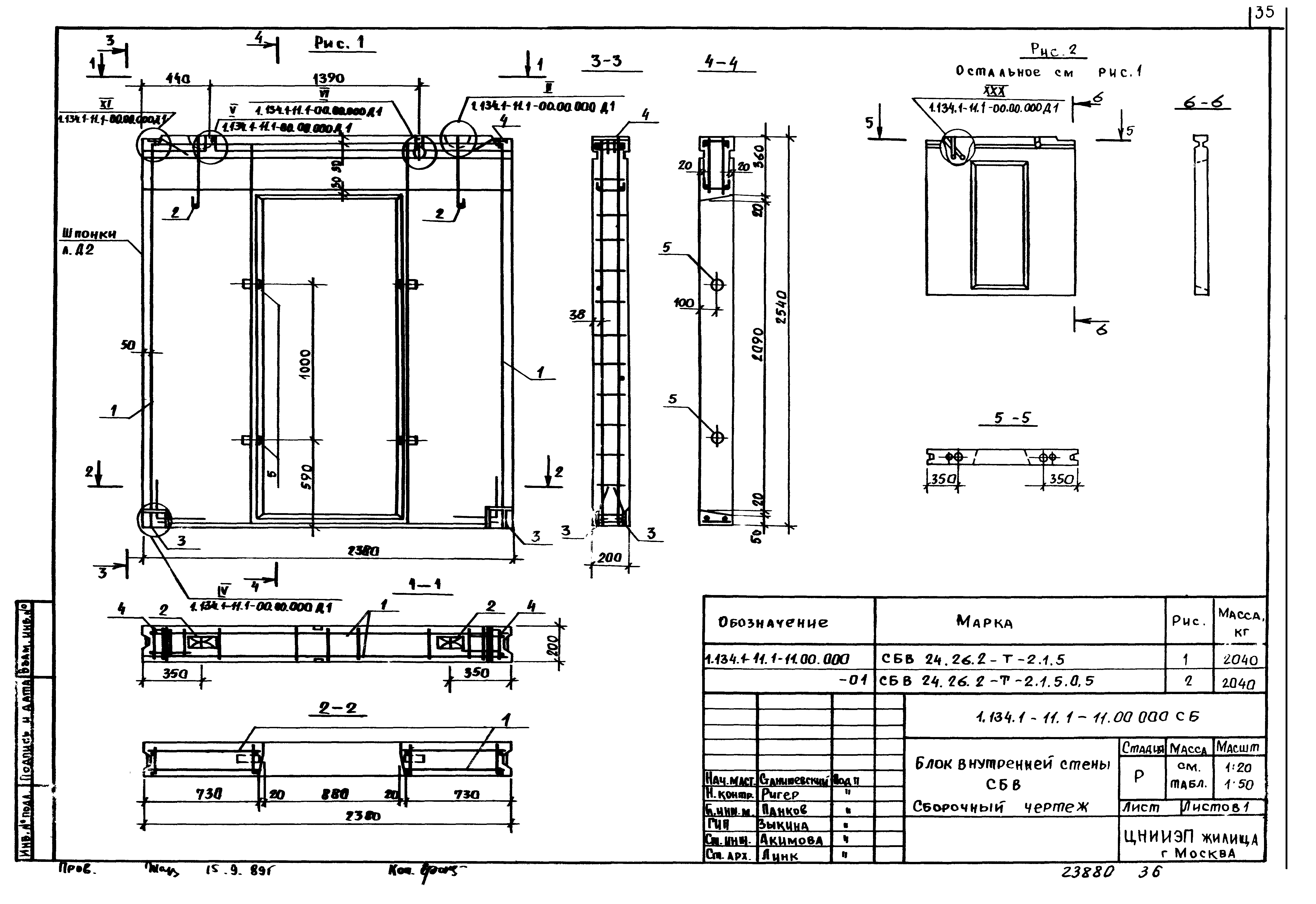
| Оглавление: | 1.134.1-11.1-00.00.000 Содержание 1.134.1-11.1-00.00.000 ТО Техническое описание 1.134.1-11.1-00.00.000 НИ Номенклатура блоков 1.134.1-11.1-01.00.000 Блок внутренней стены СБВ 1.134.1-11.1-01.00.000 СБ Блок внутренней стены СБВ. Сборочный чертеж 1.134.1-11.1-02.00.000 Блок внутренней стены СБВ 1.134.1-11.1-02.00.000 СБ Блок внутренней стены СБВ. Сборочный чертеж 1.134.1-11.1-03.00.000 Блок внутренней стены СБВ 1.134.1-11.1-03.00.000 СБ Блок внутренней стены СБВ. Сборочный чертеж 1.134.1-11.1-04.00.000 Блок внутренней стены СБВ 1.134.1-11.1-04.00.000 СБ Блок внутренней стены СБВ. Сборочный чертеж 1.134.1-11.1-05.00.000 Блок внутренней стены СБВ 1.134.1-11.1-05.00.000 СБ Блок внутренней стены СБВ. Сборочный чертеж 1.134.1-11.1-06.00.000 Блок внутренней стены СБВ 1.134.1-11.1-06.00.000 СБ Блок внутренней стены СБВ. Сборочный чертеж 1.134.1-11.1-07.00.000 Блок внутренней стены СБВ 1.134.1-11.1-07.00.000 СБ Блок внутренней стены СБВ. Сборочный чертеж 1.134.1-11.1-08.00.000 Блок внутренней стены СБВ 1.134.1-11.1-08.00.000 СБ Блок внутренней стены СБВ. Сборочный чертеж 1.134.1-11.1-09.00.000 Блок внутренней стены СБВ 1.134.1-11.1-09.00.000 СБ Блок внутренней стены СБВ. Сборочный чертеж 1.134.1-11.1-10.00.000 Блок внутренней стены СБВ 1.134.1-11.1-10.00.000 СБ Блок внутренней стены СБВ. Сборочный чертеж 1.134.1-11.1-11.00.000 Блок внутренней стены СБВ 1.134.1-11.1-11.00.000 СБ Блок внутренней стены СБВ. Сборочный чертеж 1.134.1-11.1-12.00.000 Блок внутренней стены СБВ 1.134.1-11.1-12.00.000 СБ Блок внутренней стены СБВ. Сборочный чертеж 1.134.1-11.1-13.00.000 Блок внутренней стены СБВ 1.134.1-11.1-13.00.000 СБ Блок внутренней стены СБВ. Сборочный чертеж 1.134.1-11.1-14.00.000 Блок внутренней стены СБВ 1.134.1-11.1-14.00.000 СБ Блок внутренней стены СБВ. Сборочный чертеж 1.134.1-11.1-15.00.000 Блок внутренней стены СБВ 1.134.1-11.1-15.00.000 СБ Блок внутренней стены СБВ. Сборочный чертеж 1.134.1-11.1-16.00.000 Блок внутренней стены СБВ 1.134.1-11.1-17.00.000 Блок внутренней стены СБВ 1.134.1-11.1-16.00.000 СБ Блок внутренней стены СБВ. Сборочный чертеж 1.134.1-11.1-17.00.000 СБ Блок внутренней стены СБВ. Сборочный чертеж 1.134.1-11.1-18.00.000 Блок внутренней стены СБВ 1.134.1-11.1-18.00.000 СБ Блок внутренней стены СБВ. Сборочный чертеж 1.134.1-11.1-19.00.000 Блок внутренней стены СБВ 1.134.1-11.1-19.00.000 СБ Блок внутренней стены СБВ. Сборочный чертеж 1.134.1-11.1-20.00.000 Блок внутренней стены СБВ 1.134.1-11.1-21.00.000 Блок внутренней стены СБВ 1.134.1-11.1-20.00.000 СБ Блок внутренней стены СБВ. Сборочный чертеж 1.134.1-11.1-21.00.000 СБ Блок внутренней стены СБВ. Сборочный чертеж 1.134.1-11.1-22.00.000 Блок внутренней стены СБВ 1.134.1-11.1-23.00.000 Блок внутренней стены СБВ 1.134.1-11.1-22.00.000 СБ Блок внутренней стены СБВ. Сборочный чертеж 1.134.1-11.1-23.00.000 СБ Блок внутренней стены СБВ. Сборочный чертеж 1.134.1-11.1-24.00.000 Блок внутренней стены СБВ 1.134.1-11.1-24.00.000 СБ Блок внутренней стены СБВ. Сборочный чертеж 1.134.1-11.1-25.00.000 Блок внутренней стены СБВ 1.134.1-11.1-25.00.000 СБ Блок внутренней стены СБВ. Сборочный чертеж 1.134.1-11.1-26.00.000 Блок внутренней стены СБВ 1.134.1-11.1-26.00.000 СБ Блок внутренней стены СБВ. Сборочный чертеж 1.134.1-11.1-27.00.000 Блок внутренней стены СБВ 1.134.1-11.1-27.00.000 СБ Блок внутренней стены СБВ. Сборочный чертеж 1.134.1-11.1-28.00.000 Блок внутренней стены СБВ 1.134.1-11.1-28.00.000 СБ Блок внутренней стены СБВ. Сборочный чертеж 1.134.1-11.1-29.00.000 Блок внутренней стены СБВ 1.134.1-11.1-29.00.000 СБ Блок внутренней стены СБВ. Сборочный чертеж |
| Разработан: | ЦНИИЭП жилища |
| Утверждён: | 19.06.1989 Госкомархитектура (113) |
| Издан: | ЦИТП Госстроя СССР (CITP, Gosstroy (USSR) 1989 г. ) |
| Расположен в: | |
| Нормативные ссылки: |
|





































































