| ||||||||||||||||||||||||||||
Скачать Серия 1.131-1/82 Выпуск 1. Панели внутренних продольных стен толщиной 120 и 160 мм. Рабочие чертежиДата актуализации: 10.08.2017
|
| Обозначение: | Серия 1.131-1/82 |
| Обозначение англ: | Series 1.131-1/82 |
| Статус: | действует |
| Название рус.: | Выпуск 1. Панели внутренних продольных стен толщиной 120 и 160 мм. Рабочие чертежи |
| Дата добавления в базу: | 01.09.2013 |
| Дата актуализации: | 05.05.2017 |
| Область применения: | Стеновые панели предназначены для 5 - и 9 - этажных зданий, запроектированных с размерами планировочной сетки, кратными 600 мм |
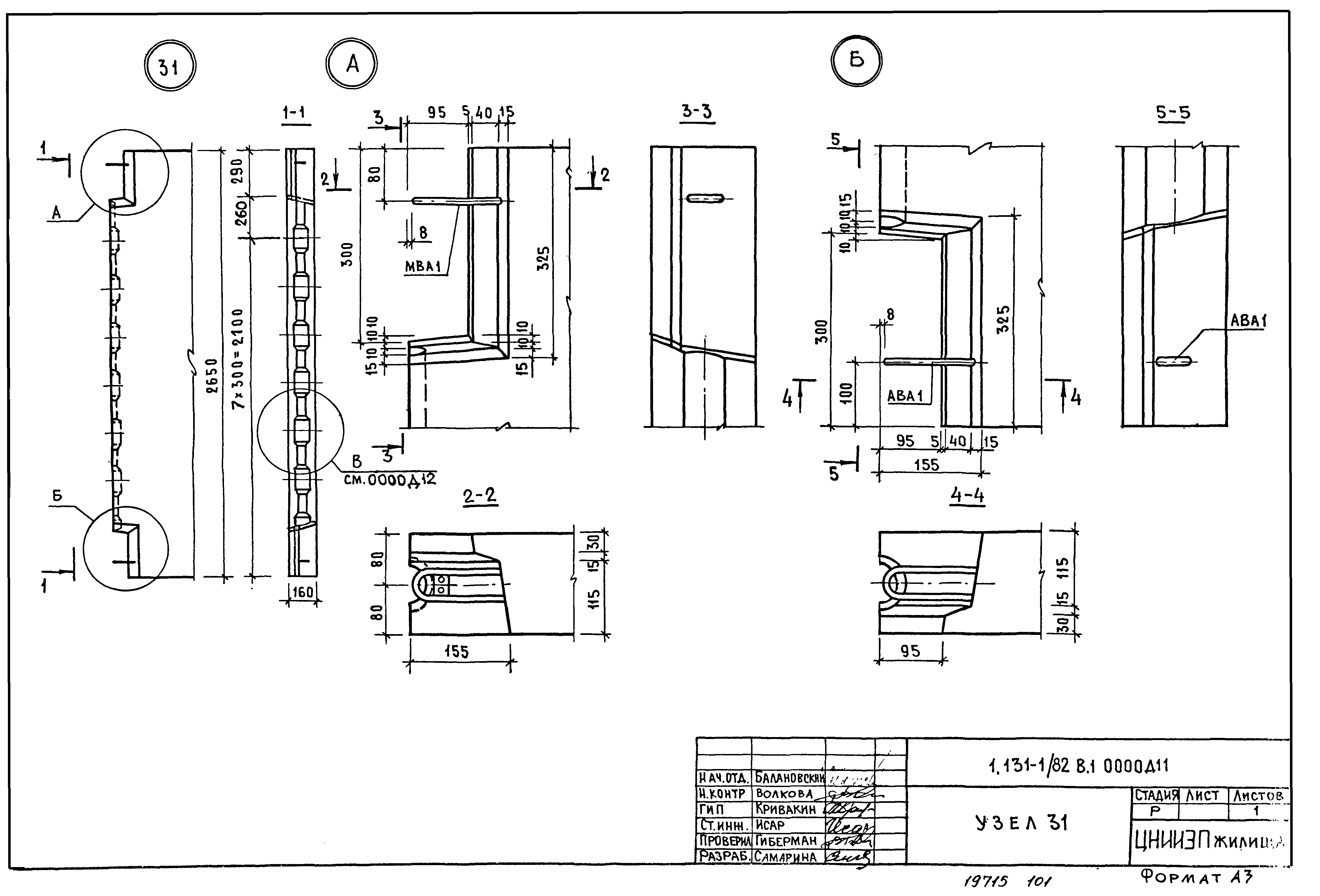
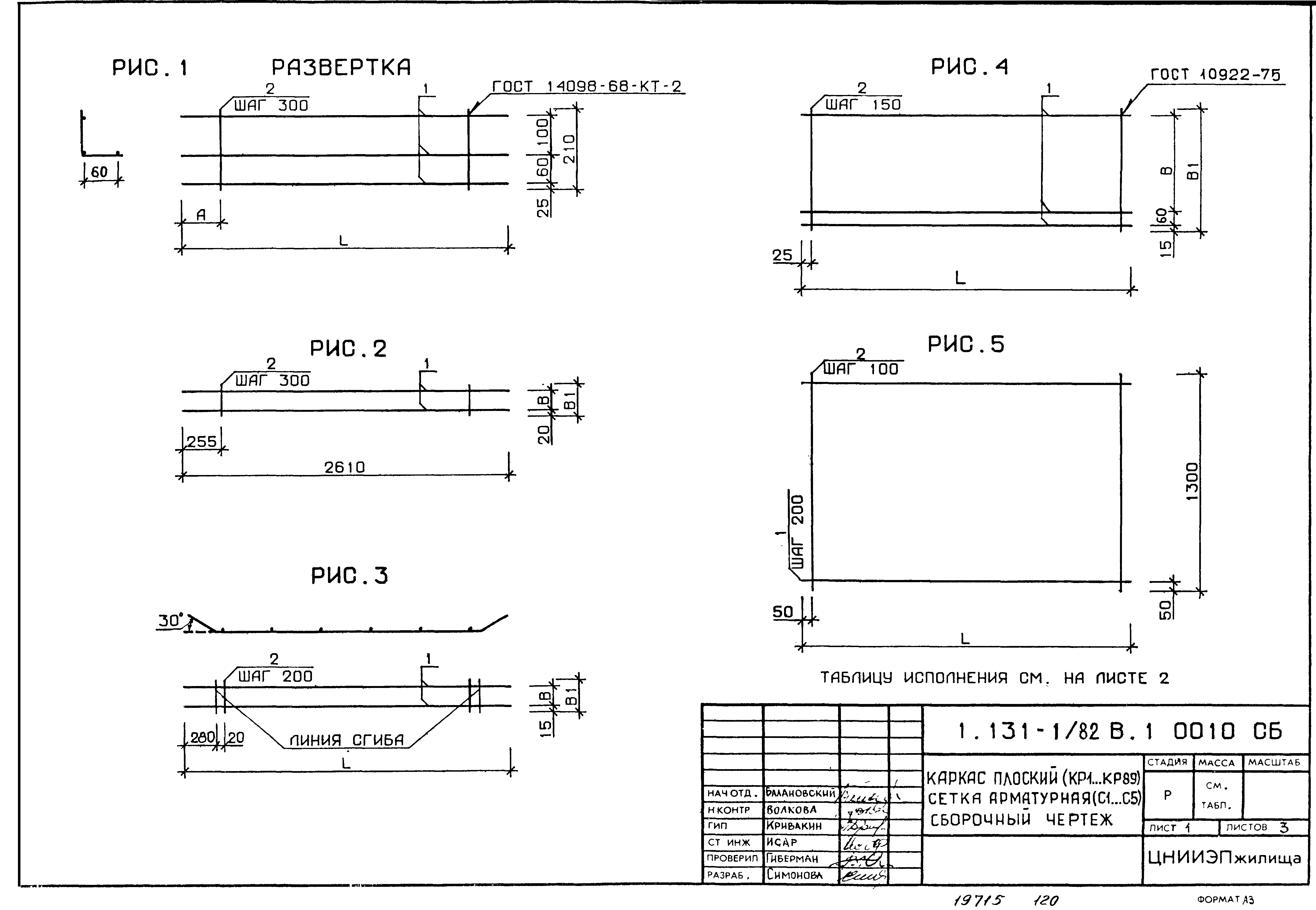
| Оглавление: | 1.131-1/82 В.1 0000 ТО Техническое описание 1.131-1/82 В.1 0000 Д1 Номенклатура панелей 1.131-1/82 В.1 1000 Панель В1: В1.3-23.27.12-1 1.131-1/82 В.1 1000-01 Панель В1: В1.3-29.27.12-1 1.131-1/82 В.1 1000-02 Панель В1: В1.3-35.27.12-1 1.131-1/82 В.1 1000-03 Панель В1: В1.3-47.27.12-1 1.131-1/82 В.1 1000-04 Панель В1: В1.3-53.27.12-1 1.131-1/82 В.1 1000-05 Панель В1: В1.3-59.27.12-1 1.131-1/82 В.1 1000-06 Панель В1: В1.3-65.27.12-1 1.131-1/82 В.1 1000-07 Панель В1: В1.3-71.27.12-1 1.131-1/82 В.1 1000 СБ Панель В1. Сборочный чертеж 1.131-1/82 В.1 0100 Каркас пространственный (КП60… КП67) 1.131-1/82 В.1 0100 СБ Каркас пространственный (КП60… КП67). Сборочный чертеж 1.131-1/82 В.1 1000 Д2 Ведомость расхода материалов 1.131-1/82 В.1 2000 Панель В1: В1.3-23.27.12-2.1 1.131-1/82 В.1 2000-01 Панель В1: В1.3-23.27.12-2.2 1.131-1/82 В.1 2000-02 Панель В1: В1.3-23.27.12-2.3 1.131-1/82 В.1 2000-03 Панель В1: В1.3-29.27.12-2.1 1.131-1/82 В.1 2000-04 Панель В1: В1.3-29.27.12-2.2 1.131-1/82 В.1 2000-05 Панель В1: В1.3-29.27.12-2.3 1.131-1/82 В.1 2000-06 Панель В1: В1.3-29.27.12-2.4 1.131-1/82 В.1 2000-07 Панель В1: В1.3-29.27.12-2.5 1.131-1/82 В.1 2000-08 Панель В1: В1.3-29.27.12-2.6 1.131-1/82 В.1 2000-09 Панель В1: В1.3-35.27.12-2.1 1.131-1/82 В.1 2000-10 Панель В1: В1.3-35.27.12-2.2 1.131-1/82 В.1 2000-11 Панель В1: В1.3-35.27.12-2.3 1.131-1/82 В.1 2000-12 Панель В1: В1.3-35.27.12-2.4 1.131-1/82 В.1 2000-13 Панель В1: В1.3-35.27.12-2.5 1.131-1/82 В.1 2000-14 Панель В1: В1.3-35.27.12-2.6 1.131-1/82 В.1 2000-15 Панель В1: В1.3-35.27.12-2.7 1.131-1/82 В.1 2000-16 Панель В1: В1.3-47.27.12-2.1 1.131-1/82 В.1 2000-17 Панель В1: В1.3-47.27.12-2.2 1.131-1/82 В.1 2000-18 Панель В1: В1.3-47.27.12-2.3 1.131-1/82 В.1 2000-19 Панель В1: В1.3-47.27.12-2.4 1.131-1/82 В.1 2000-20 Панель В1: В1.3-47.27.12-2.5 1.131-1/82 В.1 2000-21 Панель В1: В1.3-47.27.12-2.6 1.131-1/82 В.1 2000-22 Панель В1: В1.3-47.27.12-2.7 1.131-1/82 В.1 2000-23 Панель В1: В1.3-53.27.12-2.1 1.131-1/82 В.1 2000-24 Панель В1: В1.3-53.27.12-2.2 1.131-1/82 В.1 2000-25 Панель В1: В1.3-53.27.12-2.3 1.131-1/82 В.1 2000-26 Панель В1: В1.3-53.27.12-2.4 1.131-1/82 В.1 2000-27 Панель В1: В1.3-53.27.12-2.5 1.131-1/82 В.1 2000-28 Панель В1: В1.3-53.27.12-2.6 1.131-1/82 В.1 2000-29 Панель В1: В1.3-53.27.12-2.7 1.131-1/82 В.1 2000-30 Панель В1: В1.3-59.27.12-2.1 1.131-1/82 В.1 2000-31 Панель В1: В1.3-59.27.12-2.2 1.131-1/82 В.1 2000-32 Панель В1: В1.3-59.27.12-2.3 1.131-1/82 В.1 2000-33 Панель В1: В1.3-59.27.12-2.4 1.131-1/82 В.1 2000-34 Панель В1: В1.3-59.27.12-2.5 1.131-1/82 В.1 2000-35 Панель В1: В1.3-59.27.12-2.6 1.131-1/82 В.1 2000-36 Панель В1: В1.3-59.27.12-2.7 1.131-1/82 В.1 2000-37 Панель В1: В1.3-65.27.12-2.1 1.131-1/82 В.1 2000-38 Панель В1: В1.3-65.27.12-2.2 1.131-1/82 В.1 2000-39 Панель В1: В1.3-65.27.12-2.3 1.131-1/82 В.1 2000-40 Панель В1: В1.3-65.27.12-2.4 1.131-1/82 В.1 2000-41 Панель В1: В1.3-65.27.12-2.5 1.131-1/82 В.1 2000-42 Панель В1: В1.3-65.27.12-2.6 1.131-1/82 В.1 2000-43 Панель В1: В1.3-65.27.12-2.7 1.131-1/82 В.1 2000-44 Панель В1: В1.3-71.27.12-2.1 1.131-1/82 В.1 2000-45 Панель В1: В1.3-71.27.12-2.2 1.131-1/82 В.1 2000-46 Панель В1: В1.3-71.27.12-2.3 1.131-1/82 В.1 2000-47 Панель В1: В1.3-71.27.12-2.4 1.131-1/82 В.1 2000-48 Панель В1: В1.3-71.27.12-2.5 1.131-1/82 В.1 2000-49 Панель В1: В1.3-71.27.12-2.6 1.131-1/82 В.1 2000-50 Панель В1: В1.3-71.27.12-2.7 1.131-1/82 В.1 2000 СБ Панель В1. Сборочный чертеж 1.131-1/82 В.1 0200 Каркас пространственный (КП68… КП118) 1.131-1/82 В.1 2000 СБ Каркас пространственный (КП68… КП118). Сборочный чертеж 1.131-1/82 В.1 2000 Д3 Ведомость расхода материалов 1.131-1/82 В.1 3000 Панель В1: В1.5-23.27.16-1 1.131-1/82 В.1 3000-01 Панель В1: В1.5-29.27.16-1 1.131-1/82 В.1 3000-02 Панель В1: В1.5-35.27.16-1 1.131-1/82 В.1 3000-03 Панель В1: В1.5-47.27.16-1 1.131-1/82 В.1 3000-04 Панель В1: В1.5-53.27.16-1 1.131-1/82 В.1 3000-05 Панель В1: В1.5-59.27.16-1 1.131-1/82 В.1 3000-06 Панель В1: В1.5-65.27.16-1 1.131-1/82 В.1 3000-07 Панель В1: В1.5-71.27.16-1 1.131-1/82 В.1 3000 СБ Панель В1. Сборочный чертеж 1.131-1/82 В.1 0300 Каркас пространственный (КП119… КП126) 1.131-1/82 В.1 0300 СБ Каркас пространственный (КП119… КП126). Сборочный чертеж 1.131-1/82 В.1 3000 Д4 Ведомость расхода материалов 1.131-1/82 В.1 4000 Панель В1: В1.5-23.27.16-2.1 1.131-1/82 В.1 4000-01 Панель В1: В1.5-23.27.16-2.1л 1.131-1/82 В.1 4000-02 Панель В1: В1.5-23.27.16-2.2 1.131-1/82 В.1 4000-03 Панель В1: В1.5-23.27.16-2.2л 1.131-1/82 В.1 4000-04 Панель В1: В1.5-23.27.16-2.3 1.131-1/82 В.1 4000-05 Панель В1: В1.5-23.27.16-2.3л 1.131-1/82 В.1 4000-06 Панель В1: В1.5-29.27.16-2.1 1.131-1/82 В.1 4000-07 Панель В1: В1.5-29.27.16-2.1л 1.131-1/82 В.1 4000-08 Панель В1: В1.5-29.27.16-2.2 1.131-1/82 В.1 4000-09 Панель В1: В1.5-29.27.16-2.2л 1.131-1/82 В.1 4000-10 Панель В1: В1.5-29.27.16-2.3 1.131-1/82 В.1 4000-11 Панель В1: В1.5-29.27.16-2.3л 1.131-1/82 В.1 4000-12 Панель В1: В1.5-29.27.16-2.4 1.131-1/82 В.1 4000-13 Панель В1: В1.5-29.27.16-2.4л 1.131-1/82 В.1 4000-14 Панель В1: В1.5-29.27.16-2.5 1.131-1/82 В.1 4000-15 Панель В1: В1.5-29.27.16-2.5л 1.131-1/82 В.1 4000-16 Панель В1: В1.5-29.27.16-2.6 1.131-1/82 В.1 4000-17 Панель В1: В1.5-29.27.16-2.6л 1.131-1/82 В.1 4000-18 Панель В1: В1.5-35.27.16-2.1 1.131-1/82 В.1 4000-19 Панель В1: В1.5-35.27.16-2.1л 1.131-1/82 В.1 4000-20 Панель В1: В1.5-35.27.16-2.2 1.131-1/82 В.1 4000-21 Панель В1: В1.5-35.27.16-2.2л 1.131-1/82 В.1 4000-22 Панель В1: В1.5-35.27.16-2.3 1.131-1/82 В.1 4000-23 Панель В1: В1.5-35.27.16-2.3л 1.131-1/82 В.1 4000-24 Панель В1: В1.5-35.27.16-2.4 1.131-1/82 В.1 4000-25 Панель В1: В1.5-35.27.16-2.4л 1.131-1/82 В.1 4000-26 Панель В1: В1.5-35.27.16-2.5 1.131-1/82 В.1 4000-27 Панель В1: В1.5-35.27.16-2.5л 1.131-1/82 В.1 4000-28 Панель В1: В1.5-35.27.16-2.6 1.131-1/82 В.1 4000-29 Панель В1: В1.5-35.27.16-2.6л 1.131-1/82 В.1 4000-30 Панель В1: В1.5-35.27.16-2.7 1.131-1/82 В.1 4000-31 Панель В1: В1.5-35.27.16-2.7л 1.131-1/82 В.1 4000-32 Панель В1: В1.5-47.27.16-2.1 1.131-1/82 В.1 4000-33 Панель В1: В1.5-47.27.16-2.1л 1.131-1/82 В.1 4000-34 Панель В1: В1.5-47.27.16-2.2 1.131-1/82 В.1 4000-35 Панель В1: В1.5-47.27.16-2.2л 1.131-1/82 В.1 4000-36 Панель В1: В1.5-47.27.16-2.3 1.131-1/82 В.1 4000-37 Панель В1: В1.5-47.27.16-2.3л 1.131-1/82 В.1 4000-38 Панель В1: В1.5-47.27.16-2.4 1.131-1/82 В.1 4000-39 Панель В1: В1.5-47.27.16-2.4л 1.131-1/82 В.1 4000-40 Панель В1: В1.5-47.27.16-2.5 1.131-1/82 В.1 4000-41 Панель В1: В1.5-47.27.16-2.5л 1.131-1/82 В.1 4000-42 Панель В1: В1.5-47.27.16-2.6 1.131-1/82 В.1 4000-43 Панель В1: В1.5-47.27.16-2.6л 1.131-1/82 В.1 4000-44 Панель В1: В1.5-47.27.16-2.7 1.131-1/82 В.1 4000-45 Панель В1: В1.5-47.27.16-2.7л 1.131-1/82 В.1 4000-46 Панель В1: В1.5-53.27.16-2.1 1.131-1/82 В.1 4000-47 Панель В1: В1.5-53.27.16-2.1л 1.131-1/82 В.1 4000-48 Панель В1: В1.5-53.27.16-2.2 1.131-1/82 В.1 4000-49 Панель В1: В1.5-53.27.16-2.2л 1.131-1/82 В.1 4000-50 Панель В1: В1.5-53.27.16-2.3 1.131-1/82 В.1 4000-51 Панель В1: В1.5-53.27.16-2.3л 1.131-1/82 В.1 4000-52 Панель В1: В1.5-53.27.16-2.4 1.131-1/82 В.1 4000-53 Панель В1: В1.5-53.27.16-2.4л 1.131-1/82 В.1 4000-54 Панель В1: В1.5-53.27.16-2.5 1.131-1/82 В.1 4000-55 Панель В1: В1.5-53.27.16-2.5л 1.131-1/82 В.1 4000-56 Панель В1: В1.5-53.27.16-2.6 1.131-1/82 В.1 4000-57 Панель В1: В1.5-53.27.16-2.6л 1.131-1/82 В.1 4000-58 Панель В1: В1.5-53.27.16-2.7 1.131-1/82 В.1 4000-59 Панель В1: В1.5-53.27.16-2.7л 1.131-1/82 В.1 4000-60 Панель В1: В1.5-59.27.16-2.1 1.131-1/82 В.1 4000-61 Панель В1: В1.5-59.27.16-2.1л 1.131-1/82 В.1 4000-62 Панель В1: В1.5-59.27.16-2.2 1.131-1/82 В.1 4000-63 Панель В1: В1.5-59.27.16-2.2л 1.131-1/82 В.1 4000-64 Панель В1: В1.5-59.27.16-2.3 1.131-1/82 В.1 4000-65 Панель В1: В1.5-59.27.16-2.3л 1.131-1/82 В.1 4000-66 Панель В1: В1.5-59.27.16-2.4 1.131-1/82 В.1 4000-67 Панель В1: В1.5-59.27.16-2.4л 1.131-1/82 В.1 4000-68 Панель В1: В1.5-59.27.16-2.5 1.131-1/82 В.1 4000-69 Панель В1: В1.5-59.27.16-2.5л 1.131-1/82 В.1 4000-70 Панель В1: В1.5-59.27.16-2.6 1.131-1/82 В.1 4000-71 Панель В1: В1.5-59.27.16-2.6л 1.131-1/82 В.1 4000-72 Панель В1: В1.5-59.27.16-2.7 1.131-1/82 В.1 4000-73 Панель В1: В1.5-59.27.16-2.7л 1.131-1/82 В.1 4000-74 Панель В1: В1.5-65.27.16-2.1 1.131-1/82 В.1 4000-75 Панель В1: В1.5-65.27.16-2.1л 1.131-1/82 В.1 4000-76 Панель В1: В1.5-65.27.16-2.2 1.131-1/82 В.1 4000-77 Панель В1: В1.5-65.27.16-2.2л 1.131-1/82 В.1 4000-78 Панель В1: В1.5-65.27.16-2.3 1.131-1/82 В.1 4000-79 Панель В1: В1.5-65.27.16-2.3л 1.131-1/82 В.1 4000-80 Панель В1: В1.5-65.27.16-2.4 1.131-1/82 В.1 4000-81 Панель В1: В1.5-65.27.16-2.4л 1.131-1/82 В.1 4000-82 Панель В1: В1.5-65.27.16-2.5 1.131-1/82 В.1 4000-83 Панель В1: В1.5-65.27.16-2.5л 1.131-1/82 В.1 4000-84 Панель В1: В1.5-65.27.16-2.6 1.131-1/82 В.1 4000-85 Панель В1: В1.5-65.27.16-2.6л 1.131-1/82 В.1 4000-86 Панель В1: В1.5-65.27.16-2.7 1.131-1/82 В.1 4000-87 Панель В1: В1.5-65.27.16-2.7л 1.131-1/82 В.1 4000-88 Панель В1: В1.5-71.27.16-2.1 1.131-1/82 В.1 4000-89 Панель В1: В1.5-71.27.16-2.1л 1.131-1/82 В.1 4000-90 Панель В1: В1.5-71.27.16-2.2 1.131-1/82 В.1 4000-91 Панель В1: В1.5-71.27.16-2.2л 1.131-1/82 В.1 4000-92 Панель В1: В1.5-71.27.16-2.3 1.131-1/82 В.1 4000-93 Панель В1: В1.5-71.27.16-2.3л 1.131-1/82 В.1 4000-94 Панель В1: В1.5-71.27.16-2.4 1.131-1/82 В.1 4000-95 Панель В1: В1.5-71.27.16-2.4л 1.131-1/82 В.1 4000-96 Панель В1: В1.5-71.27.16-2.5 1.131-1/82 В.1 4000-97 Панель В1: В1.5-71.27.16-2.5л 1.131-1/82 В.1 4000-98 Панель В1: В1.5-71.27.16-2.6 1.131-1/82 В.1 4000-99 Панель В1: В1.5-71.27.16-2.6л 1.131-1/82 В.1 4000-100 Панель В1: В1.5-71.27.16-2.7 1.131-1/82 В.1 4000-101 Панель В1: В1.5-71.27.16-2.7л 1.131-1/82 В.1 4000 СБ Панель В1. Сборочный чертеж 1.131-1/82 В.1 0400 Каркас пространственный (КП127… КП177) 1.131-1/82 В.1 0400 СБ Каркас пространственный (КП127… КП177). Сборочный чертеж 1.131-1/82 В.1 4000 Д5 Ведомость расхода материалов 1.131-1/82 В.1 0000 Д2 Узел 1 1.131-1/82 В.1 0000 Д3 Узел 2 1.131-1/82 В.1 0000 Д4 Узел 3 1.131-1/82 В.1 0000 Д5 Узлы 4… 8 1.131-1/82 В.1 0000 Д6 Узлы 9… 12 1.131-1/82 В.1 0000 Д7 Узлы 13; 14 1.131-1/82 В.1 0000 Д8 Узлы 15; 16 1.131-1/82 В.1 0000 Д9 Узлы 17; 18 1.131-1/82 В.1 0000 Д10 Узлы 19; 20 1.131-1/82 В.1 0000 Д11 Узел 31 1.131-1/82 В.1 0000 Д12 Узел 32 1.131-1/82 В.1 0000 Д13 Узлы 33; 34 1.131-1/82 В.1 0000 Д14 Узлы 35… 39 1.131-1/82 В.1 0000 Д15 Узлы 40… 44 1.131-1/82 В.1 0000 Д16 Узлы 45; 46 1.131-1/82 В.1 0000 Д17 Узлы 47; 47А; 48; 48А 1.131-1/82 В.1 0000 Д18 Узлы 49; 49А; 50 1.131-1/82 В.1 0000 Д19 Узлы 51; 52 1.131-1/82 В.1 0000 Д20 Узлы 53; 54 1.131-1/82 В.1 0000 Д21 Узлы 21; 22 1.131-1/82 В.1 0000 Д22 Узел 23 1.131-1/82 В.1 0000 Д20 Узлы 55; 56 1.131-1/82 В.1 0000 Д20 Узлы 13; 45. Вариант 1.131-1/82 В.1 0010 Каркас плоский (КР1… КР89). Сетка арматурная 1.131-1/82 В.1 0010 СБ Каркас плоский (КР1… КР89). Сетка арматурная. Сборочный чертеж 1.131-1/82 В.1 0020 Изделие закладное (МВА1; МВА2) 1.131-1/82 В.1 0030 Изделие закладное МН3 1.131-1/82 В.1 0040 Изделие закладное МН4 1.131-1/82 В.1 0001 Стержень гнутый (АВА1; АВА2) 1.131-1/82 В.1 0002 Петля строповочная (ПВ1… ПВ5) 1.131-1/82 В.1 0003 Стержень гнутый (АВ3… АВ7) |
| Разработан: | ЦНИИЭП жилища |
| Утверждён: | 25.06.1984 Госгражданстрой (Gosgrazhdanstroy 172) |
| Расположен в: | |
| Нормативные ссылки: |
|






























































































































