| ||||||||||||||||||||||||||||||||
Скачать Серия 1.138.1-15 Выпуск 1. Блоки толщиной 40, 50 и 60 см. Материалы для проектирования и рабочие чертежиДата актуализации: 10.08.2017
|
| Обозначение: | Серия 1.138.1-15 |
| Обозначение англ: | Series 1.138.1-15 |
| Статус: | не определен законодательством |
| Название рус.: | Выпуск 1. Блоки толщиной 40, 50 и 60 см. Материалы для проектирования и рабочие чертежи |
| Дата добавления в базу: | 01.09.2013 |
| Дата актуализации: | 05.05.2017 |
| Дата введения: | 25.06.1989 |
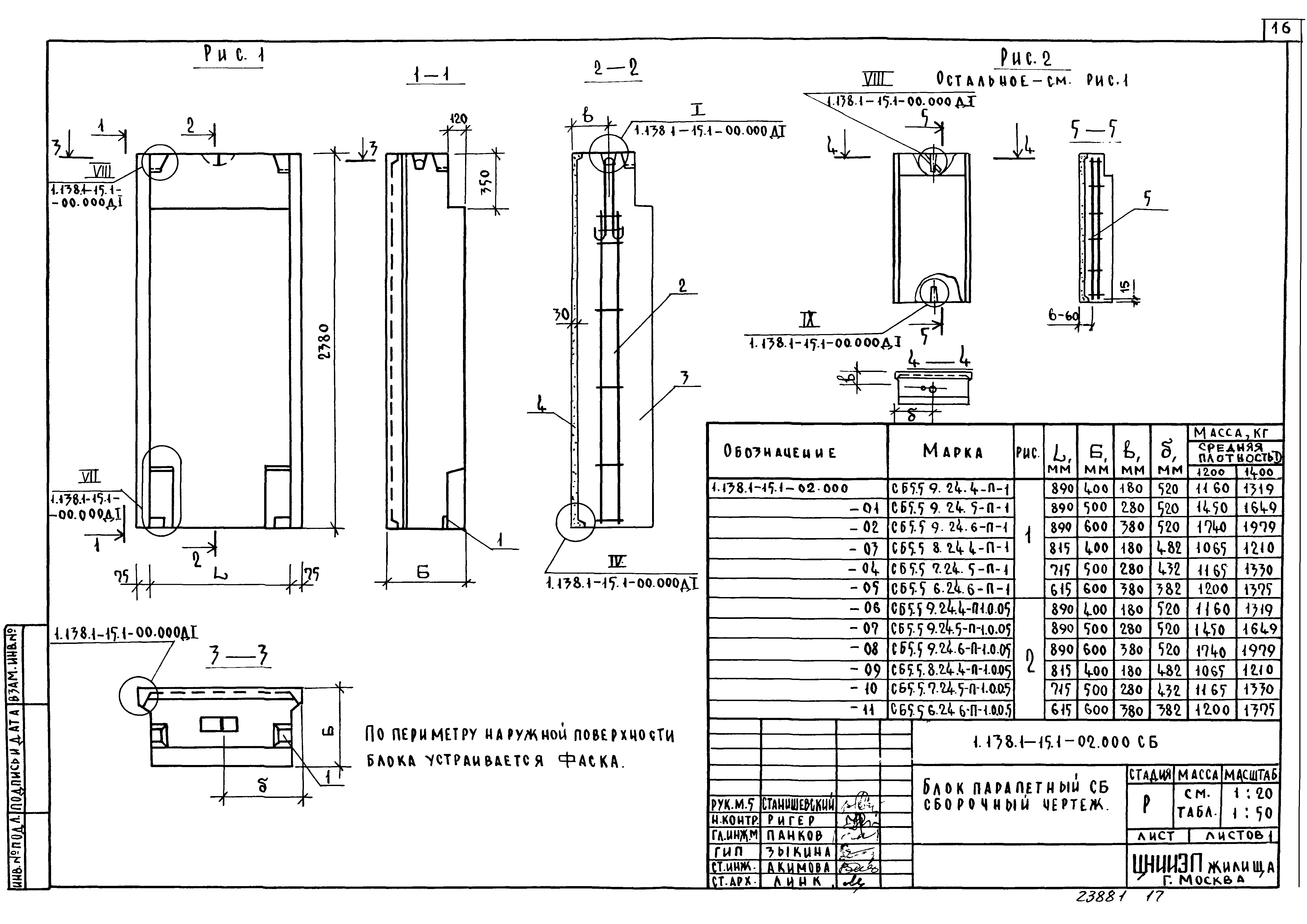
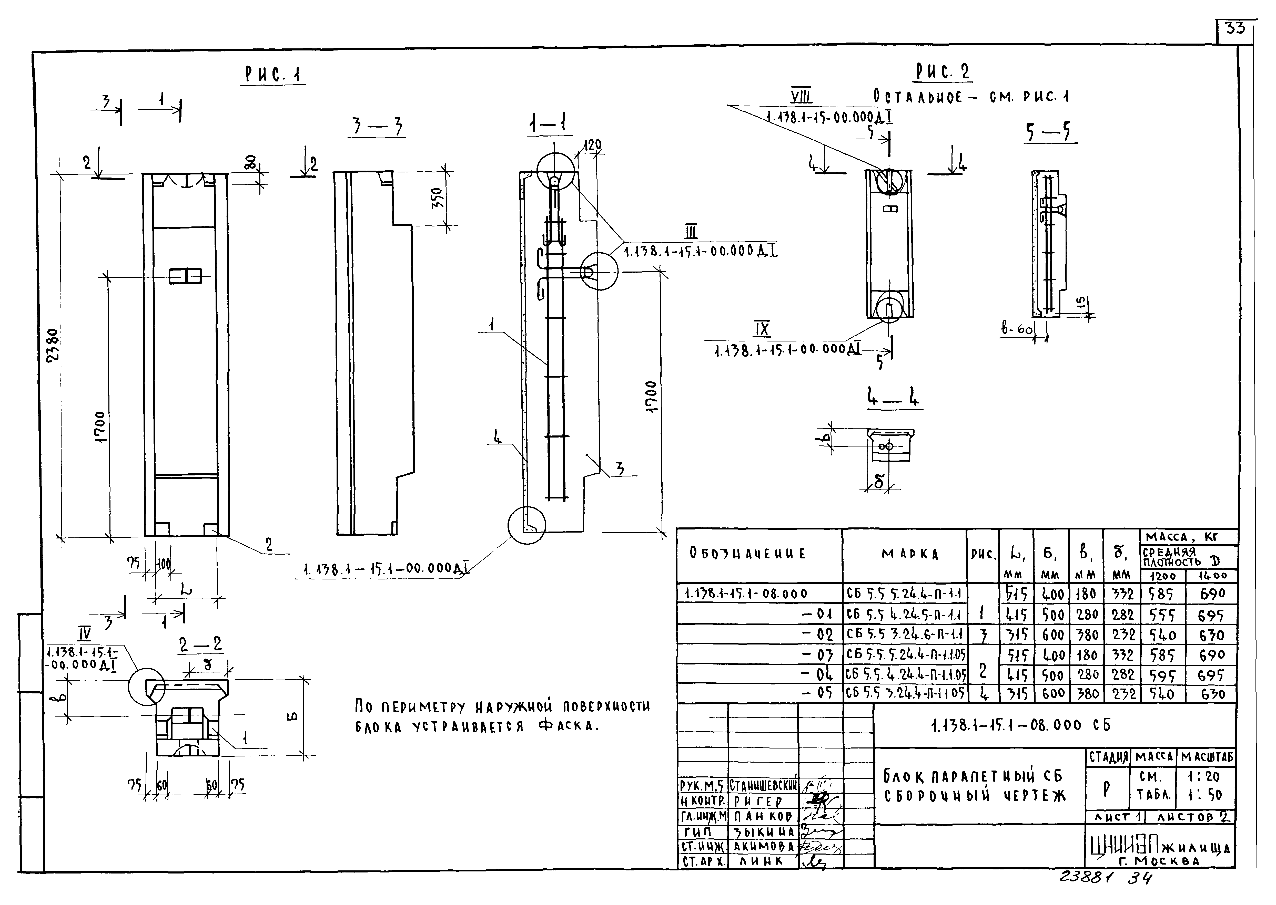
| Область применения: | Рабочие чертежи блоков парапета, разработанные в настоящем выпуске, предназначены для изготовления блоков предприятиями строительной промышленности и применения в наружных стенах жилых домов с крупноблочными стенами высотой 5 - 9 этажей |
| Оглавление: | 1.138.1-15.1-00.000 Содержание 1.138.1-15.1-00.000 ТО Техническое описание 1.138.1-15.1-00.000 НИ Номенклатура изделий 1.138.1-15.1-01.000 Блок парапетный СБ 1.138.1-15.1-01.000 СБ Блок парапетный СБ. Сборочный чертеж 1.138.1-15.1-02.000 Блок парапетный СБ 1.138.1-15.1-02.000 СБ Блок парапетный СБ. Сборочный чертеж 1.138.1-15.1-03.000 Блок парапетный СБ 1.138.1-15.1-03.000 СБ Блок парапетный СБ. Сборочный чертеж 1.138.1-15.1-04.000 Блок парапетный СБ 1.138.1-15.1-04.000 СБ Блок парапетный СБ. Сборочный чертеж 1.138.1-15.1-05.000 Блок парапетный СБ 1.138.1-15.1-05.000 СБ Блок парапетный СБ. Сборочный чертеж 1.138.1-15.1-06.000 Блок парапетный СБ 1.138.1-15.1-06.000 СБ Блок парапетный СБ. Сборочный чертеж 1.138.1-15.1-07.000 Блок парапетный СБ 1.138.1-15.1-07.000 СБ Блок парапетный СБ. Сборочный чертеж 1.138.1-15.1-08.000 Блок парапетный СБ 1.138.1-15.1-08.000 СБ Блок парапетный СБ. Сборочный чертеж 1.138.1-15.1-00.100 Блок арматурный АБ-1… АБ-4 1.138.1-15.1-00.200 Блок арматурный АБ-5, АБ-6, АБ-7 1.138.1-15.1-00.100 СБ Блок арматурный (АБ-1… АБ-4). Сборочный чертеж 1.138.1-15.1-00.200 СБ Блок арматурный (АБ-5, АБ-6, АБ-7). Сборочный чертеж 1.138.1-15.1-00.300 Блок арматурный (АБ-8… АБ-11) 1.138.1-15.1-00.400 Блок арматурный (АБ-12, АБ-13, АБ-14) 1.138.1-15.1-00.300 СБ Блок арматурный (АБ-8… АБ-11). Сборочный чертеж 1.138.1-15.1-00.400 СБ Блок арматурный (АБ-12, АБ-13, АБ-14). Сборочный чертеж 1.138.1-15.1-00.500 Блок арматурный (АБ-15, АБ-20) 1.138.1-15.1-00.500 СБ Блок арматурный (АБ-15, АБ-20). Сборочный чертеж 1.138.1-15.1-00.010 Каркас КР-1, КР-2 1.138.1-15.1-00.020 Изделие закладное М-1 1.138.1-15.1-00.030 Петля строповочная П-1, П-2, П-3 1.138.1-15.1-00.040 Петля монтажная П-4, П-5 1.138.1-15.1-00.050 Каркас КР-3, КР-4 1.138.1-15.1-00.000 Д1 Узлы I… IX 1.138.1-15.1-00.000 РС Ведомость расхода стали 1.138.1-15.1-00.000 ТУ Техническое условия |
| Разработан: | ЦНИИЭП жилища |
| Утверждён: | 19.06.1989 Госкомархитектура (113) |
| Издан: | ЦИТП Госстроя СССР (CITP, Gosstroy (USSR) 1989 г. ) |
| Расположен в: | |
| Нормативные ссылки: |
|





















































