Информационная система
«Ёшкин Кот»

Скачать базу одним архивом
Скачать обновления
История создания базы
Карта сайта

Скачать Серия 1.832.5-11 Выпуск 6-1. Панели с обшивками из асбестоцементных листов для торцов зданий. Рабочие чертежи

Дата актуализации: 10.08.2017

Серия 1.832.5-11

Выпуск 6-1. Панели с обшивками из асбестоцементных листов для торцов зданий. Рабочие чертежи

Обозначение: Серия 1.832.5-11
Обозначение англ: Series 1.832.5-11
Статус:не определен законодательством
Название рус.:Выпуск 6-1. Панели с обшивками из асбестоцементных листов для торцов зданий. Рабочие чертежи
Дата добавления в базу:01.09.2013
Дата актуализации:05.05.2017
Дата введения:15.11.1988
Область применения:В выпуске приведены панели, предназначенные для торцевых стен сельскохозяйственных производственных зданий
Оглавление:1.832.5-11.6-1-000 ПЗ Пояснительная записка
1.832.5-11.6-1-001 Н Номенклатура стеновых панелей с асбестоцементной обшивкой
1.832.5-11.6-1-010 Панель вертикальная длиной 1,5 м с асбестоцементной обшивкой
1.832.5-11.6-1-020 Панель вертикальная длиной 1,8 м с асбестоцементной обшивкой
1.832.5-11.6-1-030 Панель фронтонная высотой 0,8 м с асбестоцементной обшивкой
1.832.5-11.6-1-040 Панель фронтонная высотой 0,95 м с асбестоцементной обшивкой
1.832.5-11.6-1-050 Панель фронтонная высотой 1,1 м с асбестоцементной обшивкой
1.832.5-11.6-1-060 Панель фронтонная высотой 1,05 м с асбестоцементной обшивкой
1.832.5-11.6-1-060 СБ Панель фронтонная высотой 1,05 м с асбестоцементной обшивкой. Сборочный чертеж
1.832.5-11.6-1-070 Панель фронтонная высотой 1,2 м с асбестоцементной обшивкой
1.832.5-11.6-1-070 СБ Панель фронтонная высотой 1,2 м с асбестоцементной обшивкой. Сборочный чертеж
1.832.5-11.6-1-080 Панель фронтонная высотой 1,35 м с асбестоцементной обшивкой
1.832.5-11.6-1-080 СБ Панель фронтонная высотой 1,35 м с асбестоцементной обшивкой. Сборочный чертеж
1.832.5-11.6-1-090 Панель фронтонная высотой 1,5 м с асбестоцементной обшивкой
1.832.5-11.6-1-090 СБ Панель фронтонная высотой 1,5 м с асбестоцементной обшивкой. Сборочный чертеж
1.832.5-11.6-1-100 Панель вертикальная высотой 2,7 м с асбестоцементной обшивкой
1.832.5-11.6-1-100 СБ Панель вертикальная высотой 2,7 м с асбестоцементной обшивкой. Сборочный чертеж
1.832.5-11.6-1-110 Панель вертикальная высотой 3,0 м с асбестоцементной обшивкой
1.832.5-11.6-1-110 СБ Панель вертикальная высотой 3,0 м с асбестоцементной обшивкой. Сборочный чертеж
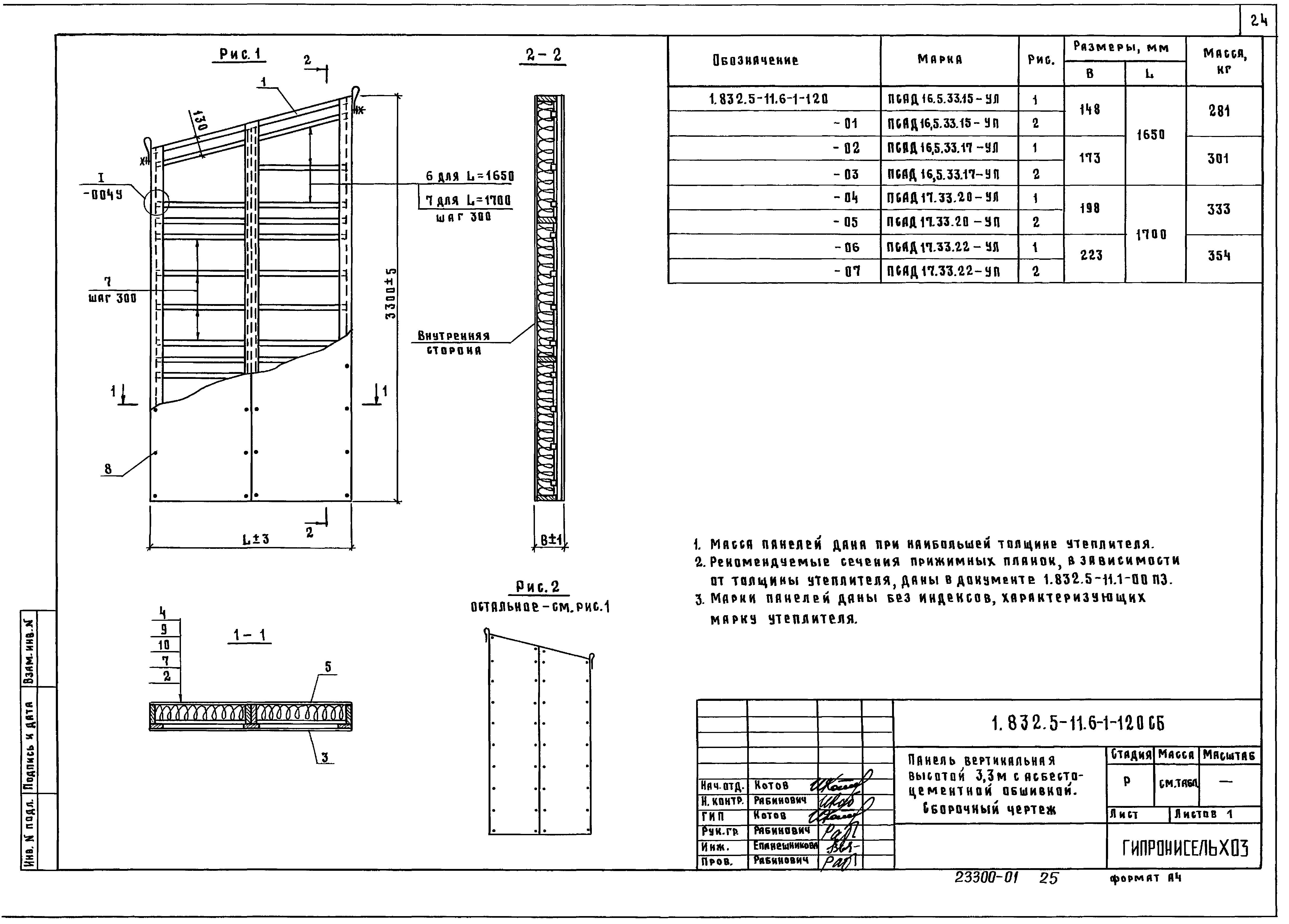
1.832.5-11.6-1-120 Панель вертикальная высотой 3,3 м с асбестоцементной обшивкой
1.832.5-11.6-1-120 СБ Панель вертикальная высотой 3,3 м с асбестоцементной обшивкой. Сборочный чертеж
1.832.5-11.6-1-130 Панель вертикальная высотой 3,6 м с асбестоцементной обшивкой
1.832.5-11.6-1-130 СБ Панель вертикальная высотой 3,6 м с асбестоцементной обшивкой. Сборочный чертеж
1.832.5-11.6-1-002 Обшивка наружная Л1… Л6-8
1.832.5-11.6-1-003 Обшивка наружная Л7… Л12-8
1.832.5-11.6-1-004 У Узлы I, II
1.832.5-11.6-1-005 У Варианты навешивания прошивных матов
Разработан: ЦНИИСК им. В.А. Кучеренко
ЦНИИЭПсельстрой
ГипроНИсельхоз (Институт Гипронисельхоз )
Утверждён:07.05.1988 Госагропром СССР (USSR Gosagroprom 804-48/582)
Расположен в:Техническая документация Строительство Справочные документы Типовые строительные конструкции, изделия и узлы Общероссийский строительный каталог Строительные конструкции, изделия и узлы зданий и сооружений для всех видов строительства Конструкции, изделия и узлы зданий Ограждающие конструкции Стены наружные Металлические и из других материалов
Нормативные ссылки:
Серия 1.832.5-11Серия 1.832.5-11Серия 1.832.5-11Серия 1.832.5-11Серия 1.832.5-11Серия 1.832.5-11Серия 1.832.5-11Серия 1.832.5-11Серия 1.832.5-11Серия 1.832.5-11Серия 1.832.5-11Серия 1.832.5-11Серия 1.832.5-11Серия 1.832.5-11Серия 1.832.5-11Серия 1.832.5-11Серия 1.832.5-11Серия 1.832.5-11Серия 1.832.5-11Серия 1.832.5-11Серия 1.832.5-11Серия 1.832.5-11Серия 1.832.5-11Серия 1.832.5-11Серия 1.832.5-11Серия 1.832.5-11Серия 1.832.5-11Серия 1.832.5-11Серия 1.832.5-11Серия 1.832.5-11

© 2013 Ёшкин Кот :-) Карта сайта