| ||||||||||||||||||||||||||||||
Скачать Шифр 206-81 Выпуск 4. Стальные конструкции фахверка стен. Рабочие чертежи КМДата актуализации: 10.08.2017
|
| Обозначение: | Шифр 206-81 |
| Обозначение англ: | 206-81 |
| Статус: | не определен законодательством |
| Название рус.: | Выпуск 4. Стальные конструкции фахверка стен. Рабочие чертежи КМ |
| Дата добавления в базу: | 01.09.2013 |
| Дата актуализации: | 05.05.2017 |
| Дата введения: | 01.01.1983 |
| Область применения: | Настоящий выпуск содержит рабочие чертежи КМ стальных ригелей, столиков для их крепления и насадок фахверка стен из вертикальных панелей с утеплителем из пенопластов (ФРП и ПСВ-МП) и обшивками из асбестоцементных плит для производственных зданий |
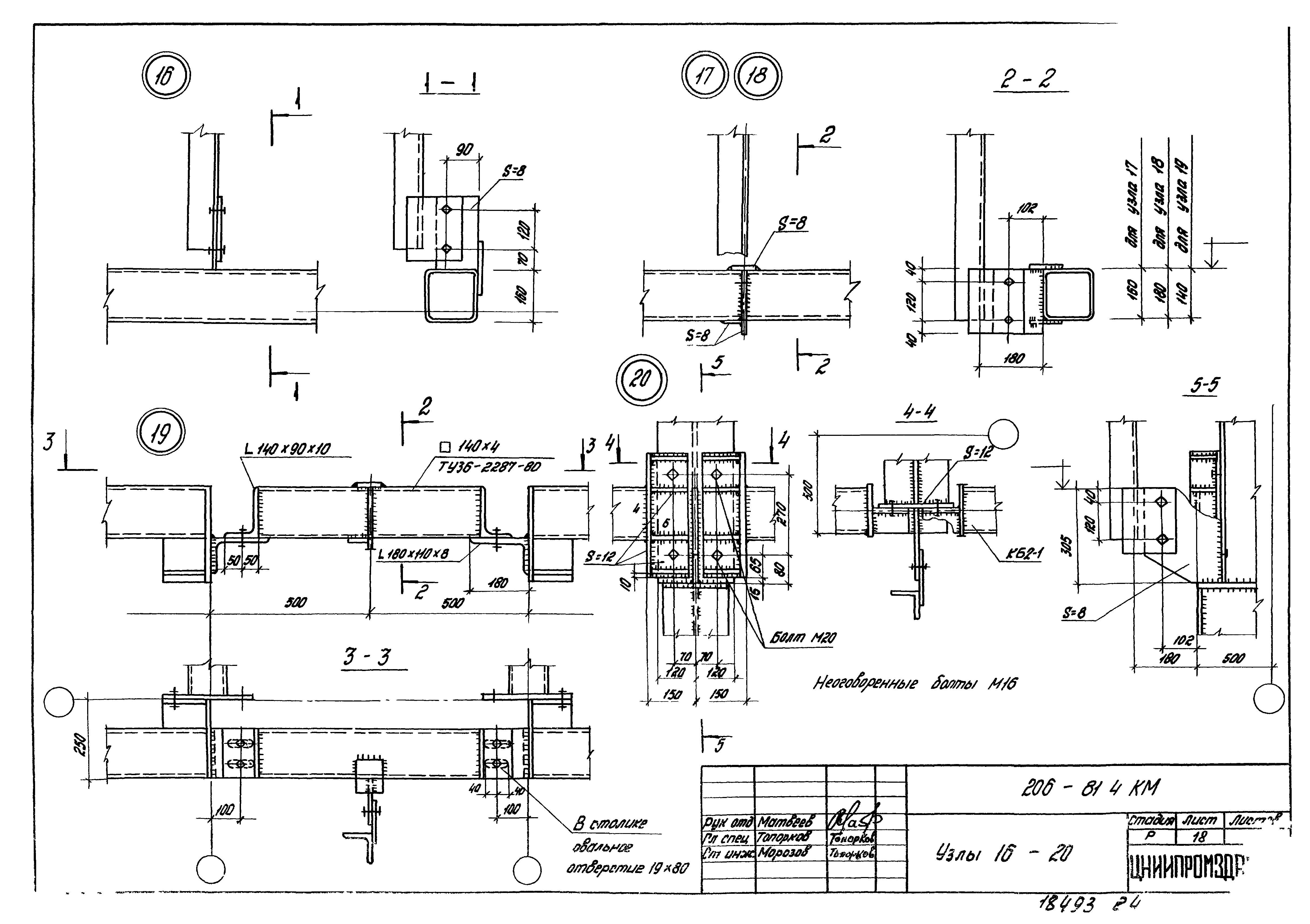
| Оглавление: | 206-81.4 Содержание 206-81.4 КМ ПЗ Пояснительная записка 206-81.4 КМ л. 1 План температурного блока и отметки верха колонн, фахверковых стоек и стен для зданий с покрытием по структурам типа "ЦНИИСК". Серия 1.460-6/81 206-81.4 КМ л. 2 Маркировка ригелей, насадок и узлов для зданий с покрытием по структурам типа "ЦНИИСК". Серия 1.460-6/81 206-81.4 КМ л. 3. План температурного блока и отметки верха колонн, фахверковых стоек и стен для зданий с покрытием из ферм с поясами из широкополочных двутавров. Серия 1.460.2-11 206-81.4 КМ л. 4 Маркировка ригелей, насадок и узлов для зданий с покрытием из ферм с поясами из широкополочных двутавров. Серия 1.460.2-11 206-81.4 КМ л. 5. План температурного блока и отметки верха колонн, фахверковых стоек и стен для зданий с покрытием из замкнутых гнутых профилей прямоугольного сечения. Шифр 5992 КМ. Вып.1 206-81.4 КМ л. 6 Маркировка ригелей, насадок и узлов для зданий с покрытием из замкнутых гнутосварных профилей прямоугольного сечения. Шифр 5992 КМ. Вып.1 206-81.4 КМ л. 7 План температурного блока и отметки верха рам, фахверковых стоек и стен для зданий с рамами типа "Плауэн". Шифр 10107КМ 206-81.4 КМ л. 8 Маркировка ригелей, насадок и узлов на фасадах с рамами типа "Плауэн". Шифр 10107КМ 206-81.4 КМ л. 9 Разбивка ригелей и насадок по разрезу стен здания 206-81.4 КМ л. 10 Узлы 1, 2 206-81.4 КМ л. 11 Узлы 3, 4 206-81.4 КМ л. 12 Узлы 5, 6 206-81.4 КМ л. 13 Узлы 7, 8, 9 206-81.4 КМ л. 14 Узлы 10, 11 206-81.4 КМ л. 15 Узел 12 206-81.4 КМ л. 16 Узел 13 206-81.4 КМ л. 17 Узлы 14, 15 206-81.4 КМ л. 18 Узлы 16…20 206-81.4 КМ л. 19 Ригели С1, С2, СН1, СН2 206-81.4 КМ л. 20 Ригели С3, СН3 206-81.4 КМ л. 21 Ригели С4, С4а 206-81.4 КМ л. 22 Ригели СН4, СН4а 206-81.4 КМ л. 23 Ригели С5, СН5 206-81.4 КМ л. 24 Ригели С6, СН6 206-81.4 КМ л. 25 Ригели С7, СН7 206-81.4 КМ л. 26 Ригели С8, СН8 206-81.4 КМ л. 27 Ригели С9, СН9 206-81.4 КМ л. 28 Ригели 081, 082, 086 206-81.4 КМ л. 29 Ригели 083, 084 206-81.4 КМ л. 30 Ригели 085, ОН1, ОН6 206-81.4 КМ л. 31 Ригели ОН2, ОН3 206-81.4 КМ л. 32 Ригели ОН4, ОН5 206-81.4 КМ л. 33 Ригели К1, К2, К4 206-81.4 КМ л. 34 Ригели К3, К5, О1 206-81.4 КМ л. 35 Насадки Н1…Н6, Н2Т…Н4Т, МС1…МС15 206-81.4 КМ л. 36 Опорные столики Д1, Д2, Д3 206-81.4 КМ л. 37 Опорные столики Д4, Д5, Д6 206-81.4 КМ л. 38 Опорные столики Д7, Д8, Д9 206-81.4 КМ л. 39 Спецификация стали для ригелей из труб 160 х 3 206-81.4 КМ л. 40 Спецификация стали для ригелей из труб 140 х 4 206-81.4 КМ л. 41 Спецификация стали для опорных столиков и насадок |
| Разработан: | ЦНИИпромзданий |
| Утверждён: | 22.11.1982 Госстрой СССР (Государственный комитет Совета Министров СССР по делам строительства) (USSR Gosstroy 2/379) |
| Расположен в: | |
| Нормативные ссылки: |
|
















































