Информационная система
«Ёшкин Кот»

Скачать базу одним архивом
Скачать обновления
История создания базы
Карта сайта

Скачать Серия 1.432.1-34.94 Выпуск 2. Изделия арматурные и закладные. Рабочие чертежи

Дата актуализации: 10.08.2017

Серия 1.432.1-34.94

Выпуск 2. Изделия арматурные и закладные. Рабочие чертежи

Обозначение: Серия 1.432.1-34.94
Обозначение англ: Series 1.432.1-34.94
Статус:не определен законодательством
Название рус.:Выпуск 2. Изделия арматурные и закладные. Рабочие чертежи
Дата добавления в базу:01.09.2013
Дата актуализации:05.05.2017
Дата введения:01.01.1995
Область применения:В выпуске приведены рабочие чертежи арматурных изделий (плоские и пространственные каркасы), закладных изделий и монтажных петель для стеновых панелей
Оглавление:1.432.1-34.94.2-ТТ Технические требования
1.432.1-34.94.2-1 Каркас пространственный КП1
1.432.1-34.94.2-2 Каркас пространственный КП2
1.432.1-34.94.2-3 Каркас пространственный КП3
1.432.1-34.94.2-4 Каркас пространственный КП4
1.432.1-34.94.2-5 Каркас пространственный КП5
1.432.1-34.94.2-6 Каркас пространственный КП6
1.432.1-34.94.2-7 Каркас пространственный КП7
1.432.1-34.94.2-8 Каркас пространственный КП8
1.432.1-34.94.2-9 Каркас пространственный КП9
1.432.1-34.94.2-10 Каркас пространственный КП10
1.432.1-34.94.2-11 Каркас пространственный КП11
1.432.1-34.94.2-12 Каркас пространственный КП12
1.432.1-34.94.2-13 Каркас пространственный КП13
1.432.1-34.94.2-14 Каркас пространственный КП14
1.432.1-34.94.2-15 Каркас пространственный КП15
1.432.1-34.94.2-16 Каркас пространственный КП16
1.432.1-34.94.2-17 Каркас пространственный КП17
1.432.1-34.94.2-18 Каркас пространственный КП18
1.432.1-34.94.2-19 Каркас пространственный КП19
1.432.1-34.94.2-20 Каркас пространственный КП20
1.432.1-34.94.2-21 Каркас пространственный КП21
1.432.1-34.94.2-22 Каркас пространственный КП22
1.432.1-34.94.2-23 Каркас пространственный КП23
1.432.1-34.94.2-24 Каркас пространственный КП24
1.432.1-34.94.2-25 Каркас пространственный КП25
1.432.1-34.94.2-26 Каркас пространственный КП26
1.432.1-34.94.2-27 Каркас пространственный КП27
1.432.1-34.94.2-28 Каркас пространственный КП28
1.432.1-34.94.2-29 Каркас плоский КР1… КР10
1.432.1-34.94.2-30 Петля строповочная П1… П4
1.432.1-34.94.2-31 Изделие закладное М1; МС1; М2
1.432.1-34.94.2-32 Изделие закладное М3
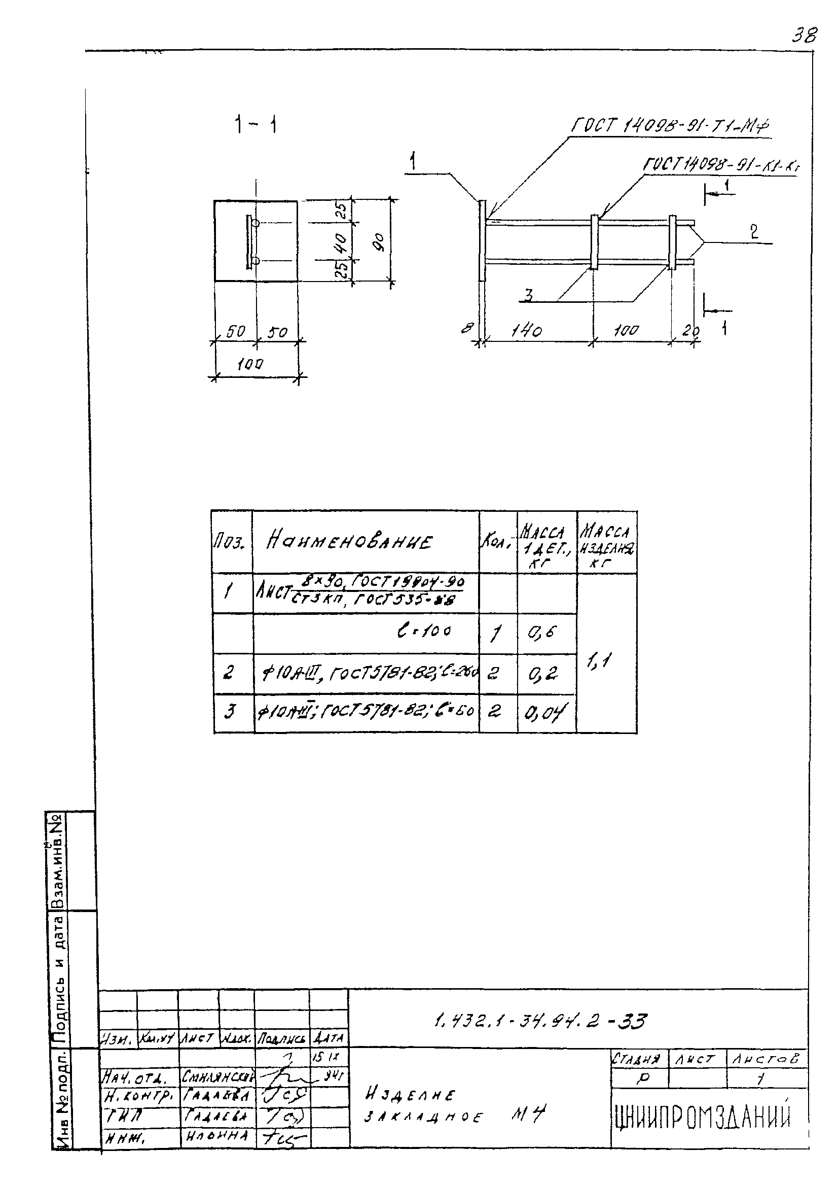
1.432.1-34.94.2-33 Изделие закладное М4
1.432.1-34.94.2-34 Изделие закладное М5
1.432.1-34.94.2-35 Изделие закладное М6
Разработан: ЦНИИпромзданий
Утверждён:20.09.1994 Минстрой России (Russian Federation Minstroy 9-3-1/128)
Расположен в:Техническая документация Строительство Справочные документы Типовые строительные конструкции, изделия и узлы Общероссийский строительный каталог Строительные конструкции, изделия и узлы зданий и сооружений для всех видов строительства Конструкции, изделия и узлы зданий Ограждающие конструкции Стены наружные Панели (бетонные и железобетонные)
Заменяет собой:
Нормативные ссылки:
Серия 1.432.1-34.94Серия 1.432.1-34.94Серия 1.432.1-34.94Серия 1.432.1-34.94Серия 1.432.1-34.94Серия 1.432.1-34.94Серия 1.432.1-34.94Серия 1.432.1-34.94Серия 1.432.1-34.94Серия 1.432.1-34.94Серия 1.432.1-34.94Серия 1.432.1-34.94Серия 1.432.1-34.94Серия 1.432.1-34.94Серия 1.432.1-34.94Серия 1.432.1-34.94Серия 1.432.1-34.94Серия 1.432.1-34.94Серия 1.432.1-34.94Серия 1.432.1-34.94Серия 1.432.1-34.94Серия 1.432.1-34.94Серия 1.432.1-34.94Серия 1.432.1-34.94Серия 1.432.1-34.94Серия 1.432.1-34.94Серия 1.432.1-34.94Серия 1.432.1-34.94Серия 1.432.1-34.94Серия 1.432.1-34.94Серия 1.432.1-34.94Серия 1.432.1-34.94Серия 1.432.1-34.94Серия 1.432.1-34.94Серия 1.432.1-34.94Серия 1.432.1-34.94Серия 1.432.1-34.94Серия 1.432.1-34.94Серия 1.432.1-34.94Серия 1.432.1-34.94Серия 1.432.1-34.94

© 2013 Ёшкин Кот :-) Карта сайта