| ||||||||||||||||||||||||||||||
Скачать Серия 1.232.1-10 Выпуск 2. Арматурные и закладные изделия. Рабочие чертежиДата актуализации: 10.08.2017
|
| Обозначение: | Серия 1.232.1-10 |
| Обозначение англ: | Series 1.232.1-10 |
| Статус: | не определен законодательством |
| Название рус.: | Выпуск 2. Арматурные и закладные изделия. Рабочие чертежи |
| Дата добавления в базу: | 01.09.2013 |
| Дата актуализации: | 05.05.2017 |
| Дата введения: | 01.09.1987 |
| Область применения: | Выпуск содержит: техническое описание, спецификации и сборочные чертежи арматурных и закладных изделий, чертежи деталей |
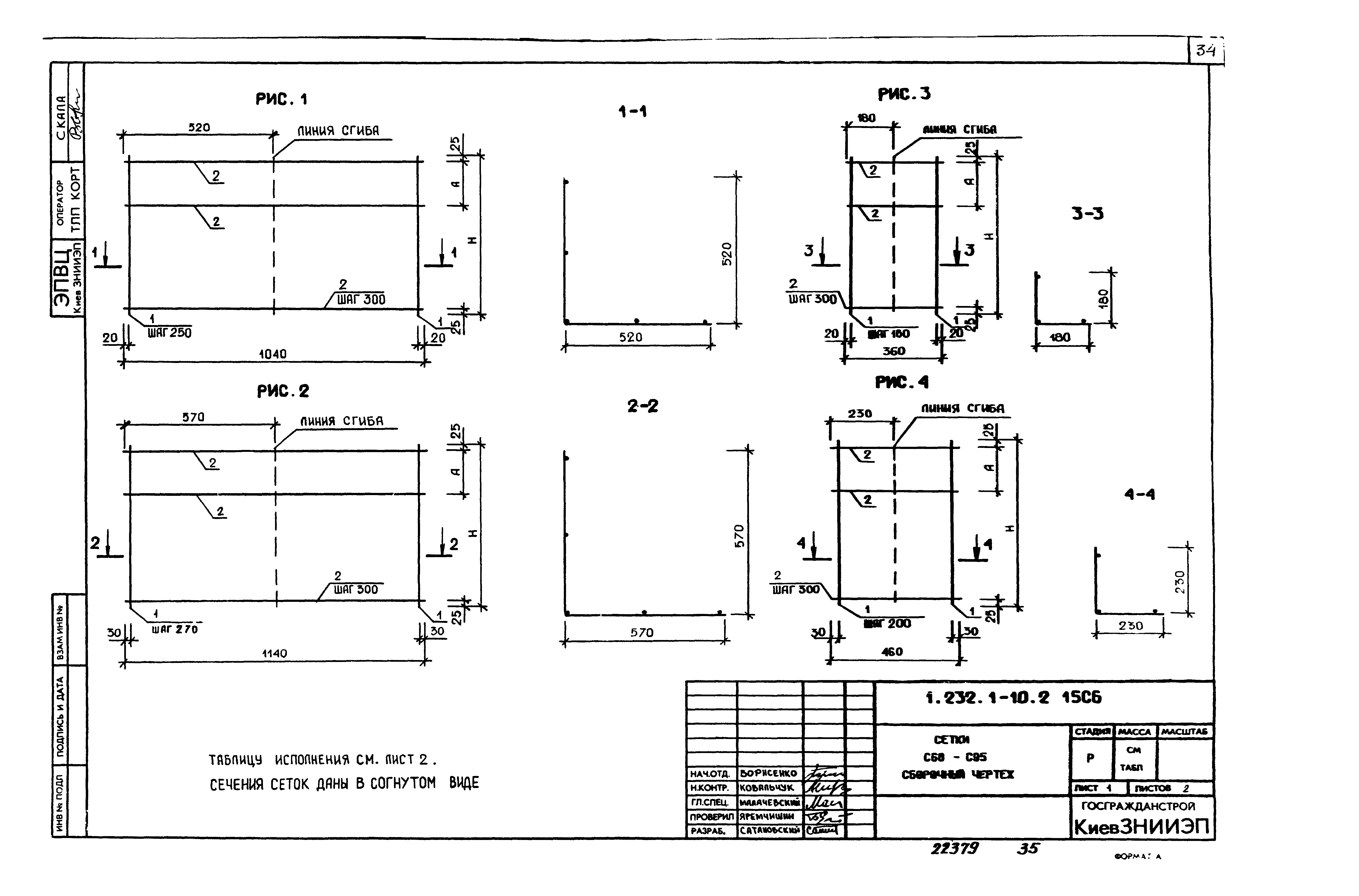
| Оглавление: | 1.232.1-10.2 ТО Техническое описание 1.232.1-10.2 01 Сетка С1 - С5 1.232.1-10.2 01 СБ Сетка С1 - С5. Сборочный чертеж 1.232.1-10.2 02 Сетка С6 - С10 1.232.1-10.2 02 СБ Сетка С6 - С10. Сборочный чертеж 1.232.1-10.2 03 Сетка С11 - С14 1.232.1-10.2 03 СБ Сетка С11 - С14. Сборочный чертеж 1.232.1-10.2 04 Сетка С15 - С22 1.232.1-10.2 04 СБ Сетка С15 - С22. Сборочный чертеж 1.232.1-10.2 05 Каркас плоский КР1 - КР3 1.232.1-10.2 05 СБ Каркас плоский КР1 - КР3. Сборочный чертеж 1.232.1-10.2 06 Каркас плоский КР4 - КР6 1.232.1-10.2 06 СБ Каркас плоский КР4 - КР6. Сборочный чертеж 1.232.1-10.2 07 Каркас плоский КР7 - КР12 1.232.1-10.2 07 СБ Каркас плоский КР7 - КР12. Сборочный чертеж 1.232.1-10.2 08 Каркас плоский КР13 - КР20 1.232.1-10.2 08 СБ Каркас плоский КР13 - КР20. Сборочный чертеж 1.232.1-10.2 09 Каркас плоский КР21 - КР24 1.232.1-10.2 09 СБ Каркас плоский КР21 - КР24. Сборочный чертеж 1.232.1-10.2 10 Каркас плоский КР25 - КР27 1.232.1-10.2 10 СБ Каркас плоский КР25 - КР27. Сборочный чертеж 1.232.1-10.2 11 Сетка С23 - С40 1.232.1-10.2 11 СБ Сетка С23 - С40. Сборочный чертеж 1.232.1-10.2 12 Сетка С41 - С57 1.232.1-10.2 12 СБ Сетка С41 - С57. Сборочный чертеж 1.232.1-10.2 13 Сетка С58 - С66 1.232.1-10.2 13 СБ Сетка С58 - С66. Сборочный чертеж 1.232.1-10.2 14 Каркас плоский КР28 - КР37 1.232.1-10.2 14 СБ Каркас плоский КР28 - КР37. Сборочный чертеж 1.232.1-10.2 15 Сетка С68 - С95 1.232.1-10.2 15 СБ Сетка С68 - С95. Сборочный чертеж 1.232.1-10.2 16 Сетка С96, С97 1.232.1-10.2 16 СБ Сетка С96, С97. Сборочный чертеж 1.232.1-10.2 17 Каркас плоский КР38, КР39 1.232.1-10.2 17 СБ Каркас плоский КР38, КР39. Сборочный чертеж 1.232.1-10.2 18 Сетка С98 - С102 1.232.1-10.2 18 СБ Сетка С98 - С102. Сборочный чертеж 1.232.1-10.2 19 Сетка С103 - С107 1.232.1-10.2 19 СБ Сетка С103 - С107. Сборочный чертеж 1.232.1-10.2 20 Сетка С108 - С110 1.232.1-10.2 20 СБ Сетка С108 - С110. Сборочный чертеж 1.232.1-10.2 21 Сетка С111 - С113 1.232.1-10.2 21 СБ Сетка С111 - С113. Сборочный чертеж 1.232.1-10.2 22 Сетка С114 - С116 1.232.1-10.2 22 СБ Сетка С114 - С116. Сборочный чертеж 1.232.1-10.2 23 Сетка С117 - С119 1.232.1-10.2 23 СБ Сетка С117 - С119. Сборочный чертеж 1.232.1-10.2 24 Каркас плоский КР40 - КР46 1.232.1-10.2 24 СБ Каркас плоский КР40 - КР46. Сборочный чертеж 1.232.1-10.2 25 Петля строповочная СП1, СП2 1.232.1-10.2 26 Петля строповочная СП3 - СП7 1.232.1-10.2 27 Петля строповочная СП8 - СП13 1.232.1-10.2 28 Изделие закладное М1, М3, М6 1.232.1-10.2 28 СБ Изделие закладное М1, М3, М6. Сборочный чертеж 1.232.1-10.2 29 Изделие закладное М2 1.232.1-10.2 29 СБ Изделие закладное М2. Сборочный чертеж 1.232.1-10.2 30 Изделие закладное М4 1.232.1-10.2 30 СБ Изделие закладное М4. Сборочный чертеж 1.232.1-10.2 31 Изделие закладное М5 1.232.1-10.2 31 СБ Изделие закладное М5. Сборочный чертеж |
| Разработан: | КиевЗНИИЭП |
| Утверждён: | 17.07.1987 Госгражданстрой (Gosgrazhdanstroy 223) |
| Расположен в: | |
| Нормативные ссылки: |
|






















































