| ||||||||||||||||||||||||||||
Скачать Серия 1.132-3/82 Панели наружных стен железобетонные трехслойные с эффективным утеплителем и гибкими связями однорядной разрезки для крупнопанельных жилых зданий с шагом поперечных стен 2,4 - 3,6 м и высотой этажа 2,8 м. Рабочие чертежиДата актуализации: 10.08.2017
|
| Обозначение: | Серия 1.132-3/82 |
| Обозначение англ: | Series 1.132-3/82 |
| Статус: | действует |
| Название рус.: | Панели наружных стен железобетонные трехслойные с эффективным утеплителем и гибкими связями однорядной разрезки для крупнопанельных жилых зданий с шагом поперечных стен 2,4 - 3,6 м и высотой этажа 2,8 м. Рабочие чертежи |
| Дата добавления в базу: | 01.10.2014 |
| Дата актуализации: | 05.05.2017 |
| Область применения: | Рабочие чертежи унифицированных трехслойных железобетонных панелей с эффективным утеплителем и гибкими связями между наружным и внутренним бетонными слоями разработаны для наружных несущих стен крупнопанельных 5 - 9-ти этажных жилых зданий с шагом поперечных внутренних стен 2,4 - 3,6 м, предназначенных для строительства во II и III строительно-климатических районах в регионах с соответствующей расчетной температурой |
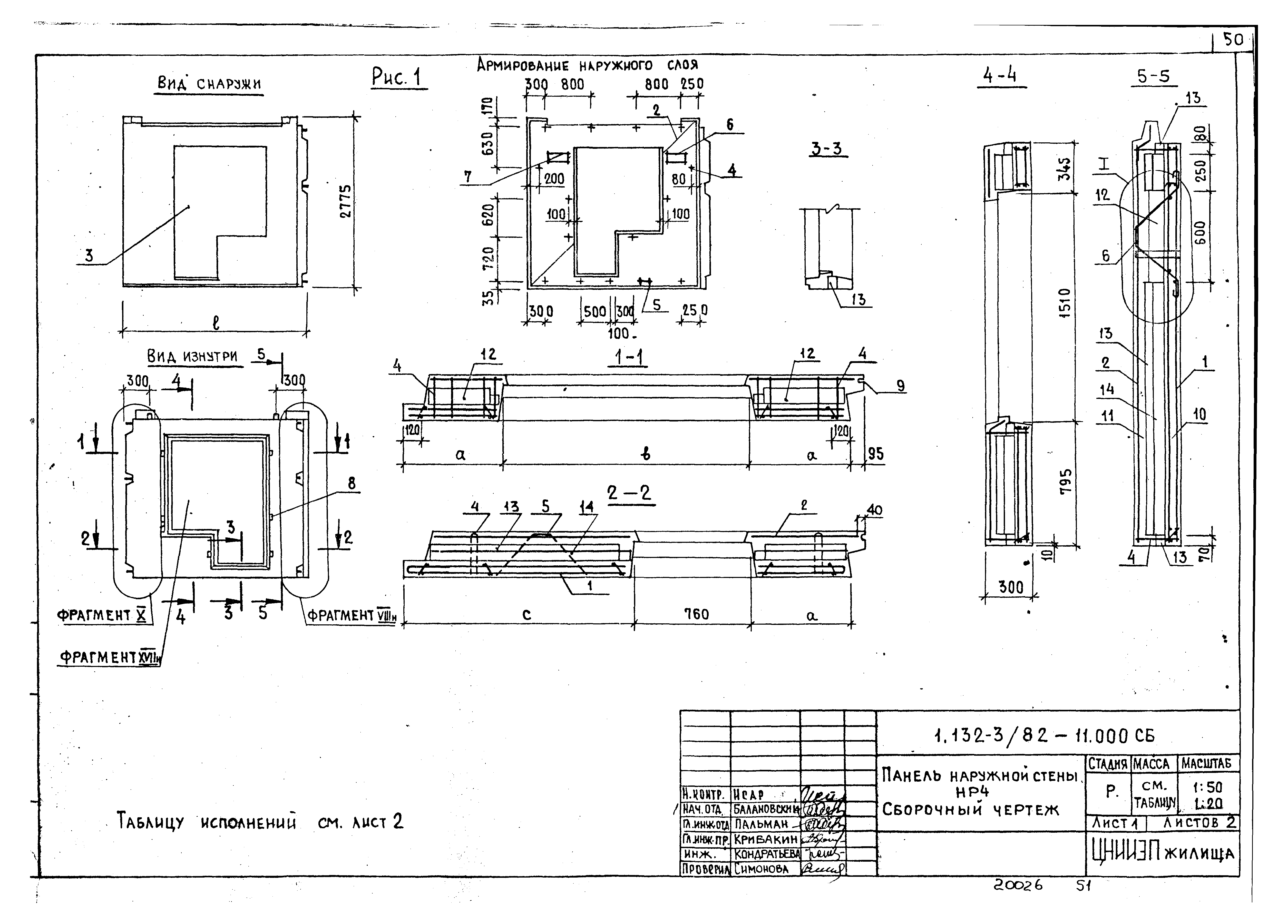
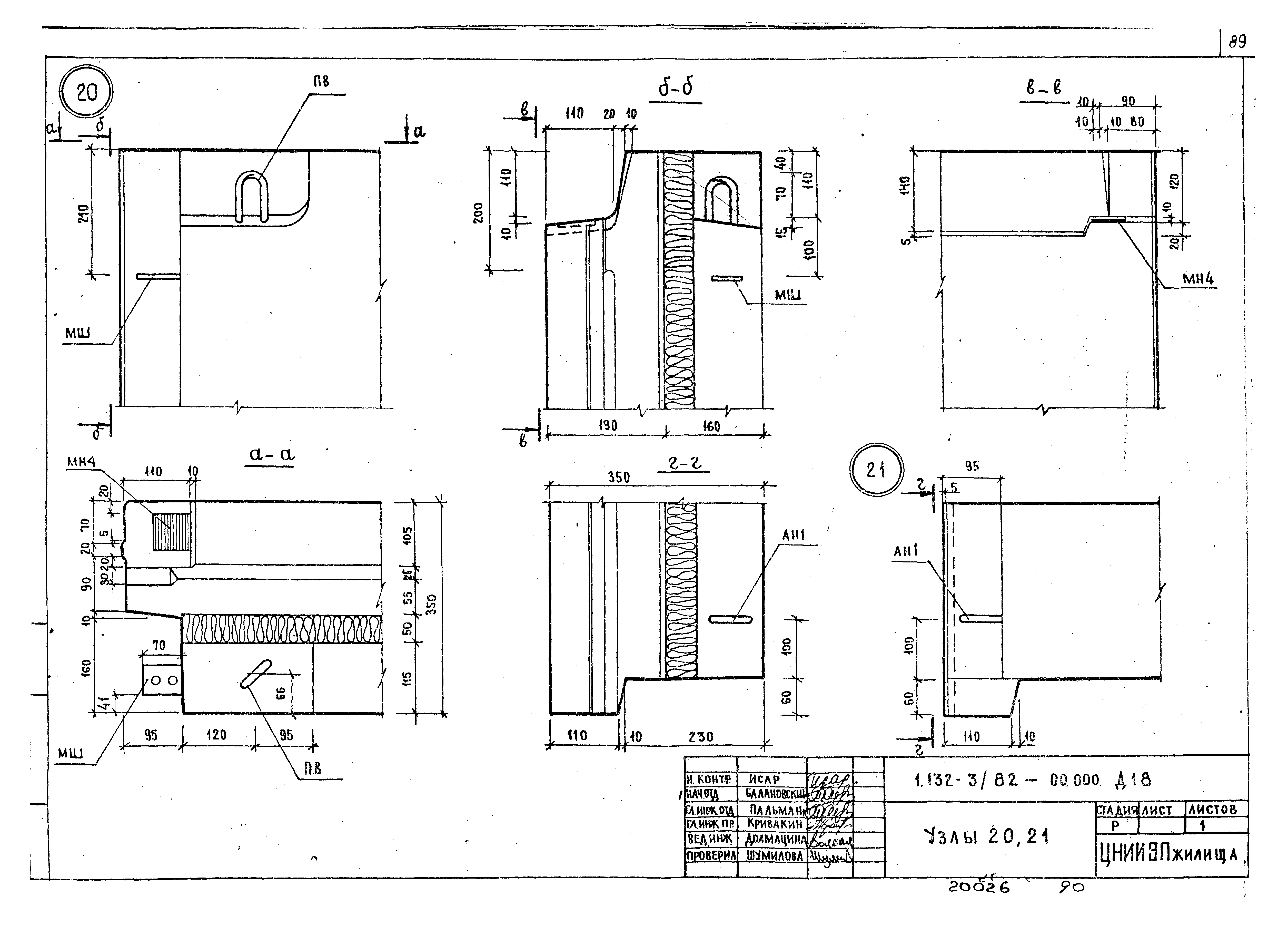
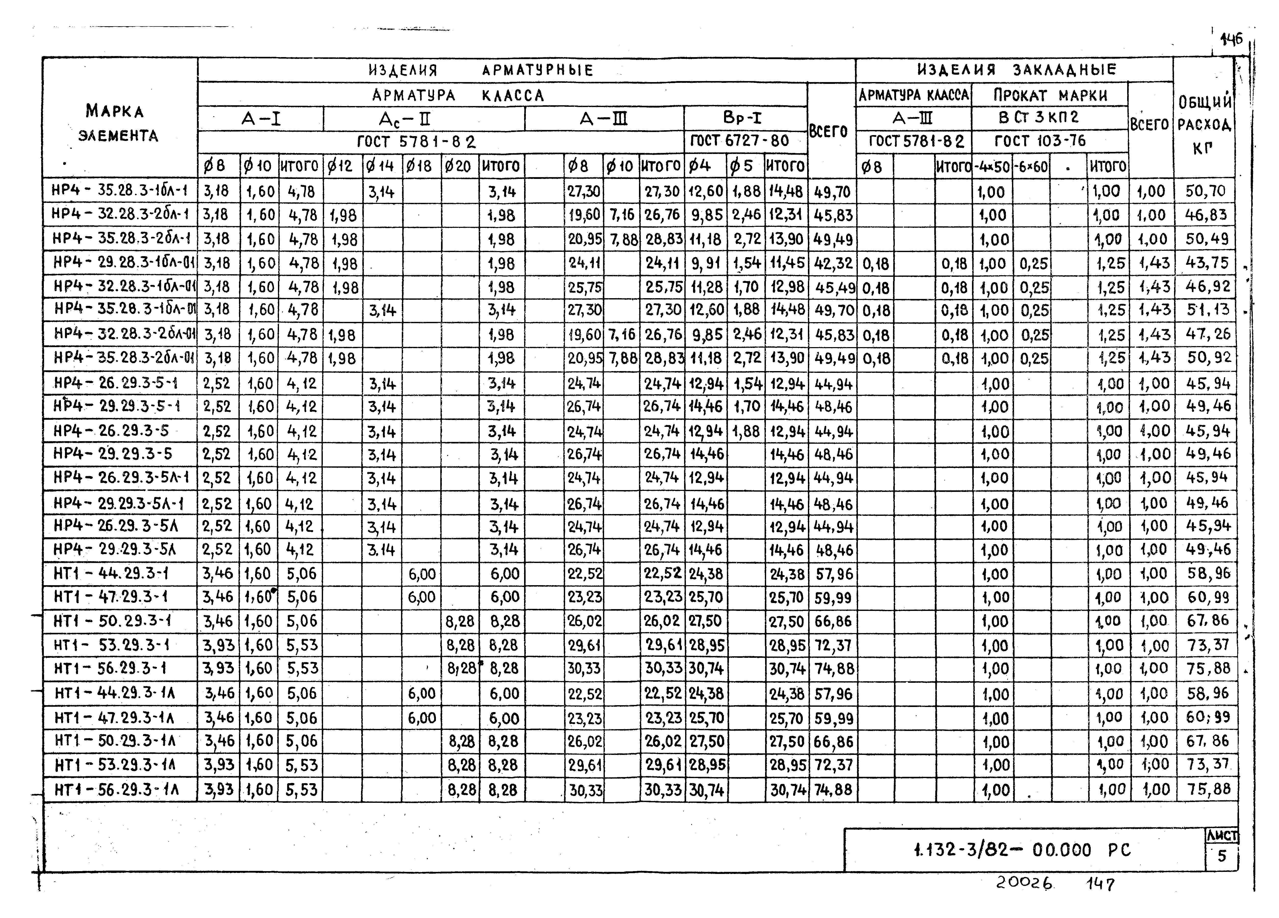
| Оглавление: | 1.132-3/82-00.000ТО Техническое описание 1.132-3/82-00.000ТБ1 Номенклатура панелей 1.132-3/82-01.000 Панель наружной стены НР1 1.132-3/82-01.000СБ Панель наружной стены НР1. Сборочный чертеж 1.132-3/82-02.000 Панель наружной стены НР1 1.132-3/82-02.000СБ Панель наружной стены НР1. Сборочный чертеж 1.132-3/82-02.000-10СБ Панель наружной стены НР1. Сборочный чертеж 1.132-3/82-03.000 Панель наружной стены НР1 1.132-3/82-03.000СБ Панель наружной стены НР1. Сборочный чертеж 1.132-3/82-03.000-04СБ Панель наружной стены НР1. Сборочный чертеж 1.132-3/82-05.000 Панель наружной стены НР2 1.132-3/82-05.000СБ Панель наружной стены НР2. Сборочный чертеж 1.132-3/82-05.000-06СБ Панель наружной стены НР2. Сборочный чертеж 1.132-3/82-07.000 Панель наружной стены НР2 1.132-3/82-07.000СБ Панель наружной стены НР2. Сборочный чертеж 1.132-3/82-07.000-04СБ Панель наружной стены НР2. Сборочный чертеж 1.132-3/82-09.000 Панель наружной стены НР4 1.132-3/82-09.000СБ Панель наружной стены НР4. Сборочный чертеж 1.132-3/82-09.000-06СБ Панель наружной стены НР4. Сборочный чертеж 1.132-3/82-11.000 Панель наружной стены НР4 1.132-3/82-11.000СБ Панель наружной стены НР4. Сборочный чертеж 1.132-3/82-11.000-10СБ Панель наружной стены НР4. Сборочный чертеж 1.132-3/82-12.000 Панель наружной стены НР4 1.132-3/82-12.000СБ Панель наружной стены НР4. Сборочный чертеж 1.132-3/82-12.000-10СБ Панель наружной стены НР4. Сборочный чертеж 1.132-3/82-13.000 Панель наружной стены НР4 1.132-3/82-13.000СБ Панель наружной стены НР4. Сборочный чертеж 1.132-3/82-13.000-04СБ Панель наружной стены НР4…л. Сборочный чертеж 1.132-3/82-15.000 Панель наружной стены НТ1 1.132-3/82-15.000СБ Панель наружной стены НТ1. Сборочный чертеж 1.132-3/82-15.000-05СБ Панель наружной стены НТ1. Сборочный чертеж 1.132-3/82-16.000 Панель наружной стены НТ2 1.132-3/82-16.000СБ Панель наружной стены НТ2. Сборочный чертеж 1.132-3/82-16.000-06СБ Панель наружной стены НТ2. Сборочный чертеж 1.132-3/82-17.000 Панель наружной стены НР1 1.132-3/82-17.000СБ Панель наружной стены НР1. Сборочный чертеж 1.132-3/82-00.000Д1 Фрагменты I, II, III 1.132-3/82-00.000Д2 Фрагменты IV, V 1.132-3/82-00.000Д3 Фрагменты VI, VII 1.132-3/82-00.000Д4 Фрагменты VIII, IX, X 1.132-3/82-00.000Д5 Фрагменты XI…XIV 1.132-3/82-00.000Д6 Фрагменты XV, XVI, XVII 1.132-3/82-00.000Д7 Узлы 1, 2 1.132-3/82-00.000Д8 Узлы 3, 4 1.132-3/82-00.000Д9 Узлы 5, 6 1.132-3/82-00.000Д10 Узел 7 1.132-3/82-00.000Д11 Узлы 8, 9 1.132-3/82-00.000Д12 Узел 10 1.132-3/82-00.000Д13 Узел 11 1.132-3/82-00.000Д14 Узлы 12, 13 1.132-3/82-00.000Д15 Узлы 14, 15 1.132-3/82-00.000Д16 Узлы 16, 17 1.132-3/82-00.000Д17 Узлы 18, 19 1.132-3/82-00.000Д18 Узлы 20, 21 1.132-3/82-00.000Д19 Узлы 22, 23 1.132-3/82-00.000Д20 Узлы 24…29 1.132-3/82-00.000Д21 Узлы 30…33 1.132-3/82-00.000Д22 Узлы 34…41 1.132-3/82-00.000Д23 Узлы 42…50 1.132-3/82-01.100 Каркас пространственный (КПВ1…КПВ18) 1.132-3/82-01.100СБ Каркас пространственный (КПВ1…КПВ18). Сборочный чертеж 1.132-3/82-01.200 Каркас пространственный (КПН1…КПН30) 1.132-3/82-01.200СБ Каркас пространственный (КПН1…КПН30). Сборочный чертеж 1.132-3/82-02.100 Каркас пространственный (КПВ26…КПВ45, КПВ61, КПВ62) 1.132-3/82-02.100СБ Каркас пространственный (КПВ26…КПВ45, КПВ61, КПВ62). Сборочный чертеж 1.132-3/82-02.100-11СБ Каркас пространственный (КПВ36…КПВ45, КПВ62). Сборочный чертеж 1.132-3/82-03.100 Каркас пространственный (КПВ19…КПВ25) 1.132-3/82-03.100СБ Каркас пространственный (КПВ19…КПВ25). Сборочный чертеж 1.132-3/82-03.200 Каркас пространственный (КПН31…КПН41) 1.132-3/82-03.200СБ Каркас пространственный (КПН31…КПН41). Сборочный чертеж 1.132-3/82-11.200 Каркас пространственный (КПН42…КПН71) 1.132-3/82-11.200СБ Каркас пространственный (КПН42…КПН71). Сборочный чертеж 1.132-3/82-15.100 Каркас пространственный (КПВ46…КПВ55) 1.132-3/82-15.100СБ Каркас пространственный (КПВ46…КПВ50). Сборочный чертеж 1.132-3/82-15.100-05СБ Каркас пространственный (КПВ51…КПВ55). Сборочный чертеж 1.132-3/82-15.200 Каркас пространственный (КПН72…КПН181) 1.132-3/82-16.100 Каркас пространственный (КПВ56…КПВ58) 1.132-3/82-16.200 Каркас пространственный (КПВ82…КПН88) 1.132-3/82-17.100 Каркас пространственный КПВ59 1.132-3/82-00.010 Каркас плоский (КР1…КР34) 1.132-3/82-00.010СБ Каркас плоский (КР1…КР34). Сборочный чертеж 1.132-3/82-00.060 Сетка (С1…С12) 1.132-3/82-00.070 Сетка (С13…С22) 1.132-3/82-00.080 Сетка С23…С33 1.132-3/82-00.090 Сетка С34…С44 1.132-3/82-00.110 Сетка С45…С55 1.132-3/82-00.120 Сетка С56…С62 1.132-3/82-00.130 Сетка С63…С69 1.132-3/82-00.140 Изделие закладное МН4, МН5, МН6 1.132-3/82-00.001 Стержень гнутый АН1…АН10 1.132-3/82-00.002 Петля строповочная ПВ1…ПВ5 1.132-3/82-00.003 Слив (СЛ1, СЛ2, СЛ3) 1.132-3/82-00.004 Слив (СЛ4…СЛ7) 1.132-3/82-00.000Д24 Узлы 51…54 1.132-3/82-00.000Д25 Узлы 55…60 1.132-3/82-00.000Д26 Узлы 61, 62, 63 1.132-3/82-00.000Д27 Узлы 64…67 1.132-3/82-00.000Д28 Узлы I - IV 1.132-3/82-00.500 Заполнение проемов 1.132-3/82-00.500СБ Заполнение проемов. Сборочный чертеж 1.132-3/82-00.000РС Ведомость расхода стали на элемент |
| Разработан: | НИИЖБ ЦНИИЭП жилища |
| Утверждён: | 14.09.1984 Госгражданстрой (Gosgrazhdanstroy 264) |
| Расположен в: | |
| Нормативные ссылки: |
|




















































































































































