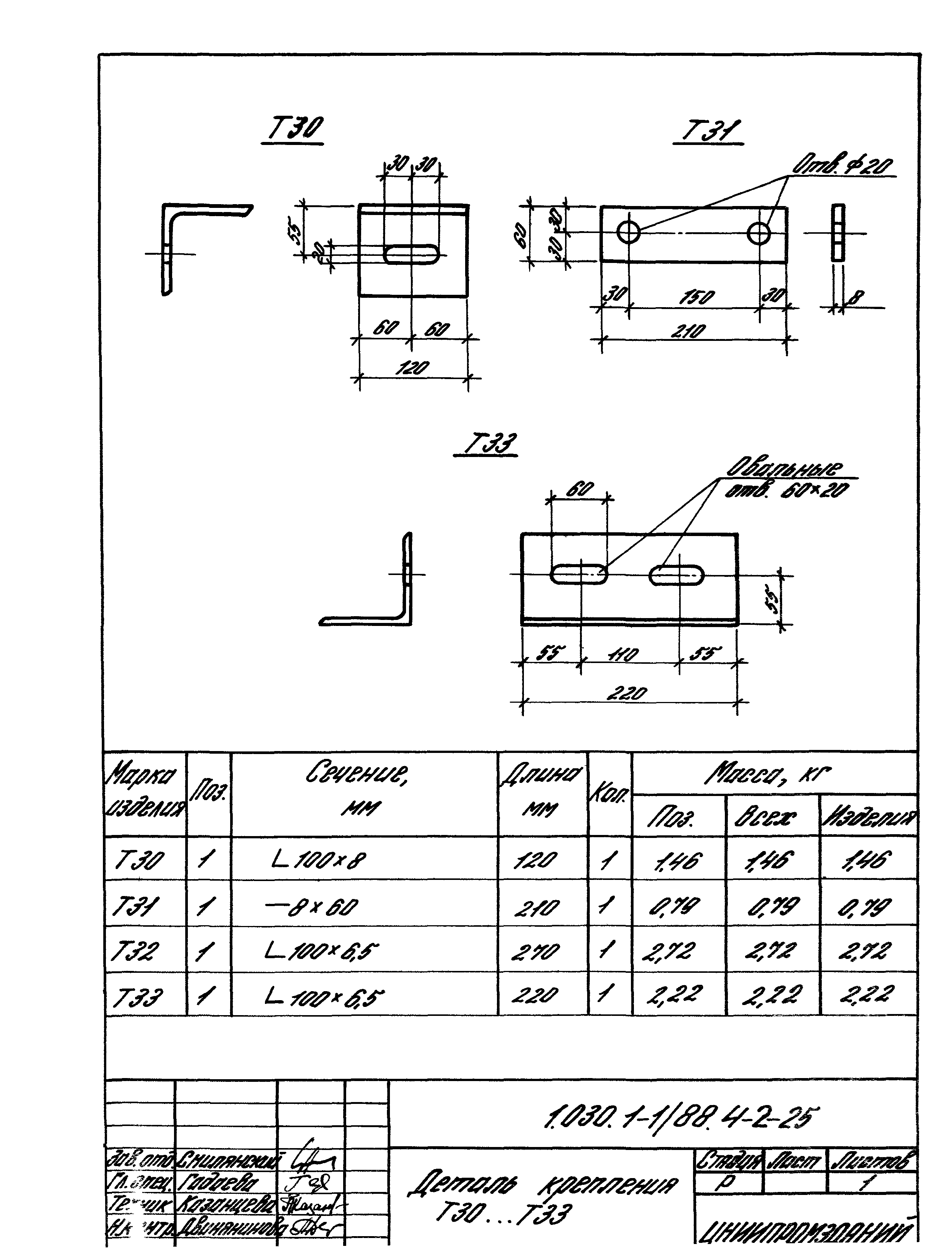
Оглавление: | 1.030.1-1/88.4-1-ТО Техническое описание 1.030.1-1/88.4-1-1 Насадка торцового фахверка НФ1… НФ3, НФ6 1.030.1-1/88.4-1-2 Насадка торцового фахверка НФ4, НФ5 1.030.1-1/88.4-1-3 Насадка торцового фахверка НУ1… Н6 1.030.1-1/88.4-1-4 Насадка торцового фахверка НУ7, НУ8 1.030.1-1/88.4-1-5 Насадка торцового фахверка НС1, НС2 1.030.1-1/88.4-1-6 Насадка торцового фахверка НУ9, НУ10 1.030.1-1/88.4-1-7 Насадка торцового фахверка НУ11, НУ12 1.030.1-1/88.4-1-8 Насадка торцового фахверка НФ7 1.030.1-1/88.4-1-9 Консоль опорная ТК1С… ТК36 1.030.1-1/88.4-1-10 Консоль опорная ТК1… ТК5 1.030.1-1/88.4-1-11 Консоль опорная РК1… РК4, ФК1… ФК4 1.030.1-1/88.4-1-12 Консоль опорная РК1с… РК4с, ФК1с… ФК4с 1.030.1-1/88.4-1-13 Деталь крепления Т1, Т2 1.030.1-1/88.4-1-14 Деталь крепления Т3, Т4 1.030.1-1/88.4-1-15 Деталь крепления Т5, Т6, Т7 1.030.1-1/88.4-1-16 Деталь крепления Т8, Т9, Т10 1.030.1-1/88.4-1-17 Деталь крепления Т11, Т45 1.030.1-1/88.4-1-18 Деталь крепления Т12 1.030.1-1/88.4-1-19 Деталь крепления Т13, Т14 1.030.1-1/88.4-1-20 Деталь крепления Т15 1.030.1-1/88.4-1-21 Деталь крепления Т16… Т22 1.030.1-1/88.4-1-22 Деталь крепления Т23… Т25 1.030.1-1/88.4-1-23 Деталь крепления Т26, Т27 1.030.1-1/88.4-1-24 Деталь крепления Т28, Т29 1.030.1-1/88.4-1-25 Деталь крепления Т30… Т33 1.030.1-1/88.4-1-26 Деталь крепления Т34, Т35 1.030.1-1/88.4-1-27 Деталь крепления Т36 1.030.1-1/88.4-1-28 Деталь крепления Т37… Т39 1.030.1-1/88.4-1-29 Деталь крепления Т40 1.030.1-1/88.4-1-30 Деталь крепления Т41 1.030.1-1/88.4-1-31 Деталь крепления Т42… Т44 1.030.1-1/88.4-1-32 Фасонный элемент Н1, Н2 |