Информационная система
«Ёшкин Кот»

Скачать базу одним архивом
Скачать обновления
История создания базы
Карта сайта

Скачать Серия 1.030.1-1/88 Выпуск 0-0.96. Часть 2. Общие указания по применению. Номенклатура изделий: Производственные здания промышленных предприятий

Дата актуализации: 10.08.2017

Серия 1.030.1-1/88

Выпуск 0-0.96. Часть 2. Общие указания по применению. Номенклатура изделий: Производственные здания промышленных предприятий

Обозначение: Серия 1.030.1-1/88
Обозначение англ: Series 1.030.1-1/88
Статус:действует
Название рус.:Выпуск 0-0.96. Часть 2. Общие указания по применению. Номенклатура изделий: Производственные здания промышленных предприятий
Дата добавления в базу:01.09.2013
Дата актуализации:05.05.2017
Область применения:В настоящем выпуске приведены материалы для проектирования панельных стен отапливаемых одноэтажных и многоэтажных производственных зданий промышленных предприятий. Для стен этих зданий предусмотрены однослойные легкобетонные и ячеистобетонные панели
Оглавление:1.030.1-1/88.0-0.96ч2-СС Состав серии
1.030.1-1/88.0-0.96ч2-ПЗ Пояснительная записка
1.030.1-1/88.0-0.96ч2-1НИ Номенклатура панелей толщиной 200 мм из легких бетонов
1.030.1-1/88.0-0.96ч2-2НИ Номенклатура панелей толщиной 200 мм из ячеистых бетонов
1.030.1-1/88.0-0.96ч2-3НИ Номенклатура панелей толщиной 250 мм из легких бетонов
1.030.1-1/88.0-0.96ч2-4НИ Номенклатура панелей толщиной 250 мм из ячеистых бетонов
1.030.1-1/88.0-0.96ч2-5НИ Номенклатура панелей толщиной 300 мм из легких бетонов
1.030.1-1/88.0-0.96ч2-6НИ Номенклатура панелей толщиной 300 мм из ячеистых бетонов
1.030.1-1/88.0-0.96ч2-7НИ Номенклатура панелей толщиной 350 мм из легких бетонов
1.030.1-1/88.0-0.96ч2-8НИ Номенклатура панелей толщиной 400 мм из легких бетонов
1.030.1-1/88.0-0.96ч2-9НИ Номенклатура цокольных панелей
1.030.1-1/88.0-0.96ч2-10НИ Номенклатура карнизных панелей
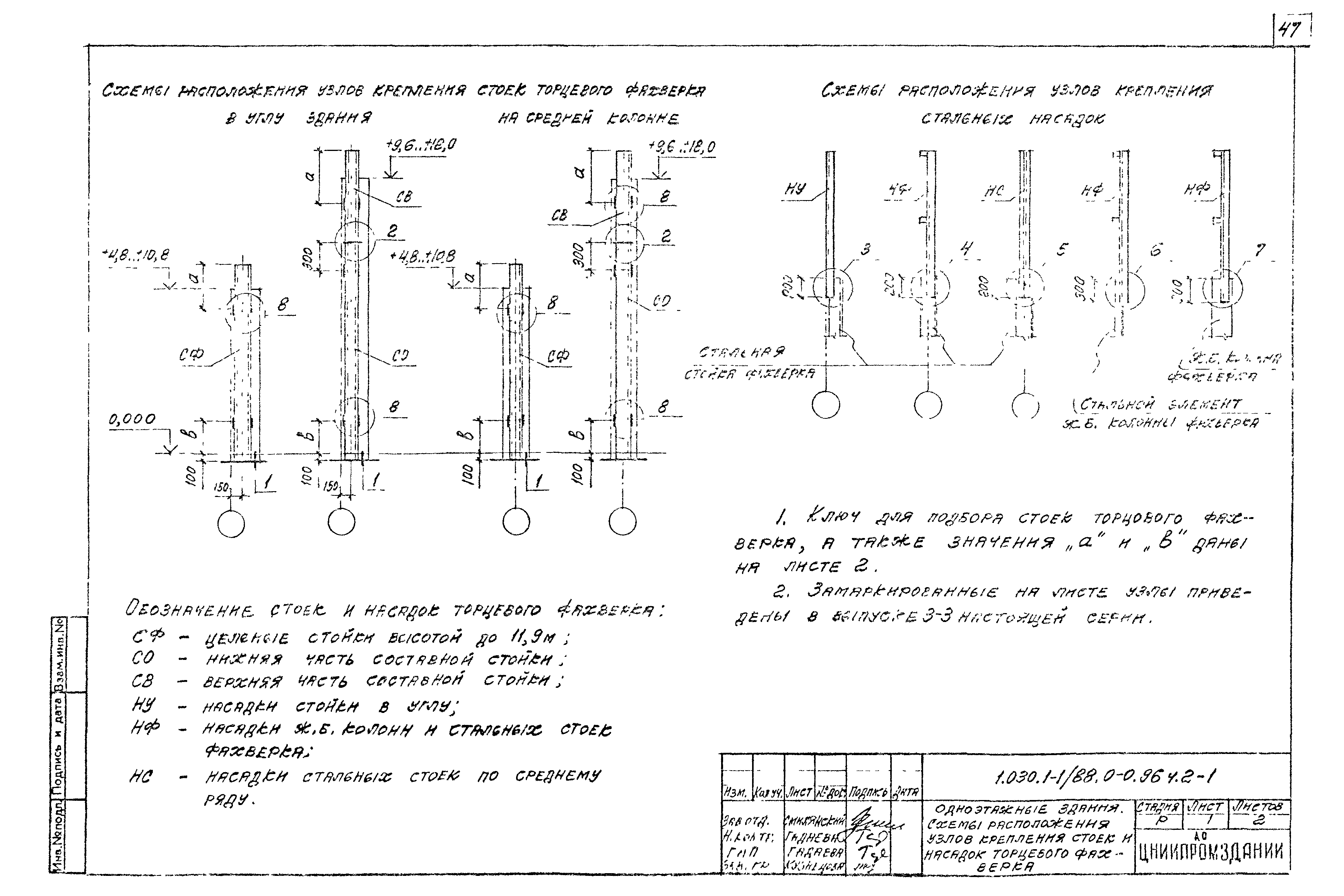
1.030.1-1/88.0-0.96ч2-1 Одноэтажные здания. Схемы расположения узлов крепления стоек и насадок торцевого фахверка
1.030.1-1/88.0-0.96ч2-2 Многоэтажные здания. Схемы расположения стоек торцевого фахверка
1.030.1-1/88.0-0.96ч2-3 Схемы расположения узлов крепления опорных консолей и приложения нагрузок на опорные консоли
1.030.1-1/88.0-0.96ч2-4 Одноэтажные здания. Схемы расположения узлов крепления панелей к колоннам продольного ряда
1.030.1-1/88.0-0.96ч2-5 Одноэтажные здания. Схемы расположения узлов крепления панелей к колоннам торцевого ряда
1.030.1-1/88.0-0.96ч2-6 Одноэтажные здания. Схемы расположения узлов крепления панелей к колоннам в местах т ш со вставками
1.030.1-1/88.0-0.96ч2-7 Одноэтажные здания. Схемы расположения узлов крепления панелей к колоннам продольного ряда одноэтажных зданий с увеличенными расстояниями между температурными швами
1.030.1-1/88.0-0.96ч2-8 Одноэтажные здания. Сечения 1-1 11-11
1.030.1-1/88.0-0.96ч2-9 Схемы расположения узлов крепления панелей продольных стен одноэтажных зданий в пределах стропильных конструкций при наружном отводе воды
1.030.1-1/88.0-0.96ч2-10 Схемы расположения узлов крепления панелей продольных стен одноэтажных зданий в пределах несущих конструкций при внутреннем отводе воды
1.030.1-1/88.0-0.96ч2-11 Схемы расположения узлов крепления панелей торцевых стен одноэтажных зданий в пределах несущих конструкций покрытия
1.030.1-1/88.0-0.96ч2-12 Одноэтажные здания. Схемы расположения узлов крепления панелей в местах т ш со вставками в пределах высоты стропильных конструкций
1.030.1-1/88.0-0.96ч2-13 Многоэтажные здания. Схемы расположения узлов крепления панелей продольных стен
1.030.1-1/88.0-0.96ч2-14 Многоэтажные здания. Схемы расположения узлов крепления продольных стен к колоннам в местах т ш со вставкой с применением угловых панелей
1.030.1-1/88.0-0.96ч2-15 Многоэтажные здания. Схемы расположения узлов крепления панелей в торцах зданий
1.030.1-1/88.0-0.96ч2-16 Схемы расположения закладных изделий в панелях, примыкающих к углу здания при сейсмичности 7, 8 и 9 баллов
1.030.1-1/88.0-0.96ч2-17 Изделие закладное дополнительное МС1… МС3
1.030.1-1/88.0-0.96ч2-18 Схемы расположения дополнительных закладных изделий в стропильных конструкциях
1.030.1-1/88.0-0.96ч2-19 Изделие закладное дополнительное МД1… МД7
Разработан: АО ЦНИИпромзданий
Утверждён:21.05.1996 Минстрой России (Russian Federation Minstroy 9-1-1/57)
Издан: ФГУП ЦПП (1996 г. )
Расположен в:Техническая документация Экология СТРОИТЕЛЬНЫЕ МАТЕРИАЛЫ И СТРОИТЕЛЬСТВО Строительные элементы Стены. Перегородки. Фасады Строительство Справочные документы Типовые строительные конструкции, изделия и узлы Общероссийский строительный каталог Строительные конструкции, изделия и узлы зданий и сооружений для всех видов строительства Конструкции, изделия и узлы зданий Ограждающие конструкции Стены наружные Панели (бетонные и железобетонные)
Заменяет собой:
Нормативные ссылки:
Серия 1.030.1-1/88Серия 1.030.1-1/88Серия 1.030.1-1/88Серия 1.030.1-1/88Серия 1.030.1-1/88Серия 1.030.1-1/88Серия 1.030.1-1/88Серия 1.030.1-1/88Серия 1.030.1-1/88Серия 1.030.1-1/88Серия 1.030.1-1/88Серия 1.030.1-1/88Серия 1.030.1-1/88Серия 1.030.1-1/88Серия 1.030.1-1/88Серия 1.030.1-1/88Серия 1.030.1-1/88Серия 1.030.1-1/88Серия 1.030.1-1/88Серия 1.030.1-1/88Серия 1.030.1-1/88Серия 1.030.1-1/88Серия 1.030.1-1/88Серия 1.030.1-1/88Серия 1.030.1-1/88Серия 1.030.1-1/88Серия 1.030.1-1/88Серия 1.030.1-1/88Серия 1.030.1-1/88Серия 1.030.1-1/88Серия 1.030.1-1/88Серия 1.030.1-1/88Серия 1.030.1-1/88Серия 1.030.1-1/88Серия 1.030.1-1/88Серия 1.030.1-1/88Серия 1.030.1-1/88Серия 1.030.1-1/88Серия 1.030.1-1/88Серия 1.030.1-1/88Серия 1.030.1-1/88Серия 1.030.1-1/88Серия 1.030.1-1/88Серия 1.030.1-1/88Серия 1.030.1-1/88Серия 1.030.1-1/88Серия 1.030.1-1/88Серия 1.030.1-1/88Серия 1.030.1-1/88Серия 1.030.1-1/88Серия 1.030.1-1/88Серия 1.030.1-1/88Серия 1.030.1-1/88Серия 1.030.1-1/88Серия 1.030.1-1/88Серия 1.030.1-1/88Серия 1.030.1-1/88Серия 1.030.1-1/88Серия 1.030.1-1/88Серия 1.030.1-1/88Серия 1.030.1-1/88Серия 1.030.1-1/88Серия 1.030.1-1/88Серия 1.030.1-1/88Серия 1.030.1-1/88Серия 1.030.1-1/88Серия 1.030.1-1/88Серия 1.030.1-1/88Серия 1.030.1-1/88Серия 1.030.1-1/88Серия 1.030.1-1/88Серия 1.030.1-1/88Серия 1.030.1-1/88Серия 1.030.1-1/88Серия 1.030.1-1/88Серия 1.030.1-1/88Серия 1.030.1-1/88Серия 1.030.1-1/88Серия 1.030.1-1/88Серия 1.030.1-1/88Серия 1.030.1-1/88Серия 1.030.1-1/88Серия 1.030.1-1/88Серия 1.030.1-1/88Серия 1.030.1-1/88Серия 1.030.1-1/88Серия 1.030.1-1/88Серия 1.030.1-1/88Серия 1.030.1-1/88

© 2013 Ёшкин Кот :-) Карта сайта