| ||||||||||||||||||||||||||
Скачать 6ПДС Жилые блок-секции серии М6 ЭКО. Архитектурно-строительные решения. Подземная часть. Железобетонные конструкции. Детали узловДата актуализации: 10.08.2017
|
| Обозначение: | 6ПДС |
| Обозначение англ: | 6ПДС |
| Статус: | не определен законодательством |
| Название рус.: | Жилые блок-секции серии М6 ЭКО. Архитектурно-строительные решения. Подземная часть. Железобетонные конструкции. Детали узлов |
| Дата добавления в базу: | 01.09.2013 |
| Дата актуализации: | 05.05.2017 |
| Дата введения: | 01.01.1999 |
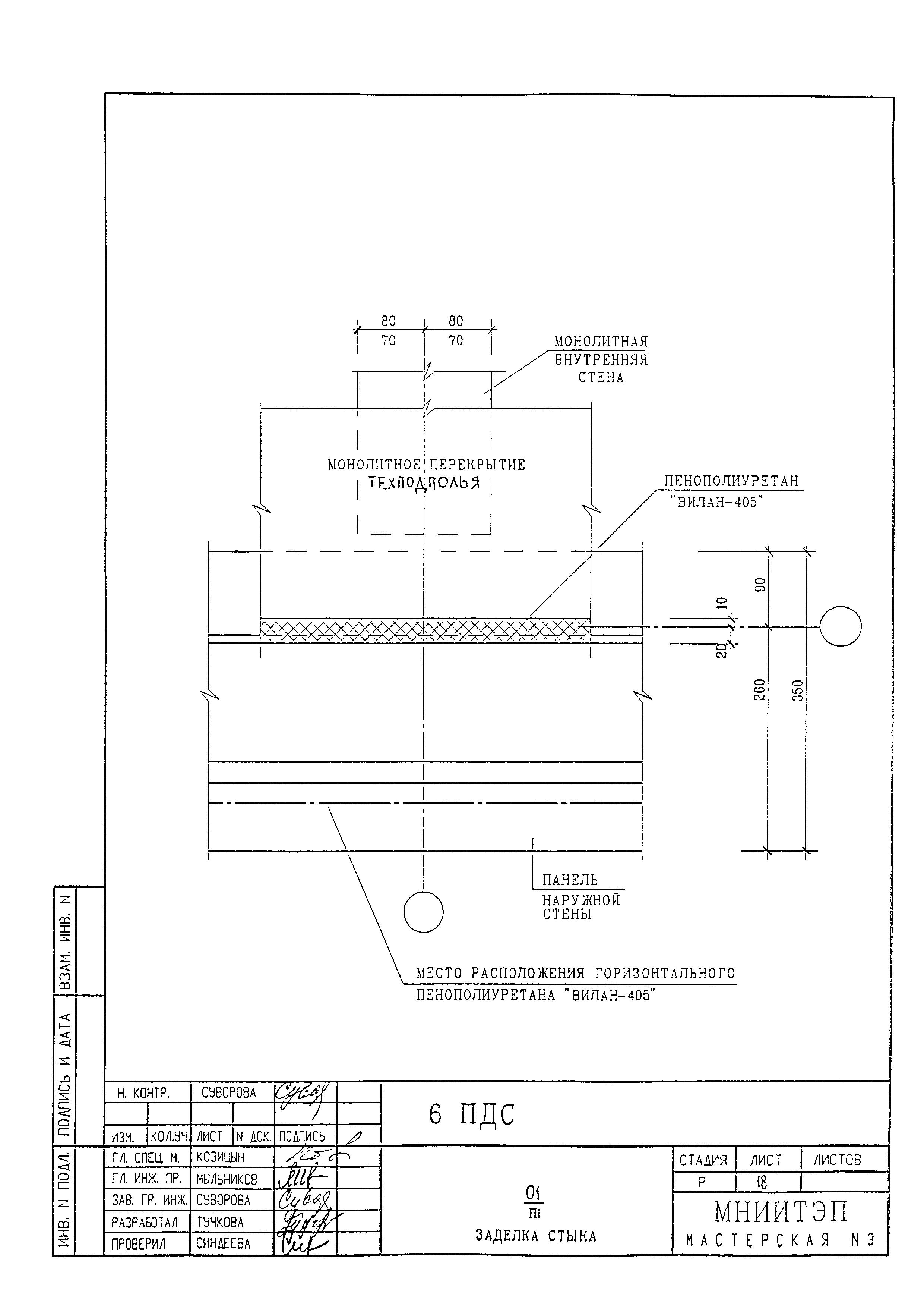
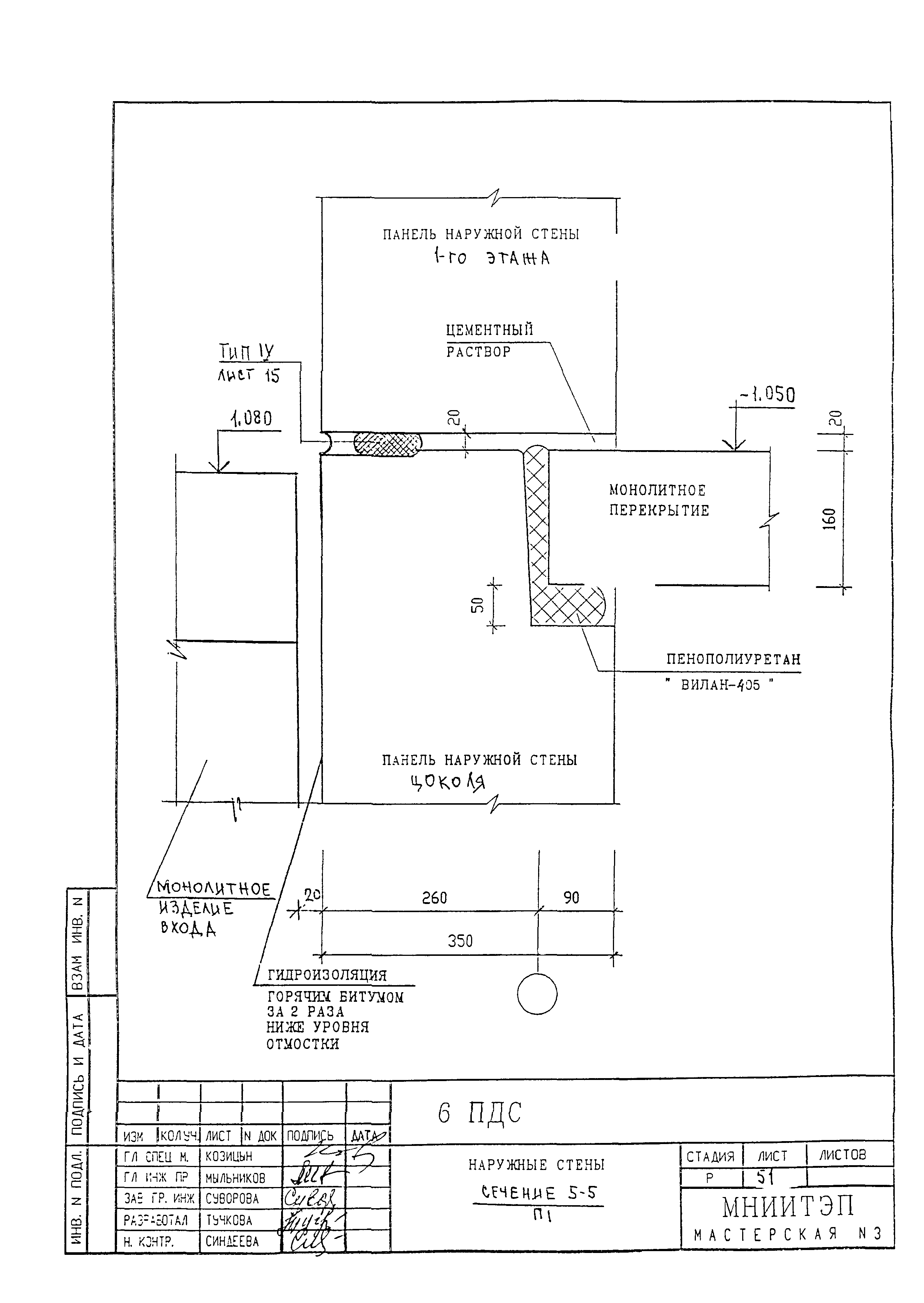
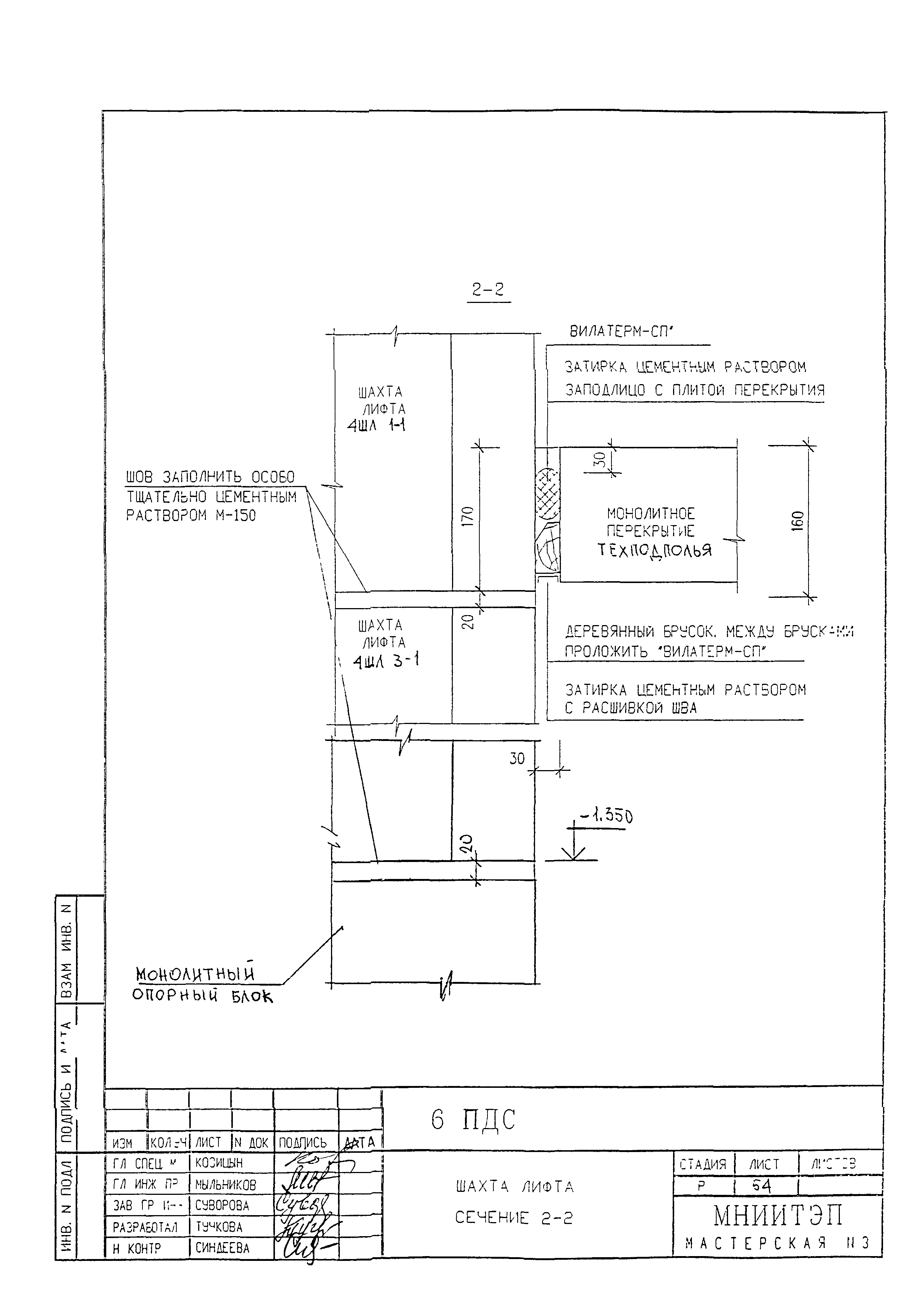
| Оглавление: | Содержание Техническое описание Подземная часть здания. Ведомость нормативных документов на материалы, применяемые в узлах Монтажные связи Схемы расположения элементов техподполья Герметизация стыков. Вертикальный шов тип I Герметизация стыков. Вертикальный шов тип II Герметизация стыков. Горизонтальный шов тип III Герметизация стыков. Горизонтальный шов тип IV Типы стандартных сварных швов. Условные обозначения Раздел П1. Соединение панелей наружных стен с перекрытиями. Заделка стыков Наружные стены 01/П1. Заделка стыка Наружные стены 02/П1. Заделка стыка Наружные стены и перекрытия 02/П1. Заделка стыка Наружные стены 03/П1. Заделка стыка Наружные стены и перекрытия 03/П1. Заделка стыка Наружные стены и перекрытия 04/П1. План в уровне связей Наружные стены 04/П1 Наружные стены и перекрытия 04/П1. Сечение 1-1 Наружные стены и перекрытия 05/П1. План в уровне связей Наружные стены 05/П1. План в уровне связей Наружные стены 05/П1. Сечение 1-1 Наружные стены и перекрытия 06/П1. План в уровне связей Наружные стены 06/П1. План в уровне связей Наружные стены 06/П1. Сечение 1-1 Наружные стены и перекрытия 07/П1. План в уровне связей Наружные стены 07/П1. План в уровне связей Наружные стены и перекрытия 07/П1. Сечение 1-1 Наружные стены 08/П1. Заделка стыка Наружные стены и перекрытия 08/П1. Заделка стыка Наружные стены 09/П1. Заделка стыка Наружные стены и перекрытия 09/П1. Заделка стыка Наружные стены и перекрытия 09/П1. План в уровне связей Наружные стены 09/П1. Сечение 1-1 Наружные стены 10/П1. Заделка стыка Наружные стены и перекрытия 10/П1. Заделка стыка Наружные стены 10/П1. План в уровне связей Устройство водосборного приямка 11/П1 Устройство водосборного приямка 11/П1. Сечения 1-1, 2-2 Наружные стены 12/П1 Наружные стены . Сечение 1-1/П1 Наружные стены . Сечение 2-2/П1 Наружные стены . Сечение 3-3/П1 Наружные стены . Сечение 4-4/П1 Наружные стены . Сечение 5-5/П1 Раздел П2. Соединение и заделка лифтовой шахты, блока инженерных коммуникаций, вентблоков, стояков отопления Схема шахты лифта Шахта лифта. Сечение 1-1 Шахта лифта. Сечение 2-2 Устройство водоотводного лотка и выпуска водостока Перекрытие. Установка вентблока БВ49-1 Установка вентблока БВ49-1. Сечения 1-1, 2-2 Перекрытие. Установка блока 6КБ-1 Перекрытие. Заделка стояков отопления Информационная карта |
| Разработан: | МНИИТЭП |
| Утверждён: | 01.01.1999 МНИИТЭП (MNIITEP ) |
| Расположен в: |































































