| ||||||||||||||||||||||||||||
Скачать РМ-2779-01 Часть IIДата актуализации: 10.08.2017
|
| Обозначение: | РМ-2779-01 |
| Обозначение англ: | РМ-2779-01 |
| Статус: | не определен законодательством |
| Название рус.: | Часть II |
| Дата добавления в базу: | 01.09.2013 |
| Дата актуализации: | 05.05.2017 |
| Дата введения: | 06.04.2000 |
| Область применения: | Альбом содержит рабочие чертежи наружных трехслойных навесных стеновых панелей из тяжелого бетона с эффективным утеплителем, предназначенных для жилых домов серии М6 /"ЭКО"/. |
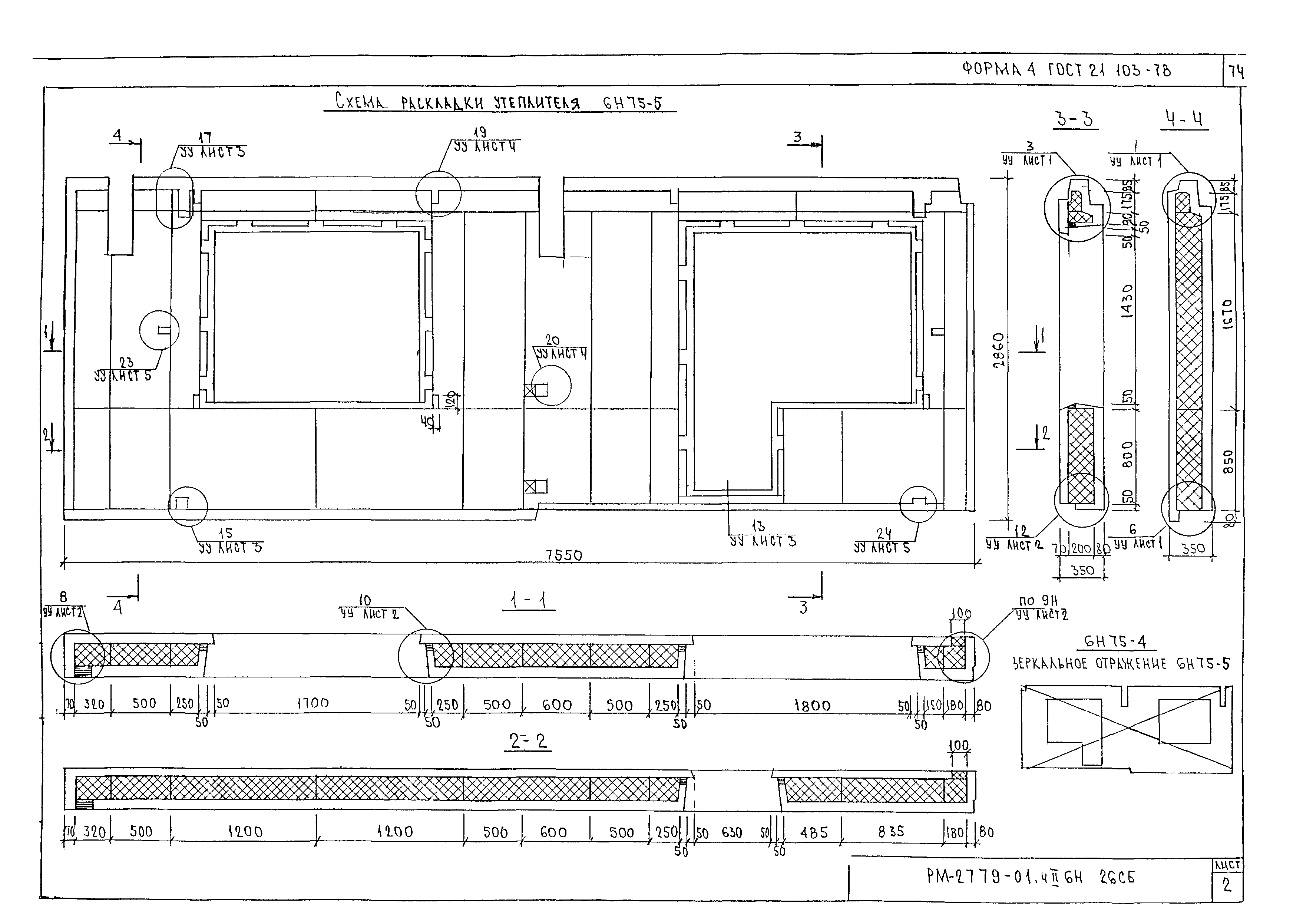
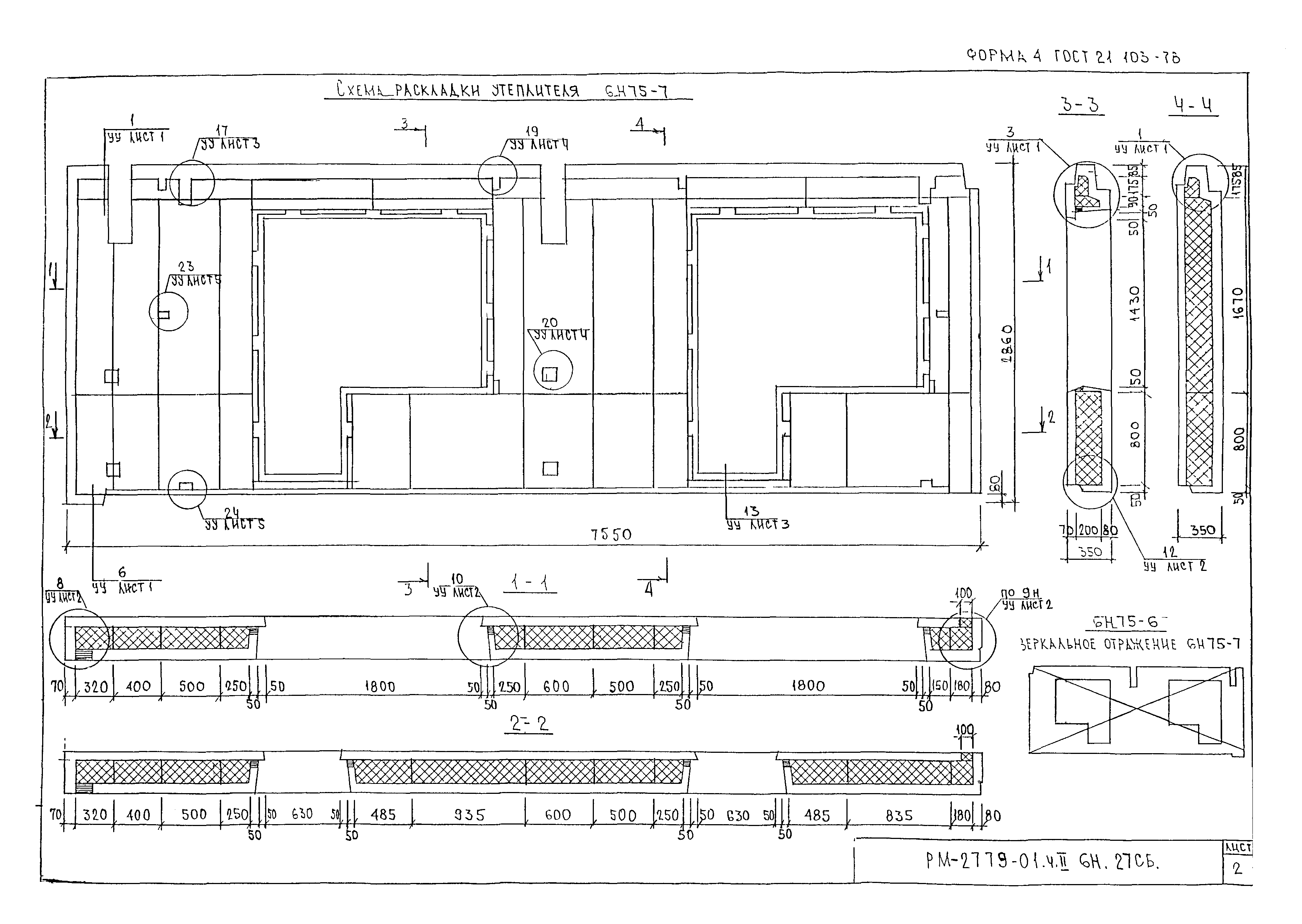
| Оглавление: | РМ-2779-01.ч.П.ПЗ Пояснительная записка РМ-2779-01.ч.П.НИ Номенклатура изделий РМ-2779-01.ч.П.РС Ведомость расхода стали РМ-2779-01.ч.П.6Н.11СБ Панель 6H6-1.Сборочный чертёж РМ-2779-01.ч.П.6Н.12СБ Панель 6H8-1.Сборочный чертёж РМ-2779-01.ч.П.6Н.13СБ Панели 6Н8-3,СН8-4. Сборочный чертёж РМ-2779-01.ч.П.6Н.14СБ Панели 6H8-5.6Н8-6.Сборочный чертёж РМ-2779-01.ч.П.6Н.15СБ Панель 6Н34-2. Сборочный чертёж РМ-2779-01.ч.П.6Н.16СБ Панель 6Н34-3. Сборочный чертёж РМ-2779-01.ч.П.6Н.17СБ Панель 6H34-8-1M. Сборочный чертёж РМ-2779-01.ч.П.6Н.18СБ Панели 6Н34-10; 6Н34-10-1М. Сборочный чертёж РМ-2779-01.ч.П.6Н.19СБ Панель 6H38-1-1M.Сборочный чертёж РМ-2779-01.ч.П.6Н.20СБ Панели 6Н38-3; 6Н38-3-1м. Сборочный чертёж РМ-2779-01.ч.П.6Н.21СБ Панели 6Н39-1; 6Н39-2 .Сборочный чертёж РМ-2779-01.ч.П.6Н.22СБ Панели 6Н39-3; 6Н39-4. Сборочный чертёж РМ-2779-01.ч.П.6Н.23СБ Панели 6Н39-6; 6Н39-7. Сборочный чертёж РМ-2779-01.ч.П.6Н.24СБ Панели 6Н66-2 ;6Н66-1. Сборочный чертёж РМ-2779-01.ч.П.6Н.25СБ Панели 6H75-1; 6Н75-2. Сборочный чертёж РМ-2779-01.ч.П.6Н.26СБ Панели 6Н75-5 ;6Н75-4. Сборочный чертёж РМ-2779-01.ч.П.6Н.27СБ Панели 6И75-7 ;6Н75-6. Сборочный чертёж РМ-2779-01.ч.П. Каркасы. Сборочный чертёж РМ-2779-01.ч.П. Сетки. Сборочный чертёж РМ-2779-01.ч.П. Петли. Сборочный чертёж РМ-2779-01.ч.П. Информационная карта |
| Разработан: | МНИИТЭП |
| Утверждён: | 06.04.2000 МНИИТЭП (MNIITEP 17-ТО) |
| Расположен в: |























































































