| ||||||||||||||||||||||||||||
Скачать Серия 1.117.1-19 Выпуск 1. Панели толщиной 400 мм. Рабочие чертежиДата актуализации: 10.08.2017
|
| Обозначение: | Серия 1.117.1-19 |
| Обозначение англ: | Series 1.117.1-19 |
| Статус: | действует |
| Название рус.: | Выпуск 1. Панели толщиной 400 мм. Рабочие чертежи |
| Дата добавления в базу: | 01.09.2013 |
| Дата актуализации: | 05.05.2017 |
| Область применения: | Рабочие чертежи унифицированных однослойных цокольных панелей наружных стен предназначены для проектирования и строительства крупнопанельных жилых зданий до 9 этажей в I климатическом районе (подрайоны IА, IБ, IГ, IД) на обычных и вечномерзлых грунтах, используемых по принципу I |
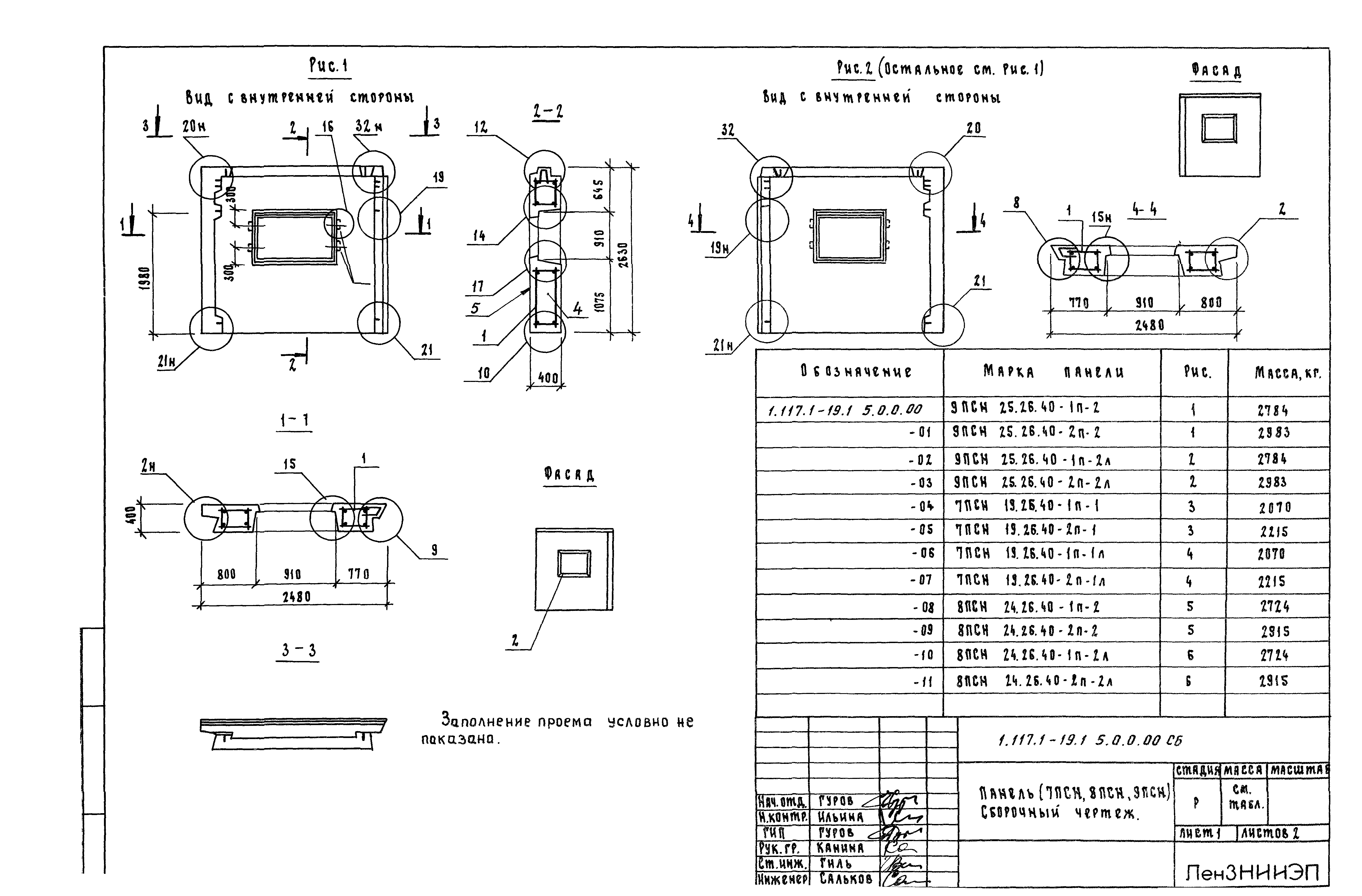
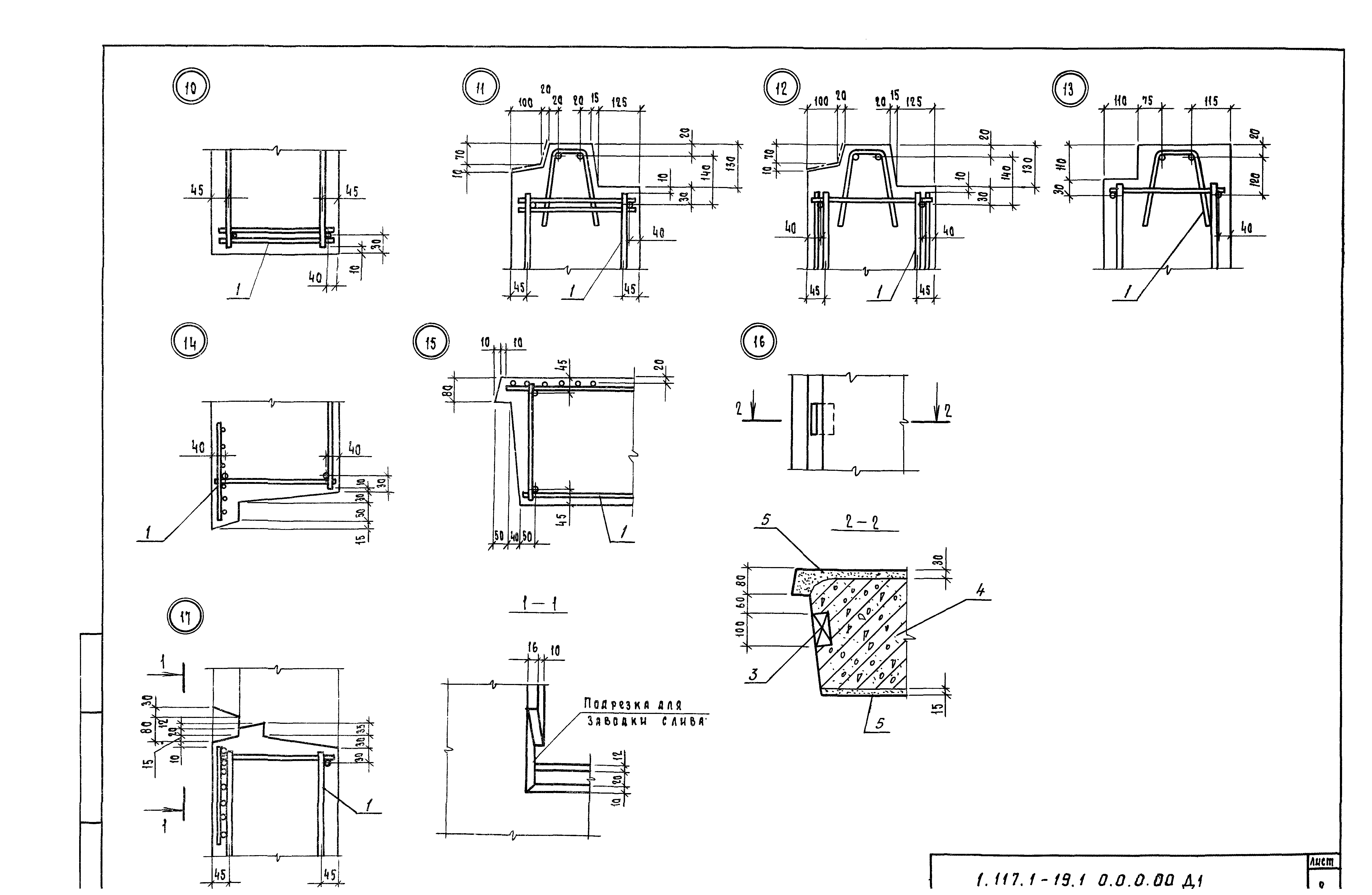
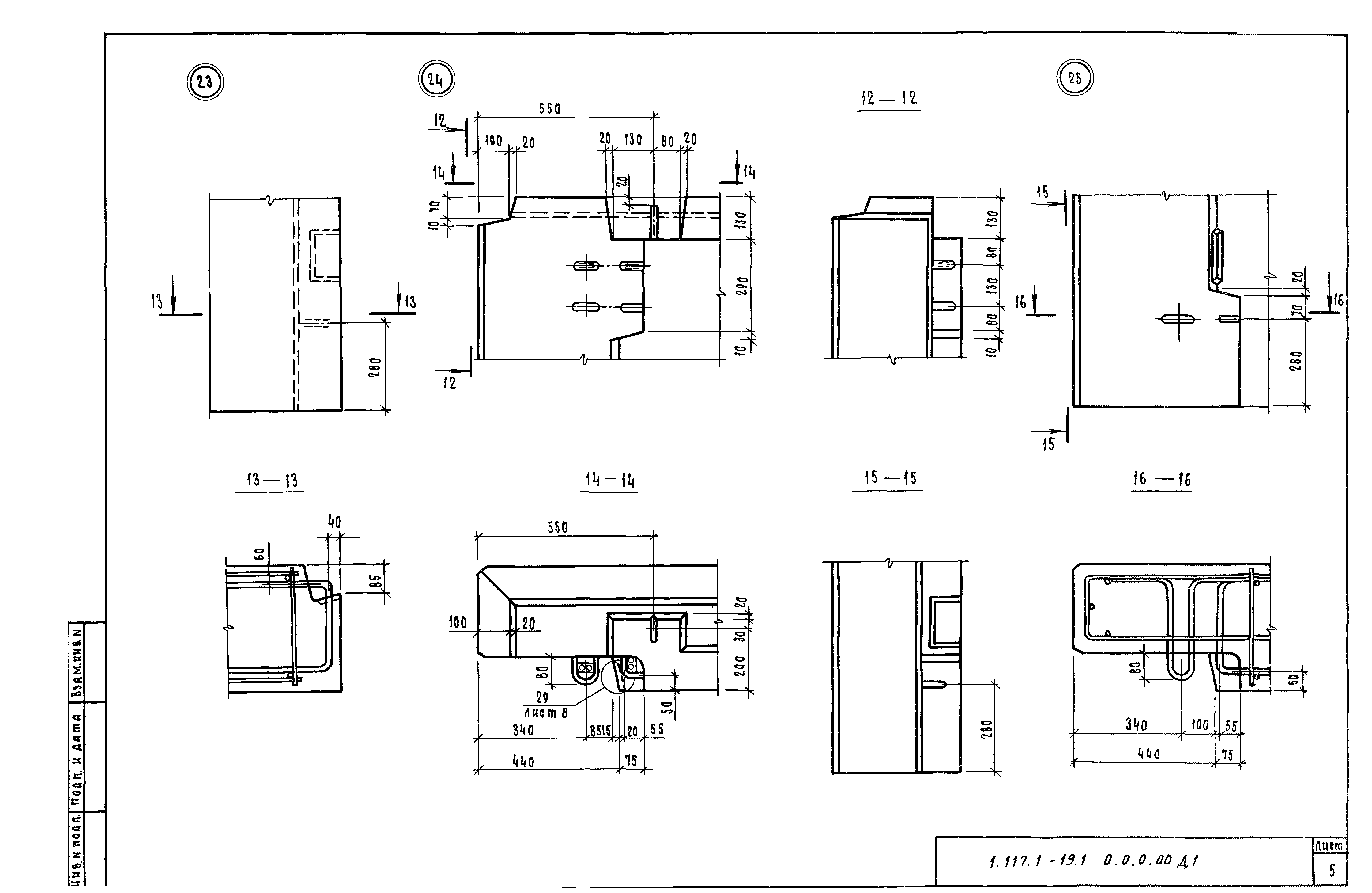
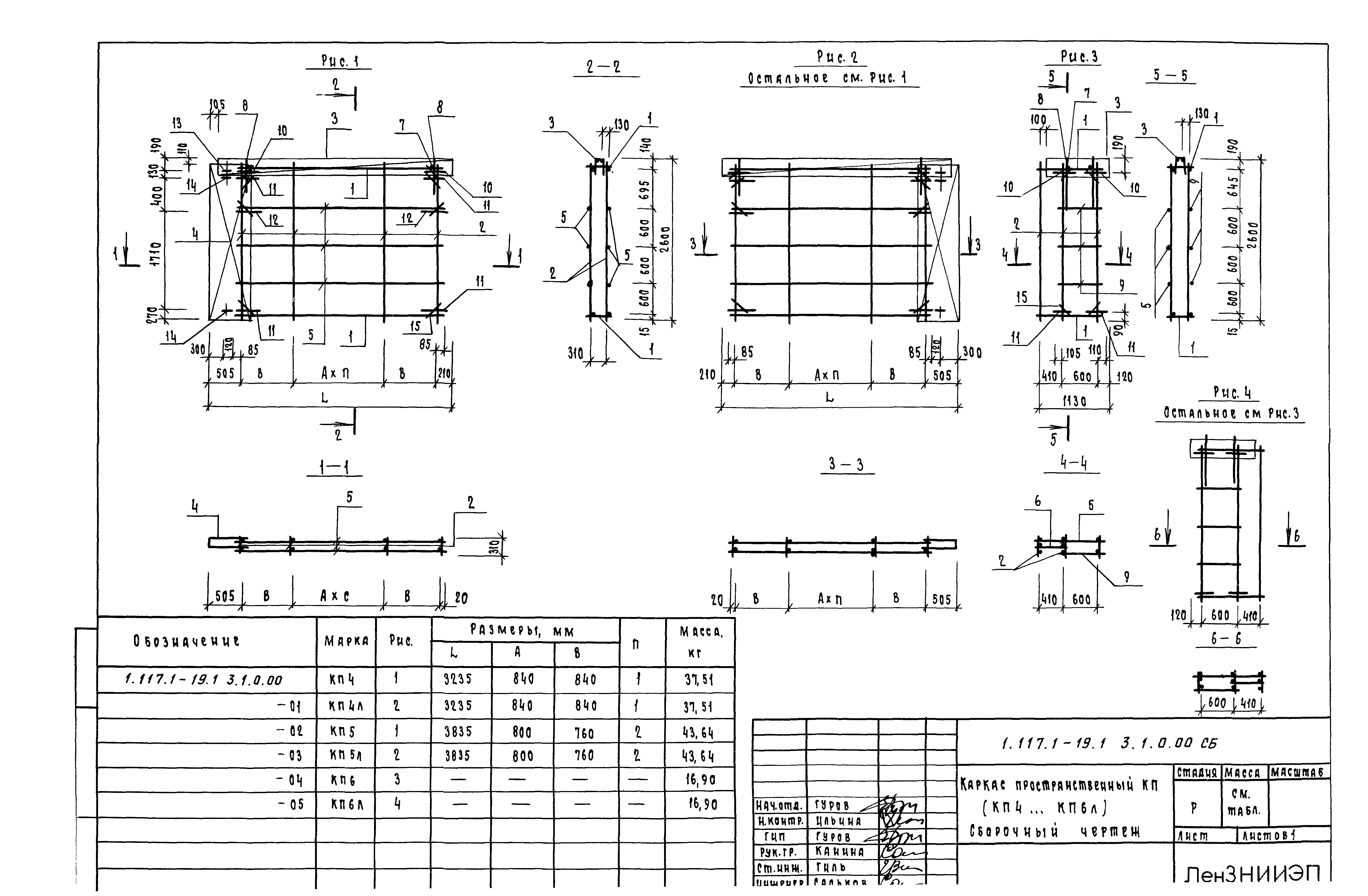
| Оглавление: | 1.117.1-19.10.0.0.00 ТО Техническое описание 1.117.1-19.10.0.0.00 СМ1 Схемы приложения расчетных нагрузок 1.117.1-19.10.0.0.00 СМ2 Схемы испытания панелей 1.117.1-19.10.0.0.00 НИ Номенклатура 1.117.1-19.11.0.0.00 Панель 1ПСН 1.117.1-19.11.0.0.00 СБ Панель 1ПСН. Сборочный чертеж 1.117.1-19.12.0.0.00 Панель 3ПСН 1.117.1-19.12.0.0.00 СБ Панель 3ПСН. Сборочный чертеж 1.117.1-19.13.0.0.00 Панель 5ПСН 1.117.1-19.13.0.0.00 СБ Панель 5ПСН. Сборочный чертеж 1.117.1-19.14.0.0.00 Панель 6ПСН 1.117.1-19.14.0.0.00 СБ Панель 6ПСН. Сборочный чертеж 1.117.1-19.15.0.0.00 Панель (7ПСН, 8ПСН, 9ПСН) 1.117.1-19.15.0.0.00 СБ Панель (7ПСН, 8ПСН, 9ПСН). Сборочный чертеж 1.117.1-19.10.0.0.00 Д1 Узлы 1… 36 1.117.1-19.11.1.0.00 Каркас пространственный КП (КП1… КП3л) 1.117.1-19.11.1.0.00 СБ Каркас пространственный КП (КП1… КП3л). Сборочный чертеж 1.117.1-19.13.1.0.00 Каркас пространственный КП (КП4… КП6л) 1.117.1-19.13.1.0.00 СБ Каркас пространственный КП (КП4… КП6л). Сборочный чертеж 1.117.1-19.15.1.0.00 Каркас пространственный КП (КП7… КП9л) 1.117.1-19.15.1.0.00 СБ Каркас пространственный КП (КП7… КП9л). Сборочный чертеж 1.117.1-19.13.2.0.00 Каркас пространственный КП (КП10… КП12л) 1.117.1-19.13.2.0.00 СБ Каркас пространственный КП (КП10… КП12л). Сборочный чертеж 1.117.1-19.11.2.0.00 Блок оконный ОБ(ОБ1, ОБ2) 1.117.1-19.11.2.0.00 СБ Блок оконный ОБ(ОБ1, ОБ2). Сборочный чертеж 1.117.1-19.11.1.0.00 Каркас плоский (Кр1… Кр12) 1.117.1-19.11.1.0.00 СБ Каркас плоский (Кр1… Кр12). Сборочный чертеж 1.117.1-19.13.1.1.00 Каркас плоский Кр13 1.117.1-19.13.1.1.00 СБ Каркас плоский Кр13. Сборочный чертеж 1.117.1-19.11.1.2.00 Сетка арматурная С(С1… С4) 1.117.1-19.11.1.2.00 СБ Сетка арматурная С(С1… С4). Сборочный чертеж 1.117.1-19.11.1.3.00 Изделие закладное Мна(Мна1… Мна4) 1.117.1-19.11.1.3.00 СБ Изделие закладное Мна(Мна1… Мна4). Сборочный чертеж 1.117.1-19.11.1.4.00 Стержень гнутый Ан(Ан1… Ан5); Петля П(П1… П5) 1.117.1-19.00.0.0.00 РС Ведомость расхода стали 1.117.1-19.00.0.0.00 РМ Ведомость расхода материалов |
| Разработан: | ЛенЗНИИЭП Госгражданстроя |
| Утверждён: | 20.01.1986 Госгражданстрой (Gosgrazhdanstroy 23) |
| Расположен в: | |
| Нормативные ссылки: |
|











































































