Скачать Серия 1.412.1-6 Выпуск 0. Материалы для проектированияДата актуализации: 10.08.2017 Серия 1.412.1-6
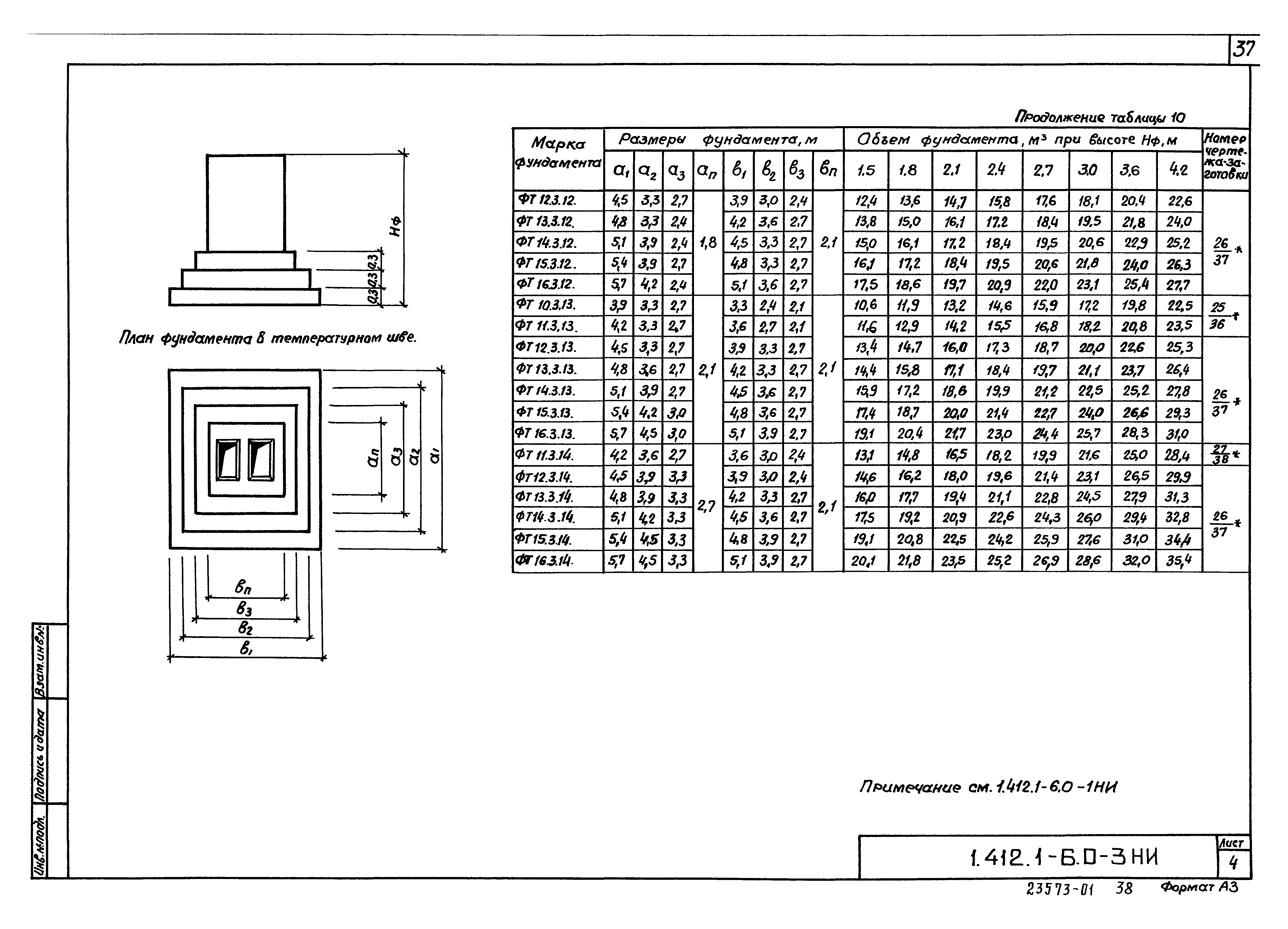
Выпуск 0. Материалы для проектированияОбозначение: | Серия 1.412.1-6 | Обозначение англ: | Series 1.412.1-6 | Статус: | не определен законодательством | Название рус.: | Выпуск 0. Материалы для проектирования | Дата добавления в базу: | 01.09.2013 | Дата актуализации: | 05.05.2017 | Дата введения: | 01.04.1988 | Область применения: | Серия 1.412.1-6 содержит указания по применению и материалы для проектирования железобетонных монолитных фундаментов на естественном основании под железобетонные колонны каркасов одноэтажных и многоэтажных зданий и сооружений | Оглавление: | 1.412.1-6.0-ПЗ Пояснительная записка 1.412.1-6.0-1НИ Номенклатура одноступенчатых фундаментов 1.412.1-6.0-2НИ Номенклатура двухступенчатых фундаментов 1.412.1-6.0-3НИ Номенклатура трехступенчатых фундаментов 1.412.1-6.0-4НИ Номенклатура трехступенчатых фундаментов с верхней ступенью высотой 0,3 м 1.412.1-6.0-5НИ Номенклатура трехступенчатых фундаментов с верхней ступенью высотой 0,6 м 1.412.1-6.0-6НИ Схемы армирования рядовых фундаментов 1.412.1-6.0-7НИ Схемы сборки сеток в пространственный каркас 1.412.1-6.0-8НИ Схемы расположения дополнительных закладных изделий для молнезащиты и "безвыверочного" монтажа колонн 1.412.1-6.0-9НИ Схемы монолитных набетонок под фундаментные балки 1.412.1-6.0-10СМ График подбора типоразмеров фундаментных плит 1.412.1-6.0-11СМ Таблица проверки несущей способности "низких" фундаментов на продавливание 1.412.1-6.0-12СМ Таблица проверки несущей способности "высоких" фундаментов на продавливание 1.412.1-6.0-13СМ Таблицы коэффициентов КФ1 и КФ2 при полном и неполном касании подошвы фундамента с грунтом 1.412.1-6.0-14СМ Таблица проверки несущей способности фундаментной плиты на "обратный" момент по прочности бетонного сечения консоли 1.412.1-6.0-15СМ Таблица подбора арматуры фундаментных плит рядовых фундаментов 1.412.1-6.0-16СМ Таблица подбора арматуры фундаментных плит фундаментов в температурных швах 1.412.1-6.0-17СМ Ключ для подбора марок сеток армирования фундаментных плит шириной менее 3 м 1.412.1-6.0-18СМ Ключ для подбора марок сеток армирования фундаментных плит шириной более 3 м 1.412.1-6.0-19СМ Графики проверки несущей способности сплошного сечения по низу подколонника 1.412.1-6.0-20СМ Графики подбора вертикальной арматуры в сплошном сечении по низу подколонника | Разработан: | ЦНИИСК им. В.А. Кучеренко НИИЖБ НИИОСП им. Герсеванова Госстроя России НИИ строительства Госстроя ЭССР Проектный институт № 1 Минсевзапстроя СССР
| Утверждён: | 27.12.1988 Госстрой СССР (Государственный комитет Совета Министров СССР по делам строительства) (USSR Gosstroy АЧ-48)
| Издан: | ЦИТП Госстроя СССР (CITP, Gosstroy (USSR) 1988 г. )
| Расположен в: |
| Заменяет собой: | | Нормативные ссылки: |   СНиП 2.01.07-85* «Нагрузки и воздействия»  СНиП 2.03.11-85 «Защита строительных конструкций от коррозии»  СНиП 2.02.01-83* «Основания зданий и сооружений»  ГОСТ 23279-85 «Сетки арматурные сварные для железобетонных конструкций и изделий. Общие технические условия»  ГОСТ 5781-82 «Сталь горячекатаная для армирования железобетонных конструкций. Технические условия» ГОСТ 7473-85 «Смеси бетонные. Технические условия» ГОСТ 10922-75 «Арматурные изделия и закладные детали сварные для железобетонных конструкций. Технические требования и методы испытаний» ГОСТ 14098-85 «Соединения сварные арматуры и закладных изделий железобетонных конструкций. Типы, конструкция и размеры» Серия 1.424.1-5 «Колонны железобетонные прямоугольного сечения для одноэтажных производственных зданий высотой 8,4-14,4 м, оборудованные мостовыми опорными кранами грузоподъемностью до 32 т» Серия 1.424.1-9 «Колонны железобетонные двухветвевого сечения для одноэтажных производственных зданий высотой 15,6; 16,8 и 18,0 м» Серия 1.427.1-3 «Колонны железобетонные прямоугольного сечения для продольного и торцового фахверка одноэтажных производственных зданий высотой 3,0-14,4 м» Серия 1.420-8/81 «Конструкции двухэтажных производственных бескрановых зданий с сетками колонн первого этажа 6х6, 9х6, 12х6 м, второго этажа 18х6, 18х12, 24х6, 24х12 м, нагрузкой на перекрытие до 5 тс/м2 и железобетонными двухэтажными колоннами» Серия 1.020-1/83 «Конструкции каркаса межвидового применения для многоэтажных общественных зданий, производственных и вспомогательных зданий промышленных предприятий» Серия 1.420-12 «Конструкции многоэтажных производственных зданий с сетками колонн 6х6 и 9х6 м под нагрузки соответственно до 2500 и 1500 кгс/кв. м» СНиП III-15-76 «Бетонные и железобетонные конструкции монолитные» Серия 1.423-3 «Железобетонные колонны прямоугольного сечения для одноэтажных производственных зданий без мостовых кранов высотой до 9,6 м» Серия 1.423-5 «Железобетонные колонны прямоугольного сечения для одноэтажных производственных зданий без мостовых кранов высотой 10,8; 12,0; 13,2 и 14,4 м» Серия 1.423.1-7 «Колонны железобетонные предварительно напряженные одноэтажных зданий промышленных предприятий без мостовых кранов» Серия 1.423-2 «Железобетонные колонны для одноэтажных однопролетных промышленных зданий, оборудованных ручными мостовыми кранами» Серия 1.424.1-6 «Колонны железобетонные прямоугольного сечения с проходами в уровне крановых путей для одноэтажных производственных зданий высотой 10,8 - 14,4 м, оборудованных мостовыми опорными кранами грузоподъемностью до 32 тонн» Серия 1.420-6 «Конструкции многоэтажных производственных зданий с сеткой колонн 12х6 м» Серия 1.420-13 «Конструкции многоэтажных производственных зданий с сетками колонн 6х6 м (3 - 5 этажей) и 9х6 м (3 - 4 этажа) под нагрузки соответственно 3000 и 2000 кгс/кв. м, а также зданий повышенной этажности с сетками колонн 6х6 м (6 - 10 этажей) и 9х6 м (5 - 8 этажей) под нагрузки соответственно 3000 - 1000 и 2000 - 500 кгс/кв. м» СНиП 2.03.01-84 «Бетонные и железобетонные конструкции»
|
                                                                                                             
|