| ||||||||||||||||||||||||||||||
Скачать Серия 1.010-1 Выпуск 0-3. Металлическая гидроизоляция и листовая гидроизоляция из полимерных материалов. Материалы для проектированияДата актуализации: 10.08.2017
|
| Обозначение: | Серия 1.010-1 |
| Обозначение англ: | Series 1.010-1 |
| Статус: | не определен законодательством |
| Название рус.: | Выпуск 0-3. Металлическая гидроизоляция и листовая гидроизоляция из полимерных материалов. Материалы для проектирования |
| Дата добавления в базу: | 01.09.2013 |
| Дата актуализации: | 05.05.2017 |
| Дата введения: | 01.04.1993 |
| Область применения: | Выпуск 0-3 содержит узлы металлической гидроизоляции и листовой гидроизоляции из полимерных материалов сборных, монолитных и сборно-монолитных подземных сооружений и предназначен для использования проектными и строительными организациями при проектировании и возведении подземных сооружений |
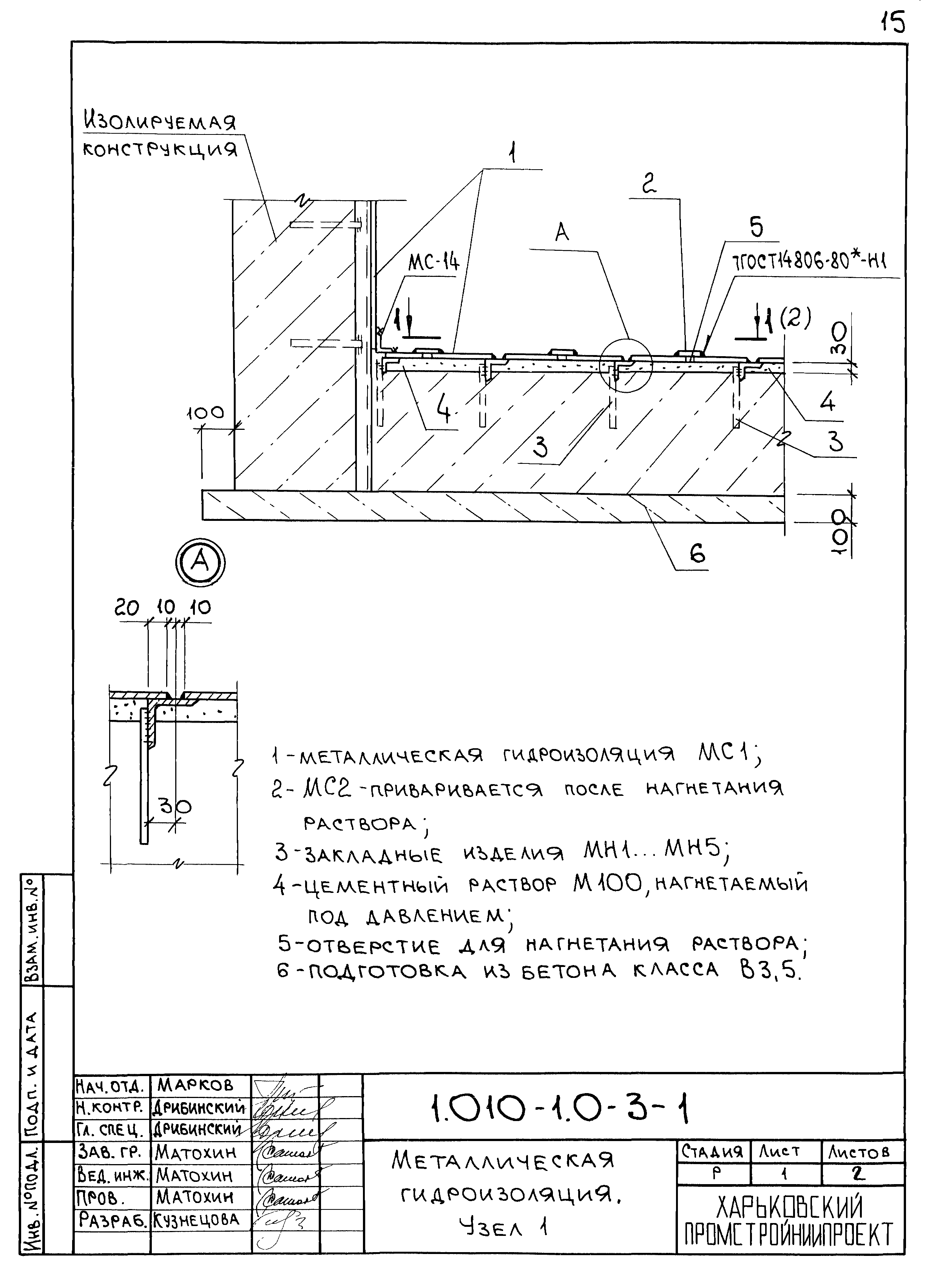
| Оглавление: | 1.010-1.0-3-1ПЗ Металлическая гидроизоляция. Пояснительная записка 1.010-1.0-3-1СМ Металлическая гидроизоляция. Схема сооружения 1.010-1.0-3-1 Металлическая гидроизоляция. Узел 1 1.010-1.0-3-2 Металлическая гидроизоляция. Узел 2 1.010-1.0-3-3 Металлическая гидроизоляция. Узел 3 1.010-1.0-3-4 Металлическая гидроизоляция. Узел 4 1.010-1.0-3-5 Металлическая гидроизоляция. Узел 5 1.010-1.0-3-6 Металлическая гидроизоляция. Узел 6 1.010-1.0-3-7 Металлическая гидроизоляция. Узел 7 1.010-1.0-3-8 Металлическая гидроизоляция. Узел 8 1.010-1.0-3-9 Металлическая гидроизоляция. Узел 9 1.010-1.0-3-2ПЗ Листовая гидроизоляция из полимерных материалов. Пояснительная записка. 1.010-1.0-3-2СМ Листовая гидроизоляция из полимерных материалов. Схема сооружения. 1.010-1.0-3-10 Листовая гидроизоляция из полимерных материалов. Узел 1 1.010-1.0-3-11 Листовая гидроизоляция из полимерных материалов. Узел 2 1.010-1.0-3-12 Листовая гидроизоляция из полимерных материалов. Узел 3 1.010-1.0-3-13 Листовая гидроизоляция из полимерных материалов. Узел 4 1.010-1.0-3-14 Листовая гидроизоляция из полимерных материалов. Узел 5 1.010-1.0-3-15 Листовая гидроизоляция из полимерных материалов. Узел 6 1.010-1.0-3-16 Листовая гидроизоляция из полимерных материалов. Узел 7 1.010-1.0-3-17 Листовая гидроизоляция из полимерных материалов. Узел 8 1.010-1.0-3-18 Листовая гидроизоляция из полимерных материалов. Узел 9 1.010-1.0-3-19 Листовая гидроизоляция из полимерных материалов. Узел 10 1.010-1.0-3-20 Листовая гидроизоляция из полимерных материалов. Узел 11 1.010-1.0-3-21 Листовая гидроизоляция из полимерных материалов. Узел 12 1.010-1.0-3-22 Листовая гидроизоляция из полимерных материалов. Узел 13 1.010-1.0-3-23 Листовая гидроизоляция из полимерных материалов. Узел 14 |
| Разработан: | ЦНИИпромзданий Харьковский Промстройниипроект |
| Утверждён: | 06.10.1992 Минстрой России (Russian Federation Minstroy 9-1/305) 28.10.1992 ЦНИИ промзданий (TsNII promzdaniy 78) |
| Расположен в: | |
| Нормативные ссылки: |
|

















































