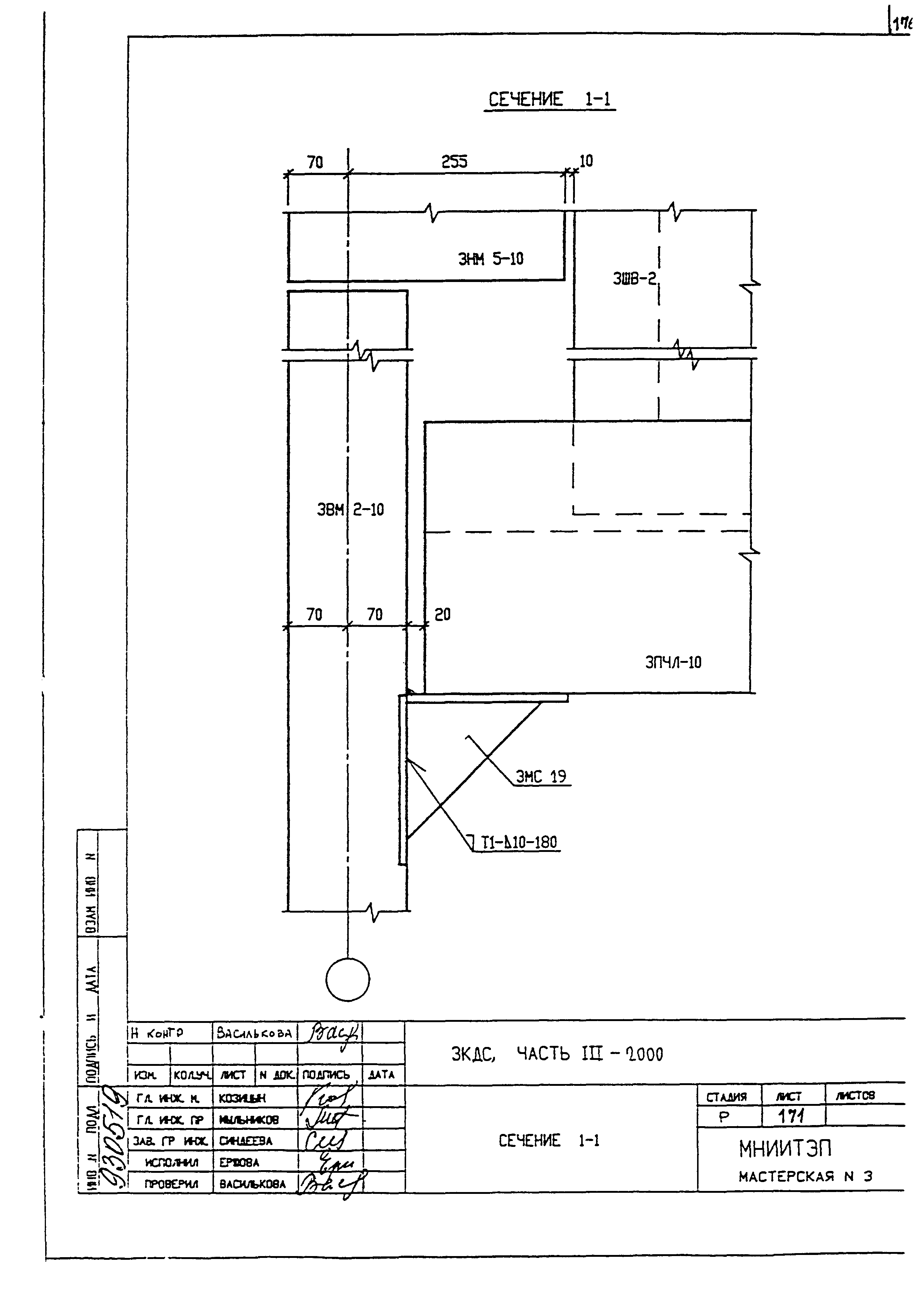
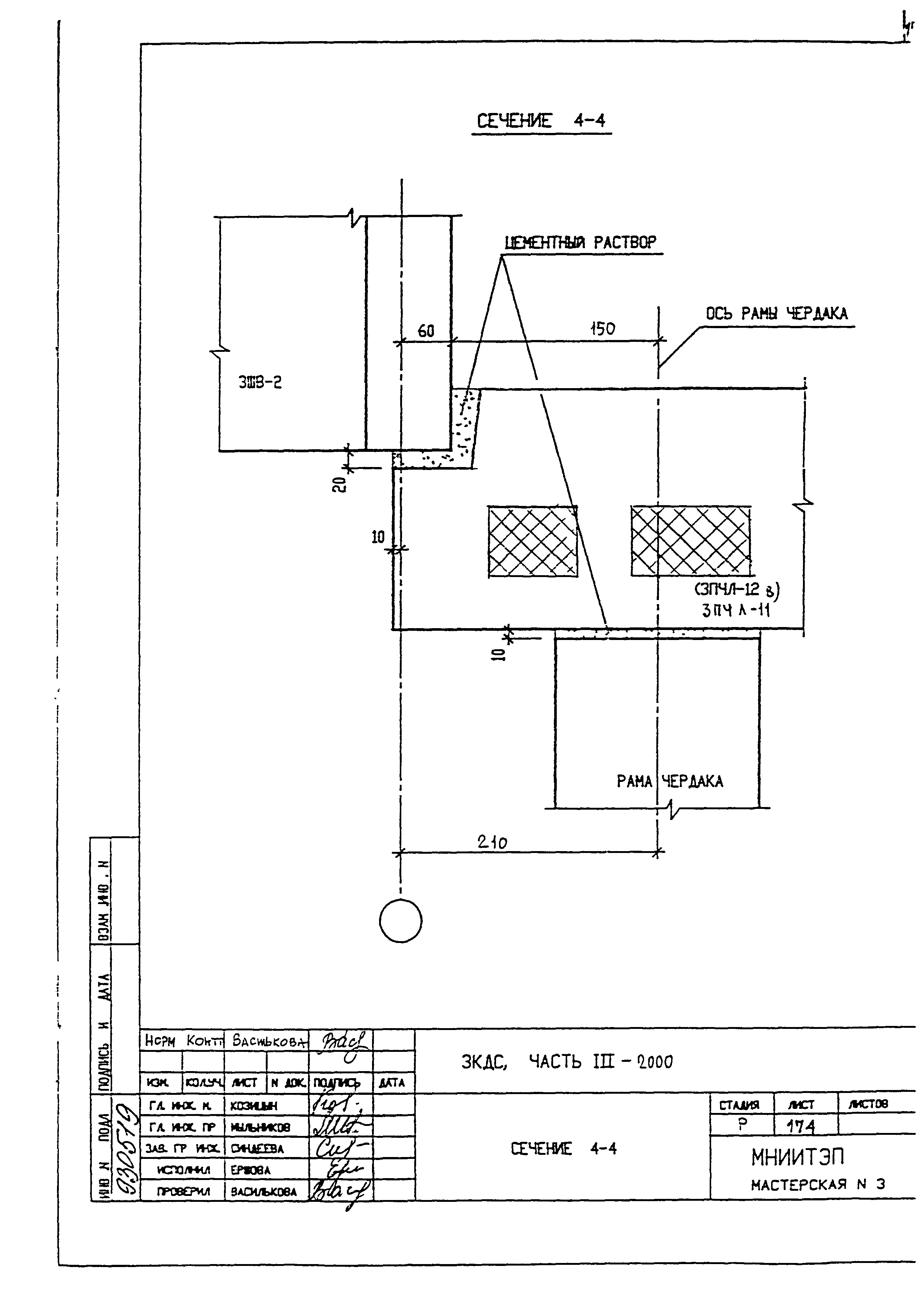
Скачать 3 КДС, часть III-2000 Железобетонные конструкции чердака и кровли здания с трехслойными бетонными плитами покрытия. Вариант по защите от прогрессирующего обрушения. Детали узловДата актуализации: 10.08.2017 3 КДС, часть III-2000
Железобетонные конструкции чердака и кровли здания с трехслойными бетонными плитами покрытия. Вариант по защите от прогрессирующего обрушения. Детали узлов| Обозначение: | 3 КДС, часть III-2000 | | Обозначение англ: | 3 КДС, часть III-2000 | | Статус: | не определен законодательством | | Название рус.: | Железобетонные конструкции чердака и кровли здания с трехслойными бетонными плитами покрытия. Вариант по защите от прогрессирующего обрушения. Детали узлов | | Дата добавления в базу: | 01.09.2013 | | Дата актуализации: | 05.05.2017 | | Дата введения: | 01.01.2003 | | Разработан: | МНИИТЭП
| | Утверждён: | 01.01.2003 МНИИТЭП (MNIITEP )
| | Расположен в: |
|
                                                                                                                                                                                                        
|