| ||||||||||||||||||||||||
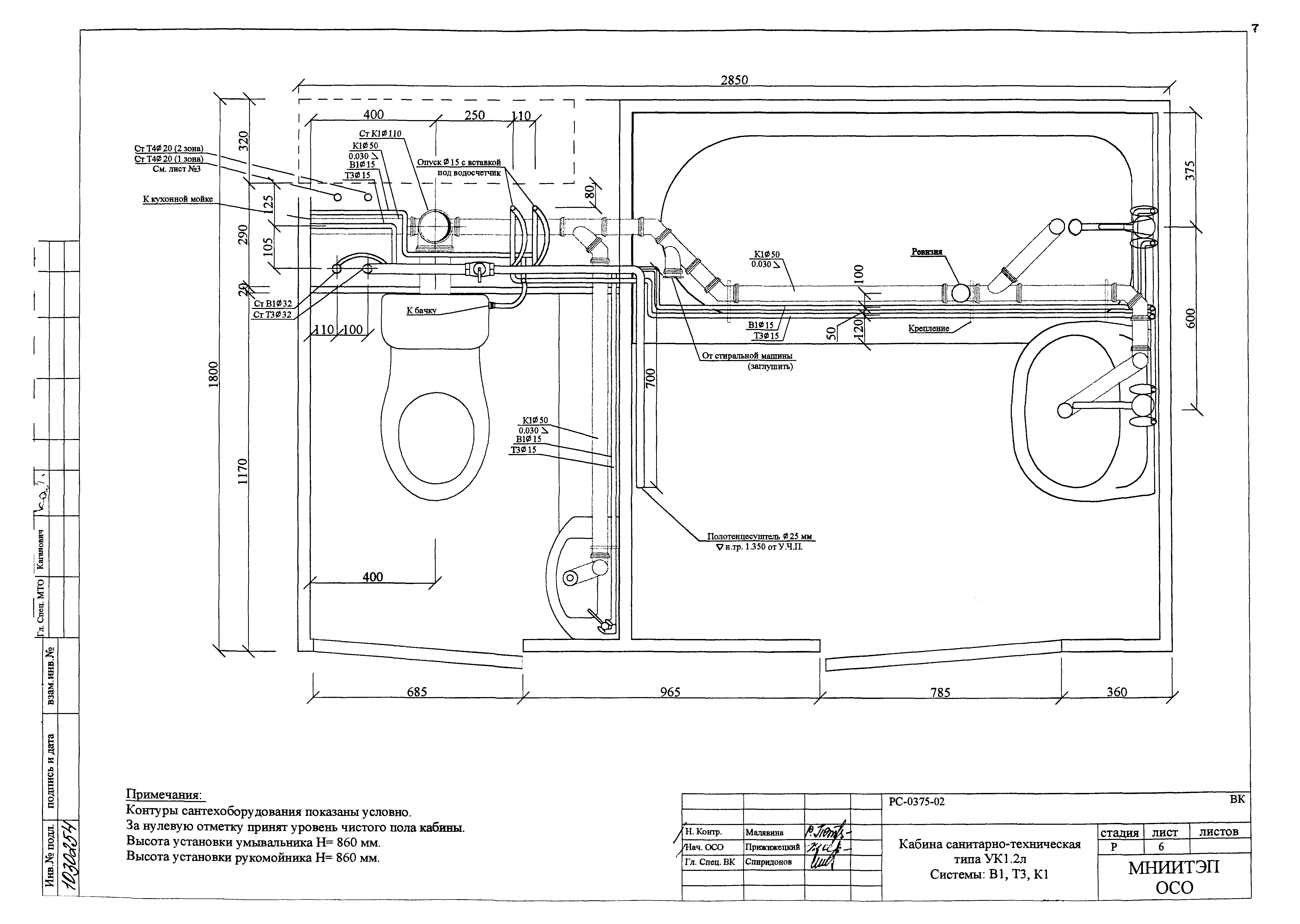
Скачать РС-0375-02 Кабина санитарно-техническая УК 1.2. Санитарно-техническое оборудование. Рабочие чертежиДата актуализации: 10.08.2017
|
| Обозначение: | РС-0375-02 |
| Обозначение англ: | РС-0375-02 |
| Статус: | не определен законодательством |
| Название рус.: | Кабина санитарно-техническая УК 1.2. Санитарно-техническое оборудование. Рабочие чертежи |
| Дата добавления в базу: | 01.09.2013 |
| Дата актуализации: | 05.05.2017 |
| Дата введения: | 24.06.2004 |
| Утверждён: | 24.06.2004 МНИИТЭП (MNIITEP 27-ТО) |
| Принят: | Даниловский завод Калибровский завод |
| Расположен в: |













