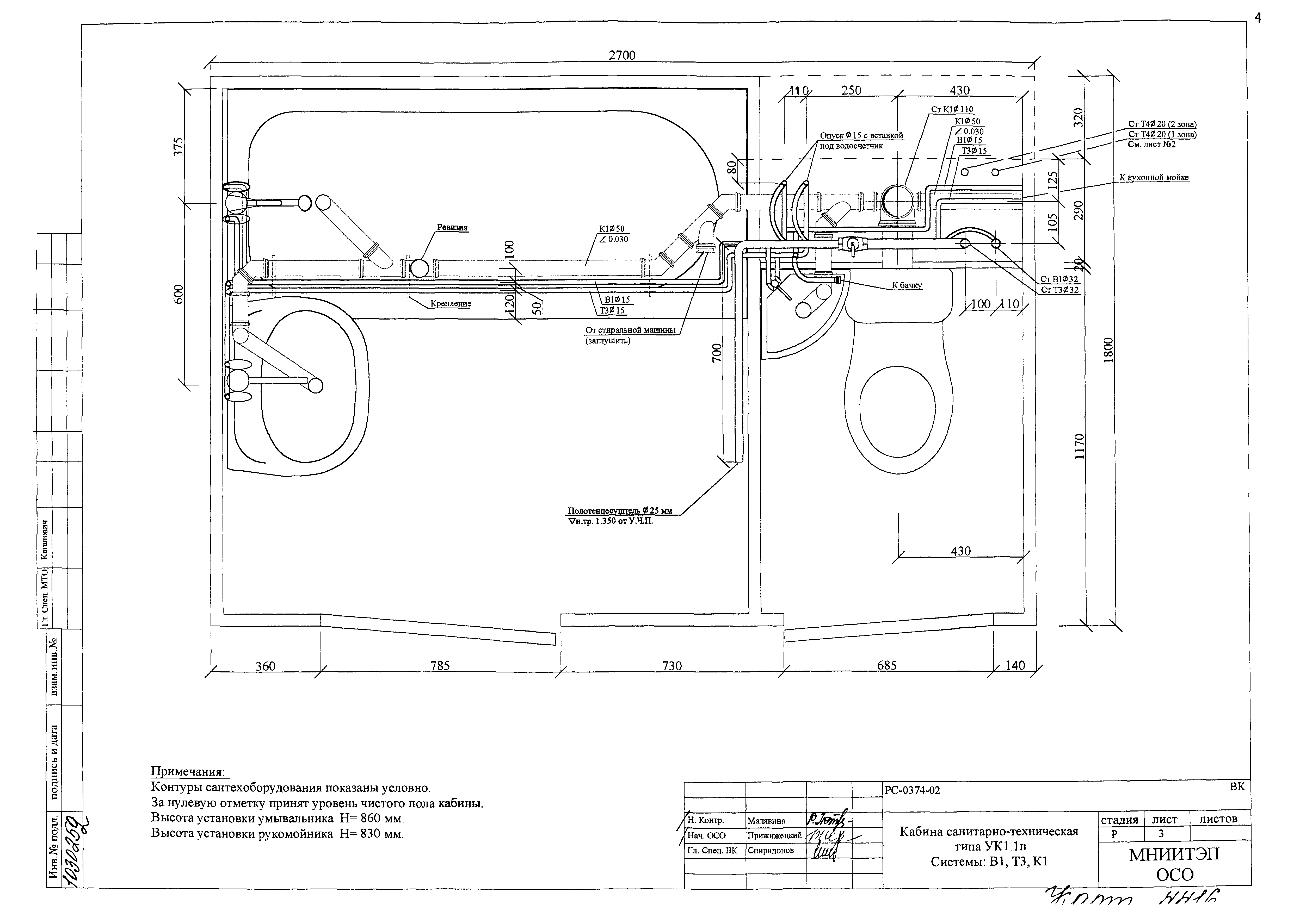
Скачать РС-0374-02 Кабина санитарно-техническая УК 1.1. Санитарно-техническое оборудование. Рабочие чертежиДата актуализации: 10.08.2017 РС-0374-02
Кабина санитарно-техническая УК 1.1. Санитарно-техническое оборудование. Рабочие чертежи| Обозначение: | РС-0374-02 | | Обозначение англ: | РС-0374-02 | | Статус: | не определен законодательством | | Название рус.: | Кабина санитарно-техническая УК 1.1. Санитарно-техническое оборудование. Рабочие чертежи | | Дата добавления в базу: | 01.09.2013 | | Дата актуализации: | 05.05.2017 | | Дата введения: | 24.06.2004 | | Разработан: | МНИИТЭП
| | Утверждён: | 24.06.2004 МНИИТЭП (MNIITEP 27-ТО)
| | Расположен в: |
|
            
|