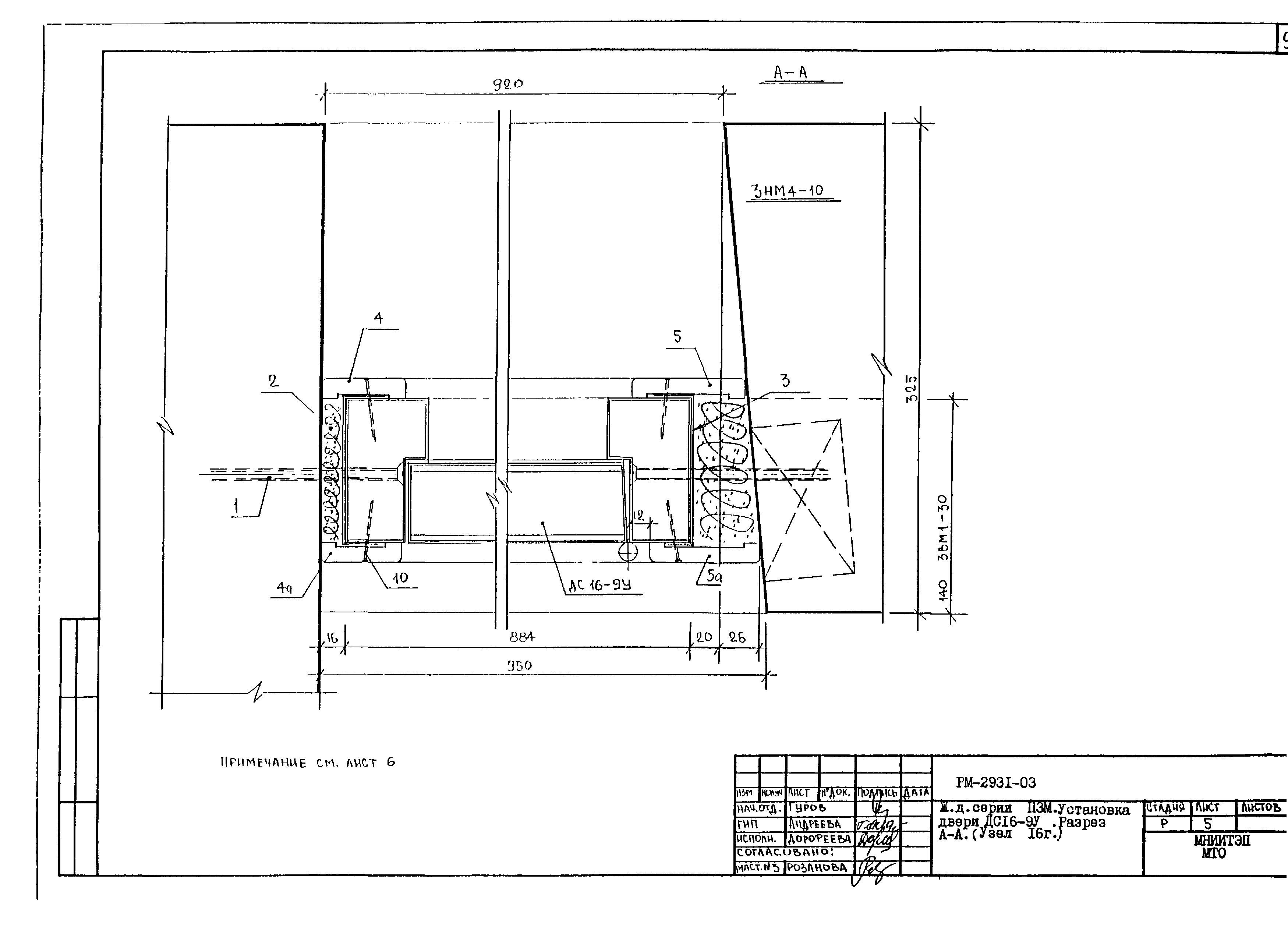
Скачать РМ-2931-03 Узлы установки служебных дверей в панели жилых домов серии П3МДата актуализации: 10.08.2017 РМ-2931-03
Узлы установки служебных дверей в панели жилых домов серии П3М| Обозначение: | РМ-2931-03 | | Обозначение англ: | РМ-2931-03 | | Статус: | не определен законодательством | | Название рус.: | Узлы установки служебных дверей в панели жилых домов серии П3М | | Дата добавления в базу: | 01.09.2013 | | Дата актуализации: | 05.05.2017 | | Дата введения: | 01.01.2004 | | Разработан: | МНИИТЭП
| | Утверждён: | 01.01.2004 МНИИТЭП (MNIITEP )
| | Расположен в: |
|
              
|