Информационная система
«Ёшкин Кот»

Скачать базу одним архивом
Скачать обновления
История создания базы
Карта сайта

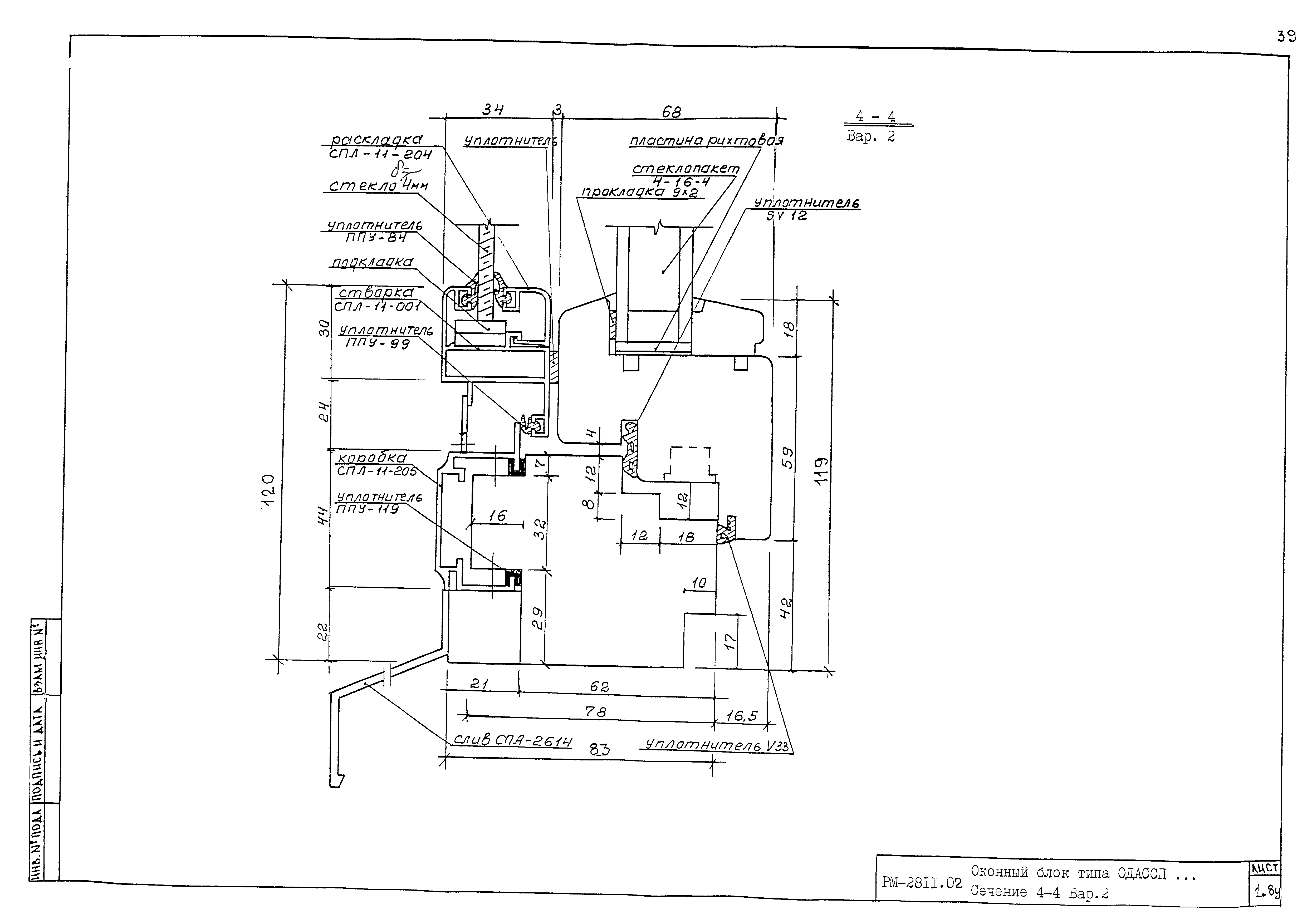
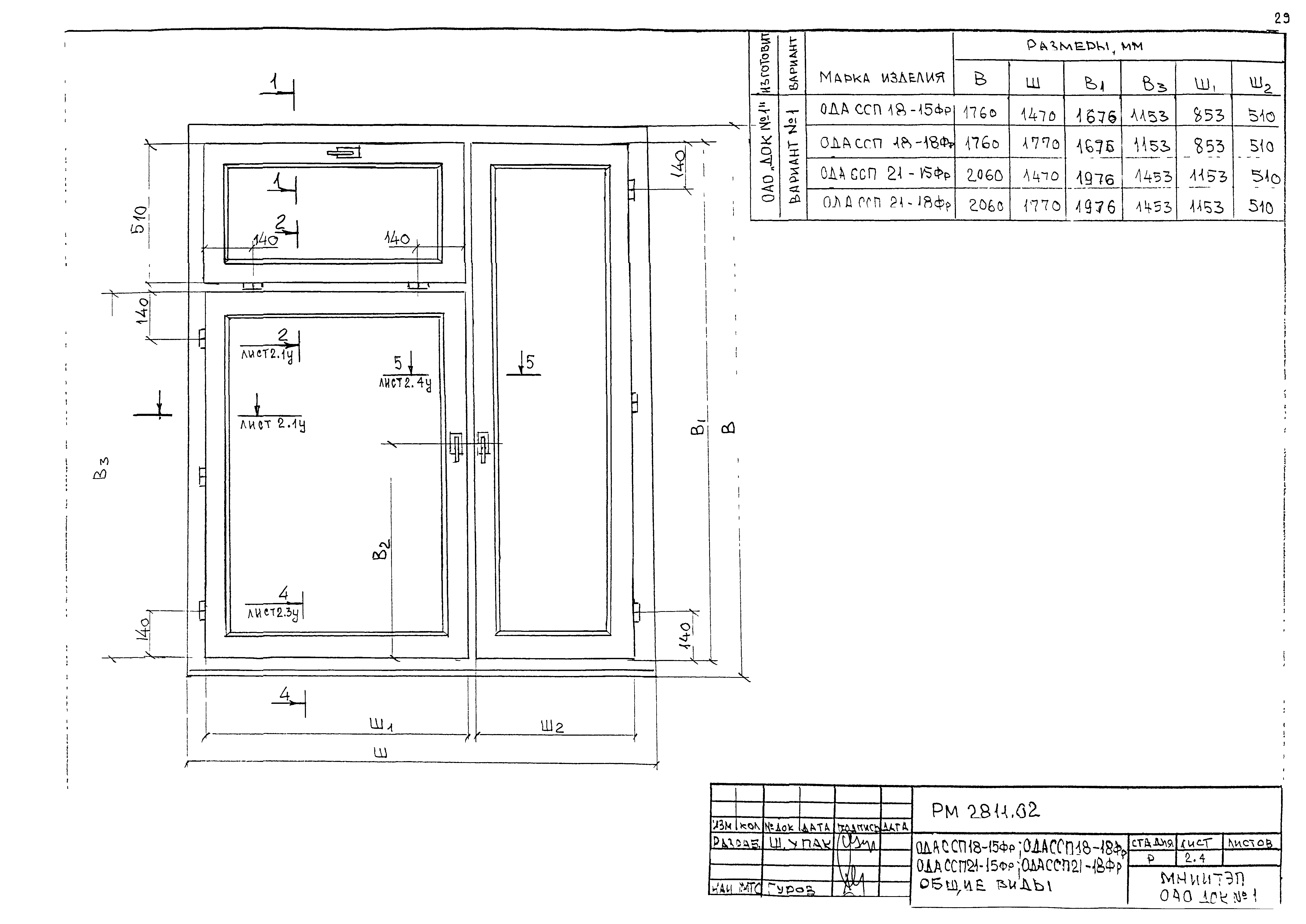
Скачать РМ-2811-02 Окна и балконные двери деревоалюминиевые теплозащитные и теплошумозащитные (с клапаном УВШ-1) спаренной и раздельной конструкции производства АООТ ДОК № 1 для жилых и общественных зданий. Номенклатура и рабочие чертежи

Дата актуализации: 10.08.2017

РМ-2811-02

Окна и балконные двери деревоалюминиевые теплозащитные и теплошумозащитные (с клапаном УВШ-1) спаренной и раздельной конструкции производства АООТ ДОК № 1 для жилых и общественных зданий. Номенклатура и рабочие чертежи

Обозначение: РМ-2811-02
Обозначение англ: РМ-2811-02
Статус:не определен законодательством
Название рус.:Окна и балконные двери деревоалюминиевые теплозащитные и теплошумозащитные (с клапаном УВШ-1) спаренной и раздельной конструкции производства АООТ ДОК № 1 для жилых и общественных зданий. Номенклатура и рабочие чертежи
Дата добавления в базу:01.09.2013
Дата актуализации:05.05.2017
Дата введения:01.01.2001
Область применения:Альбом содержит номенклатуру и рабочие чертежи окон и балконных дверей, габаритные размеры которых определены проемами в наружных стеновых панелях в жилых и общественных зданиях строящихся в г. Москве.
Разработан: МНИИТЭП
Утверждён:01.01.2001 МНИИТЭП (MNIITEP )
Расположен в:Техническая документация Экология СТРОИТЕЛЬНЫЕ МАТЕРИАЛЫ И СТРОИТЕЛЬСТВО Строительные элементы Двери и окна Строительство Справочные документы Типовые строительные конструкции, изделия и узлы Разработанные другими министерствами, ведомствами и организациями
РМ-2811-02РМ-2811-02РМ-2811-02РМ-2811-02РМ-2811-02РМ-2811-02РМ-2811-02РМ-2811-02РМ-2811-02РМ-2811-02РМ-2811-02РМ-2811-02РМ-2811-02РМ-2811-02РМ-2811-02РМ-2811-02РМ-2811-02РМ-2811-02РМ-2811-02РМ-2811-02РМ-2811-02РМ-2811-02РМ-2811-02РМ-2811-02РМ-2811-02РМ-2811-02РМ-2811-02РМ-2811-02РМ-2811-02РМ-2811-02РМ-2811-02РМ-2811-02РМ-2811-02РМ-2811-02РМ-2811-02РМ-2811-02РМ-2811-02РМ-2811-02РМ-2811-02РМ-2811-02РМ-2811-02РМ-2811-02РМ-2811-02РМ-2811-02

© 2013 Ёшкин Кот :-) Карта сайта