Информационная система
«Ёшкин Кот»

Скачать базу одним архивом
Скачать обновления
История создания базы
Карта сайта

Скачать Типовой проект 801-2-55.85 Альбом I. Пояснительная записка. Технология производства. Архитектурно-строительные решения. Конструкции металлические. Внутренние водопровод и канализация. Отопление и вентиляция. Электротехнические чертежи. Автоматизация систем отопления и вентиляции. Связь и сигнализация

Дата актуализации: 10.08.2017

Типовой проект 801-2-55.85

Альбом I. Пояснительная записка. Технология производства. Архитектурно-строительные решения. Конструкции металлические. Внутренние водопровод и канализация. Отопление и вентиляция. Электротехнические чертежи. Автоматизация систем отопления и вентиляции. Связь и сигнализация

Обозначение: Типовой проект 801-2-55.85
Обозначение англ: 801-2-55.85
Статус:не определен законодательством
Название рус.:Альбом I. Пояснительная записка. Технология производства. Архитектурно-строительные решения. Конструкции металлические. Внутренние водопровод и канализация. Отопление и вентиляция. Электротехнические чертежи. Автоматизация систем отопления и вентиляции. Связь и сигнализация
Дата добавления в базу:01.09.2013
Дата актуализации:05.05.2017
Дата введения:19.09.1984
Оглавление:Содержание
Пояснительная записка
Основной комплект рабочих чертежей марки ТХ
   Общие данные
   План, разрез
   Разрезы, вид, узлы
   Разрезы, узел, детали
   Разрезы, вид
Основной комплект рабочих чертежей марки АС
   Общие данные
   Планы на отм. 0,000 и 2,800
   Разрезы 1-1; 2-2; 3-3; 4-4. План кровли
   Фасады 1 - 13; 13 - 1; А - Г; Г - А (стены из панелей с горизонтальной разрезкой)
   План полов и схема расположения перегородок и ограждений
   Фрагмент 1 и 2
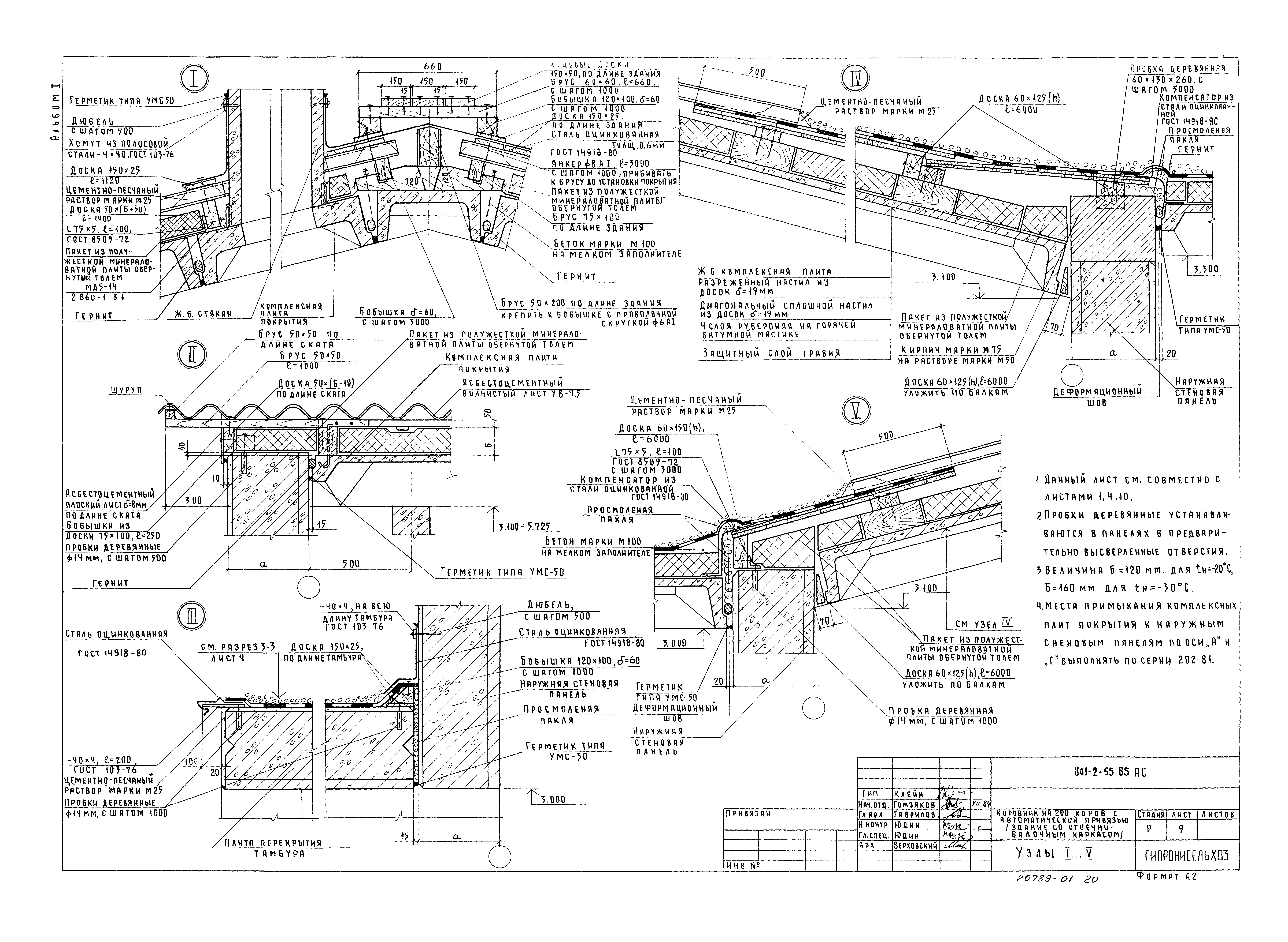
   Узлы I...V
   Узлы VI…ХI
   Схема расположения элементов фундаментов. Узлы 1…3
   Схема расположения элементов фундаментов каркаса плит покрытия и перекоытия
   Схема расположения элементов каркаса плит покрытия и перекрытия
   Схема расположения элементов каналов навозоудаления, полов и кормушек. Узлы. Фрагмент плана 1
   Схема расположения плит полов стойл, фрагмент плана 2, приямок ПЯм1, узлы
   Схемы расположения панелей (стены из панелей повышенной заводской готовности)
   Схемы расположения панелей (стены из панелей с горизонтальной резкой)
   Узлы 1…7
   Узлы 8…15
   Узлы 16…22
   Спецификация к схемам расположения панелей (стены из панелей повышенной заводской готовности)
   Спецификация к схемам расположения панелей (стены из панелей с горизонтальной разрезкой
Основной комплект рабочих чертежей марки КМ
   Общие данные. Техническая спецификация стали
   Схемы расположения металлических элементов площадок и приямка ПЯм1
   Узлы 1…9 к схеме расположения металлических элементов площадок и приямка Пям-1
Основной комплект рабочих чертежей марки ВК
   Общие данные
   Коровник №1. План на отм. 0.000. Схемы систем ВО; Т3; Т4; Т31
   Коровник №1а. План на отм. 0.000. Схемы систем ВО; Т31
Основной комплект рабочих чертежей марки ОВ
   Общие данные
   План на отм. 0.000. Разрез 1-1. Схемы систем П1; П2; ВЕ1…ВЕ16
   Установка системы П1
   Установка системы П2
   Эскизные чертежи общих видов нетиповых конструкций систем отопления и вентиляции
Основной комплект рабочих чертежей марки Э
   Общие данные
   Электроосвещение и силовое электрооборудование. Спецификация
   Электроосвещение. План электросети
   Силовое электрооборудование. План электросети коровника №1, фрагмент плана электросети коровника №1а
   Электроосвещение и силовое электрооборудование. План трубной разводки. Ведомости объектов электромонтажных и строительных работ
   Электроосвещение и силовое электрооборудование. Расчетная схема сети 380/220В
Основной комплект рабочих чертежей марки АОВ
   Общие данные. Вентустановка П1(П2). Схема функциональная
   Вентустановки П1, П2. Схема внешних проводок. План расположения
Основной комплект рабочих чертежей марки СС
   Общие данные. План расположения сетей связи и сигнализации
Разработан: ВИЭСХ
Институт Гипронисельхоз
Утверждён:16.02.1984 Минсельхоз СССР (USSR Minselkhoz 7-ЭГ)
Расположен в:Техническая документация Экология СТРОИТЕЛЬНЫЕ МАТЕРИАЛЫ И СТРОИТЕЛЬСТВО Строительство Здания и сооружения прочие Строительство Справочные документы Типовые строительные конструкции, изделия и узлы Общероссийский строительный каталог Сельскохозяйственные предприятия, здания и сооружения Предприятия, здания и сооружения для крупного рогатого скота Здания и сооружения Производство молока и выращивание нетелей Коровники
Типовой проект 801-2-55.85Типовой проект 801-2-55.85Типовой проект 801-2-55.85Типовой проект 801-2-55.85Типовой проект 801-2-55.85Типовой проект 801-2-55.85Типовой проект 801-2-55.85Типовой проект 801-2-55.85Типовой проект 801-2-55.85Типовой проект 801-2-55.85Типовой проект 801-2-55.85Типовой проект 801-2-55.85Типовой проект 801-2-55.85Типовой проект 801-2-55.85Типовой проект 801-2-55.85Типовой проект 801-2-55.85Типовой проект 801-2-55.85Типовой проект 801-2-55.85Типовой проект 801-2-55.85Типовой проект 801-2-55.85Типовой проект 801-2-55.85Типовой проект 801-2-55.85Типовой проект 801-2-55.85Типовой проект 801-2-55.85Типовой проект 801-2-55.85Типовой проект 801-2-55.85Типовой проект 801-2-55.85Типовой проект 801-2-55.85Типовой проект 801-2-55.85Типовой проект 801-2-55.85Типовой проект 801-2-55.85Типовой проект 801-2-55.85Типовой проект 801-2-55.85Типовой проект 801-2-55.85Типовой проект 801-2-55.85Типовой проект 801-2-55.85Типовой проект 801-2-55.85Типовой проект 801-2-55.85Типовой проект 801-2-55.85Типовой проект 801-2-55.85Типовой проект 801-2-55.85Типовой проект 801-2-55.85Типовой проект 801-2-55.85Типовой проект 801-2-55.85Типовой проект 801-2-55.85Типовой проект 801-2-55.85Типовой проект 801-2-55.85Типовой проект 801-2-55.85Типовой проект 801-2-55.85Типовой проект 801-2-55.85Типовой проект 801-2-55.85Типовой проект 801-2-55.85Типовой проект 801-2-55.85Типовой проект 801-2-55.85Типовой проект 801-2-55.85

© 2013 Ёшкин Кот :-) Карта сайта