Информационная система
«Ёшкин Кот»

Скачать базу одним архивом
Скачать обновления
История создания базы
Карта сайта

Скачать Типовой проект 801-2-54.85 Часть 1. Панели для варианта стен вертикальной разрезки (из типового проекта 801-2-55.85)

Дата актуализации: 10.08.2017

Типовой проект 801-2-54.85

Часть 1. Панели для варианта стен вертикальной разрезки (из типового проекта 801-2-55.85)

Обозначение: Типовой проект 801-2-54.85
Обозначение англ: 801-2-54.85
Статус:не определен законодательством
Название рус.:Часть 1. Панели для варианта стен вертикальной разрезки (из типового проекта 801-2-55.85)
Дата добавления в базу:01.09.2013
Дата актуализации:05.05.2017
Дата введения:19.09.1984
Оглавление:Содержание
Часть 1.1. Опалубочные чертежи и армирование
КЖИ1.1-ТУ Технические условия
КЖИ1.1-1.0.0 Панель стеновая 4ПСД(4ПСД6.33…-т-п; 4ПСД6.33…-т-п.н)
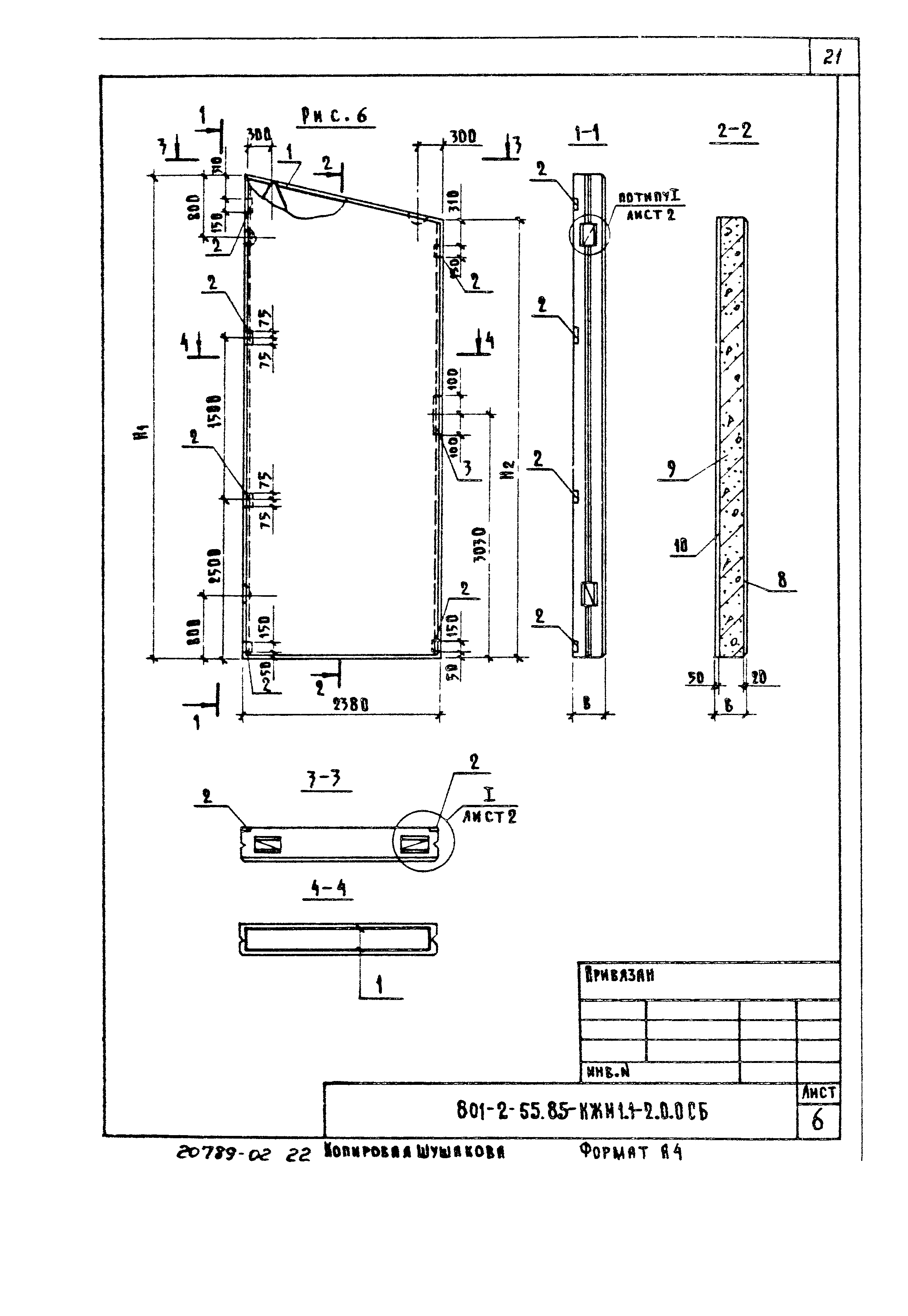
КЖИ1.1-1.0.0СБ Панель стеновая 4ПСД(4ПСД6.33…-т-п; 4ПСД6.33…-т-п.н). Сборочный чертеж
КЖИ1.1-2.0.0 Панель стеновая ПСД(ПСД…40…-т-п; ПСД…40-т-п.н; ПСД57.24…-т-п; ПСД57.24…-т-п.н; 4ПСДТ24.60…-т-п; 4ПСДТ24.60…-т-п.1; ПСДТ24.60…-т-п; ПСДТ24.60…-т-п.1)
КЖИ1.1-2.0.0СБ Панель стеновая ПСД(ПСД…40…-т-п; ПСД…40-т-п.н; ПСД57.24…-т-п; ПСД57.24…-т-п.н; 4ПСДТ24.60…-т-п; 4ПСДТ24.60…-т-п.1; ПСДТ24.60…-т-п; ПСДТ24.60…-т-п.1). Сборочный чертеж
КЖИ1.1-РС Ведомость расхода стали
Часть 1.2. Арматурные изделия
КЖИ1.2-ТУ Технические условия
КЖИ1.2-0.1.0 Каркас пространственный КП1
КЖИ1.2-0.1.0 Каркас пространственный КП1. Сборочный чертеж
КЖИ1.2-0.2.0 Каркас пространственный (КП2…КП7)
КЖИ1.2-0.2.0СБ Каркас пространственный (КП2…КП7). Сборочный чертеж
КЖИ1.2-0.3.0 Сетка арматурная (С1…С3)
КЖИ1.2-0.3.0СБ Сетка арматурная (С1…С3). Сборочный чертеж
КЖИ1.2-0.4.0 Сетка арматурная (С1-1; С1-2; С1-1н; С1-2н; С2-1; С2-2; С2-1н; С2-2н; С3-1; С3-2; С3-1н; С3-2н)
КЖИ1.2-0.4.0СБ Сетка арматурная (С1-1; С1-2; С1-1н; С1-2н; С2-1; С2-2; С2-1н; С2-2н; С3-1; С3-2; С3-1н; С3-2н). Сборочный чертеж
Разработан: ВИЭСХ
Институт Гипронисельхоз
Утверждён:16.02.1984 Минсельхоз СССР (USSR Minselkhoz 7-ЭГ)
Расположен в:Техническая документация Экология СТРОИТЕЛЬНЫЕ МАТЕРИАЛЫ И СТРОИТЕЛЬСТВО Строительство Здания и сооружения прочие Строительство Справочные документы Типовые строительные конструкции, изделия и узлы Общероссийский строительный каталог Сельскохозяйственные предприятия, здания и сооружения Предприятия, здания и сооружения для крупного рогатого скота Комплексы и фермы Производство молока Здания и сооружения Производство молока и выращивание нетелей Коровники
Типовой проект 801-2-54.85Типовой проект 801-2-54.85Типовой проект 801-2-54.85Типовой проект 801-2-54.85Типовой проект 801-2-54.85Типовой проект 801-2-54.85Типовой проект 801-2-54.85Типовой проект 801-2-54.85Типовой проект 801-2-54.85Типовой проект 801-2-54.85Типовой проект 801-2-54.85Типовой проект 801-2-54.85Типовой проект 801-2-54.85Типовой проект 801-2-54.85Типовой проект 801-2-54.85Типовой проект 801-2-54.85Типовой проект 801-2-54.85Типовой проект 801-2-54.85Типовой проект 801-2-54.85Типовой проект 801-2-54.85Типовой проект 801-2-54.85Типовой проект 801-2-54.85Типовой проект 801-2-54.85Типовой проект 801-2-54.85Типовой проект 801-2-54.85Типовой проект 801-2-54.85Типовой проект 801-2-54.85Типовой проект 801-2-54.85Типовой проект 801-2-54.85Типовой проект 801-2-54.85Типовой проект 801-2-54.85Типовой проект 801-2-54.85Типовой проект 801-2-54.85Типовой проект 801-2-54.85Типовой проект 801-2-54.85Типовой проект 801-2-54.85Типовой проект 801-2-54.85Типовой проект 801-2-54.85Типовой проект 801-2-54.85Типовой проект 801-2-54.85Типовой проект 801-2-54.85Типовой проект 801-2-54.85Типовой проект 801-2-54.85Типовой проект 801-2-54.85Типовой проект 801-2-54.85Типовой проект 801-2-54.85Типовой проект 801-2-54.85Типовой проект 801-2-54.85Типовой проект 801-2-54.85Типовой проект 801-2-54.85Типовой проект 801-2-54.85Типовой проект 801-2-54.85

© 2013 Ёшкин Кот :-) Карта сайта