Скачать Типовой проект 801-2-65.85 Альбом I. Пояснительная записка. Архитектурно-строительные решенияДата актуализации: 10.08.2017 Типовой проект 801-2-65.85
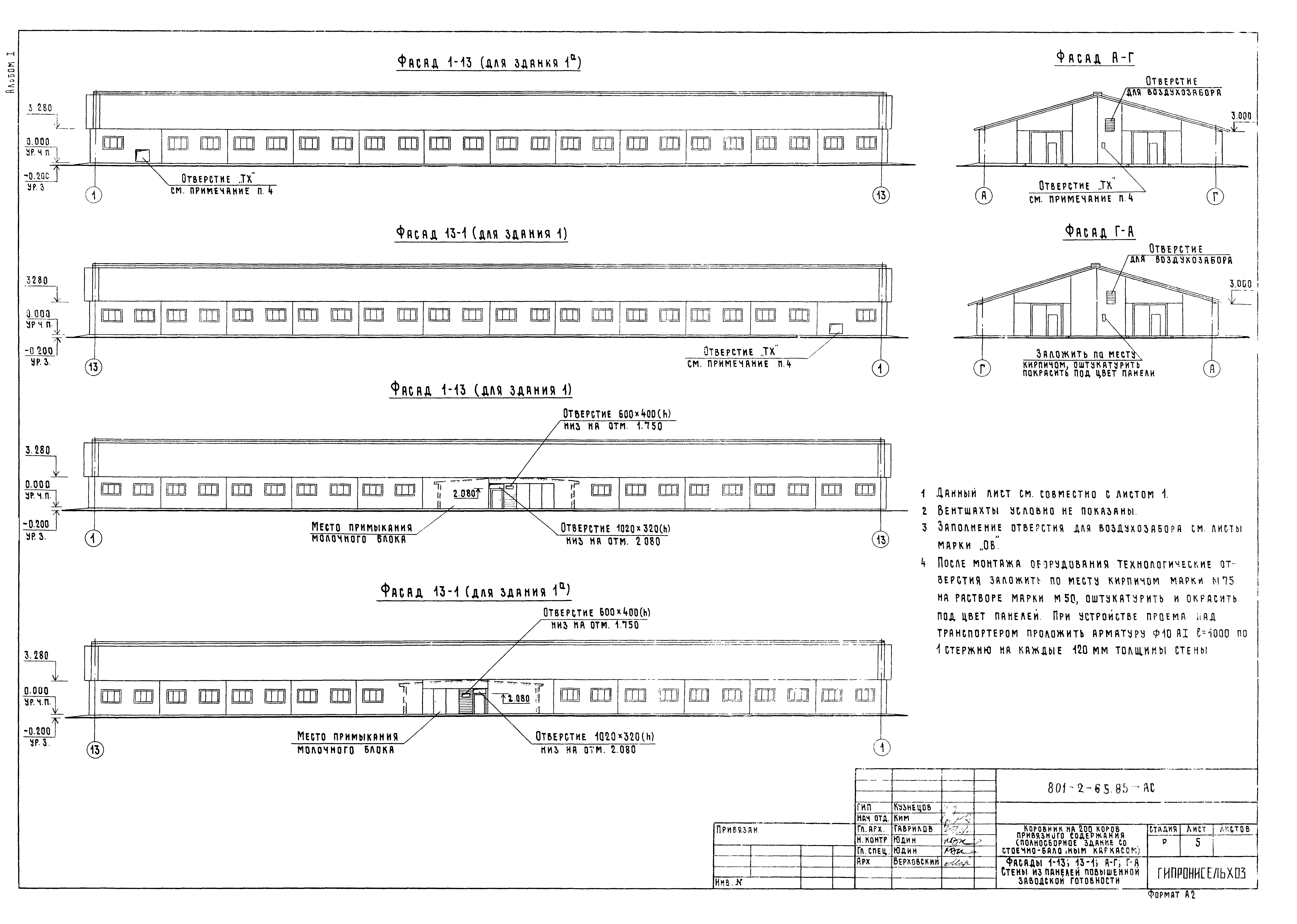
Альбом I. Пояснительная записка. Архитектурно-строительные решенияОбозначение: | Типовой проект 801-2-65.85 | Обозначение англ: | 801-2-65.85 | Статус: | не определен законодательством | Название рус.: | Альбом I. Пояснительная записка. Архитектурно-строительные решения | Дата добавления в базу: | 01.09.2013 | Дата актуализации: | 05.05.2017 | Дата введения: | 19.07.1984 | Оглавление: | Содержание Пояснительная записка Основной комплект рабочих чертежей марки АС Общие данные План на отм. 0,000 и 2,800 Разрезы 1-1; 2-2; 3-3; 4-4. План кровли Фасады 1 - 13; 13 - 1; А - Г; Г - А. Стены из панелей повышенной заводской готовности Фасады 1 - 13; 13 - 1; А - Г; Г - А. Стены из панелей с горизонтальной разрезкой План полов и схема расположения ограждений Узлы I - III Узлы IV - VI Схема расположения фундаментов и фундаментных балок Схема расположения элементов каналов навозоудаления и кормушек. Узел 1 и сечения Фрагмент 2 к схеме расположения элементов каналов навозоудаления. Узел 2 и сечения Фрагмент 1. Схема расположения сборных элементов полов стойл. Монолитные фундаменты Фом1, Фом2 и приямок ПЯм1 Схемы расположения элементов каркаса, плит покрытия и перекрытия тамбуров и вентплощадок Узлы VII - ХII. Спецификация металлических изделий к схемам расположения элементов полурам, каркаса, плит, покрытия и перекрытия тамбуров и вентплощадок Схемы расположения стеновых панелей повышенной заводской готовности Спецификация к схеме расположения стеновых панелей повышенной заводской готовности Схемы расположения стеновых панелей с горизонтальной разрезкой Спецификация к схеме расположения стеновых панелей с горизонтальной разрезкой Узлы I - VIII к схеме расположения стеновых панелей Узлы IХ - ХIII к схеме расположения стеновых панелей Узлы ХIV - ХIХ к схеме расположения стеновых панелей | Разработан: | Институт Гипронисельхоз
| Утверждён: | 30.12.1983 Главсельстройпроект Минсельхоза СССР (Glavselstroyproject, USSR Minselkhoz 126)
| Издан: | ЦИТП Госстроя СССР (CITP, Gosstroy (USSR) 1988 г. )
| Расположен в: |
|
                         
|